Neubau Einfamilienhaus ca. 174 m² Grundriss Architekt

4,10 Stern(e) 18 Votes
Zuletzt aktualisiert 05.10.2025
Sie befinden sich auf der Seite 7 der Diskussion zum Thema: Neubau Einfamilienhaus ca. 174 m² Grundriss Architekt
>> Zum 1. Beitrag <<

Y

ypg

Der Platz wäre aber ausreichend das Bett noch zu drehen.
zum Schlafzimmer: Du schreibst ok...
Vorteile bei Veränderung:
- ihr habt keine heiße Südsonne im Raum , sondern erleuchtende Ostsonne
- Ihr schaut beim Eintreten AUF das Bett und nicht daneben. Das ist der Schokoladenanblick eines Schlafzimmer!
- Du schläfst nicht ok, Du schläfst prima!
 
kbt09

kbt09

Wegen Schlafzimmer und Ost- statt Südfenster sowie der Bettaufstellung unterschreibe ich noch mal ausdrücklich bei Yvonne.

Wg. Wohnzimmer ... ich bevorzuge die L-Varianten gegenüber den langgestreckten Varianten. Das ermöglicht in aller Regel für den Wohnbereich einen wirklichen Rückzugsbereich. So wie ihr das L geplant habt, kann man den Raum tatsächlich auch mal richtig abtrennen.

Wenn du den Hauswirtschaftsraum auch mal als Schmutzküche etc. nutzen willst, dann finde ich die Hauswirtschaftsraum-Tür wie im Ursprungsplan sehr sinnvoll. Man könnte da eine sehr geschickte Küchenplanung machen. Und wie gesagt, das Verlegen vom Abwasserschacht aus dem OG in den Bereich Hauswirtschaftsraum würde ich auf jeden Fall versuchen.
 
kaho674

kaho674

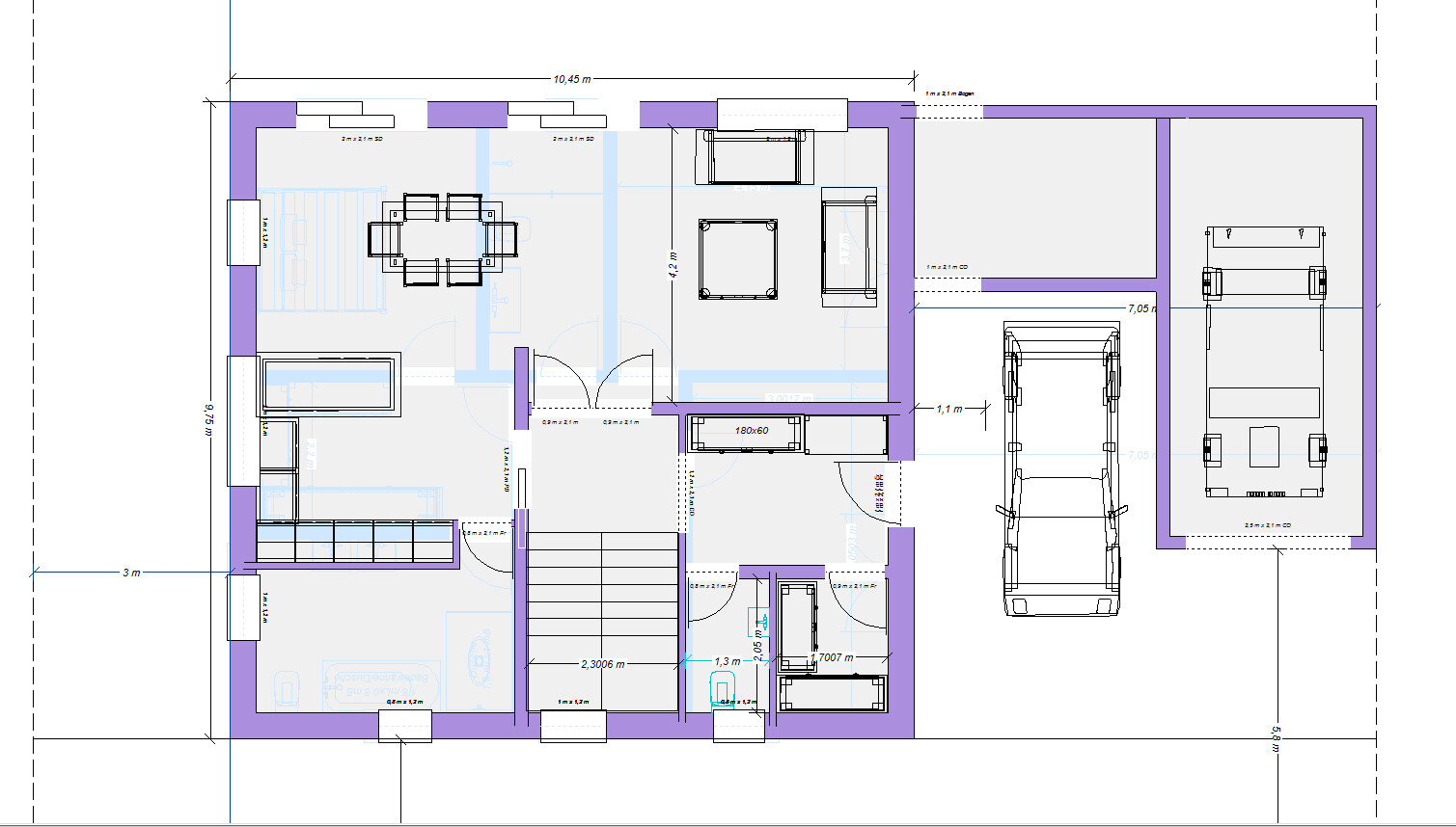
Ich würde die Hausmaße noch etwas verschieben auf 1045x975 damit der Treppenbereich und die WZ-Tiefe etwas gefälliger wird. Außerdem zählt beim Platz neben dem Auto vor der Haustür jeder Zentimeter (m.E. ist das ne Kröte, die ich nur schlucken würde, wenn üblicherweise nur 1 Auto auf dem Grundstück parkt).


Grundriss eines Hauses mit Wohnzimmer, Küche, Essbereich, Bad, Flur, Treppe und Garage (mit Auto).


Grundrissplan eines Hauses mit Küche, Bad, Schlafzimmer und Garage, farblich markierte Wände.

Ob man bei dieser Hausgröße tatsächlich ein Kinderbad plant, da bin ich zwiegespalten. Einerseits liegt es so oder so über dem WZ und man müsste die Entsorgung gut planen. Andererseits ist unten keine Dusche mehr drin, bei dieser Aufteilung.


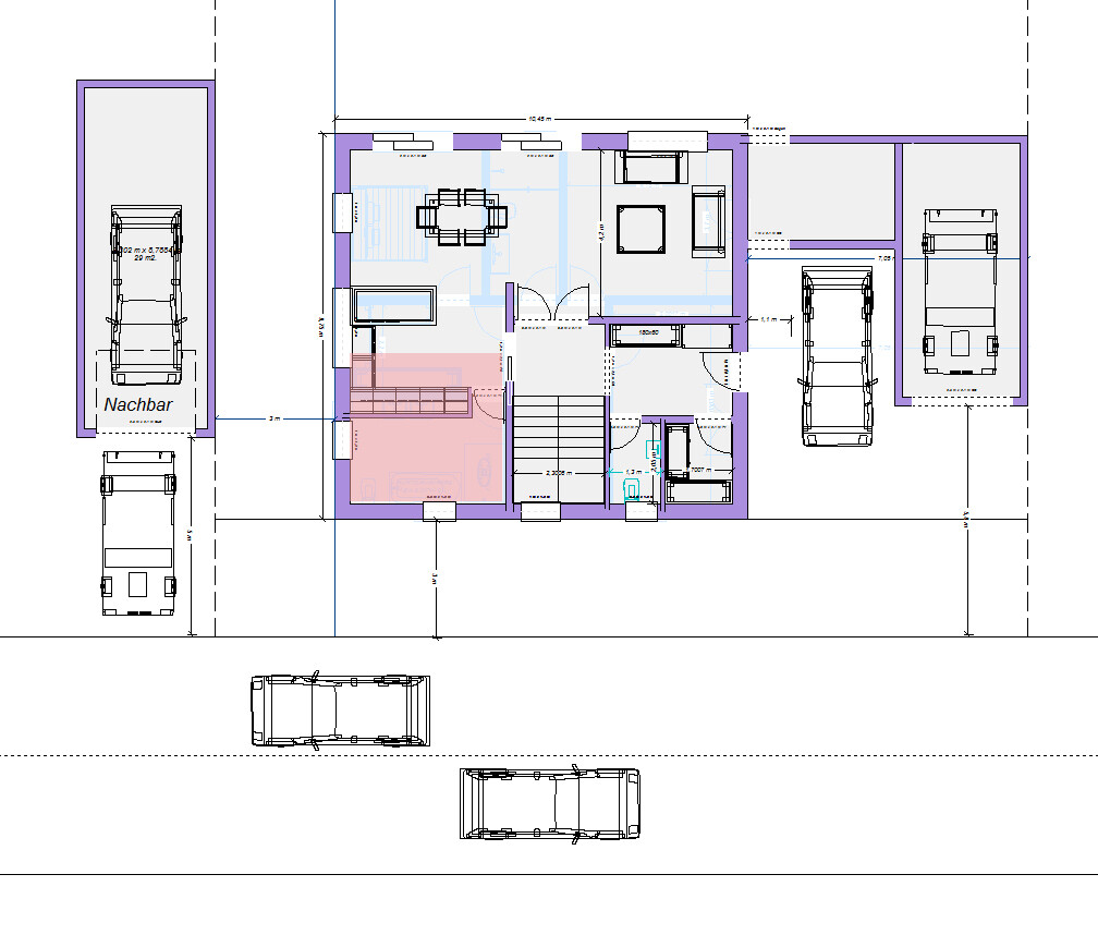
Ich habe das Gefühl, dass die Größe des Grundstücks bei der L-Wohnraum-Diskussion überschätzt wird oder einigen einfach die Übersicht fehlt. Die Ach so ruhige und kuschlige Lage im hinteren L relativiert sich m.E. komplett, wenn man mal die Draufsicht inkl. der zu erwartetenden Randbebauung des Nachbarn dazu einzeichnet.
Ich hab mal meine Skizze genommen und das WZ mit rosa simuliert:


Grundriss eines Hauses mit Wohnzimmer, Essbereich, Küche, Treppe und Garagen samt Fahrzeugen.


Wenn man sich jetzt noch die geplanten Eckfenster aus #1 dazu denkt, wird es noch absurder. Wir schön kommt einem dann doch die Lage am Garten vor, oder?
 
kbt09

kbt09

Ich bin ja bekennender Küchenfan und mag U-Küchen in der Form leider gar nicht . Auch läßt sich der Hauswirtschaftsraum so schlechter als erweiterte Küche wie der TE es beschrieben hat, nutzen. Ich mag echte Kücheninseln, die hier nicht so ohne weiteres möglich sind.

Letztendlich hängt es echt an den eigenen Vorlieben ... wann wird wirklich der Wohnraum für welchen Zweck genutzt.
 
H

hampshire

Mir gefällt in der Tat die L-Form gut. Die Lage zur Straße hat etwas von Niederländischer oder Englischer Lebensart - da ist das sehr üblich und erwünscht. Das Zusammenspiel mit dem hellen Kellerraum darunter hat eine gute Spannung.
Der Platz neben dem Auto im Carport wird größer, wenn man so parkt, dass nur die Türen der Fahrerseite Richtung Haus geöffnet werden können.
Sehr schön geplant und offenbar das Ergebnis einer guten Zusammenarbeit mit dem Architekten. Ich wünsche eine genauso schöne Bauphase wie wir sie hatten!
Tolles Projekt.
 
M

mini_g!

@kaho674 Danke für Deine Mühe! Finde es gut noch mal einen Schritt zurück zu machen was die Außenmaße und die Aufteilung angeht.
Wir müssen heute noch Feedback zusammenstellen und besprechen, ob das eine Lösung ist.

Und Illusionen machen wir uns keine, es ist ein Neubaugebiet und es sind m. E. Handtücher, keine Badetücher. Aber was anderes gibt's hier leider nicht :-(.

Danke! mini
 
Zuletzt aktualisiert 05.10.2025
Im Forum Grundrissplanung / Grundstücksplanung gibt es 2510 Themen mit insgesamt 87152 Beiträgen


Ähnliche Themen zu Neubau Einfamilienhaus ca. 174 m² Grundriss Architekt
Nr.ErgebnisBeiträge
1Ankleide/Schlafzimmer Problem - Grundrissdiskussion 25
2Extra-Bad vom Schlafzimmer oder doch Abstellraum? - Seite 329
3Grundriss Einfamilienhaus ohne Keller/Schlafzimmer und Bad im EG - Seite 427
4Hauswirtschaftsraum im OG - Probleme mit Lärm? - Seite 327
5Haus-Entwurf Einfamilienhaus - Zukünftig als Zweifamilienhaus trennbar - Seite 572
6Fitness-Ecke im Hauswirtschaftsraum? 27
7 2 Vollgeschosse, Durchgang Garage, Hauswirtschaftsraum unter Treppe 25
8Technik / Hauswirtschaftsraum im OG Meinungen? 27
9Zusätzlicher Hauswirtschaftsraum im OG für Waschmaschine etc. 13
10Fußbodenheizung auch im Technikraum / Hauswirtschaftsraum - Seite 319
11Reicht der Hauswirtschaftsraum auch als Abstellkammer aus? 22
12Heizungsanlage passt nicht wie geplant in den Hauswirtschaftsraum 27
13Schallschutztür im Hauswirtschaftsraum notwendig? Erfahrungen? 22
14Hauswirtschaftsraum streichen - Welche Farbe? Latexfarbe? - Seite 216
15Schrank für Hauswirtschaftsraum 21
16Leitungsführung vom Hauswirtschaftsraum zum Bad 23
17Wie Hauswirtschaftsraum im Keller sinnvoll in die thermische Hülle? 15
18Hausanschlusssäule im Garten vs. Hausanschluss direkt im Hauswirtschaftsraum 35
19Hauswirtschaftsraum mit Gipsputz streichen - Welche Farbe? 20
20CAT Kabel im Hauswirtschaftsraum - nicht gecrimpt? - Seite 545

Oben