
11ant
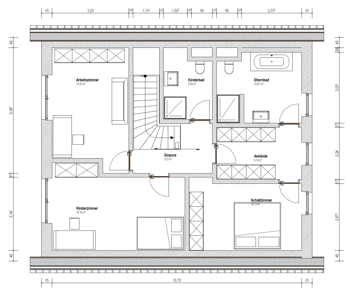
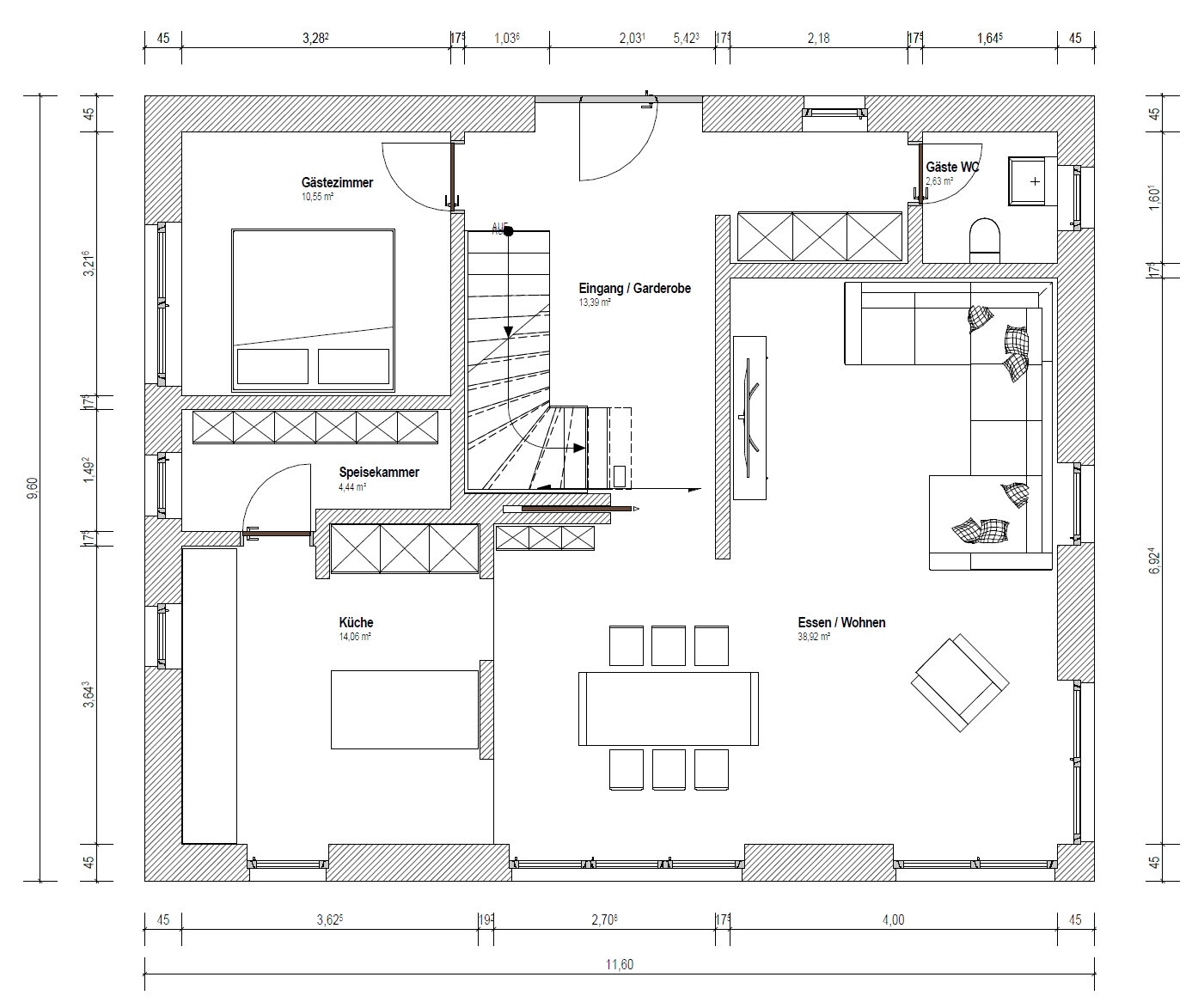
Viele Laienplaner erhoffen sich einen wegweisenden ersten Schritt auf dem weißen Blatt davon, von einem ihnen gefallenden Modell ein paar Eckdaten oder Grundzüge zum Ausgangspunkt zu machen. Diese "Hilfe" hat aber auch einen Preis: sie "fängt" die Gedanken, weiter als man oft meint. Irriger wäre übrigens die Hoffnung, mit den Grundzügen eines Modells bei gleichen Außenmaßen auch in etwa den Preisrahmen zu übertragen. Sobald man auf die bildliche Ebene gelangt ist, wird für Ungeübte schwer, abstrakt zu bleiben - was aber eigentlich zum Vorentwurfsstadium noch dazugehört. Ein besserer Einstieg in die Planung ist daher m.E., in Listenform die Räume und ihre Circa-Größen zu sammeln und die Liste dann im nächsten Schritt aufzuteilen: was kommt ins EG und was ins OG. Sind beide dann flächenmäßig etwa gleich schwer, zeigt das in Richtung geradwandigem Obergeschoss (geschumpfen "Stadtvilla") - ist das OG etwa halb so groß wie das EG, zeigt dieser Schritt in Richtung eines "Anderthalb Geschössers". Dies wird vorweggenommen / übersprungen, wenn man von einem gefallenden Modell ausgeht, ohne dies mit den eigenen Bedürfnissen abgeglichen zu haben (z.B. hat das Original kein Kinderbad).