Neubau Einfamilienhaus ~160m² + Keller - Erster Entwurf

4,40 Stern(e) 5 Votes
Zuletzt aktualisiert 20.11.2025
Sie befinden sich auf der Seite 5 der Diskussion zum Thema: Neubau Einfamilienhaus ~160m² + Keller - Erster Entwurf
>> Zum 1. Beitrag <<

Y

ypg

Richtig. Was ist daran so verwerflich?
eben das, dass man etwas sieht, was anders ist als sonst, man es auch gut findet, sich aber nicht über Konsequenzen Gedanken macht bzw ob sie überhaupt funktioniert. Wenn sie nämlich so toll ist, dann würden viele Häuslebauer diese Weise übernehmen. Die Küche ist ja schon etwas länger im Bestandvon Viebrockhaus... nur bleiben sie wohl die einzigen, weil sich so eine Küche, wo man nur ein U als Flurvariante vorfindet, nicht bewährt.
 
L

LukeLuu

Hallo zusammen,

wir haben noch mal etwas umgeplant.

Die Außenansichten sind auch dabei, sollen aber nur Veranschaulichung für die Fenster sein. Farben etc, nicht beachten

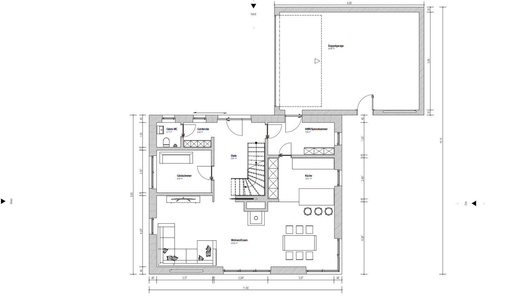
Grundriss eines Hauses: Wohnen/Essen, Küche, Gästezimmer, Diele, Doppelgarage.


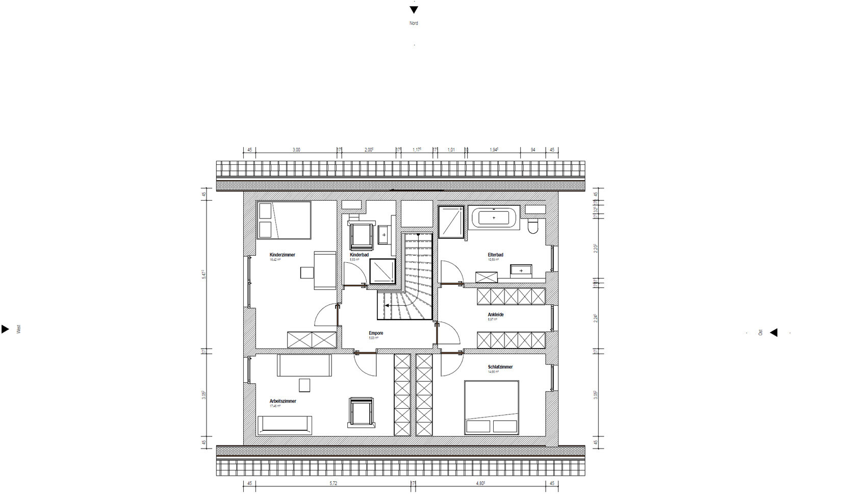
Grundriss Dachgeschoss: Schlafzimmer, Kinderzimmer, Arbeitszimmer, Ankleide, Elternbad.


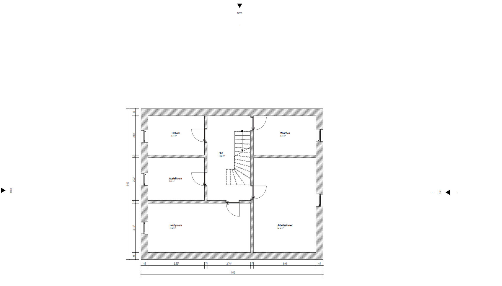
Grundriss eines Hauses: Zentraltreppenaufgang, Technik, Abstellraum, Hobbyraum, Arbeitszimmer, Waschen


Modernes Einfamilienhaus mit grauem Satteldach, weißer Fassade, angebaute Garage und Grünfläche.


Ein modernes Einfamilienhaus mit dunklem Satteldach, weißen Wänden und großem Garten.


3D-Modell eines Einfamilienhauses mit Satteldach, Anbau und großer Rasenfläche.
 
Y

ypg

Wow.
Ich behalte jetzt erst mal für mich, was mir gar nicht gefällt... (Es wäre für mich etwas ganz gravierendes, allerdings gefällt mir ansonsten alles super, würde aber mit meinem Vorsvhlag alles definitiv nicht mehr funktionieren.)

...Und hätte die Frage: tut der Keller Not? Andere mit zwei Kids brauchen nur 1/4 von Speis/Technik/Waschen/Abstell.
 
L

LukeLuu

Wow.
Ich behalte jetzt erst mal für mich, was mir gar nicht gefällt... (Es wäre für mich etwas ganz gravierendes, allerdings gefällt mir ansonsten alles super, würde aber mit meinem Vorsvhlag alles definitiv nicht mehr funktionieren.)

...Und hätte die Frage: tut der Keller Not? Andere mit zwei Kids brauchen nur 1/4 von Speis/Technik/Waschen/Abstell.
Doch, bitte hau raus was für dich gravierend ist.

Nein, Not tut er nicht. Aber wir sind Beide recht „großzügig“ aufgewachsen und mögen es gerne etwas mehr Platz zu haben.

100% Gesetzt ist der Keller noch nicht.
Da müssen dann konkrete Angebote her um zu schauen, ob das so im Rahmen liegt.
 
Zuletzt aktualisiert 20.11.2025
Im Forum Grundrissplanung / Grundstücksplanung gibt es 2535 Themen mit insgesamt 87977 Beiträgen


Ähnliche Themen zu Neubau Einfamilienhaus ~160m² + Keller - Erster Entwurf
Nr.ErgebnisBeiträge
1Baukosten KFW70 Haus mit Keller Schlüsselfertig 15
2Grundriss Einfamilienhaus mit Keller - Eure Meinungen bitte - Seite 216
3Einfamilienhaus 2 Stockwerke ohne Keller -Grundriss -Kosten -Umsetzbarkeit? 24
4Neubauplanung - Einfamilienhaus 160 qm ohne Keller - Grundriss, Kosten usw.. 29
5Häuser ohne Keller: Stauraum Hobby-Keller? 49
6Grundriss Einfamilienhaus, ca. 200qm ohne Keller - Einschätzung - Seite 19172
7Probleme bei der aufteilung Küche, Essen , Wohnen 16
8Haus ohne Garage und Keller? Ausbau Dachboden? Fresswarze? - Seite 1285
9Einfamilienhaus mit kleiner Grundfläche, DG und Keller, Zustimmung Nachbar - Seite 531
10Grundrissplanung Keller, EG + DG 12
11Grundriss 180qm plus Keller - 12,40mx9,04m 21
12Planung/Grundriss Einfamilienhaus (ca. 140 qm, Keller, EG, DG) - Seite 230
13Jetzt der finale Grundriss - 189qm ohne Keller; Stadtvilla - Seite 424
14Erster Entwurf Einfamilienhaus 150m² mit Keller 38
15Planung Einfamilienhaus 195m² mit Keller und Satteldach in NRW 13
16Grundriss Einfamilienhaus, 140 qm mit Keller 40
17Grundriss Einfamilienhaus mit Keller 13
18Baukosten Einfamilienhaus 190m² + Keller inkl. Einliegerwohnung - Seite 228
19Hausplan von Architekt 2 Geschosse mit Keller 18
20Werkplanung Einfamilienhaus 180qm Flachdach mit Keller & Doppelgarage 142

Oben