Hausbau - Ratgeber
Bauherrenhilfe
- Bauherrenhilfe vor Vertragsabschluss
-- Warum einen unabhängigen Baubetreuer?
-- Vertragsgrundlagen
-- Bausumme
-- Zahlungsplan zur Kostenkontrolle
-- Pflichten des Bauherren vor Vertragsabschluss
-- Unterlagen beim Hausbau vor Vertragsabschluss
- Bauherrenhilfe nach Vertragsabschluss
-- Bauantrag bei Behörden
-- Bau-Genehmigungsverfahren bei Baubehörden
-- Bauspezifische Versicherungen
-- Bauzeitenplan
-- Baubeginn - die Letzten Pflichten der Bauherrschaft
- Bauherrenhilfe während der Bauzeit
- Gewährleistungsansprüche
- Bauabnahme
Baufinanzierung
- Baufinanzierung - Allgemeine Fragen
- Kreditarten
- Kredit-Konditionen
- Bausparen
- Staatliche Förderungen
- Verkehrswert
- Haushaltsrechnung und Bonität
Hausbau Planung
- Haustypen
- Hausbau Vorbereitungsarbeiten
- Das Baugrundstück
- Baugrund beim Hausbau
- Baurecht
- Gebäudeschutz
- Erdarbeiten und Wasserhaltung
- Stützmauern
- Einfriedung
- Untergeschoss
- Kanalisation
- Tragende Elemente
- Nichttragende Innenwände
- Fundation / Fundament
- Deckenkonstruktionen
- Dächer
- Kaminanlagen
- Treppen Rampen Leitern
- Dachbeläge und Spengler
- Fenster
- Sonnen und Wetterschutz
- Aussenputze
- Einbauten, Küchen, Türen
- Bodenbeläge und Unterlagsböden
- Parkett
- Gips, Wand, Decke
Haustechnik und Energie
- Heiztechnik
- Lüftung und Klimatechnik
- Sanitärtechnik
- Elektrotechnik
- Erneuerbare Energie
Whirlpools / Jacuzzi
Hausbau Magazin
- Baufinanzierung trotz Krise?
- Das Blockhaus
- Moderne Dämmstoffe im Vergleich
- Erker Vor- und Nachteile
- Glasflächen beim Hausbau
- Günstig ein Haus Bauen
- Mediterraner Hausbaustil
- Mehrgenerationenhaus
- Moderne Architektur
- Gartengestaltung leicht gemacht
- Traditioneller Ziegelbau
- Villa als höchster Traum
- Im Eigenheim Ruhestand geniessen
- Altbau sanieren
- Kauf einer Holzgarage
- Immobilienmakler
- Arbeitshandschuhe für den Winter
- Zuhause verschönern
- Outdoor-Plissees
- Schlafzimmer planen
- Terrassenüberdachung
- Wohngebäudeversicherung
- Zaunarten und Eigenschaften
- Hauseingang gestalten
- Der perfekte Grundriss
- Sparsamer heizen im Altbau
- Einfamilienhaus smart finanzieren
- Planung einer PV-Anlage
- Neues Haus
- Immobilienfinanzierung
- Installation einer Photovoltaikanlage
- Asbest erkennen und entfernen
- Gartenpflege im Frühling – worauf achten
- Sauna im Fokus - Wellness zuhause
- Erfolgreich vermieten
- Die perfekte Winterbekleidung
- Das Niedrigenergiehaus
- Der April und seine Stürme
- Architektonische Vielfalt
- Ökologisch und nachhaltig bauen
- Das perfekte Schlafzimmer
- Nachhaltige Energieversorgung
- Zukunftsorientiert bauen
- Nachhaltigkeit beim Hausbau
- Tiny Houses
- Wärmepumpen als nachhaltige Heizvariante
- Maßgeschneiderten Kleiderschrank
- Der richtige Baukredit
- Ratgeber für erfolgreichen Hausbau
- Haus als Altersvorsorge
Do-it-yourself Anleitungen
- Verlegeanleitung für Bodenbeläge und Parkett
- Bodenbeläge und Parkett reinigen und pflegen
- Malerarbeiten am Haus
- Garten Tipps
- Umzug und Reinigung

ᐅ Meinungen zur Grundrissplanung (Iso Ansichten, Grundrisse, Bebauungsplan)

Erstellt am: 13.08.18 21:05
D
Dopamin
H
haydee
07.03.19 22:05
Mir gefällt das Verhältnis Elternpalast und Kinderteil nicht.

Für Schlafen, Kleidung genauso viel Platz wie 2 Kinder zum Schlafen, Spielen, Lernen

Dem Familienbad noch eine Flurtüre gönnen

Die Küche ist unpraktisch und zwischen Essen und Kochen können die Kinder skaten

Küche maximal weit weg von der Terrasse
N
Niloa
07.03.19 22:12
Hm ich weiß nicht, ob die Büro-Streichung was bringt. Da ist so viel verschenkter Raum in Küche und Essbereich, den man für nichts nutzen kann. Finde auch die Kinderzimmer recht klein.
Abstand Couch TV ist recht groß.
Soll die Küche so möbliert werden. Lange Laufwege, z. B. kochfeld zu Spüle.
Ist der Lagerraum im EG Garderobe?
D
Dopamin
08.03.19 15:22
Ja ich bin auch nicht sicher ob die Küche und Esszimmer so groß sein müssen.
Ich sehe halt dass wir uns bei bekannten und Freunden zu 95% im Ess/Wohnbereich aufhalten.
Deshalb wollte ich diesen Bereich großzügig machen. Wir haben auch schon Häuser gesehen, bei denen sind die Diele und das Büro sehr groß, dafür das Wohn/Esszimmer eher klein, das taugt uns überhaupt nicht.
ich lebe nicht im gang und auch nicht im Büro, dort halte ich mich verhältnismäßig kurz auf.

Zum Thema Kinderzimmer sind wir recht egoistisch (wir haben noch kein) und gönnen uns einen schönen großen Elternbereich. Und die Kinder haben ja ein eigenes Bad, was auch nicht jeder hat.
Wie viel qm würdet ihr bei den Kinderzimmern rechnen? Dafür aufs Kinderbad verzichten?

Den Abstand zum Fernseher haben wir jetzt in der Mietwohnung auch, also ca. 5m und da ist der 42" TV schon recht weit weg, da hast du recht.

Wir mögen es halt sehr großzügig und weitläufig in den Räumen die wir überwiegend nutzen.
Wir haben oft von unseren großen Familien Besuch und kochen dann am Wochenende auch mal zu fünft oder so. Da stehen wir uns jetzt schon immer im Weg.

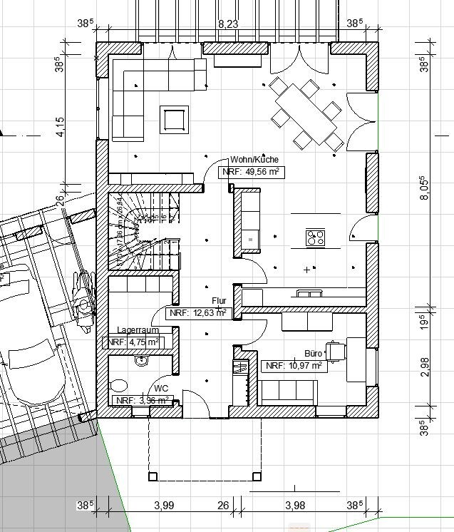
Der Raum in EG ist eine Speise/Vorratsraum, deshalb auch ohne Fenster (passt gut wegen der Garage)
Tauschen würde ich nicht, sonst hat das kl. Klo keine Fenster (=nogo). Die Garderobe ist in der Nische neben der Haustüre. Immerhin ca. 1,5m lang.

Aber wir sind immer noch unschlüssig ob die Küche nicht deutlich zu groß ist und ob die Kinderzimmer nicht zu klein sind.

Viel Glück
D
Dopamin
08.03.19 15:40
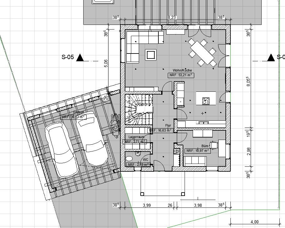
Hier noch die Variante mit Büro

Grundriss Erdgeschoss: Offene Wohnküche, Esstisch, Sofa; Büro, Flur, WC, Lagerraum; Garage.
D
Dopamin
08.03.19 15:44
Dopamin schrieb:

Den Abstand zum Fernseher haben wir jetzt in der Mietwohnung auch, also ca. 5m und da ist der 42" TV schon recht weit weg, da hast du recht.
Viel Glück

Stimmt nicht, heute haben wir sogar 6,5m im Wohnzimmer von Wand zu Wand, also sollten 5m ok sein.
D
Dopamin
08.03.19 16:11
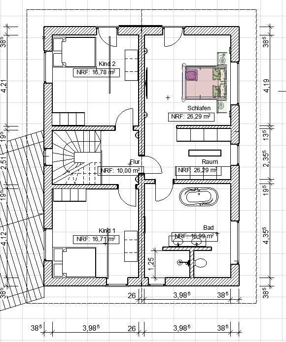
Hier mal eine Variante in der ich das Kinderbad rausgenommen habe, die Treppe so verschoben, dass die Kinderzimmer gleich groß sind, dadurch wird das Wohnzimmer kleiner und die Speise sowie kl. Klo größer.

Grundriss eines Obergeschosses: Schlafzimmer, Bad, Flur, zwei Kinderzimmer und Raum.


Grundriss eines Einfamilienhauses: Wohn/Küche, Flur, Büro, WC, Lagerraum; Garage mit Auto.
küchekinderzimmergarderobeesszimmerkinderbadfensterklowohnzimmer