Hausbau - Ratgeber
Bauherrenhilfe
- Bauherrenhilfe vor Vertragsabschluss
-- Warum einen unabhängigen Baubetreuer?
-- Vertragsgrundlagen
-- Bausumme
-- Zahlungsplan zur Kostenkontrolle
-- Pflichten des Bauherren vor Vertragsabschluss
-- Unterlagen beim Hausbau vor Vertragsabschluss
- Bauherrenhilfe nach Vertragsabschluss
-- Bauantrag bei Behörden
-- Bau-Genehmigungsverfahren bei Baubehörden
-- Bauspezifische Versicherungen
-- Bauzeitenplan
-- Baubeginn - die Letzten Pflichten der Bauherrschaft
- Bauherrenhilfe während der Bauzeit
- Gewährleistungsansprüche
- Bauabnahme
Baufinanzierung
- Baufinanzierung - Allgemeine Fragen
- Kreditarten
- Kredit-Konditionen
- Bausparen
- Staatliche Förderungen
- Verkehrswert
- Haushaltsrechnung und Bonität
Hausbau Planung
- Haustypen
- Hausbau Vorbereitungsarbeiten
- Das Baugrundstück
- Baugrund beim Hausbau
- Baurecht
- Gebäudeschutz
- Erdarbeiten und Wasserhaltung
- Stützmauern
- Einfriedung
- Untergeschoss
- Kanalisation
- Tragende Elemente
- Nichttragende Innenwände
- Fundation / Fundament
- Deckenkonstruktionen
- Dächer
- Kaminanlagen
- Treppen Rampen Leitern
- Dachbeläge und Spengler
- Fenster
- Sonnen und Wetterschutz
- Aussenputze
- Einbauten, Küchen, Türen
- Bodenbeläge und Unterlagsböden
- Parkett
- Gips, Wand, Decke
Haustechnik und Energie
- Heiztechnik
- Lüftung und Klimatechnik
- Sanitärtechnik
- Elektrotechnik
- Erneuerbare Energie
Whirlpools / Jacuzzi
Hausbau Magazin
- Baufinanzierung trotz Krise?
- Das Blockhaus
- Moderne Dämmstoffe im Vergleich
- Erker Vor- und Nachteile
- Glasflächen beim Hausbau
- Günstig ein Haus Bauen
- Mediterraner Hausbaustil
- Mehrgenerationenhaus
- Moderne Architektur
- Gartengestaltung leicht gemacht
- Traditioneller Ziegelbau
- Villa als höchster Traum
- Im Eigenheim Ruhestand geniessen
- Altbau sanieren
- Kauf einer Holzgarage
- Immobilienmakler
- Arbeitshandschuhe für den Winter
- Zuhause verschönern
- Outdoor-Plissees
- Schlafzimmer planen
- Terrassenüberdachung
- Wohngebäudeversicherung
- Zaunarten und Eigenschaften
- Hauseingang gestalten
- Der perfekte Grundriss
- Sparsamer heizen im Altbau
- Einfamilienhaus smart finanzieren
- Planung einer PV-Anlage
- Neues Haus
- Immobilienfinanzierung
- Installation einer Photovoltaikanlage
- Asbest erkennen und entfernen
- Gartenpflege im Frühling – worauf achten
- Sauna im Fokus - Wellness zuhause
- Erfolgreich vermieten
- Die perfekte Winterbekleidung
- Das Niedrigenergiehaus
- Der April und seine Stürme
- Architektonische Vielfalt
- Ökologisch und nachhaltig bauen
- Das perfekte Schlafzimmer
- Nachhaltige Energieversorgung
- Zukunftsorientiert bauen
- Nachhaltigkeit beim Hausbau
- Tiny Houses
- Wärmepumpen als nachhaltige Heizvariante
- Maßgeschneiderten Kleiderschrank
- Der richtige Baukredit
- Ratgeber für erfolgreichen Hausbau
- Haus als Altersvorsorge
Do-it-yourself Anleitungen
- Verlegeanleitung für Bodenbeläge und Parkett
- Bodenbeläge und Parkett reinigen und pflegen
- Malerarbeiten am Haus
- Garten Tipps
- Umzug und Reinigung

ᐅ Meinungen zur Grundrissplanung (Iso Ansichten, Grundrisse, Bebauungsplan)

Erstellt am: 13.08.18 21:05
D
Dopamin
Kevinius08.03.19 16:17
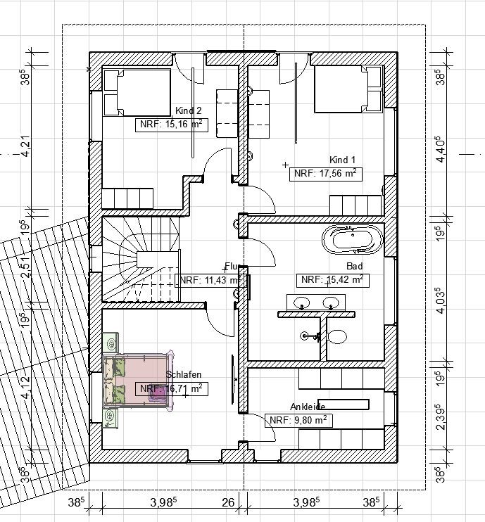
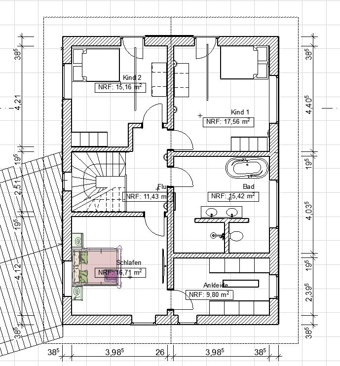
Wenn die Kinder auf's Klo müssen stehen Sie immer in eurem Schlafzimmer - wollt ihr das wirklich?
H
haydee
08.03.19 16:17
Bei der Hausgröße sind 15-16 qm gut für’s Kinderzimmer
Wenn du Kindern die Wahl läßt Platz zum Spielen später Platz um sich mit Freunden zurück zuziehen oder Mini-Kinderbad würden die Meisten den Platz wählen

Kinderbäder sind ein Hype. Die mehr vor sich hinstauben als benutzt werden
H
haydee
08.03.19 16:21
Ohne Kinderbad gefällt mir besser. Nur der Badzugang gehört geändert.

Tauscht doch Schlafen mit Kind 1
Bad mit Ankleide

Bad vom Flur zugänglich
Keine Schlafzimmerwand am Kinderzimmer

Garderobe ist recht klein
Für 3-4 Personen
11ant08.03.19 17:03
Dopamin schrieb:
Hier noch die Variante mit Büro
Die würde ich vorziehen.
Dopamin schrieb:
dass die Kinderzimmer gleich groß sind,
... halte ich selbst bei gleich großen Kindern gleichen Geschlechts für Quatsch - außer, sie sind auch im gleichen Maße Stubenhocker.
https://www.instagram.com/11antgmxde/
https://www.linkedin.com/company/bauen-jetzt/
D
Dopamin
08.03.19 17:06
Jetzt hab ich die Zimmer getauscht, aber ein Problem mit dem Zugang von Kind1 und Kind2 ;(

Aber gar kein zweites Bad im DG? Wir haben jetzt eine zweite Toilette und nutzen das schon oft.
ich kann Max noch eine Dusche ins EG machen, da jetzt das kleine Klo größer geworden ist.

Grundriss eines Stockwerks mit Schlafzimmer, Ankleide, Flur, Bad und zwei Kinderzimmern
H
haydee
08.03.19 18:29
Viele Familien haben nur 1 Bad
Ein paar Schritte weiter und im EG ist noch eine Toilette

Noch seit ihr zu Zweit. Dann wird jahrelang euer Bad als Familienbad genutzt, irgendwann wird das Kinderbad genutzt, in der Phase in der Eltern kompliziert werden, muss es wieder das große sein, weil nur da ...

Gleich Große Kinderzimmer gibt keinen Streit und jüngere Kinder finden es nicht toll, das kleinere Zimmer zu haben, die gebrauchten Kleider, weniger Geschenke ist ja schon alles da
kinderzimmerkinderbadklotoilette