ᐅ Meinungen zur Grundrissplanung (Iso Ansichten, Grundrisse, Bebauungsplan)
Erstellt am: 13.08.18 21:05
D
DopaminDopamin schrieb:
Wir mögen es halt sehr großzügigGroß ist nicht gleich großzügig!
Dopamin schrieb:
Leider müssen wir nach Bebauungsplan das Dach >30° machen.
Lieber wären mir auch 22°.
Wir werden versuchen müssen die Dachneigung durch einen Antrag zu reduzieren.Update dazu: wir dürfen laut Gemeinde das Dach statt mit 30° mit 25° bauen. Das sollte die Höhe entspannen.Wir waren letzte Woche noch mal bei unserem Bauunternehmer und haben noch etwas verändert. Das Auge der Wendeltreppe ist nun kleiner (30cm), dadurch können die Kinderzimmer breiter werden. Jedoch rät unser BU zu 42,5er T9 ( evtl. sohar T8) wegen der besseren Dämmung und somit werden die Kinderzimmer wieder so groß wie vorher. Beide Kinder sollen später eine Galerie bekommen (Holz)
Nur ein Bad im OG halte ich für 4 Personen zu wenig. Ich stell mir grad vor wenn um 6:30 jeder duschen, Toilette und Zähneputzen will und zugesperrt wird dann sowieso von jedem...
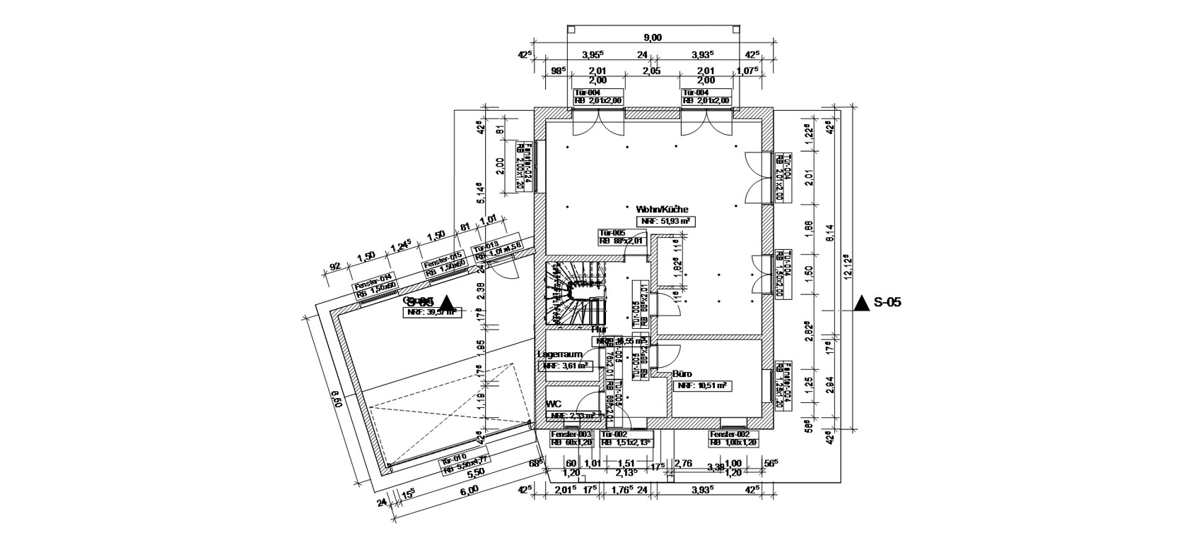
Im EG werden wir wohl mit kleinem Büro planen, da sonst der Wohn/Essbereich zu üppig wird und wir eh zu wenig Stauraum für unser Zeug haben.
Ich habe noch andere Aufteilungen im DG probiert, hab dann aber immer Probleme mit den Türen. Hat jemand hierfür einen Vorschlag?
Viel Glück Thomas


Nur ein Bad im OG halte ich für 4 Personen zu wenig. Ich stell mir grad vor wenn um 6:30 jeder duschen, Toilette und Zähneputzen will und zugesperrt wird dann sowieso von jedem...
Im EG werden wir wohl mit kleinem Büro planen, da sonst der Wohn/Essbereich zu üppig wird und wir eh zu wenig Stauraum für unser Zeug haben.
Ich habe noch andere Aufteilungen im DG probiert, hab dann aber immer Probleme mit den Türen. Hat jemand hierfür einen Vorschlag?
Viel Glück Thomas
Alles steht und fällt mit der Treppe und der Bereitschaft, ein paar Abstriche von den Qm in WZ und Schlafzimmer.
Treppe um Pimaldaumen 50cm nach planoben verschieben, so dass die Kinderzimmer gleichmäßig verteilt werden.
Unten rechts Kinderbad neben des Elternbades. Wenn man auf das T verzichtet und für sich weniger Platz zu Zweit beansprucht, funktioniert das auch. Rest wird natürlich angepasst.
Wahrscheinlich gibt es noch bessere Vorschläge, wenn man mal oben ordentlich die Räume schüttelt und weiß, wo Norden liegt.
Treppe um Pimaldaumen 50cm nach planoben verschieben, so dass die Kinderzimmer gleichmäßig verteilt werden.
Unten rechts Kinderbad neben des Elternbades. Wenn man auf das T verzichtet und für sich weniger Platz zu Zweit beansprucht, funktioniert das auch. Rest wird natürlich angepasst.
Wahrscheinlich gibt es noch bessere Vorschläge, wenn man mal oben ordentlich die Räume schüttelt und weiß, wo Norden liegt.
ypg schrieb:
Ich hab noch mal geschrollt und nachgeschaut, wo ynorden ist.Damit man Norden besser erkennt hier noch ein Bild.Außerdem habe ich für das DG selbst zwei Vorschläge gefunden. Hier fehlt halt das Kinderbad.
Bevor ich diese poste: Darf ich Grundrisse aus dem Netz hier einfach hochladen?
Ähnliche Themen