Martin-83 schrieb:
Die Küche ist uns schon wichtig, aber nicht in der Form sondern dass sie funktional ist und viel Arbeitsfläche bietet. Denke das bekommt man fast immer hin Genau das meinte ich: sogar die richtigen Flächen in der falschen Anordnung erzeugen lange Wege.
https://www.instagram.com/11antgmxde/
https://www.linkedin.com/company/bauen-jetzt/
M
Martin-8328.03.17 22:57Die vorherigen Pläne kann ich euch nicht zeigen, da bekomme ich nur noch mehr auf die Mütze...
Mit dem Eingang (oder falls nicht als Eingang sondern nur als Durchgang zur Garage) neben der Garage ist vermutlich keine kleine Diele oder kurzer Flur möglich, egal wie klein ich die Garage machen würde. Manchmal fallen mir unterwegs ein paar Ideen ein, sobald ich diese aber zu Papier bringen will stelle ich schnell fest, dass es nur Theorie war .
Finde leider auch im Internet keine Grundrisse, welche einen solchen Durchgang mit Haustüre haben. Allerdings habe ich im näheren Umkreis schon ein paar neue Häuser mit diesem gesehen. Ich werde da mal vorbeifahren, klingeln und mich vorstellen. Vielleicht darf ich ja bei manchen mal rein schauen.
Naja einen Versuch war es wert . Danke an welche jene mit konstruktiver Kritik bzw. Vorschlägen.
Macht es gut
Martin
Mit dem Eingang (oder falls nicht als Eingang sondern nur als Durchgang zur Garage) neben der Garage ist vermutlich keine kleine Diele oder kurzer Flur möglich, egal wie klein ich die Garage machen würde. Manchmal fallen mir unterwegs ein paar Ideen ein, sobald ich diese aber zu Papier bringen will stelle ich schnell fest, dass es nur Theorie war .
Finde leider auch im Internet keine Grundrisse, welche einen solchen Durchgang mit Haustüre haben. Allerdings habe ich im näheren Umkreis schon ein paar neue Häuser mit diesem gesehen. Ich werde da mal vorbeifahren, klingeln und mich vorstellen. Vielleicht darf ich ja bei manchen mal rein schauen.
Naja einen Versuch war es wert . Danke an welche jene mit konstruktiver Kritik bzw. Vorschlägen.
Macht es gut
Martin
Martin-83 schrieb:
Die vorherigen Pläne kann ich euch nicht zeigen, da bekomme ich nur noch mehr auf die Mütze...Ich glaube ja: sogar weniger.
Martin-83 schrieb:
Mit dem Eingang (oder falls nicht als Eingang sondern nur als Durchgang zur Garage) neben der Garage ist vermutlich keine kleine Diele oder kurzer Flur möglich,Nein, die Erschließung und Dimensionierung leidet hier gewiß nicht am seitlichen Eingang.
Martin-83 schrieb:
Manchmal fallen mir unterwegs ein paar Ideen ein, sobald ich diese aber zu Papier bringen will stelle ich schnell fest, dass es nur Theorie war .Doch, bring die mal buchstäblich auf PAPIER. Ohne Maßstab, sonst löst sich der Knoten nicht. Denke in Zusammenhängen, nicht in Maßketten.
Martin-83 schrieb:
Finde leider auch im Internet keine Grundrisse, welche einen solchen Durchgang mit Haustüre haben.Da brauchst Du nicht gleich das ganze Internet. Mir genügt dieses Forum, um - sogar aus dem laufenden Quartal - einen Entwurf zu finden, an den mich genau dieses Detail sofort erinnert hat: https://www.hausbau-forum.de/threads/eine-villa-für-zwei-Kinder.18543/page-2 (übrigens auch wegen der ebenso ungelenken Dimensionen). Und dann geh da mal auf Seite 1 und vergleiche den Sprung zwischen Version 1.0 und 2.0 mit Eurer Evolution - machts jetzt "klick" ?
https://www.instagram.com/11antgmxde/
https://www.linkedin.com/company/bauen-jetzt/
S
Schnuckline31.03.17 15:03Ich finde den Grundriss irgendwie nicht durchdacht. Da müsst ihr unbedingt noch dran arbeiten, aber das wird euch ein Architekt auch sagen. Zieht ihn zu rate.
UG:
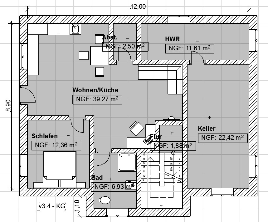
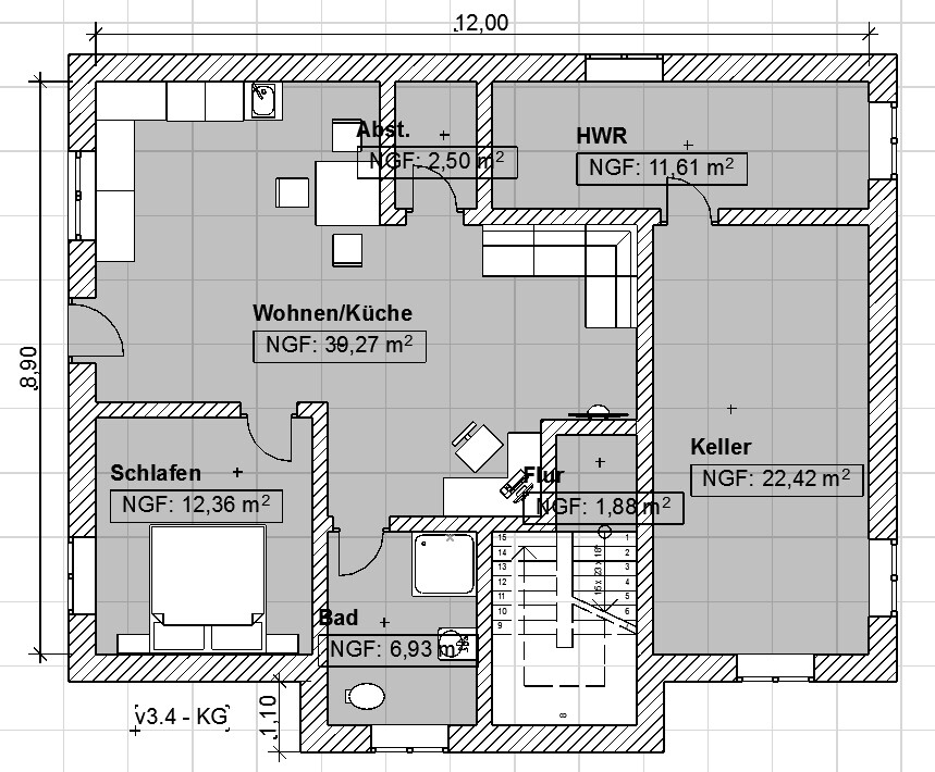
In eurem Bereich muss man erst durch den ganzen Abstellraum durch um an die Wäsche (ich schätze mal Waschmaschine und Trockner befinden sich im Hauswirtschaftsraum) zu gelangen. Und das bewaffnet mit Wäschekörben. Der Weg ist ungünstig und viel zu lang für einen Raum den man so häufig braucht. In der Einliegerwohnung hat man im Schlafzimmer gar keine Möglichkeit einen Kleiderschrank aufzustellen. Es bleibt ja nur die Wand wo sich das Fenster befindet oder die Wand rechts daneben. Und dann kommt man gar nicht mehr an die andere Seite des Bettes. Und wo soll sich die Küchenzeile befinden? Das Wohnzimmer hat eine dermaßen komische Form, dass man fast gezwungen ist was in die Laufwege zu stellen, aber machbar wäre es.
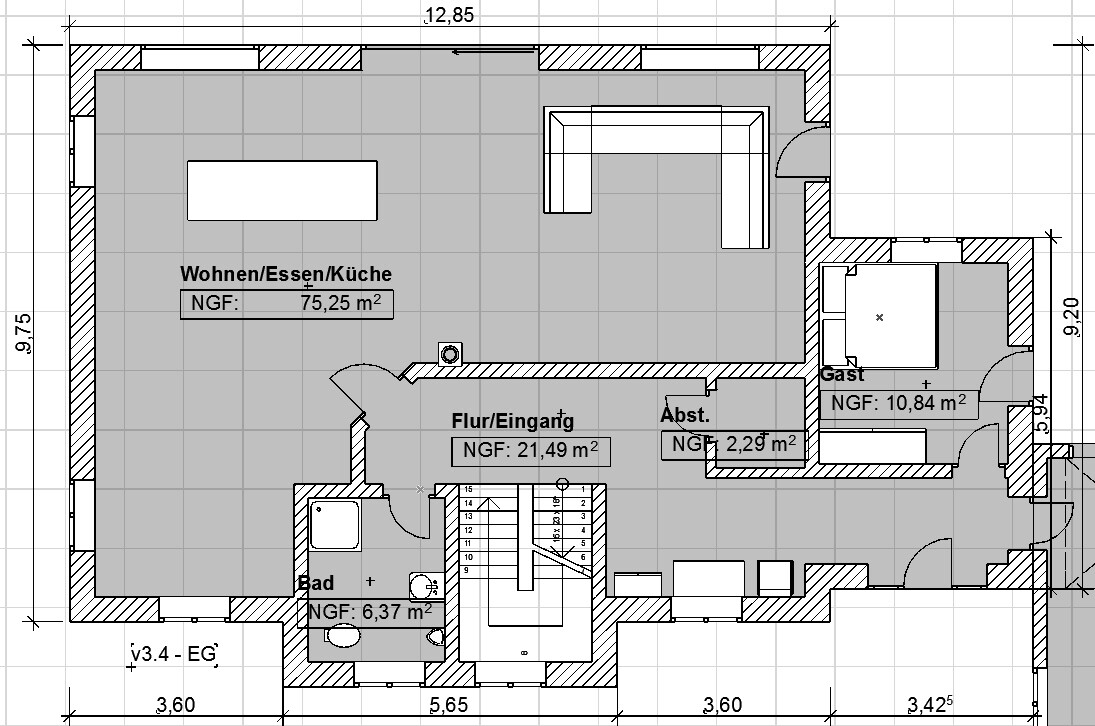
EG: Der Wohn und und Essbereich ist wirklich XXL Denke Küche und Essbereich wird so schön werden, aber der Wohnbereich passt so nicht. Ich geh davon aus, dass an der Wand gegenüber vom sofa ein Fernseher stehen wird. Da sich hinter dem Sofa ein Fenster befindet wird es euch die ganze Zeit reinblenden. Auch ist der Bereich zu schmal. Das sind ja gerade mal 4,6 m. Dann rückt ihr noch das Sofa einen Meter vor, bleiben noch 3,6 Meter. Das ist viel zu nah an der TV-Wand. Stell da noch einen kleinen Tisch vor das Sofa und das wird total zusammengedrückt aussehen. Und ich kanns nicht richtig erkennen aber der Bereich für das WC scheint mir viel zu eng. Plane hier die WC breite (meist etwa 40 cm) plus links und rechts mindestens 25 cm Freiheit. Das macht knapp 90 cm.
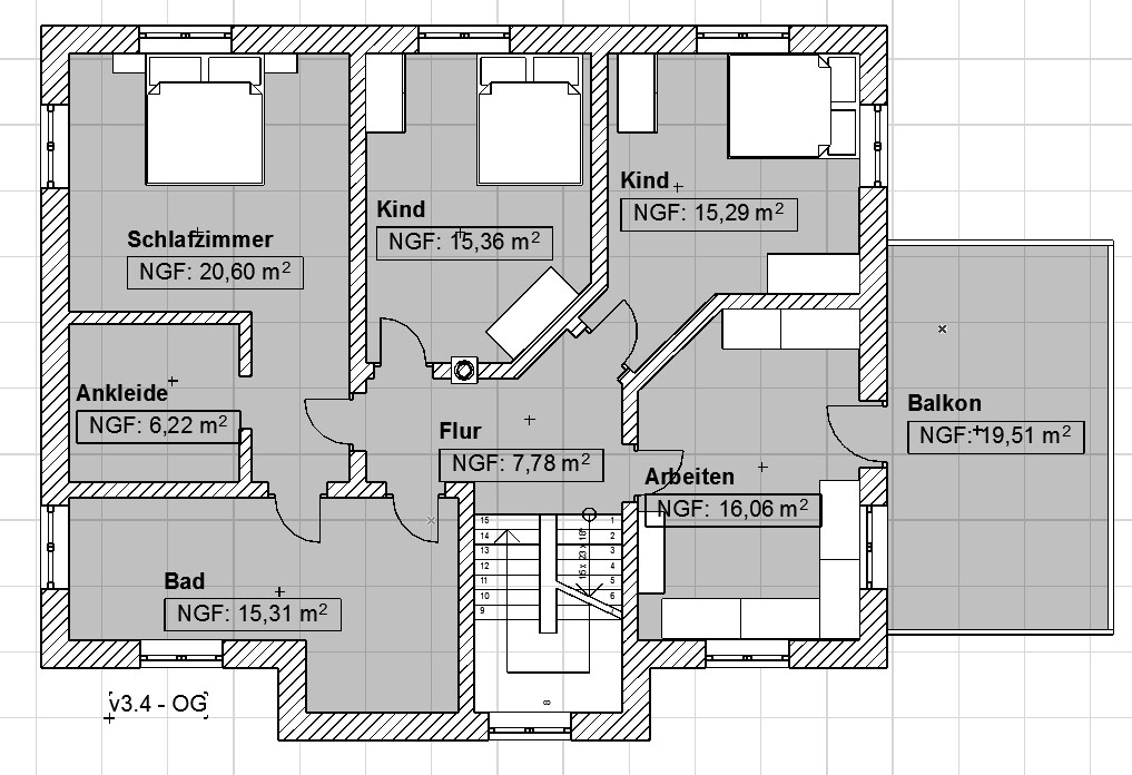
OG: Die Ankleide ist definitiv zu klein. Schränke mit Hängekleidung sind etwa 60 cm tief und Legekleidung etwa 40 cm. Da passt kaum etwas rein und man wird sich da kaum bewegen können. Ein Bad mit knapp 20 qm ist schon recht groß aber ich finde das schön Ich mag große Bäder. Dann will ich nur noch eine Sache anmerken: dafür dass das Haus so großzügig ist sind die Kinderzimmer mickrig. Das werden die wichtigsten Räume für die wichtigsten Menschen. Hätte ich so viel Raum zur Verfügung gehabt, hätte ich die Kinderzimmer so groß wie möglich und den Rest so klein wie möglich gemacht. Aber das müsst Ihr natürlich selbst wissen
UG:
In eurem Bereich muss man erst durch den ganzen Abstellraum durch um an die Wäsche (ich schätze mal Waschmaschine und Trockner befinden sich im Hauswirtschaftsraum) zu gelangen. Und das bewaffnet mit Wäschekörben. Der Weg ist ungünstig und viel zu lang für einen Raum den man so häufig braucht. In der Einliegerwohnung hat man im Schlafzimmer gar keine Möglichkeit einen Kleiderschrank aufzustellen. Es bleibt ja nur die Wand wo sich das Fenster befindet oder die Wand rechts daneben. Und dann kommt man gar nicht mehr an die andere Seite des Bettes. Und wo soll sich die Küchenzeile befinden? Das Wohnzimmer hat eine dermaßen komische Form, dass man fast gezwungen ist was in die Laufwege zu stellen, aber machbar wäre es.
EG: Der Wohn und und Essbereich ist wirklich XXL Denke Küche und Essbereich wird so schön werden, aber der Wohnbereich passt so nicht. Ich geh davon aus, dass an der Wand gegenüber vom sofa ein Fernseher stehen wird. Da sich hinter dem Sofa ein Fenster befindet wird es euch die ganze Zeit reinblenden. Auch ist der Bereich zu schmal. Das sind ja gerade mal 4,6 m. Dann rückt ihr noch das Sofa einen Meter vor, bleiben noch 3,6 Meter. Das ist viel zu nah an der TV-Wand. Stell da noch einen kleinen Tisch vor das Sofa und das wird total zusammengedrückt aussehen. Und ich kanns nicht richtig erkennen aber der Bereich für das WC scheint mir viel zu eng. Plane hier die WC breite (meist etwa 40 cm) plus links und rechts mindestens 25 cm Freiheit. Das macht knapp 90 cm.
OG: Die Ankleide ist definitiv zu klein. Schränke mit Hängekleidung sind etwa 60 cm tief und Legekleidung etwa 40 cm. Da passt kaum etwas rein und man wird sich da kaum bewegen können. Ein Bad mit knapp 20 qm ist schon recht groß aber ich finde das schön Ich mag große Bäder. Dann will ich nur noch eine Sache anmerken: dafür dass das Haus so großzügig ist sind die Kinderzimmer mickrig. Das werden die wichtigsten Räume für die wichtigsten Menschen. Hätte ich so viel Raum zur Verfügung gehabt, hätte ich die Kinderzimmer so groß wie möglich und den Rest so klein wie möglich gemacht. Aber das müsst Ihr natürlich selbst wissen
M
Martin-8302.04.17 18:59Hallo noch mal,
wir haben uns noch mal etwas hingesetzt und herum probiert auch bezüglich der Ratschläge (Danke auch noch an Schnuckline für die netten Hinweise ) aus dem Beitrag. Auch haben wir versucht, überall mal paar Möbel (zumindest Kästchen in der ungefähren Größe) zu stellen.
UG: Der Einwand mit der Waschmaschine stimmt auf jeden Fall, der Weg ist recht lang. Wir überlegen allerdings, ob wir hierfür nicht einen anderen Platz finden würden oder diese dann in den Keller nach der Treppe rechts verfrachten. In der EWL ist die Küche links oben in die Ecke gewandert und die Couch mit TV in die Mitte. Das Schlafzimmer ist nun neben dem Bad, damit bei heftigem Druck auf der Blase nicht durch die komplette Wohnung gelaufen werden muss . Abstellkammer ist klein, wäre noch etwas größer möglich oder gleich ganz weglassen und lieber einen Schrank mehr. Zugang zum Hauswirtschaftsraum, Keller oder Flur für die Wohnung gibt es nicht. Hier bin ich noch bei der Klärung mit der KfW, denn da ist die Lage bezüglich so einer Türe noch nicht ganz klar...
EG: Wir sind jetzt auf das ganze Haus gesehen über 20 Quadratmeter kleiner geworden. Den Eingang haben wir etwas umgestaltet und das Gästezimmer dahinter gelegt. Wenn man rein kommt nach links steht die Garderobe und gegenüber die Abstellkammer. Ich denke das sollte für einen kleine Gefrier-Kühl-Kombination, ein kleines Regal und den Staubsauger und Putzutensilien ausreichend sein. Das Bad ist nun größer, allerdings gefällt uns das Eck über dem Bad zum großen Wohn-Ess-Bereich noch nicht. Hier war noch nicht der richtige Einfall da . Die Fenster hinter der Couch sind starre Fenster, wobei wir da vermutlich trotzdem Terrassentüren nehmen werden, um auch mal öffnen zu können. Diese beiden Türen werden aber nicht als Durchgang verwendet. So könnte man z.B. mal den Rollo von innen sauber machen, wenn das notwendig sein sollte. Die rechte Türe in den Garten ist noch nicht sicher.
OG: Aus dem Eingang haben wir einen Balkon gemacht, der fetzt . Wir hatten zwar beide die Meinung, dass wir oben keinen Balkon brauchen (wann nutzt man den wirklich oben), aber bevor wir da ein Dach darauf machen, können wir auch einen Balkon daraus machen. Die Kinderzimmer sind jetzt fast gleich groß, das Arbeitszimmer ist kleiner geworden. Allerdings sind wir der Meinung, selbst wenn wir zwei ungleiche Kinderzimmer hätten, dann würde einfach das ältere Kind das größere Zimmer bekommen. So war das bei uns früher auch und ich habe meine Eltern deswegen nicht vermöbelt . Die Ankleide ist größer als vorher, das Bad etwas kleiner (Außenmaße des Hauses sind insgesamt kleiner geworden).
Grundsätzlich stellen wir uns noch folgende Fragen:
- Es wird keinen direkten Zugang von außen zum Garten geben. Man muss entweder durch das Haus oder durch die Garage. Sind uns noch nicht klar, ob das gut oder schlecht ist .
- Waschmaschine oben im Bad, wo eben auch die ganze Wäsche anfällt sind wir uns auch noch nicht sicher. Es wird aber kein Kinderbad geben, das sehen wir als nicht nötig an. Ein extra Raum oben für die Wäsche wäre möglich, aber auch hier nicht klar, wo der hin sollte.
Für Anregungen und Kritik sind wir offen (auch für scharfe ).
Gruß
Martin



wir haben uns noch mal etwas hingesetzt und herum probiert auch bezüglich der Ratschläge (Danke auch noch an Schnuckline für die netten Hinweise ) aus dem Beitrag. Auch haben wir versucht, überall mal paar Möbel (zumindest Kästchen in der ungefähren Größe) zu stellen.
UG: Der Einwand mit der Waschmaschine stimmt auf jeden Fall, der Weg ist recht lang. Wir überlegen allerdings, ob wir hierfür nicht einen anderen Platz finden würden oder diese dann in den Keller nach der Treppe rechts verfrachten. In der EWL ist die Küche links oben in die Ecke gewandert und die Couch mit TV in die Mitte. Das Schlafzimmer ist nun neben dem Bad, damit bei heftigem Druck auf der Blase nicht durch die komplette Wohnung gelaufen werden muss . Abstellkammer ist klein, wäre noch etwas größer möglich oder gleich ganz weglassen und lieber einen Schrank mehr. Zugang zum Hauswirtschaftsraum, Keller oder Flur für die Wohnung gibt es nicht. Hier bin ich noch bei der Klärung mit der KfW, denn da ist die Lage bezüglich so einer Türe noch nicht ganz klar...
EG: Wir sind jetzt auf das ganze Haus gesehen über 20 Quadratmeter kleiner geworden. Den Eingang haben wir etwas umgestaltet und das Gästezimmer dahinter gelegt. Wenn man rein kommt nach links steht die Garderobe und gegenüber die Abstellkammer. Ich denke das sollte für einen kleine Gefrier-Kühl-Kombination, ein kleines Regal und den Staubsauger und Putzutensilien ausreichend sein. Das Bad ist nun größer, allerdings gefällt uns das Eck über dem Bad zum großen Wohn-Ess-Bereich noch nicht. Hier war noch nicht der richtige Einfall da . Die Fenster hinter der Couch sind starre Fenster, wobei wir da vermutlich trotzdem Terrassentüren nehmen werden, um auch mal öffnen zu können. Diese beiden Türen werden aber nicht als Durchgang verwendet. So könnte man z.B. mal den Rollo von innen sauber machen, wenn das notwendig sein sollte. Die rechte Türe in den Garten ist noch nicht sicher.
OG: Aus dem Eingang haben wir einen Balkon gemacht, der fetzt . Wir hatten zwar beide die Meinung, dass wir oben keinen Balkon brauchen (wann nutzt man den wirklich oben), aber bevor wir da ein Dach darauf machen, können wir auch einen Balkon daraus machen. Die Kinderzimmer sind jetzt fast gleich groß, das Arbeitszimmer ist kleiner geworden. Allerdings sind wir der Meinung, selbst wenn wir zwei ungleiche Kinderzimmer hätten, dann würde einfach das ältere Kind das größere Zimmer bekommen. So war das bei uns früher auch und ich habe meine Eltern deswegen nicht vermöbelt . Die Ankleide ist größer als vorher, das Bad etwas kleiner (Außenmaße des Hauses sind insgesamt kleiner geworden).
Grundsätzlich stellen wir uns noch folgende Fragen:
- Es wird keinen direkten Zugang von außen zum Garten geben. Man muss entweder durch das Haus oder durch die Garage. Sind uns noch nicht klar, ob das gut oder schlecht ist .
- Waschmaschine oben im Bad, wo eben auch die ganze Wäsche anfällt sind wir uns auch noch nicht sicher. Es wird aber kein Kinderbad geben, das sehen wir als nicht nötig an. Ein extra Raum oben für die Wäsche wäre möglich, aber auch hier nicht klar, wo der hin sollte.
Für Anregungen und Kritik sind wir offen (auch für scharfe ).
Gruß
Martin
Ich wollt mich ja heraushalten, aber ich weise mal darauf hin, dass der lange Flur im ersten Entwurf jetzt völlig verschlimmbessert wurde.
Der ist ein Slalomgang geworden. Ich verstehe auch nicht, warum der Gast zum Bad gefühlte 12 Meter gehen soll.
Insgesamt entsteht die Problematik, weil ihr ohne Fachmann an die Planung geht.
Sicherlich macht ihr Euch Gedanken - es ist ja nicht so, dass ihr die einzigen seid, die individuelle Wünsche an ihr Haus und dessen Planung haben - aber ihr geht mit dem langen Flur standardisiert und mit einem kleinen Halbwissen an die Planung ran.*
Ich würde mal alles zerknüllen und neu anfangen - bzw natürlich mal die Anforderungen aufschreiben und mit der Liste an einen Architekten rantreten.
Anforderungen, die _ihr_ habt. Nicht die Anforderung, die vom Grundstück abhängig sind, denn dazu ist der Architekt da.
Mir war so, als hättet ihr einen Planer? Entweder er ist "nur" angestellt oder ihr habt ihm den Plan vorgezeichnet, den er ins Reine gezeichnet hat.
*Beispiel: in eurer zweiten Zeichnung wäre für kurze Wege der Hauseingang naheliegend, ihn planrechts neben die Treppe zu legen. Damit spart man sich schon eine Ecke vom Zickzackgang durchs Haus
Gruß, Yvonne
Der ist ein Slalomgang geworden. Ich verstehe auch nicht, warum der Gast zum Bad gefühlte 12 Meter gehen soll.
Insgesamt entsteht die Problematik, weil ihr ohne Fachmann an die Planung geht.
Sicherlich macht ihr Euch Gedanken - es ist ja nicht so, dass ihr die einzigen seid, die individuelle Wünsche an ihr Haus und dessen Planung haben - aber ihr geht mit dem langen Flur standardisiert und mit einem kleinen Halbwissen an die Planung ran.*
Ich würde mal alles zerknüllen und neu anfangen - bzw natürlich mal die Anforderungen aufschreiben und mit der Liste an einen Architekten rantreten.
Anforderungen, die _ihr_ habt. Nicht die Anforderung, die vom Grundstück abhängig sind, denn dazu ist der Architekt da.
Mir war so, als hättet ihr einen Planer? Entweder er ist "nur" angestellt oder ihr habt ihm den Plan vorgezeichnet, den er ins Reine gezeichnet hat.
*Beispiel: in eurer zweiten Zeichnung wäre für kurze Wege der Hauseingang naheliegend, ihn planrechts neben die Treppe zu legen. Damit spart man sich schon eine Ecke vom Zickzackgang durchs Haus
Gruß, Yvonne
Ähnliche Themen