W
Watcher7811.09.15 18:57Hallo zusammen,
wir haben nun endlich unsere Außenansichten zu unserem geplanten Haus bekommen ( anderer Thread https://www.hausbau-forum.de/threads/Grundriss-mit-kg-auf-hanggrundstück.13229/ ) . Auch wurde der Grundriss ( Nord Ost gerichtet ) noch ein wenig modifiziert. Ich habe einmal die Ansichten vom Architekten und einmal die von überarbeiteten Ansichten (Fensteranordnung) eingestellt, natürlich passen diese nicht mit dem Grundriss von der Größe überein.
Nach vorne zum Süd Westen ist noch eine Gaube (Flachdachgiebel) geplant und es sollen dann beide Kinderzimmer nach Süd West ausgerichtet werden.
Das smale Fenster im KG an der Seite soll eine Tür sein.
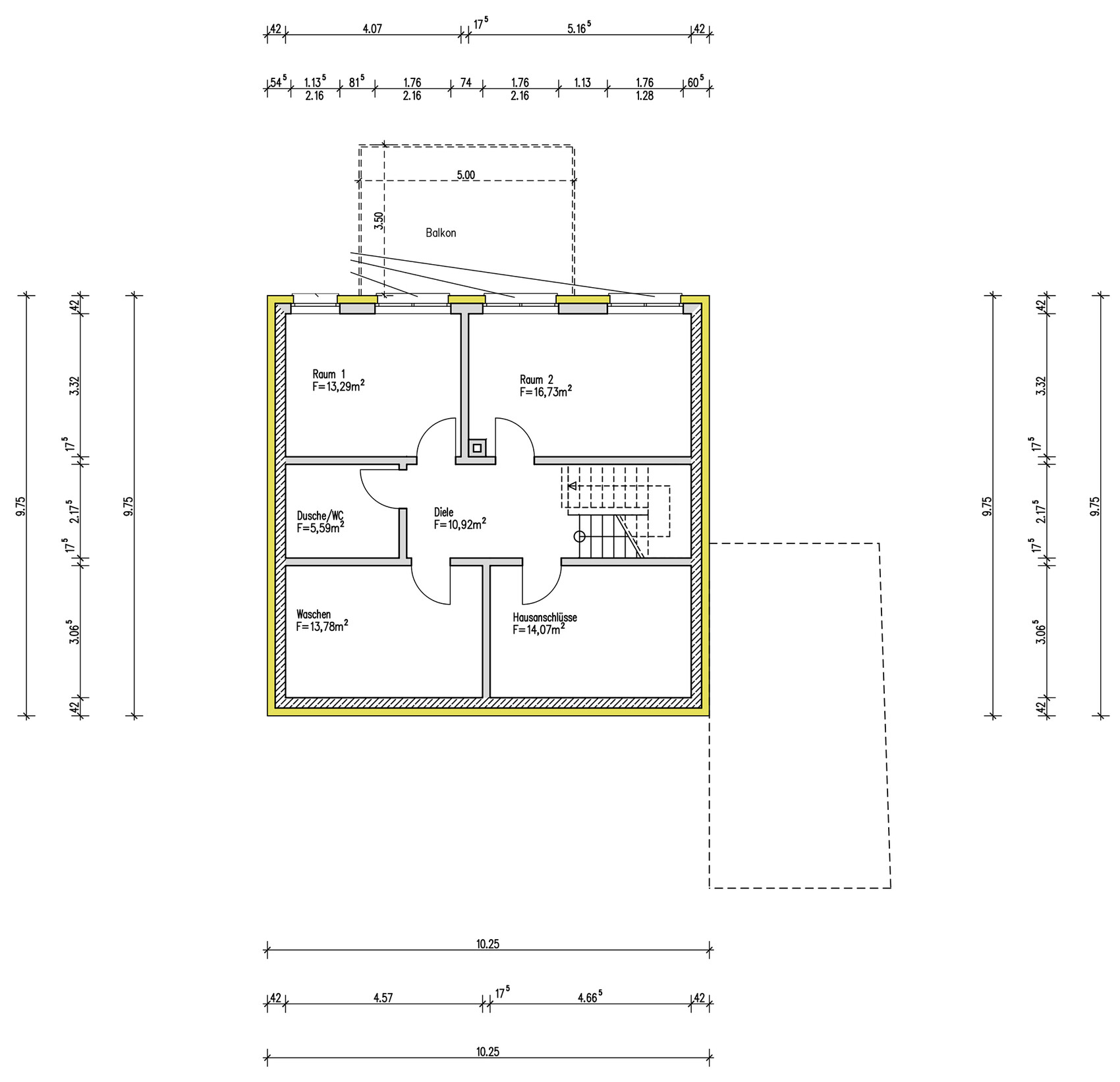
Da es sich um ein Hanggrundstück handelt was er eine Herausforderung für den Architekt, sodaß es mit Garage auf einer Ebene passt und man nicht runter fahren muss in das Gelände, sowie das der Keller trotz großer Fenster nicht als Vollgeschoss gerechnet wird.
Was wir am Grundriss auszusetzen haben:
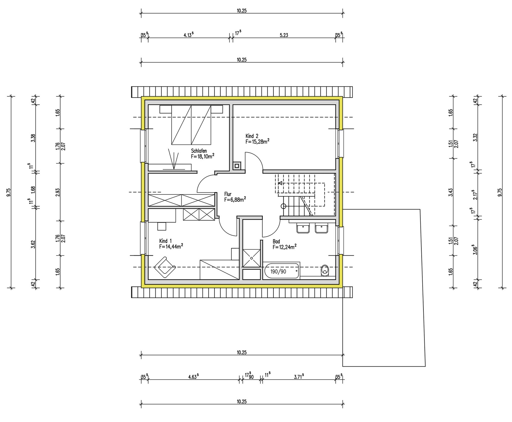
OG
Das OG gefällt noch nicht so richtig. Wie gesagt es soll noch Badezimmer mit Kinderzimmer getauscht werden und die Zimmer noch ein wenig von m² angepasst werden. Was meint ihr im allgemeinen zu den Zimmer im OG. Sie kommen uns ein wenig zu reckteckig vor. Was meint Ihr ?
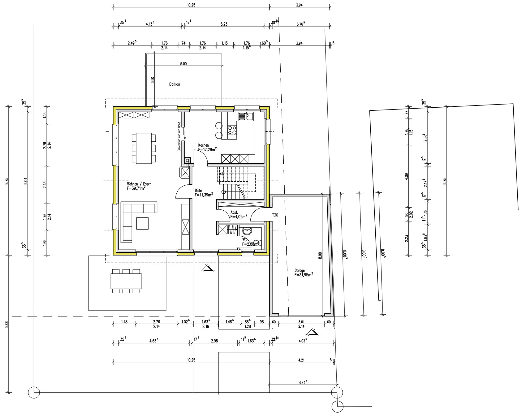
EG
Der Abstellraum bzw. Raum mit Durchgang zur Garage. In dem wird es schwer sein dort was zu lassen. Dieser ist geplant für Putzzeugs, Staubsauger etc. Sind nicht sicher ob wir den Raum wirklich mit Durchgang machen sollen.
Fenster nach vorne im WHZ. Vorlauf. sollte man dort 2 kleinere Fenster machen. Von dort aus ist auch der Ausgang zur vordereren Terrasse geplant.
Wir freuen uns über Rückmeldungen, Kritik bzw. was man anders machen sollte.







wir haben nun endlich unsere Außenansichten zu unserem geplanten Haus bekommen ( anderer Thread https://www.hausbau-forum.de/threads/Grundriss-mit-kg-auf-hanggrundstück.13229/ ) . Auch wurde der Grundriss ( Nord Ost gerichtet ) noch ein wenig modifiziert. Ich habe einmal die Ansichten vom Architekten und einmal die von überarbeiteten Ansichten (Fensteranordnung) eingestellt, natürlich passen diese nicht mit dem Grundriss von der Größe überein.
Nach vorne zum Süd Westen ist noch eine Gaube (Flachdachgiebel) geplant und es sollen dann beide Kinderzimmer nach Süd West ausgerichtet werden.
Das smale Fenster im KG an der Seite soll eine Tür sein.
Da es sich um ein Hanggrundstück handelt was er eine Herausforderung für den Architekt, sodaß es mit Garage auf einer Ebene passt und man nicht runter fahren muss in das Gelände, sowie das der Keller trotz großer Fenster nicht als Vollgeschoss gerechnet wird.
Was wir am Grundriss auszusetzen haben:
OG
Das OG gefällt noch nicht so richtig. Wie gesagt es soll noch Badezimmer mit Kinderzimmer getauscht werden und die Zimmer noch ein wenig von m² angepasst werden. Was meint ihr im allgemeinen zu den Zimmer im OG. Sie kommen uns ein wenig zu reckteckig vor. Was meint Ihr ?
EG
Der Abstellraum bzw. Raum mit Durchgang zur Garage. In dem wird es schwer sein dort was zu lassen. Dieser ist geplant für Putzzeugs, Staubsauger etc. Sind nicht sicher ob wir den Raum wirklich mit Durchgang machen sollen.
Fenster nach vorne im WHZ. Vorlauf. sollte man dort 2 kleinere Fenster machen. Von dort aus ist auch der Ausgang zur vordereren Terrasse geplant.
Wir freuen uns über Rückmeldungen, Kritik bzw. was man anders machen sollte.
Ich finde die Ansichten schick! Errinert mich an unser Haus! (:
Aber ich persönlich würde das Haus im EG doch um 90Grad drehen und den Eingang zwischen Haus und Garage planen. Vielleicht auch von vorn, aber halt in so einem Anbau zwischen den Gebäuden. Wohnzimmer dann noch vorne, Küche hinten links in der Ecke und Gäste-WC sowie Abstellraum hinten rechts in der Ecke. Das wäre meine Vorstellung vom einem perfekt ausgerichten Haus. Oben würde ich es auch so machen wie du beschrieben hast.
Aber ich persönlich würde das Haus im EG doch um 90Grad drehen und den Eingang zwischen Haus und Garage planen. Vielleicht auch von vorn, aber halt in so einem Anbau zwischen den Gebäuden. Wohnzimmer dann noch vorne, Küche hinten links in der Ecke und Gäste-WC sowie Abstellraum hinten rechts in der Ecke. Das wäre meine Vorstellung vom einem perfekt ausgerichten Haus. Oben würde ich es auch so machen wie du beschrieben hast.
T
toxicmolotof11.09.15 22:16Die Ankleide im OG verschenkt Raum und ist nur einseitig nutzbar.
W
Watcher7812.09.15 08:37Kisska ihr habt auch ein feines Haus.
Die Aufteilung unten haben extra so gewählt. Küche extra nach hinten zum großen Garten und das Esszimmer bekommt den Panoramablick.
Man könnte überlegen Eingang rechts zu machen, allerdings hätte man dann nur einen Abstand von 1,6 von Garage zu Haus.
Ansonsten sind die Zimmer so ganz gut geschnitten ?
Die Aufteilung unten haben extra so gewählt. Küche extra nach hinten zum großen Garten und das Esszimmer bekommt den Panoramablick.
Man könnte überlegen Eingang rechts zu machen, allerdings hätte man dann nur einen Abstand von 1,6 von Garage zu Haus.
Ansonsten sind die Zimmer so ganz gut geschnitten ?
Ähnliche Themen