Hausbau - Ratgeber
Bauherrenhilfe
- Bauherrenhilfe vor Vertragsabschluss
-- Warum einen unabhängigen Baubetreuer?
-- Vertragsgrundlagen
-- Bausumme
-- Zahlungsplan zur Kostenkontrolle
-- Pflichten des Bauherren vor Vertragsabschluss
-- Unterlagen beim Hausbau vor Vertragsabschluss
- Bauherrenhilfe nach Vertragsabschluss
-- Bauantrag bei Behörden
-- Bau-Genehmigungsverfahren bei Baubehörden
-- Bauspezifische Versicherungen
-- Bauzeitenplan
-- Baubeginn - die Letzten Pflichten der Bauherrschaft
- Bauherrenhilfe während der Bauzeit
- Gewährleistungsansprüche
- Bauabnahme
Baufinanzierung
- Baufinanzierung - Allgemeine Fragen
- Kreditarten
- Kredit-Konditionen
- Bausparen
- Staatliche Förderungen
- Verkehrswert
- Haushaltsrechnung und Bonität
Hausbau Planung
- Haustypen
- Hausbau Vorbereitungsarbeiten
- Das Baugrundstück
- Baugrund beim Hausbau
- Baurecht
- Gebäudeschutz
- Erdarbeiten und Wasserhaltung
- Stützmauern
- Einfriedung
- Untergeschoss
- Kanalisation
- Tragende Elemente
- Nichttragende Innenwände
- Fundation / Fundament
- Deckenkonstruktionen
- Dächer
- Kaminanlagen
- Treppen Rampen Leitern
- Dachbeläge und Spengler
- Fenster
- Sonnen und Wetterschutz
- Aussenputze
- Einbauten, Küchen, Türen
- Bodenbeläge und Unterlagsböden
- Parkett
- Gips, Wand, Decke
Haustechnik und Energie
- Heiztechnik
- Lüftung und Klimatechnik
- Sanitärtechnik
- Elektrotechnik
- Erneuerbare Energie
Whirlpools / Jacuzzi
Hausbau Magazin
- Baufinanzierung trotz Krise?
- Das Blockhaus
- Moderne Dämmstoffe im Vergleich
- Erker Vor- und Nachteile
- Glasflächen beim Hausbau
- Günstig ein Haus Bauen
- Mediterraner Hausbaustil
- Mehrgenerationenhaus
- Moderne Architektur
- Gartengestaltung leicht gemacht
- Traditioneller Ziegelbau
- Villa als höchster Traum
- Im Eigenheim Ruhestand geniessen
- Altbau sanieren
- Kauf einer Holzgarage
- Immobilienmakler
- Arbeitshandschuhe für den Winter
- Zuhause verschönern
- Outdoor-Plissees
- Schlafzimmer planen
- Terrassenüberdachung
- Wohngebäudeversicherung
- Zaunarten und Eigenschaften
- Hauseingang gestalten
- Der perfekte Grundriss
- Sparsamer heizen im Altbau
- Einfamilienhaus smart finanzieren
- Planung einer PV-Anlage
- Neues Haus
- Immobilienfinanzierung
- Installation einer Photovoltaikanlage
- Asbest erkennen und entfernen
- Gartenpflege im Frühling – worauf achten
- Sauna im Fokus - Wellness zuhause
- Erfolgreich vermieten
- Die perfekte Winterbekleidung
- Das Niedrigenergiehaus
- Der April und seine Stürme
- Architektonische Vielfalt
- Ökologisch und nachhaltig bauen
- Das perfekte Schlafzimmer
- Nachhaltige Energieversorgung
- Zukunftsorientiert bauen
- Nachhaltigkeit beim Hausbau
- Tiny Houses
- Wärmepumpen als nachhaltige Heizvariante
- Maßgeschneiderten Kleiderschrank
- Der richtige Baukredit
- Ratgeber für erfolgreichen Hausbau
- Haus als Altersvorsorge
Do-it-yourself Anleitungen
- Verlegeanleitung für Bodenbeläge und Parkett
- Bodenbeläge und Parkett reinigen und pflegen
- Malerarbeiten am Haus
- Garten Tipps
- Umzug und Reinigung

ᐅ Meinungen zum Haus-Grundriss erwünscht

Erstellt am: 26.03.17 18:49
M
Martin-83
B
bierkuh83
02.04.17 23:05
Hallo Martin, es wird wirklich Zeit, dass ihr euch mal von einem Profi im 4(6)-Augen-Gespräch die "Schwachstellen" aufzeigen lasst und ihn/sie dann noch ein paar Entwurfsvarianten machen lasst.

Vergleich noch mal die Lichtschachtfenster im UG mit der Ebene drüber.. auch wird dort kaum Licht ankommen...
kbt0902.04.17 23:09
Auch der Wohnbereich im UG ist ein dunkles Loch .. das bringt doch keinen Spaß.
Y
ypg
02.04.17 23:28
kbt09 schrieb:
Auch der Wohnbereich im UG ist ein dunkles Loch .. das bringt doch keinen Spaß.

Der Raum wäre mit den vorhandenen Fenster gar nicht als Wohnraum zugelassen. Da fehlt in jeder Ecke Tageslicht.
Schrankfläche fehlt auch immer noch im Schlafzimmer UG, Wäsche wird dort wo getrocknet? Was ist mit der Statik? Gemütlich ist auch etwas anderes.

Im EG sehe ich keine Fläche für Garderobe (Schuhe und Schuhe für 4 Personen), gerade mal Gästegarderobenschränke... die Breite des Flures im Eingang ist jetzt auch nicht gerade einladend.
Im OG gibt es zu viel verschenkte Fläche (im Schlafzimmer).
Ein Balkon kostet mehr als ein Flachdach.
Beim Bad muss man sich die Frage stellen, wie es möbliert werden soll, aber da entscheiden die Maße, die zur Zeit nicht interessant sind.



Gruß, Yvonne
M
Martin-83
03.04.17 22:47
Hi ,

sorry, aber irgendwie spornt mich das eher an als das es mich abschreckt was Ihr da schreibt (sicher mit Recht) . Sollte es jemand stören, dann lass ich das Thema in Frieden ruhen .

Gruß
Martin

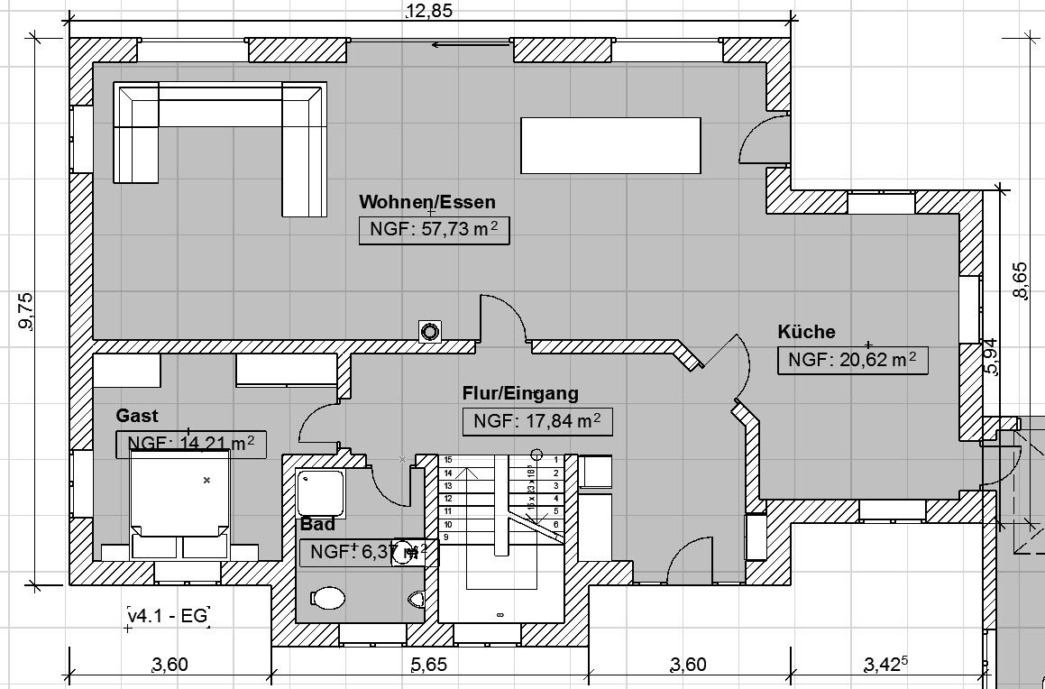
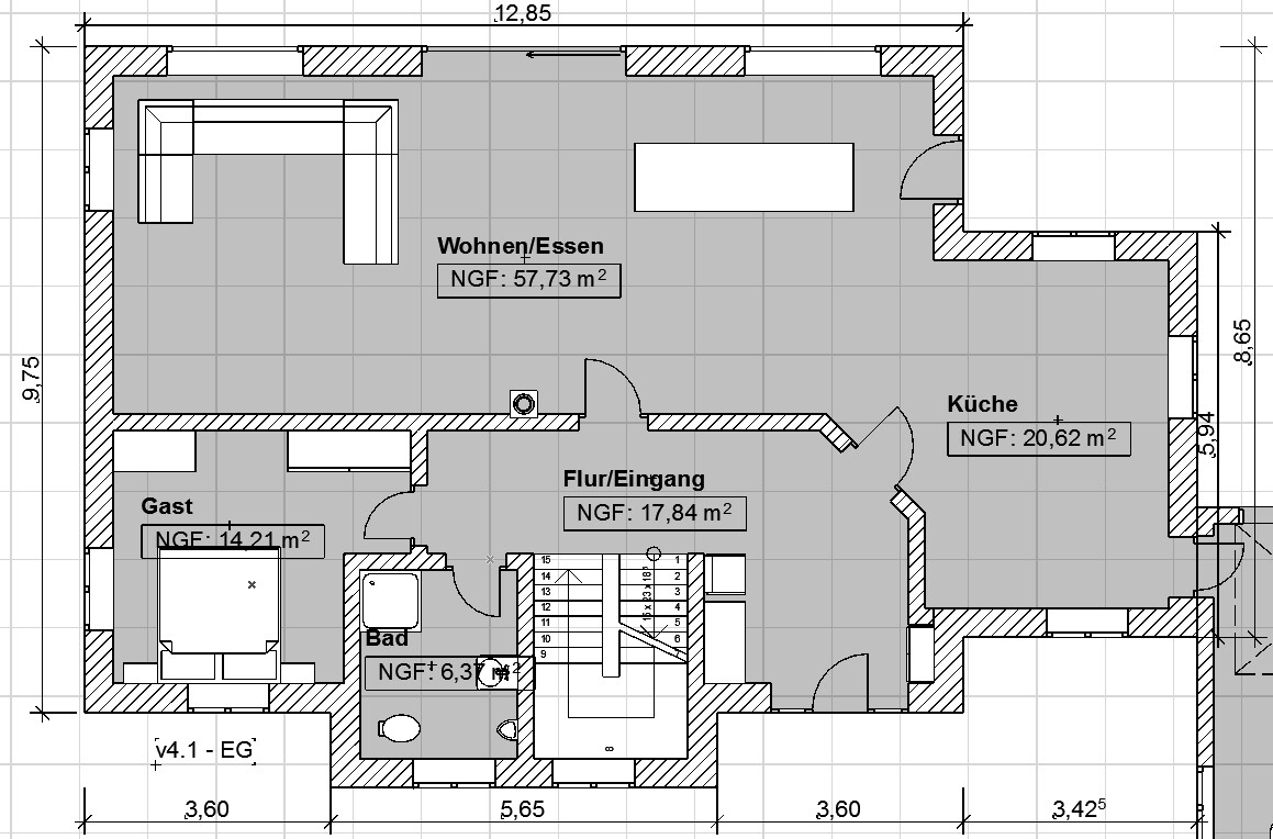
Grundriss eines Apartments mit Wohn-/Essbereich, Küche, Gast, Bad und Flur/Eingang.


Grundriss OG mit Schlafzimmer, Ankleide, Bad, Flur, Arbeiten, 2x Kinderzimmer, Balkon
Y
ypg
03.04.17 23:03
Mal abgesehen, dass Du von Deinem Raster nicht wegkommst... Zieh doch jetzt mal die Garage die 3,42 m nach planlinks und verkleinere somit die Küche. Dann noch die 45 Gradwand begradigen...


Gruß, Yvonne

Edit: ändert aber nichts an der Sache, dass das Wohnzimmer im UG nicht als Wohnraum anerkannt wird ( und somit keine KfW-Leistungen fließen werden)
kbt0904.04.17 07:35
Möbliere mal die Küche ...
Die Ankleide fasst gerade 400 cm Schrank
Beschrifte mal die Fenster wg. Brüstungshöhen, was du jeweils so denkst.

Und, bitte immer einen Nordpfeil mit auf den Grundriss .. man hat schließlich nicht jeden Lageplan immer so im Kopf. Wobei jeweils eine zugehörige Skizze mit kompletter Lage auf dem Grundstück auch nicht schlecht wäre (Erkennen Terrassen, Freiraum usw.)
fensterwohnraumschlafzimmerküche