HB-NH2015 schrieb:
Diese Wand können wir aber nach Bauantrag auch noch während der Bemusterung kürzen oder verlängern.Das würde ich mir vorab schriftlich bestätigen lassen. Wenn die Wand nämlich mal in der Statik mit berücksichtigt wurde, ist die nicht mehr so einfach zu kürzen.HB-NH2015 schrieb:
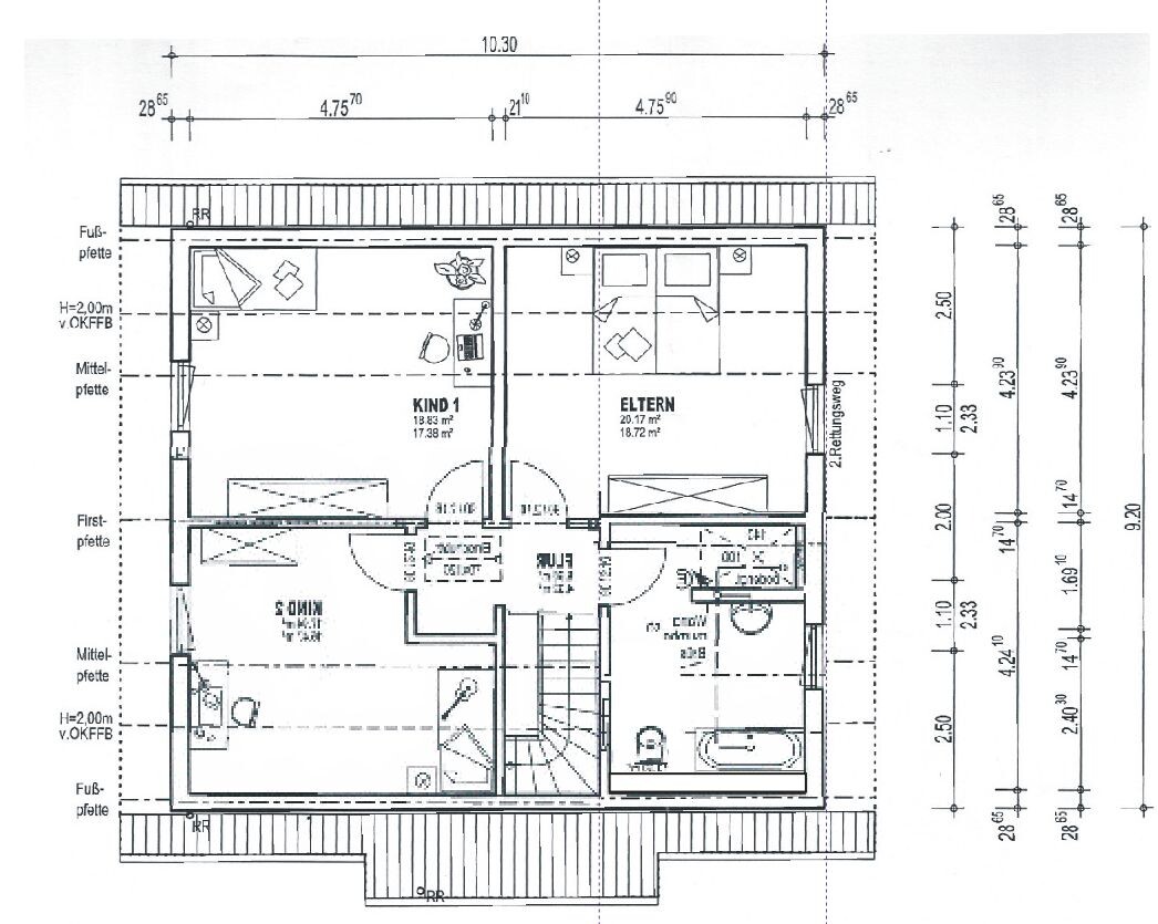
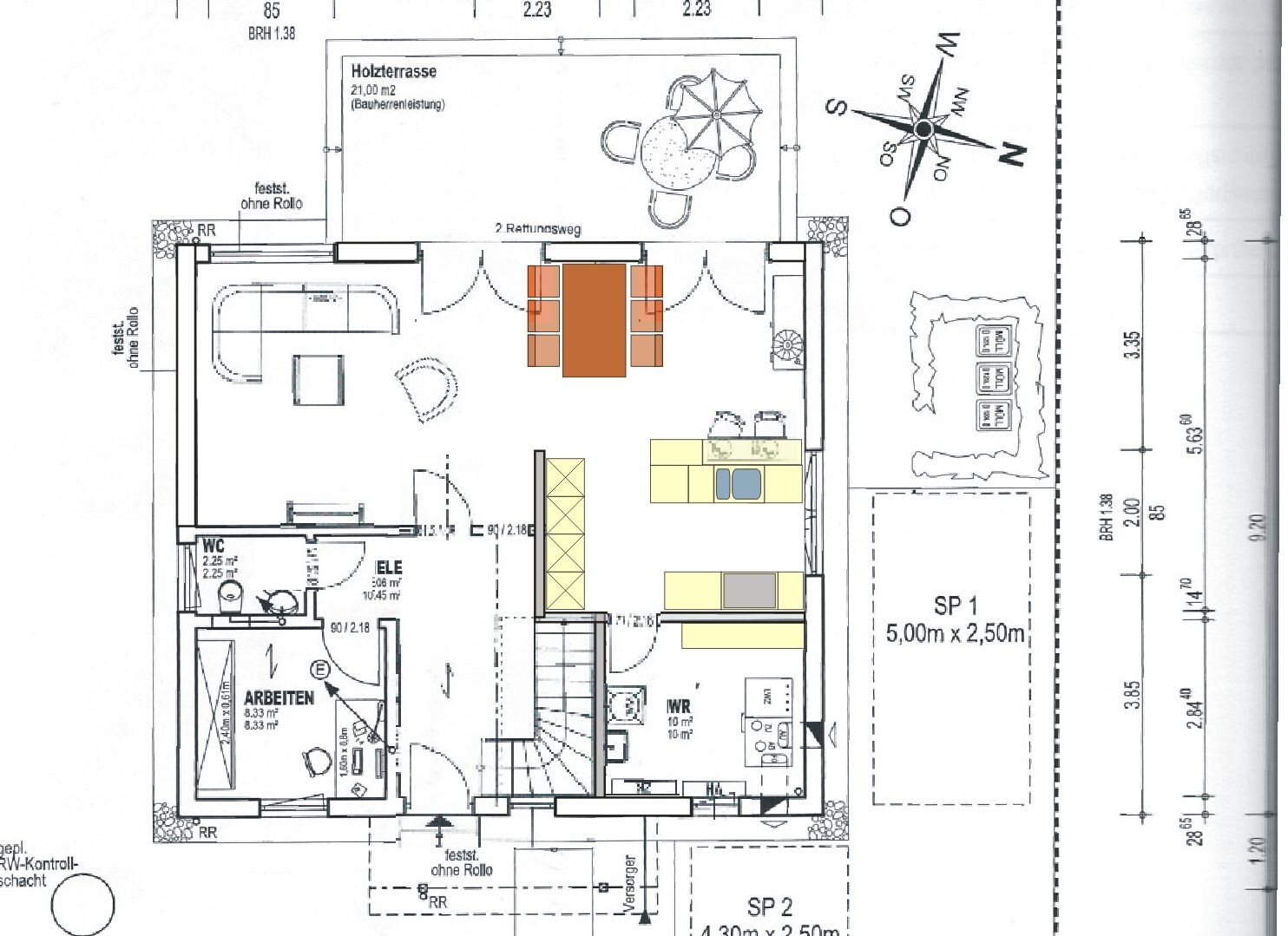
Jochen Außenwasserhahn werden wir haben.Dann ist ja gut Nur, es sind nur 563 cm von Hauswirtschaftsraum-Wand bis Terrasse. Wenn da eine Küche mit U steht, 60 cm, 130 cm rechts und Halbinsel 100 cm tief, dann bleiben für den Esstisch ca. 273 cm, incl. Durchgangs Bereich vor der Halbinsel.
Für diese Art der Bearbeitung finde ich ja 120x80 cm dann doch etwas klein .. aber naja .. habe mal ohne gespiegelt und die Idee Küche und 2 Kinderzimmer Richtung Süd zu zeigen.
EDIT:
UPS, gerade erst gesehen. In der Küche ist ja auch nur so ein Lichtband-Fenster. Puh .. hast du solche Räume schon mal gesehen? Es sieht wirklich wie Souterrain aus.


Für diese Art der Bearbeitung finde ich ja 120x80 cm dann doch etwas klein .. aber naja .. habe mal ohne gespiegelt und die Idee Küche und 2 Kinderzimmer Richtung Süd zu zeigen.
EDIT:
UPS, gerade erst gesehen. In der Küche ist ja auch nur so ein Lichtband-Fenster. Puh .. hast du solche Räume schon mal gesehen? Es sieht wirklich wie Souterrain aus.
HB-NH2015 schrieb:
Ich verstehe Dein Feedback zur Himmelsausrichtung nicht so recht.
Es war für uns keine Option die Terrasse nach Süden auszurichtenIch habe auch nicht die Terrasse gemeint. Es geht einzig allein um die Raumausrichtungen bezüglich der Fensterflächen in die Richtungen, wo mehr oder auch weniger Licht gebraucht wird.
HB-NH2015 schrieb:
Ins Wohnzimmer kommt durch das erste Lichtband ab Mittag Licht rein und durch die westliche Fensterfront dann ab Nachmittags und die schöne Abendsonne über den Feldern.HB-NH2015 schrieb:
Wenn ich was drehen würde, dann eigentlich nur das Grundstück, aber das geht bekanntlich nicht.Davon werdet Ihr aber im Winter nichts mehr sehen, da im Winter die Sonne um ca. SW untergeht. heisst im Süden schon relativ niedrig steht.
Also wird erfahrungsgemäss ein größeres Fenster im Süden benötigt. Da aber im WZ kein grosses Fenster benötigt wird, sondern eher im Essbereich, weniger im WC und Bad liegt das Kontern, also Spiegeln des Hauses (nicht drehen) nahe und erreicht ohne grossartige Veränderung der Planung die gewünschte Lichtausbeute.
HB-NH2015 schrieb:
Ich finde auch die Fenster im Wohn/Esszimmer und Küche müssten doch ausreichen.Ich habe nichts Gegenteiliges behauptet. Es wird dennoch dunkel im Winter sein, s.o.
HB-NH2015 schrieb:
Und wo sollten wir im OG die Fenster noch größer dimensionieren?
Das sind alles bodentiefe Fenster mit unten feststehendem Element.Da, wo sie sind. Die Bereiche unter den Schrägen bleiben relativ dunkel. Auch wenn die Fenster bodentief sind, ist die Lichtflut in einer Breite von einem Meter geringer im Raum als durch eine breitere Öffnung. Das kann man sich ganz einfach auf einem Papier skizzieren, wenn es nicht einleuchtet.
kbt09 schrieb:
Ypg meint, wie ich im übrigen auch, das hauptsächlich das OG gespiegelt werden könnte,Nö
HB-NH2015 schrieb:
Ich glaub aber im aktuellen Stadium werden wir solch Grundlegende Dinge nicht noch ändern und in den dunklen Kinderzimmerapfel beißen.HB-NH2015 schrieb:
aber vielleicht haben wir grobe Schnitzer drin.Just my two Cents... Du wolltest doch die Schnitzer erwähnt haben, oder?
H
HB-NH201523.06.16 14:50Ja natürlich wollte ich die erwähnt haben WISSEN will ich alles.
Bin ja auch niemand böse über sein Feedback, weiß schon wie der Hase in Foren läuft
Muss nur für mich selbst jetzt abwägen ob ich gewisse Töpfe noch mal aufmachen will.
Mit all den Konstanten, Variablen und Wünschen fühlt sich so eine Planung eben so an wie das Flicken eines Fahrrad-Reifens während jemand rein-piekst
Wir sind ja nicht am Anfang einer Reise sondern auch der aktuelle Grundriss ist schon aus unseren Vorstellungen heraus entstanden und wurde dutzende Male verändert und umgeschmissen. Ursprünglich haben wir z.B. ein ganz anderes Hausmodell mit anderer Treppenform unterschrieben.
Auch bei diesem Prozess standen wir oft vor Dingen die ich mir vorgestellt hab um ein gewisses Problem zu adressieren (Lichteinfall, Laufwege usw) und beim einfügen in die Planung kamen dann dafür neue Nachteile dieser Lösung ans Licht.
Die Frage ist dann bei jedem Punkt ob das positive oder negative überwiegt (subjektiv für den Bauherren) und ob es noch Abhängigkeiten zu anderen Stellen im Haus gibt die durch die Entscheidung "mitgerissen" werden.
So richtig perfekt wirds nie.
Außer ohne Budget und Platzgrenzen
Und ohne widersprüchliche Meinungen in der Bauherrenfamilie ...
Wir müssen für uns halt jedes Detail abwägen und waren eigentlich bisher eigentlich ziemlich glücklich mit unserem Grundriss.
Ein Feedback im Forum kann eigentlich ehrlicher nicht sein, aber es ist natürlich auch teilweise komplett konträr zur eigenen Meinung.
Ich glaub wenn wir einige Dinge mitnehmen, z.B. breitere Fenster im OG so dass gerade noch so ein Schrank hinpasst, größere Tür im DG Bad, Lichtband in Küche noch mal überdenken, Abstände für Laufwege in Küche usw dann hat sich das Ganze für mich schon gelohnt nachzufragen - auch wenn wir den Schritt scheuen jetzt noch den Grundriss in Teilen zu spiegeln.
Bin ja auch niemand böse über sein Feedback, weiß schon wie der Hase in Foren läuft
Muss nur für mich selbst jetzt abwägen ob ich gewisse Töpfe noch mal aufmachen will.
Mit all den Konstanten, Variablen und Wünschen fühlt sich so eine Planung eben so an wie das Flicken eines Fahrrad-Reifens während jemand rein-piekst
Wir sind ja nicht am Anfang einer Reise sondern auch der aktuelle Grundriss ist schon aus unseren Vorstellungen heraus entstanden und wurde dutzende Male verändert und umgeschmissen. Ursprünglich haben wir z.B. ein ganz anderes Hausmodell mit anderer Treppenform unterschrieben.
Auch bei diesem Prozess standen wir oft vor Dingen die ich mir vorgestellt hab um ein gewisses Problem zu adressieren (Lichteinfall, Laufwege usw) und beim einfügen in die Planung kamen dann dafür neue Nachteile dieser Lösung ans Licht.
Die Frage ist dann bei jedem Punkt ob das positive oder negative überwiegt (subjektiv für den Bauherren) und ob es noch Abhängigkeiten zu anderen Stellen im Haus gibt die durch die Entscheidung "mitgerissen" werden.
So richtig perfekt wirds nie.
Außer ohne Budget und Platzgrenzen
Und ohne widersprüchliche Meinungen in der Bauherrenfamilie ...
Wir müssen für uns halt jedes Detail abwägen und waren eigentlich bisher eigentlich ziemlich glücklich mit unserem Grundriss.
Ein Feedback im Forum kann eigentlich ehrlicher nicht sein, aber es ist natürlich auch teilweise komplett konträr zur eigenen Meinung.
Ich glaub wenn wir einige Dinge mitnehmen, z.B. breitere Fenster im OG so dass gerade noch so ein Schrank hinpasst, größere Tür im DG Bad, Lichtband in Küche noch mal überdenken, Abstände für Laufwege in Küche usw dann hat sich das Ganze für mich schon gelohnt nachzufragen - auch wenn wir den Schritt scheuen jetzt noch den Grundriss in Teilen zu spiegeln.
H
HB-NH201523.06.16 16:48Das Baugrenzenthema ist mit dem Bauamt besprochen.
Das Ganze resultiert v.a. daraus dass die Stadt einen Bebauungsplan gemacht hat der auf viel größeren und breiteren Grundstücken basierte. Damals in 1972.
Nachdem der Bebauungsplan verabschiedet war ist ihn aber aufgefallen, dass sie auch gerne einen Spielplatz in dem Gebiet hätten, ein normal großes Grundstück war ihnn dafür aber zu groß bzw. verschenktes Kapital. Also haben sie die anderen Grundstücke einfach ein wenig größer gemacht ohne aber den Bebauungsplan im Nachhinein noch mal zu ändern.
Da steht z.B. auch eine Mindestgroße der Grundstücke von 750qm drin. Unseres ist 638qm und die Stadt hat es uns mit Bauzwang verkauft.
Beim Thema Baugrenzen haben sie also sehr schnell eine Befreiung in Aussicht gestellt.
Ein längliches Haus wollten wir nicht deshalb sind wir froh hier eine Befreiung zu bekommen. Wir wollten das von der Ausrichtung her schon so nach Westen (mit minimaler Süd-Tendenz) raus mit der vollen Breite von Wohn und Esszimmer.
Beim Kniestock (1,30m statt erlaubten 0,50) bin ich pessimistischer aber auch dort haben wir schon mündliche Zusagen von Stadt und Kreis und die Aufforderung den Bauantrag entsprechend für diese Befreiungen zu stellen.
Aber grundsätzlich gilt auch, wir haben uns das Grundstück nicht aufgrund seiner Werte oder Ausrichtung ausgesucht sondern weil wir dort eben die Möglichkeit haben den Kindern die Oma nebenan zu ermöglichen
Das Ganze resultiert v.a. daraus dass die Stadt einen Bebauungsplan gemacht hat der auf viel größeren und breiteren Grundstücken basierte. Damals in 1972.
Nachdem der Bebauungsplan verabschiedet war ist ihn aber aufgefallen, dass sie auch gerne einen Spielplatz in dem Gebiet hätten, ein normal großes Grundstück war ihnn dafür aber zu groß bzw. verschenktes Kapital. Also haben sie die anderen Grundstücke einfach ein wenig größer gemacht ohne aber den Bebauungsplan im Nachhinein noch mal zu ändern.
Da steht z.B. auch eine Mindestgroße der Grundstücke von 750qm drin. Unseres ist 638qm und die Stadt hat es uns mit Bauzwang verkauft.
Beim Thema Baugrenzen haben sie also sehr schnell eine Befreiung in Aussicht gestellt.
Ein längliches Haus wollten wir nicht deshalb sind wir froh hier eine Befreiung zu bekommen. Wir wollten das von der Ausrichtung her schon so nach Westen (mit minimaler Süd-Tendenz) raus mit der vollen Breite von Wohn und Esszimmer.
Beim Kniestock (1,30m statt erlaubten 0,50) bin ich pessimistischer aber auch dort haben wir schon mündliche Zusagen von Stadt und Kreis und die Aufforderung den Bauantrag entsprechend für diese Befreiungen zu stellen.
Aber grundsätzlich gilt auch, wir haben uns das Grundstück nicht aufgrund seiner Werte oder Ausrichtung ausgesucht sondern weil wir dort eben die Möglichkeit haben den Kindern die Oma nebenan zu ermöglichen
Ähnliche Themen