ᐅ Lichtplanung Deckenspots EG & OG
Erstellt am: 24.03.20 12:27
M
mambo198824.03.20 12:27Hallo zusammen,
leider befinden wir uns gerade in der schwierigen Situation, da wir die ungefähren Spots für unser zukünftiges Haus platzieren sollen.
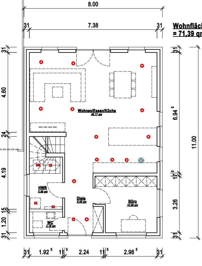
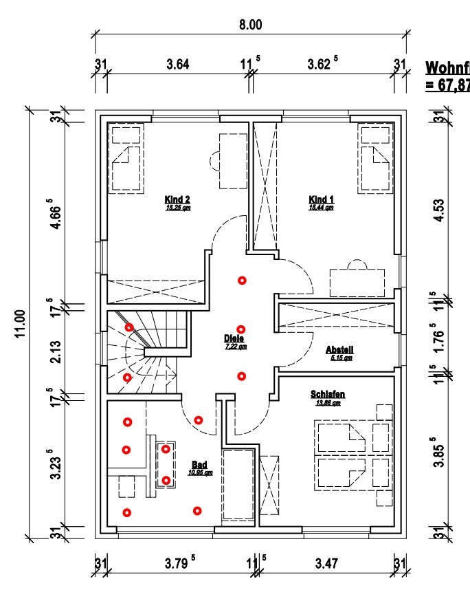
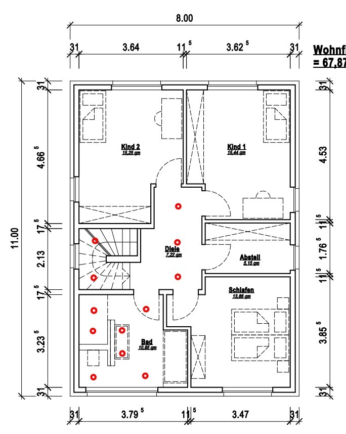
Anbei sind 4 Bilder, wo wir einmal mit möblierung und einmal mit Maßen versucht haben die Spots so gut es geht zu platzieren.
Gerne würden wir etwas Feedback einholen, damit das Thema abgeschlossen werden kann.
Die Räume mit Spots sind:
EG:
- Wohnzimmer: Dienen hier zur Beleuchtung, wenn mal sauber gemacht werden soll. Zum Essen gibt es noch eine normale Deckenleuchte und in den Ecken etwas für die Gemütlichkeit. Evtl. dimmbar bei Events.
- Küche: Dienen hier zur Beleuchtung der Arbeitsflächen. In der Mitte der Kücheninsel wird die Dunstabzugshaube noch ein Licht haben. An der Seite an der Wand stehen hochschränke mit Kühlschrank und Backofen usw. Evtl. dimmbar bei Events.
- Flur: Dienen allein zur Beleuchtung des Flurs. Hier wollen wir ohne weiteren Leuchtmittel auskommen.
OG:
- Treppe: Zur Grundbeleuchtung der Treppe. Mit Bewegungsmelder. Evtl. dimmbar, wenn es Nacht ist.
- Flur: Dienen allein zur Beleuchtung des Flurs. Hier wollen wir ohne weiteren Leuchtmittel auskommen.
- Bad: Dienen zur kompletten Beleuchtung des Badezimmers. Evtl. dimmbar, wenn man mal in die Badewanne möchte.
Wir sind sehr auf Anregungen und Hinweise gespannt.
Vielen Dank!




leider befinden wir uns gerade in der schwierigen Situation, da wir die ungefähren Spots für unser zukünftiges Haus platzieren sollen.
Anbei sind 4 Bilder, wo wir einmal mit möblierung und einmal mit Maßen versucht haben die Spots so gut es geht zu platzieren.
Gerne würden wir etwas Feedback einholen, damit das Thema abgeschlossen werden kann.
Die Räume mit Spots sind:
EG:
- Wohnzimmer: Dienen hier zur Beleuchtung, wenn mal sauber gemacht werden soll. Zum Essen gibt es noch eine normale Deckenleuchte und in den Ecken etwas für die Gemütlichkeit. Evtl. dimmbar bei Events.
- Küche: Dienen hier zur Beleuchtung der Arbeitsflächen. In der Mitte der Kücheninsel wird die Dunstabzugshaube noch ein Licht haben. An der Seite an der Wand stehen hochschränke mit Kühlschrank und Backofen usw. Evtl. dimmbar bei Events.
- Flur: Dienen allein zur Beleuchtung des Flurs. Hier wollen wir ohne weiteren Leuchtmittel auskommen.
OG:
- Treppe: Zur Grundbeleuchtung der Treppe. Mit Bewegungsmelder. Evtl. dimmbar, wenn es Nacht ist.
- Flur: Dienen allein zur Beleuchtung des Flurs. Hier wollen wir ohne weiteren Leuchtmittel auskommen.
- Bad: Dienen zur kompletten Beleuchtung des Badezimmers. Evtl. dimmbar, wenn man mal in die Badewanne möchte.
Wir sind sehr auf Anregungen und Hinweise gespannt.
Vielen Dank!
M
mambo198824.03.20 12:58face26 schrieb:
Bin wahrlich kein Lichtplanungsexperte...sieht aber bisschen aus wie ein Hagelschaden.
Ein wenig mehr Mühe bei Symmetrie und Abständen würde ich mir schon geben. Ganz unabhängig mal von dem Ausleuchtungsergebnis.Haha, ja das stimmt wohl. Um die Symmetrie würde ich mich kümmern, wenn die ungefähren Positionen feststehen. Das ist leider nicht so leicht in den Programmen. Also was ungefähr nach einer Linie aussieht, soll dann natürlich auf einer Linie sein. Viel zu viele Spots.
Küche: wenn die die Arbeitsfläche beleuchten sollen, sollten sie auch über der AF sein, nicht dahinter, sonst wirft man selber einen Schatten.
Wenn also keine Oberschränke geplant sind: 3-4 Spots gleichmäßig über die AF verteilt, wenn Oberschränke geplant sind, dann lieber auf Licht unter den Oberschränken setzen und nur zwei Spots zwischen beiden Küchenzeilen in die Decke, damit's halt hell ist in der Küche.
Wenn über der Insel eine Abzugshaube mit Licht geplant wist, würde ich den Rest der Insel nicht mit Spots ausleuchten sondern mit Pendelleuchten in Höhe der Abzugshaube. Ich persönlich würde ganz auf die Abzugshaube verzichten und eine gute Beleuchtung über die ganze Insel planen, aber keine Spots, sondern Pendelleuchten (das können ja auch kleine Leuchten sein, wie Spots, aber nicht in der Decke).
Zwei Spots in der Dusche??? Da gibt es schönere Beleuchtungen für die Dusche, schaut euch da mal um. Und ansonsten langt da auch ein zentraler Spot. Das Bad insgesamt bekommt so den Charme eines OP Saales. Ein Spot über den Pott, ein Spot in der Dusche, Waschtisch würde ich über den Spiegel beleuchten und dann evtl. noch für das Restbad eine Stimmungsbeleuchtung, wenn überhaupt. Ein beleuchteter Spiegel reflektiert das Licht und macht richtig hell.
Treppe: echt mit Spots in der Decke? Macht lieber Spots an den Stufen oder einen beleuchteten Handlauf.
Im Wohnzimmer: auch wenn das nur als Putzbeleuchtung dienen soll: warum die zwei Spots HINTER dem Sofa???
Eingang: warum da zwei Spots? Der Gang ist schmal, da reicht einer, man findet auch so ins Gäste-WC.
Küche: wenn die die Arbeitsfläche beleuchten sollen, sollten sie auch über der AF sein, nicht dahinter, sonst wirft man selber einen Schatten.
Wenn also keine Oberschränke geplant sind: 3-4 Spots gleichmäßig über die AF verteilt, wenn Oberschränke geplant sind, dann lieber auf Licht unter den Oberschränken setzen und nur zwei Spots zwischen beiden Küchenzeilen in die Decke, damit's halt hell ist in der Küche.
Wenn über der Insel eine Abzugshaube mit Licht geplant wist, würde ich den Rest der Insel nicht mit Spots ausleuchten sondern mit Pendelleuchten in Höhe der Abzugshaube. Ich persönlich würde ganz auf die Abzugshaube verzichten und eine gute Beleuchtung über die ganze Insel planen, aber keine Spots, sondern Pendelleuchten (das können ja auch kleine Leuchten sein, wie Spots, aber nicht in der Decke).
Zwei Spots in der Dusche??? Da gibt es schönere Beleuchtungen für die Dusche, schaut euch da mal um. Und ansonsten langt da auch ein zentraler Spot. Das Bad insgesamt bekommt so den Charme eines OP Saales. Ein Spot über den Pott, ein Spot in der Dusche, Waschtisch würde ich über den Spiegel beleuchten und dann evtl. noch für das Restbad eine Stimmungsbeleuchtung, wenn überhaupt. Ein beleuchteter Spiegel reflektiert das Licht und macht richtig hell.
Treppe: echt mit Spots in der Decke? Macht lieber Spots an den Stufen oder einen beleuchteten Handlauf.
Im Wohnzimmer: auch wenn das nur als Putzbeleuchtung dienen soll: warum die zwei Spots HINTER dem Sofa???
Eingang: warum da zwei Spots? Der Gang ist schmal, da reicht einer, man findet auch so ins Gäste-WC.
Im Wohnzimmer würde ich auf die Spots verzichten.
Dafür über dem Couchtisch eine Lichtquelle als Grundbeleuchtung nehmen.
Vielleicht hinter dem Sofa planoben links in der Ecke 1-2 Hängeleuchten nehmen.
Im Esszimmer über dem Esstisch 1-3 Pendelleuchten.
Wenn Spots, dann näher zur Wand positionieren und als Deko die Wand anleuchten
In der Küche über der Kochinsel 2-3Pendelleuchten und statt Dunstabzugshaube über Muldenlüftung nachdenken.
Zwischen Küchenzeile und Halbinsel die Spots mittig.
Keine Beleuchtung zwischen Treppe und Küche?
In der Diele wirds auch zu dunkel.
Ohne genaue Abstände ist es schwierig zu beurteilen.
OG-Bad:
In der Toilette vielleicht als alternative zum Spot eine Wandleuchte
In der Dusche die Regendusche nicht vergessen.
Nicht dass der Spot über der Regendusche sitzt.
Statt Spots über dem Waschbecken als alternative bei zwei Waschbecken 3 Wand- oder Hängeleuchten
Leuchte-Spiegel-Leuchte-Spiegel-Leuchte
Dafür über dem Couchtisch eine Lichtquelle als Grundbeleuchtung nehmen.
Vielleicht hinter dem Sofa planoben links in der Ecke 1-2 Hängeleuchten nehmen.
Im Esszimmer über dem Esstisch 1-3 Pendelleuchten.
Wenn Spots, dann näher zur Wand positionieren und als Deko die Wand anleuchten
In der Küche über der Kochinsel 2-3Pendelleuchten und statt Dunstabzugshaube über Muldenlüftung nachdenken.
Zwischen Küchenzeile und Halbinsel die Spots mittig.
Keine Beleuchtung zwischen Treppe und Küche?
In der Diele wirds auch zu dunkel.
Ohne genaue Abstände ist es schwierig zu beurteilen.
OG-Bad:
In der Toilette vielleicht als alternative zum Spot eine Wandleuchte
In der Dusche die Regendusche nicht vergessen.
Nicht dass der Spot über der Regendusche sitzt.
Statt Spots über dem Waschbecken als alternative bei zwei Waschbecken 3 Wand- oder Hängeleuchten
Leuchte-Spiegel-Leuchte-Spiegel-Leuchte
A
Alessandro24.03.20 13:43in der Küche vor den Schränken reichen 3 Spots.
Wenn du eine Deckenlampe im WZ und EZ hast, würde ich hier die Spots streichen. Es sei denn du willst ein Bild, Vase, Kunstwerk beleuchten.
In der Dusche würd ich auf einen Spot reduzieren und darauf achten dass der nicht genau über dem Duschkopf ist. Sonst wird das Licht vom Duschkopf reflektiert und du hast kein ausreichendes Licht in der Dusche!
Beim Treppenaufgang würde ich die Spots vor die Wand setzen damit man beim Hochgehen nicht direkt hineinschaut und blind wird
Wenn du eine Deckenlampe im WZ und EZ hast, würde ich hier die Spots streichen. Es sei denn du willst ein Bild, Vase, Kunstwerk beleuchten.
In der Dusche würd ich auf einen Spot reduzieren und darauf achten dass der nicht genau über dem Duschkopf ist. Sonst wird das Licht vom Duschkopf reflektiert und du hast kein ausreichendes Licht in der Dusche!
Beim Treppenaufgang würde ich die Spots vor die Wand setzen damit man beim Hochgehen nicht direkt hineinschaut und blind wird
Ähnliche Themen