Hausbau - Ratgeber
Bauherrenhilfe
- Bauherrenhilfe vor Vertragsabschluss
-- Warum einen unabhängigen Baubetreuer?
-- Vertragsgrundlagen
-- Bausumme
-- Zahlungsplan zur Kostenkontrolle
-- Pflichten des Bauherren vor Vertragsabschluss
-- Unterlagen beim Hausbau vor Vertragsabschluss
- Bauherrenhilfe nach Vertragsabschluss
-- Bauantrag bei Behörden
-- Bau-Genehmigungsverfahren bei Baubehörden
-- Bauspezifische Versicherungen
-- Bauzeitenplan
-- Baubeginn - die Letzten Pflichten der Bauherrschaft
- Bauherrenhilfe während der Bauzeit
- Gewährleistungsansprüche
- Bauabnahme
Baufinanzierung
- Baufinanzierung - Allgemeine Fragen
- Kreditarten
- Kredit-Konditionen
- Bausparen
- Staatliche Förderungen
- Verkehrswert
- Haushaltsrechnung und Bonität
Hausbau Planung
- Haustypen
- Hausbau Vorbereitungsarbeiten
- Das Baugrundstück
- Baugrund beim Hausbau
- Baurecht
- Gebäudeschutz
- Erdarbeiten und Wasserhaltung
- Stützmauern
- Einfriedung
- Untergeschoss
- Kanalisation
- Tragende Elemente
- Nichttragende Innenwände
- Fundation / Fundament
- Deckenkonstruktionen
- Dächer
- Kaminanlagen
- Treppen Rampen Leitern
- Dachbeläge und Spengler
- Fenster
- Sonnen und Wetterschutz
- Aussenputze
- Einbauten, Küchen, Türen
- Bodenbeläge und Unterlagsböden
- Parkett
- Gips, Wand, Decke
Haustechnik und Energie
- Heiztechnik
- Lüftung und Klimatechnik
- Sanitärtechnik
- Elektrotechnik
- Erneuerbare Energie
Whirlpools / Jacuzzi
Hausbau Magazin
- Baufinanzierung trotz Krise?
- Das Blockhaus
- Moderne Dämmstoffe im Vergleich
- Erker Vor- und Nachteile
- Glasflächen beim Hausbau
- Günstig ein Haus Bauen
- Mediterraner Hausbaustil
- Mehrgenerationenhaus
- Moderne Architektur
- Gartengestaltung leicht gemacht
- Traditioneller Ziegelbau
- Villa als höchster Traum
- Im Eigenheim Ruhestand geniessen
- Altbau sanieren
- Kauf einer Holzgarage
- Immobilienmakler
- Arbeitshandschuhe für den Winter
- Zuhause verschönern
- Outdoor-Plissees
- Schlafzimmer planen
- Terrassenüberdachung
- Wohngebäudeversicherung
- Zaunarten und Eigenschaften
- Hauseingang gestalten
- Der perfekte Grundriss
- Sparsamer heizen im Altbau
- Einfamilienhaus smart finanzieren
- Planung einer PV-Anlage
- Neues Haus
- Immobilienfinanzierung
- Installation einer Photovoltaikanlage
- Asbest erkennen und entfernen
- Gartenpflege im Frühling – worauf achten
- Sauna im Fokus - Wellness zuhause
- Erfolgreich vermieten
- Die perfekte Winterbekleidung
- Das Niedrigenergiehaus
- Der April und seine Stürme
- Architektonische Vielfalt
- Ökologisch und nachhaltig bauen
- Das perfekte Schlafzimmer
- Nachhaltige Energieversorgung
- Zukunftsorientiert bauen
- Nachhaltigkeit beim Hausbau
- Tiny Houses
- Wärmepumpen als nachhaltige Heizvariante
- Maßgeschneiderten Kleiderschrank
- Der richtige Baukredit
- Ratgeber für erfolgreichen Hausbau
- Haus als Altersvorsorge
Do-it-yourself Anleitungen
- Verlegeanleitung für Bodenbeläge und Parkett
- Bodenbeläge und Parkett reinigen und pflegen
- Malerarbeiten am Haus
- Garten Tipps
- Umzug und Reinigung

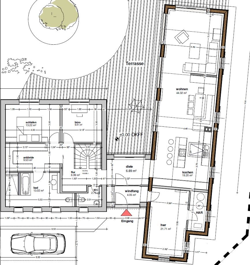
ᐅ Kritik zur Grundrissplanung Bauernhaus

Erstellt am: 24.10.15 16:22
G
grinchmaster
G
grinchmaster
24.10.15 16:22
Hallo an die Forumsgemeinschaft!
Seit über einem Jahr (seit dem ich mich mit dem Thema Hausbau beschäftige) verfolge ich fleißig dieses Forum, dem ich schon viele wertvolle Informationen entnehmen konnte.
Nun sind unsere Hausbaupläne so weit gereift, dass ich sie Euch gerne präsentieren möchte.
In Grundsätzen steht die Planung. Allerdings hat sich gerade eine gewisse Projektblindheit eingeschlichen, sodass die Planung gerade etwas stockt. Hier brauche ich Eure Kritik und Ideen!

Wir wollen an das Haus der Schwiegereltern anbauen. Aus Planungstechnischen Gründen soll der Neubau eine Erweiterung des Bestandshauses zu einem Mehrgenerationenhaus sein. Sollte dies vom Bauamt nicht genehmigt werden, werden wir das Grundstück an der Bestandsgarage teilen und Baulasten eintragen.
Die Idee ist, ein Schlafhaus in Massivbauweise zu errichten, an welches sich eine Art Wohnscheune in Ständerbauweise anschließt. Wir möchten eine Abgrenzung der Bereiche Kinder/ Eltern/ Wohnen, einen Innenhof hinterm Haus und stilmäßig in die Richtung einer kleinen Hofanlage - damit passen wir uns an die Umgebung an 🙂

Bebauungsplan/Einschränkungen: nein
Größe des Grundstücks: ca. 900qm (insgesamt ca. 2300qm)
Hang: nein
Baufenster, Baulinie und -grenze: NO: Straße; SO: Bestandshaus mit Garage; SW: Wiesen; NW: Feldweg
Anzahl Stellplatz: 2
Geschossigkeit: 2/ 1
Dachform: Satteldach/ Pultdach
Stilrichtung: Bauernhaus - Schlafhaus mit Wohnscheune
Ausrichtung: Südwest

Anforderungen der Bauherren
Stilrichtung, Dachform, Gebäudetyp: Bauernhaus, Satteldach/ Pultdach
Keller, Geschosse: Nein, 2 /1 (ca. 210 qm + Dachboden)
Anzahl der Personen, Alter: 2 + 2 Kinder + 1 in Planung
Büro: Familiennutzung und Homeoffice (sehr geringer Platzbedarf)
Schlafgäste pro Jahr: ca.10 Mal 4 Personen
offene oder geschlossene Architektur: Schlafbereich geschlossen; Wohnbereich offen + hell
offene Küche, Kochinsel: ja kann
Anzahl Essplätze: 6-8
Kamin: Ja
Carport: ja

Hausentwurf
Von wem stammt die Planung: Architekt
Was gefällt: Anordnung Wohnen, Eltern, Kinder.
Was gefällt nicht?
- Carport verdunkelt Bad
- Eingang Elternbad
- Aufteilung Wohnscheune: Wohin mit dem Kamin? Wie die Küche planen? Küche und Esszimmer sollen eine Einheit sein. Wohnzimmer abgetrennt (durch Kamin, Fachwerkwand?))
Preisschätzung lt Architekt/Planer: 370000 (eigene Preisschätzung: minimum 400000 - ohne Außenanlagen)
favorisierte Heiztechnik: Solewärmepumpe/ Gas???
Wenn Ihr verzichten müsst, auf welche Details/Ausbauten
-könnt Ihr verzichten: Es könnte auch kleiner sein.
-könnt Ihr nicht verzichten: Große Fenster im Wohnbereich

Und nun freue ich mich auf Eure Meinung und Ideen!

(Bei den Grundrissen ist Norden im Plan unten rechts)
K
kbt09
24.10.15 17:34
Grundriss gefällt mir sehr gut .. ich hätte nur anzumerken, dass ich die Optik aller bodentiefer Fenster identisch wählen würde und mir nicht ganz klar ist, warum in der "Scheune" die kleineren Fenster so unterschiedlich zum Haupthaus sind (Höhe und dann die Laden).

In den Bezeichnungen der Ansichten ... kann es sein, dass dir da ein Fehler unterlaufen ist? Ansicht Ost und West vertauscht?

Wo fühlt ihr euch denn aktuell blockiert? Sorry, lesen bildet .. hattest du ja geschrieben 😉
K
kbt09
24.10.15 17:39
grinchmaster schrieb:
Was gefällt nicht?
- Carport verdunkelt Bad
- Eingang Elternbad

Im Bad wird man eh irgendwelche Sachen vorm Fenster haben, Plissees oder ähnliches. Da würde mich die "Carport"-Verdunkelung nicht stören.

Eingang Elternbad ... was stört dich?

Wohnzimmer .. die angedeutet Möblierung, ist das so real oder eher mal zufällig? Prinzipiell könnte ich mir einen Kamin planlinks zwischen den letzten beiden bodentiefen Fenstern oder gleich ganz oben links vorstellen.
M
Manu1976
24.10.15 22:44
Gefällt mir auch ganz gut. Ist mal was anderes. Nur eines gefällt mir gar nicht: der Weg von der Couch zum WC ist dann doch schon etwas sehr weit. Würde mir da ne Ecke vom großen Hauswirtschaftsraum abzwacken und ein Gäste-WC einplanen.
K
kbt09
24.10.15 22:51
@Manu1976 .. da müßtest du ja auch durch den Windfang, denn auf Küchenseite will man ja nicht ins WC, außerdem ist da ein schöner Platz für eine gute gestaltete Hochschrankwand mit Abstellflächen zwischendrin.
M
Manu1976
24.10.15 23:17
kbt09 schrieb:
da müßtest du ja auch durch den Windfang, denn auf Küchenseite will man ja nicht ins WC,
Jep, das stimmt. Aber fast 20 Meter Weg wären mir trotzdem zu weit. Das ist auch das Einzige was mich hier stört. Den Rest finde ich echt super gelöst.
kaminfensterwohnscheuneküchecarportdachformsatteldachpultdachbauernhauswohnbereich