Hausplanung auf vorhandenem. Grundstück

4,70 Stern(e) 3 Votes
Zuletzt aktualisiert 19.11.2025
Sie befinden sich auf der Seite 2 der Diskussion zum Thema: Hausplanung auf vorhandenem. Grundstück
>> Zum 1. Beitrag <<

Y

ypg

...
An so eine Lösung wie ypg netterweise vorschlägt, hätte ich auch schon gedacht. Quasi wie ein Bungalow, aber unten mit etwas Keller und Wohnraum. Aber die Schlafräume unten zu haben, ist vielleicht nicht so unser Ding. Behalten wir aber als eine mögliche Variante im Kopf.

Grundsätzlich würde uns eher ein modernes Haus mit EG+OG und flachem Satteldach im Kopf herumschwirren. Hmm...

...
Ihr könnt ja auch unten Wohnen und Küche, oben die Schlafräume



Gruß, Yvonne
 
T

tepee

Hallo wieder mal

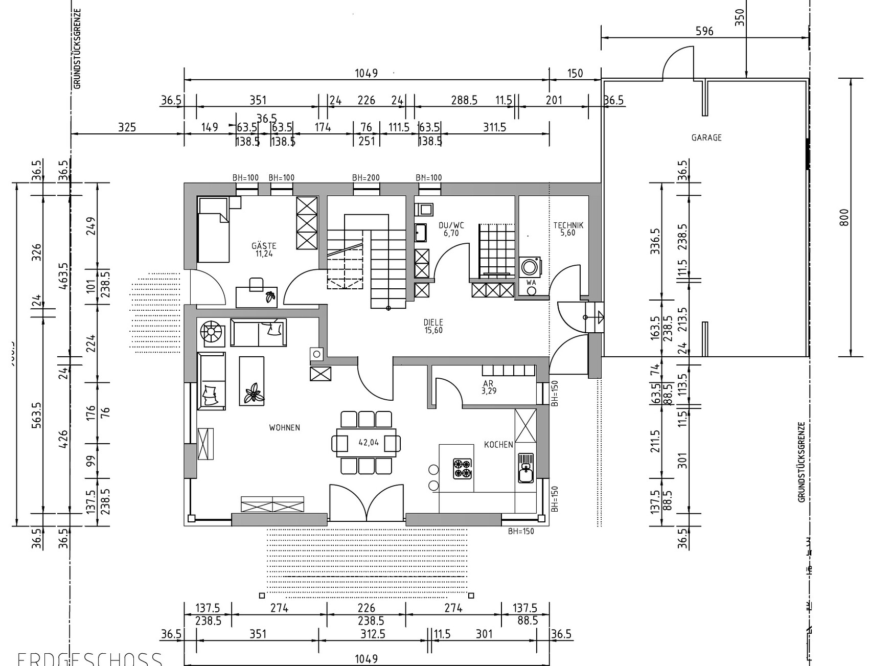
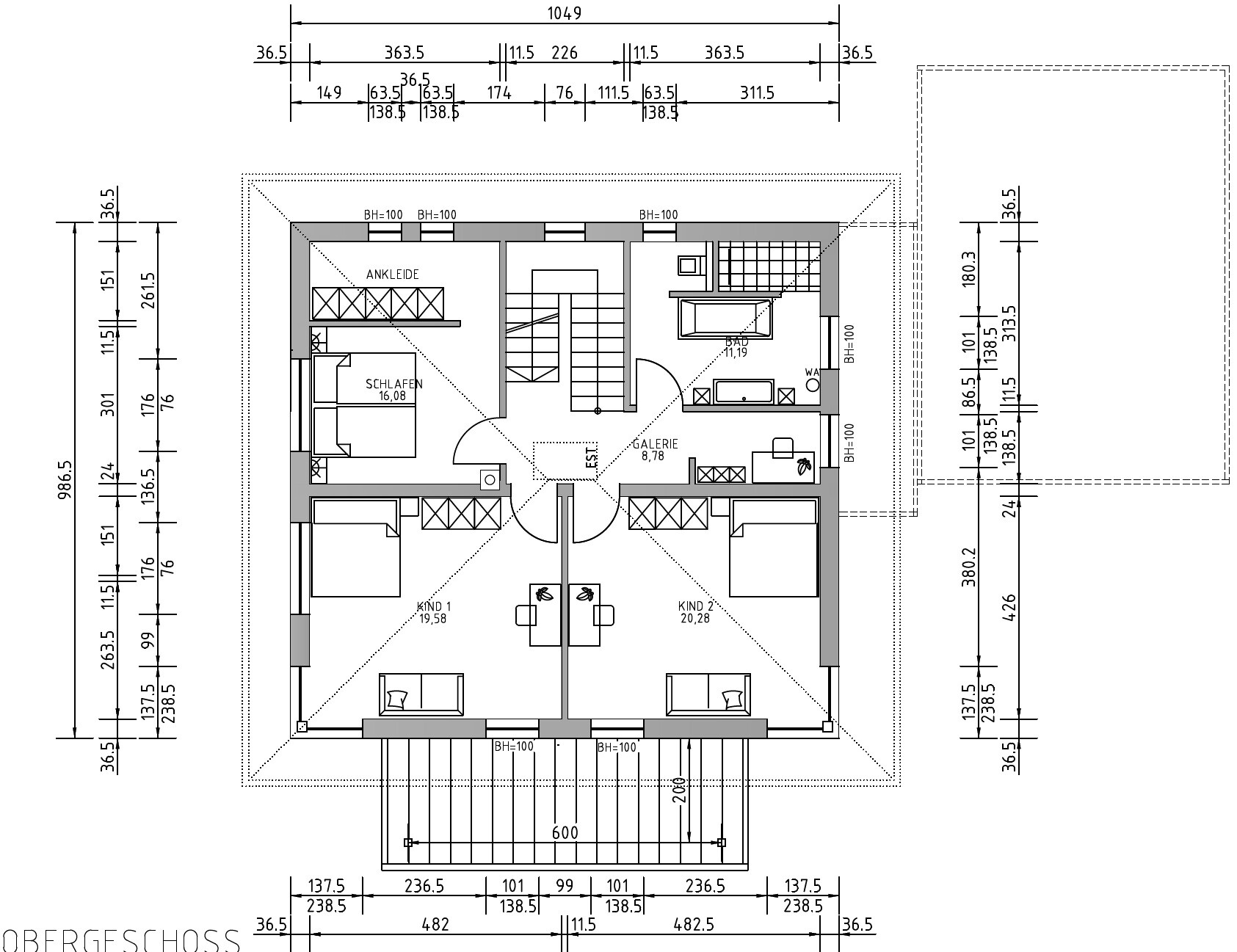
Wir möchten jetzt bei der Variante Haus mit Doppelgarage neben an bleiben. Haben mal einen ersten Plan bekommen, siehe Anhang. Wäre noch einiges zu ändern (Kinderzimmer kleiner, Schlafzimmer größer, Hauswirtschaftsraum im OG, usw.), aber was meint ihr dazu generell?

Übrigens, für eine andere, kleinere Hausvariante mit 130qm Wohnfläche (auf EG + OG verteilt) haben wir ein Kellerangebot für 75k€ bekommen. Ist das normal (auch wenn es kfw55 ist)?
Andere GUs bieten so ein 65qm Keller "laut Katalog" für ca. 40k€ an, wenn ich die Unterschiede bei Haus mit Bodenplatte oder Keller rausrechne.

Für die Anhebung der Bodenplatte (Fundamenthälse) haben wir 10k€ angeboten bekommen.

Erdgeschoss-Grundriss: offener Wohn-/Essbereich, Küche, Gästezimmer, Diele, Treppe, Dusche/WC, Garage.


Grundriss Obergeschoss: Schlafzimmer, Ankleide, 2 Kinderzimmer, Galerie, Bad, Treppe.
 
E

Evolith

Den Grundriss mag ich. Einfach und klar.

Nochmal zur Hausplatzierung: Ich würde das Haus ganz nach hinten schieben und dann so weit es geht nach rechts. Dafür die lange Einfahrt in Kauf nehmen plus der höheren Anschlusskosten. Die Einfahrt kann man dann schön mit Büschen etwas abgrenzen zum Garten. Der hintere Nachbar wird angrenzend seinen Garten machen, sodass ihr zu allen Seiten schön Licht bekommt.
Ich persönlich stehe nicht so auf einen Garten rund ums Haus. Ich habe gerne alles im Blick.

Zum Keller: Ich kann Keller ja nicht ausstehen. Demnach haben wir auch ohne gebaut. Hieß wir mussten 15x15,5m wegen beschissener Bodenverhältnisse aufschütten (1 m ausschachten und dann 2 Meter aufschütten). Hat uns 25k gekostet. Ein Keller wäre weit über das doppelte gekommen. Wenn ihr den Platz nicht braucht (und da wirklich tief in euch gehen), dann lasst den weg. Plant vielleicht ein bisschen mehr Lagerraum im Haus ein, damit ihr erst mal viel dort lagern könnt. Das Geld für eine Gartenhütte wird nach Bauende nicht so da sein und die Garagen verplanen sich sehr schnell.
 
RobsonMKK

RobsonMKK

Mir gefällt der auch ganz gut.
Allerdings sind mir 2 Sachen aufgefallen. Kind 1 hat zu viele Fenster, zu mindest für meinen Geschmack. De facto sind das ja 4 Fenster.
Und ich würde mir den Durchgang zur Garage sparen. Einen Meter weiter ist die Haustür. In einer 6 Meter Garage ist es nicht so viel Platz (je nach Auto) das man da entspannt drum herum spaziert.
 
T

tepee

Danke für Eure Meinungen.

Der Plan ist, das Haus fast ganz nach hinten zu schieben, so dass hinten (Nordseite) ca. 5-6m bleiben. Ist im Sommer evtl. auch mal nützlich einen kleinen schattigen und sichtgeschützten Garten zu haben. Außerdem ergibt sich der Abstand allein schon aus 3m Mindestabstand und 2-3m Hinausragen der Garage nach hinten übers Haus hinaus. So hätten wir nach vorne immer noch 16m Südgarten. Die Einfahrt möchten wir nur etwa 3,5m breit pflastern und erst neben dem Haus bzw. vor der Garage auf volle Breite gehen.
Das Haus inkl. Garage als Grenzbebauung ist so weit wie möglich nach "rechts hinten" geschoben. Wegen der Garage und dem Eingangsbereich geht nicht mehr. Ich hätte mir "links" also im Westen etwas mehr Abstand gewünscht und zwar wegen evtl. Verschattung, da man nicht weiß wie der Nachbar mal baut. Aber bei 21,5m Grundstücksbreite und Osteingang mit Doppelgarage ist es knapp. Auf die Doppelgarage möchte ich aber nicht verzichten

Übrigens wäre die Garage schon recht groß, entgegen dem Plan sogar 9x6m, da sollten neben 2 Autoplätzen ca. 20qm Kellerersatzraum drin sein. Dann noch etwas Dachboden. Die Räume für Technik und Hauswirtschaftsraum wären dann im Gebäude. Ich denke, damit sollten wir auskommen. Keller fänden wir nicht grundsätzlich schlecht, auch da wir den leichten Hang haben. Bräuchten aber keinen Vollkeller, ein Teilkeller hätte uns gereicht. Davon raten aber alle ab, weil nicht viel günstiger und evtl. wegen Setzung usw. problematisch. Bei dem nun angebotenen Kellerpreis hat es sich dann aber erledigt für uns.

Unsere Idee ist, möglichst wenig Treppen und möglichst alles bequem erreichbar zu haben. Daher Hauswirtschaftsraum im OG (kommt noch in den Plan), wo die Wäsche anfällt und evtl. sogar eine Dachterrasse über der Fertiggarage, auch um dort die Wäsche ggf. direkt raushängen zu können. Auf den eingezeichneten großen Balkon auf der Südseite würden wir wohl, auch aus Kostengründen, verzichten und nur eine Überdachung, Pergola o.ä. machen.

Der Grundrissvorschlag basiert auf einer ersten kleineren Lösung und hat auch daher hier und da noch Macken. EG gefällt uns generell schon mal gut. Dass dort ein Garagenzugang ist, liegt auch daran, dass wegen dem Hang die Garage etwas höher wäre und Stufen notwendig sind. Das wird sich aber hoffentlich erledigen, weil "nur" ca. 50cm ausgeglichen werden müssten und dafür die Garage entsprechend tiefer eingelassen wird. Sollte so zu unserem "ebenerdigen Denken" auch besser passen.
Im OG sehe ich auch noch Optimierungspotenzial. Nicht nur dass das Kinderzimmer 1 viele Fenster hat, die Kinderzimmer sind mit 20qm auch etwas groß, während das Schlafzimmer etwas klein ist. Ziel wäre Kinderzimmer mit je ca. 15qm und Schlafzimmer mit 20qm inkl. Ankleide zu haben. Dann blieben noch ein Paar qm für Hauswirtschaftsraum u.ä. übrig.
 
Zuletzt aktualisiert 19.11.2025
Im Forum Bauplanung gibt es 5071 Themen mit insgesamt 100812 Beiträgen


Ähnliche Themen zu Hausplanung auf vorhandenem. Grundstück
Nr.ErgebnisBeiträge
1Aufschütten für Bodenplatte - Seite 225
2Keller oder Bodenplatte? - Kostenschätzung 24
3Leichte Hanglage, Bauen mit Keller oder Bodenplatte? - Seite 216
4Entwurf Einfamilienhaus mit 3 Kinderzimmer, Keller und Grenzbebauung 32
5Grundriss Einfamilienhaus ohne Keller, 3 Kinderzimmer und Büro 18
6Grundriss Einfamilienhaus 155m², ohne Keller, 3 Kinderzimmer, 1 Büro 38
7Größe vom Schlafzimmer und Kinderzimmer - Seite 338
8Kinderzimmer und Schlafzimmer - Welche Größe ist zu empfehlen? - Seite 856
9Erster Grundriss Entwurf vom EG inkl. Doppelgarage 16
10Grundrissplanung Stadtvilla mit Doppelgarage ca. 150m² 34
11Eigener Grundrissentwurf Stadtvilla 180qm mit Doppelgarage Feedback - Seite 262
12Grundriss Einfamilienhaus mit Keller - Eure Meinungen bitte - Seite 316
13Ideen zu Entwurf für Einfamilienhaus mit Keller - Seite 847
14Grundriss Einfamilienhaus geplant, Fenster gefallen uns - Seite 343
15Wann ist ein Hang ein Hang? Keller vs. Bodenplatte - Seite 319
16Grundrissplanung Einfamilienhaus (Stadtvilla) ca.140m² (3 Kinderzimmer) - Seite 242
17Grundrissoptimierung Stadtvilla ca. 180qm mit Keller in Berlin 40
18Optimierung Grundriss Einfamilienhaus mit 180qm Satteldach ohne Keller 17
19Grundriss Einfamilienhaus 2 Vollgeschosse +Keller ca. 130m² Wohnfläche - Seite 430
20Waschmaschine und Trockner im Keller oder OG? - Seite 214

Oben