Hausplanung auf vorhandenem. Grundstück

4,70 Stern(e) 3 Votes
Zuletzt aktualisiert 21.11.2025
Sie befinden sich auf der Seite 5 der Diskussion zum Thema: Hausplanung auf vorhandenem. Grundstück
>> Zum 1. Beitrag <<

Y

ypg

Du hast einen Hang, der Dich ärgert und willst jetzt noch weiter ausbuddeln?

Ich bin hier wegen des Links im anderen Thread gelandet.

Mir fehlen hier doch tatsächlich Infos über der Hang an sich. Wo fängt es an, wo hört er auf?
Foto wäre auch nicht schlecht.
Da war dann ja auch eine Höhenbeschränkung? [emoji848]
 
S

Solveigh

Hast Du denn vom Hang Höhenschnitte?

Gibt es schon Nachbarbebauung?

Wie @ypg vorschlägt, Fotos wären auch nicht schlecht.

Wo habt Ihr Sicht, störende Nachbarbebauung ect.

Mir, ebenfalls am Hang, hat ein simples Modell des Hanges und eine Modell des Hauses irre geholfen.

Danach Pflock und Massband auf dem Grundstück.
 
T

tepee

Hallo!

Nach einiger Zeit können wir uns wieder dem Hausbau widmen. Wir haben die Planung ziemlich abgeändert und herausgekommen ist nun diese Variante, die wir nun zügig umsetzen möchten.

Ca. 165qm Wohnfläche, ohne Keller, das eingezeichnete Carport ist optional, falls der Platz in der Garage evtl. zu wenig werden sollte. Wäre aber allein schon als Sichtschutz recht nützlich

Straßenseite ist Süden, siehe Nordpfeil bzw. Lageplan auf der ersten Seite hier. Höchster Punkt im SO, tiefster Punkt im NW. Die Garage soll so weit wie möglich tiefer gesetzt werden, damit mit etwas Böschung im NO der Garten möglichst eben wird.

EG ist quasi nach Westen gedreht. Somit Garten im Südwesten-Westen + Norden. Das Treppenhaus soll schön Licht reinlassen, damit wir auch vormittags Sonne haben.

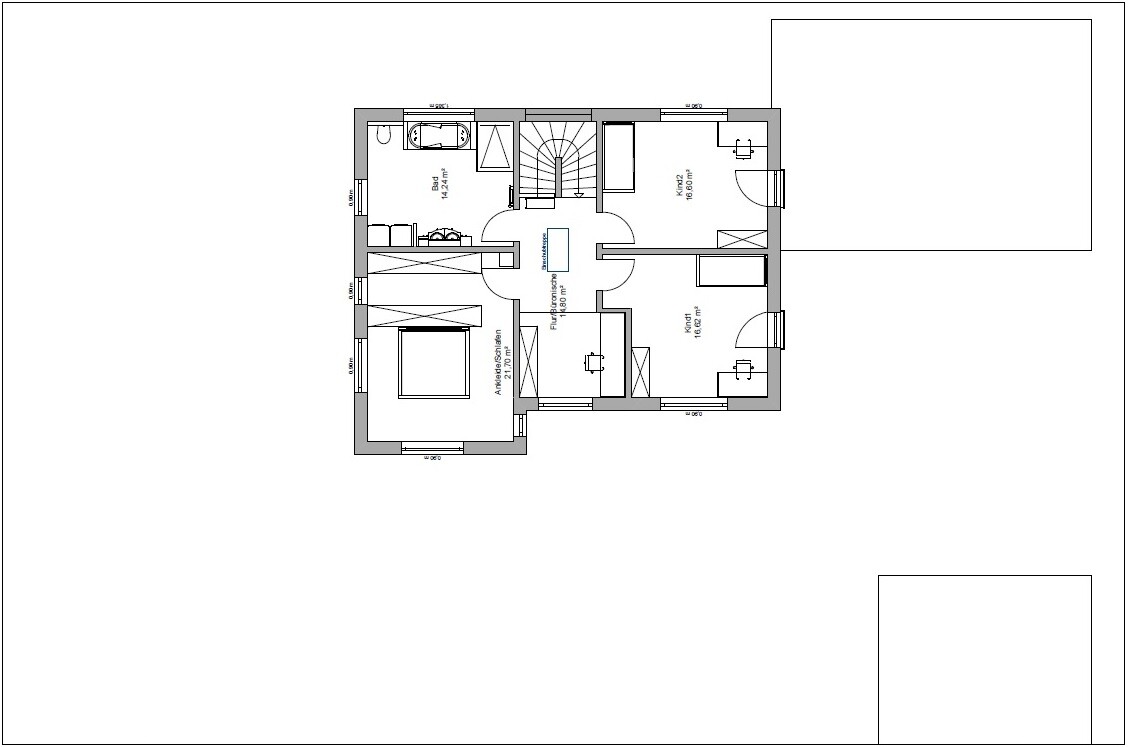
Im OG soll ins ziemlich große Badezimmer noch die Waschmaschine und/oder etwas Abstellmöglichkeit rein, mit (optischer?) Abtrennung. Also quasi ein kleiner Hauswirtschaftsraum im OG.

Wie sind Eure Meinungen dazu?


Grundriss eines Hauses mit Wohnzimmer, Küche, Essbereich, Schlafzimmer, Bad, Treppe, Doppelgarage.



Grundriss eines Obergeschosses: Flur mit Treppe, Bad, zwei Kinderzimmer, Schlafzimmer, Ankleidezimmer.
 
hausnrplus25

hausnrplus25

Ich habe gerade alle 7 Seiten gelesen. Turbulentes Auf und Ab bei eurer Planung v.a. bzgl der Keller-Frage

Grundriss mag ich. Ich würde die Himmelsrichtungen des OG gespiegelt bevorzugen (Kinderzimmer warmen SW und Schlafzimmer/Bad auf die Kühle Seite), falls das noch Anpassungsfähig ist.

Ansonsten freuen wir uns weiter auf Berichte und Bilder von der Umsetzung

LG
 
Zuletzt aktualisiert 21.11.2025
Im Forum Bauplanung gibt es 5072 Themen mit insgesamt 100818 Beiträgen


Ähnliche Themen zu Hausplanung auf vorhandenem. Grundstück
Nr.ErgebnisBeiträge
1Wie Hang sichern und Aufgang Garten kostengünstig gestalten? 27
2Erste Grundrissplanung auf Karopapier: Hang, Keller + 2 Geschosse. 80
3Einfamilienhaus Hanglang mit Keller für 2 Personen inkl. Home Office und Hobbyräume 80
4Wann ist ein Hang ein Hang? Keller vs. Bodenplatte 19
5Doppelhaushälfte am Hang mit Keller Grundriss suche. 17
6Einfamilienhaus mit Garage am leichten Hang 17
7Grundriss-Optimierung Neubau, Einfamilienhaus 2 Vollgeschosse ohne Keller am Hang - Seite 333
8Grundriss: Bauen leichten Hang - nicht genug für Keller wegen Aushub? 22
9Erstes Angebot, 157m2 mit Keller, KFW 70, Garage 14
10Keller oder Garage, oder Keller mit integrierter Garage - Seite 214
11Einfamilienhaus mit >180qm / Keller / Garage 68
12Bauen ohne Keller - Carport, Garage? 18
13Hanghaus 235 qm mit Garage im Keller auf 3600 qm Grundstück 15
14Holzdecke und Teilisolierung für Keller mit Garage 15
15Grundriss für Einfamilienhaus mit 200m² mit Einliegerwohnung 75 +Keller 140m² +Garage 56m² 59
16Grundriss Einfamilienhaus mit Keller und Garage - Seite 950
17Kostenschätzung m2 Wohnfläche Hanghaus mit Keller und Garage - Seite 387
18Grundriss Einfamilienhaus 136m² mit Garage & Keller 17
19Meinungen zum Grundstück am Hang. - Seite 222
20Ohne Keller gebaut & bereut? - Seite 1277

Oben