Liebe Forumsgemeinde,
ich würde mich freuen, wenn Ihr mal wieder über unseren Haus-Entwurf schauen könntet.
Man selber wird ja beim Planen betriebsblind, daher freue ich mich auf Eure Kritik. Vielen Dank.
Das Grundstück hat die Abmaße B17,5 x L72 Meter und liegt in einer ländlichen Gemeinde.
Hier findet Ihr die Grundrisse und ein paar Bilder. LG Steffi33.


ich würde mich freuen, wenn Ihr mal wieder über unseren Haus-Entwurf schauen könntet.
Man selber wird ja beim Planen betriebsblind, daher freue ich mich auf Eure Kritik. Vielen Dank.
Das Grundstück hat die Abmaße B17,5 x L72 Meter und liegt in einer ländlichen Gemeinde.
Hier findet Ihr die Grundrisse und ein paar Bilder. LG Steffi33.
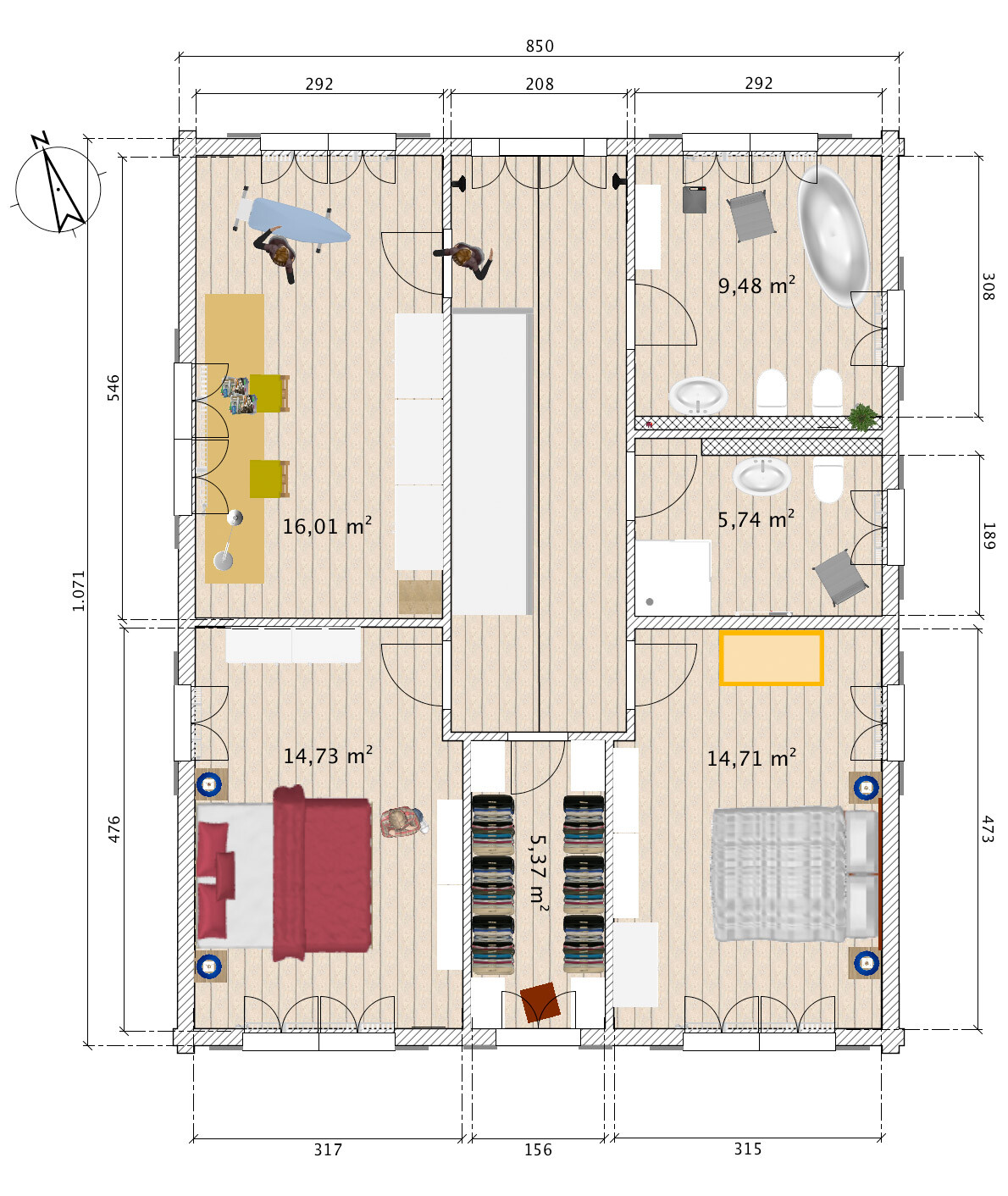
Hallo Steffi, ... dann ist der Hauswirtschaftsraum als Technikraum viel zu klein.
Ich seh keinen Platz für Haus-Technik oder Abstellfläche, auch die Ankleide ist für 2 Reihen Klamotten zu schmal mit 155 cm. Wo wird Gewaschen ...? Wo wird gelagert?
fragt Yvonne
Edit: ich habe "bügeln" gestrichen - den Platz sehe ich
Ich seh keinen Platz für Haus-Technik oder Abstellfläche, auch die Ankleide ist für 2 Reihen Klamotten zu schmal mit 155 cm. Wo wird Gewaschen ...? Wo wird gelagert?
fragt Yvonne
Edit: ich habe "bügeln" gestrichen - den Platz sehe ich
J
Jochen10410.02.15 19:52Ich sehe auf den ersten Blick die gleichen Probleme wie Yvonne.
Lösungsansatz für das Hauswirtschaftsraum-Problem:
Wenn ich richtig sehe plant ihr für drei Personen 2 Bäder und ein Gäste-WC. Überlegt euch, ob es nicht ausreicht eventuell im EG ein Duschbad (Hauswirtschaftsraum dazu nehmen) zu machen und den Hauswirtschaftsraum oben anzusiedeln. Allerdings hast du dann das Problem, dass du alles oben abstellen musst.
Alternativ: Unten alles als Hauswirtschaftsraum und oben Duschbad und großes Bad tauschen.
Lösungsansatz für das Hauswirtschaftsraum-Problem:
Wenn ich richtig sehe plant ihr für drei Personen 2 Bäder und ein Gäste-WC. Überlegt euch, ob es nicht ausreicht eventuell im EG ein Duschbad (Hauswirtschaftsraum dazu nehmen) zu machen und den Hauswirtschaftsraum oben anzusiedeln. Allerdings hast du dann das Problem, dass du alles oben abstellen musst.
Alternativ: Unten alles als Hauswirtschaftsraum und oben Duschbad und großes Bad tauschen.
Ähnliche Themen