Haus passend zum Grundstück? Größe vom Grundstück ausreichend?

4,20 Stern(e) 6 Votes
Zuletzt aktualisiert 18.11.2025
Sie befinden sich auf der Seite 4 der Diskussion zum Thema: Haus passend zum Grundstück? Größe vom Grundstück ausreichend?
>> Zum 1. Beitrag <<

Y

ypg

Mal Hand aufs Herz:
Das sind doch nicht Eure Möbel mit genau den Maßen, oder?
Und wenn: man baut doch kein WZ mit 2,65 Wandlänge, damit das eigene Sofa mit 2,65 Platz hat? Wo bleibt denn da der Abstelltisch? Oder ein neues Sofa mit 3 Meter Breite?

Ansonsten lese ich mit Kniestock von 80 oder 100 cm:
Schlafzimmer ist viel zu schmal, um ins Bett zu steigen. Noch dazu kommt die Dachschräge. Da kann man also nur vom Fußende reinrobben

Wie wäre es, mal die Ankleide um einen vernünftigen Meter zu schmälern, damit dieses Loch da verschwindet und das Schlafzimmer eine adäquate Breite bekommt? Der eingezeichnete Schrank dort im Kniestock ist ja eh nicht Schrank, also kann er auch geschmälert werden.

Bad wird wie eingerichtet? Das Loch zb ist zu schmal für eine Toilette. Badewanne?
Der Flur ist riesig, die Treppe schmal. Garderobe lütt.
Die Fenster erscheinen mir auch zu schmal.

Ansonsten ja eine gängige Raumanordnung, nur etwas Kuddelmuddel im selberwählten Feintuning. Man kannten Feintuning auch desolat sagen - kaputt geplant.
 
Zuletzt bearbeitet:
M

Mecky815

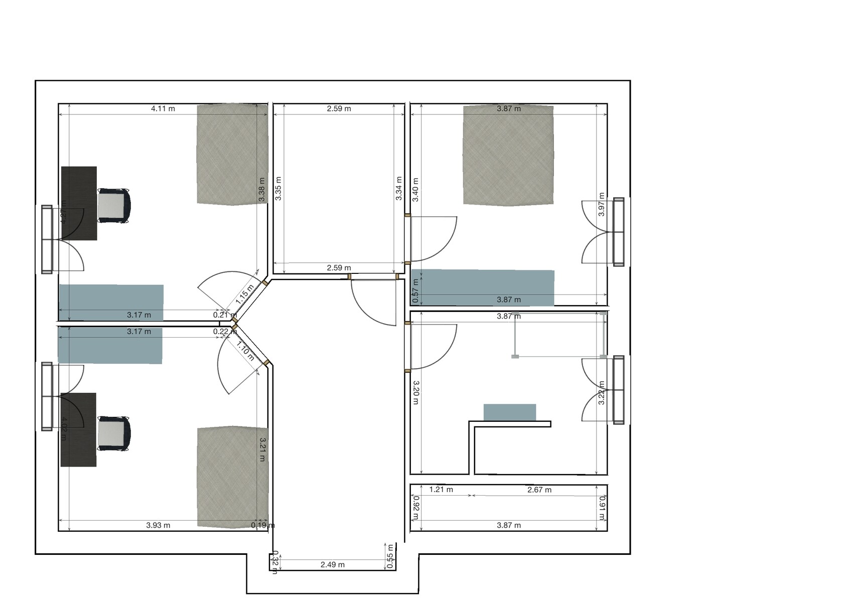
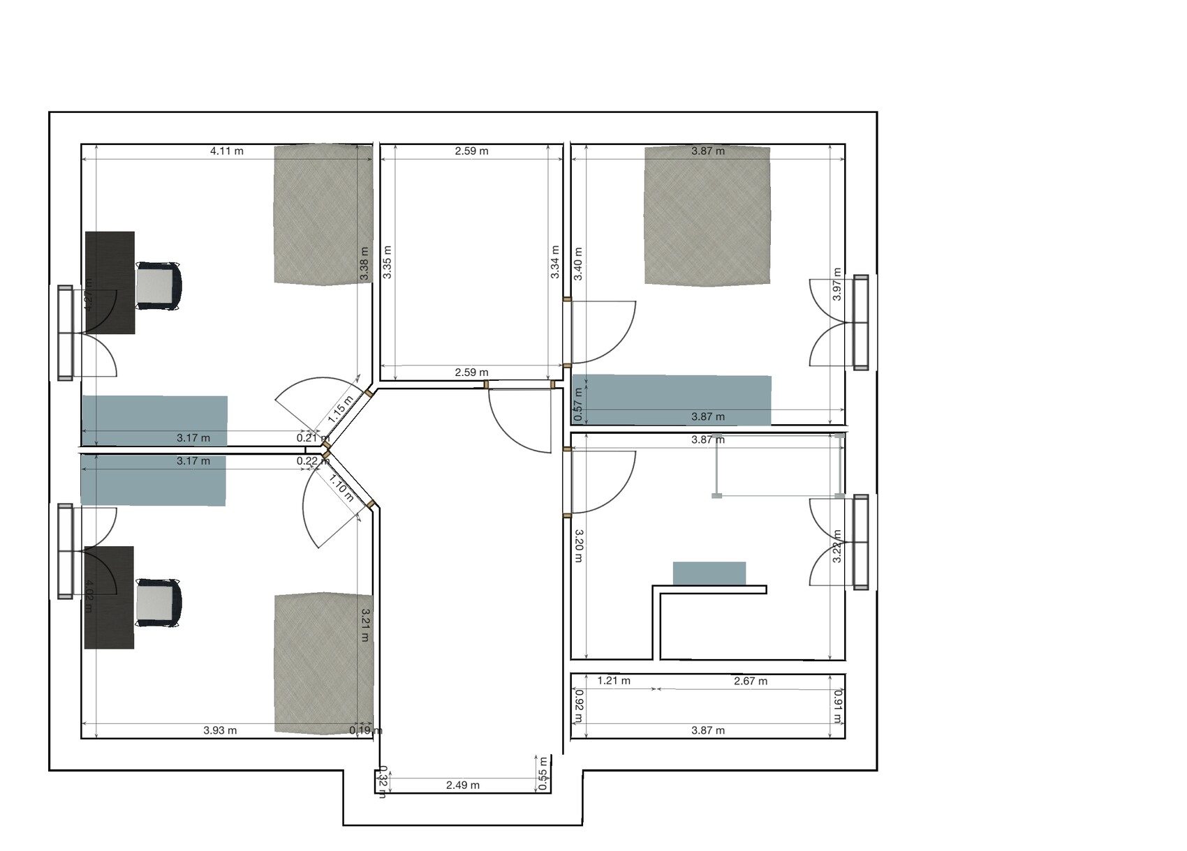
Ok ihr habt wohl recht gehabt, wir haben den Grundriss verschlimmbessert. Ich habe die Grundrisse nun komplett überarbeitet und hoffe das es so mehr Sinn macht, das Bad unten ist nach vorn gekommen, damit das Carport länger werden kann.
Was sagt ihr nun dazu?

Grundriss eines Hauses mit Wohnzimmer, Esstisch, Schlafzimmer, Arbeitsbereich und Holzdeck.


Grundriss einer Wohnung mit Zimmern, Türen, Betten und Schreibtischen; Maßangaben in Metern.
 
Y

ypg

Das OG macht so mehr Sinn, ja. Es ist funktioneller.

Im EG hast Du zB eine Garderobe für 4 Personen vergessen...
 
M

Mecky815

Ich habe bis jetzt noch keine Idee wie ich die Garderobe unten realisieren soll...hast du da einen Vorschlag?
 
Y

ypg

Ecke begradigen und so das WZ einen Raum werden lassen. Dann das WZ um 60cm einkürzen auf der Wand ohne Maß. Das könnte dann der Garderobenschrank werden.

Mehr ist bei halben Frageboden nicht zu sagen.
 
Zuletzt aktualisiert 18.11.2025
Im Forum Grundrissplanung / Grundstücksplanung gibt es 2536 Themen mit insgesamt 87971 Beiträgen


Ähnliche Themen zu Haus passend zum Grundstück? Größe vom Grundstück ausreichend?
Nr.ErgebnisBeiträge
1Idee Schlafzimmer - Bett / Schrank Anordnung 32
2Ankleide/Schlafzimmer Problem - Grundrissdiskussion 25
3Lösung für die Garderobe 106
4Schuhe an der Terrasse; wohin damit? Wäre ein Schrank die Lösung? - Seite 228
5Grundriss Einfamilienhaus ohne Keller/Schlafzimmer und Bad im EG - Seite 427
6Wie sieht eine gelungene Garderobe aus? 33
7Wohnzimmer: Wie Sofa, TV und Schränke stellen? - Seite 432
8Pfiffige Schlafzimmer Idee mit Ankleide gesucht 19
9Extra-Bad vom Schlafzimmer oder doch Abstellraum? - Seite 329
10Grundriss Schlafzimmer mit Bad und Ankleide 62
11Unser Häuschen, eure Meinung 31
12Fenster / Türen / Garderobe 13
13Planung Einbaustrahler Flur und Garderobe - Tipps - Seite 662
14Bodentiefe Fenster - wie Sofa stellen? 12
15Tisch, Stühle, Sofa... wo bloss kaufen? 69
16Tagesbett MELDAL als Sofa benutzen????? 12
17Kramfors Sofa Leder Braun - defekt... 12
18Suche den Ikea Namen für dieses Sofa? 12
19Bodenauslässe (Zuluft) unter Sofa und Schreibtischen? 36
20Varianten zur Anordnung TV- und Sofa-Bereich! - Seite 424

Oben