ᐅ Haus am Hang - ca. 200qm Wohnfläche
Erstellt am: 01.11.17 07:51
SupaCriz01.11.17 07:51
Guten Morgen allesamt,
wir bauen an einem schönen Hanggrundstück unweit der Innenstadt ein Einfamilienhaus mit ca. 200qm Wohnfläche. Wir hatten erste Entwürfe bereits vor ein paar Monaten eingestellt. Weil sich seitdem viel geändert hat, stellen wir den derzeitigen Planungsstand noch einmal neu ein und freuen uns auf die Diskussionen:
Bebauungsplan/Einschränkungen: Bebauungsplan
Größe des Grundstücks: 500qm
Hang: ja, ca 6 m Gefälle über 28 m Grundstückslänge (Südosthang)
Grundflächenzahl 0,2
Geschossflächenzahl 0,3 (Abweichungen bei Einhaltung der Grundflächenzahl werden voraussichtlich genehmigt)
Baufenster, Baulinie und -grenze: normale Abstandsflächen
Randbebauung: Garage wird in Grenze gebaut werden. Dies ist zulässig.
Anzahl Stellplatz: 1 + Garagenzufahrt
Geschossigkeit: I+IS (das bedeutet 1 Vollgeschoss + Sockelgeschoss --> Keller am Hang
Dachform: keine Vorgabe
Stilrichtung: keine Vorgabe
Ausrichtung: Dachfirst muss in Ost-West Richtung verlaufen
Maximale Höhen/Begrenzungen: Traufe Max. 3,60 m über Straßenniveau
weitere Vorgaben
Anforderungen der Bauherren
Stilrichtung, Dachform, Gebäudetyp: Satteldach 48° Neigung
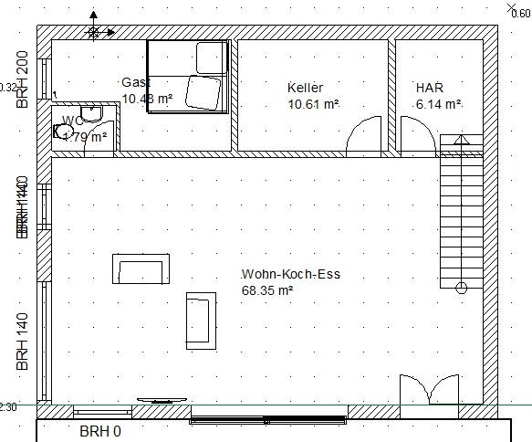
Keller, Geschosse: Kellergeschoss - am Südhang als vorwertiger Wohnraum mit Ausgang zur Terrasse nutzbar
Anzahl der Personen, Alter: Eltern knapp über 30, Kinder 0 und 2 Jahre alt
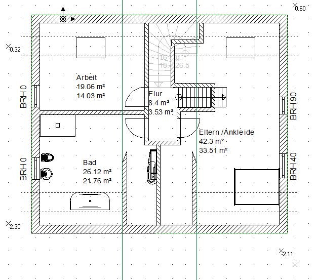
Raumbedarf im EG, OG: EG: Hauptwohnbereich und Küche; OG: 3 Schlafzimmer + Bad; UG: Sommerwohnzimmer/Spielzimmer mit Gartenzugang, Gästezimmer
Büro: Familiennutzung oder Homeoffice?: evtl. Büro als Studio unterm Dach (nicht entscheidendes Kriterium.
Schlafgäste pro Jahr: längerfristige Besuche sind absehbar
offene oder geschlossene Architektur: offene
konservativ oder moderne Bauweise: klassische Form aber große und Raumhöhe Fenster.
offene Küche, Kochinsel: offene Küche mit kalter Insel mit Sitzmöglichkeit
Anzahl Essplätze: 6
Kamin: wahrscheinlich ja, allerdings als Außenkamin
Musik/Stereowand: nein
Balkon, Dachterrasse: nein
Garage, Carport: Fertiggarage mit gemauerter Unterkellerung
Nutzgarten, Treibhaus: nein
weitere Wünsche/Besonderheiten/Tagesablauf, gern auch Begründungen, warum dieses oder das nicht sein soll:
ebenerdiger Terrassenzugang vom Souterrain aus
Photovoltaik
Hausentwurf
Von wem stammt die Planung:
-Planer eines Bauunternehmens (Bauingenieur) / Bauherren-Eigenplanung
Was gefällt besonders? Warum? Großes Souterrainzimmer mit Terrassenzugang. Komfortable Übernachtungsmöglichkeit für Gäste.
Was gefällt nicht? Warum? Die Treppenform finden wir sehr funktional, sie optimiert die Platzausnutzung im OG und generell zur Südseite des Hauses hin. Optisch hätten wir allerdings eine gerade Treppe bevorzugt.
Die geltende Vollgeschossdefinition nach Bayerischer Bauordnung von 1969 verbietet hier z.B. auch eine Drempelerhöhung oder eine zweite Gaube im OG.
Preisschätzung lt Architekt/Planer: €360.000
Persönliches Preislimit fürs Haus, inkl Ausstattung: 400.000
favorisierte Heiztechnik: Luft-Wasser-Wärmepumpe
Wenn Ihr verzichten müsst, auf welche Details/Ausbauten
-könnt Ihr verzichten: Photovoltaik
-könnt Ihr nicht verzichten: Keller in Wohnraum-Qualität
Warum ist der Entwurf so geworden, wie er jetzt ist? ZB
Ausgehend von den Gegebenheiten des Grundstücks und des Bebauungsplan haben wir den ersten Entwurf nach und nach vollständig umgestaltet, dabei Inspirationen hier aus dem Forum und aus Neubaugebieten (offline) / Pinterest und co (online) eingeplant.
Aktuell beschäftigen uns u.a. noch folgende Fragen:
- Bodentiefe Fenster auf Südseite einflügelig oder zweiflügelig - ursprünglich waren zweiflügelige mit 150cm Breite geplant. Uns gefällt die Optik ohne Unterteilung besser, dann wären aber wahrscheinlich Max. 120cm möglich.
- Festverglasung als großes Lichtband an Südwestecke des UG oder doch lieber zwei Fenster, die in Westansicht auf einer Linie mit den darüberliegenden Fenstern liegen
- Fenster im kleinen Kellerraum im Nordwesten zugunsten der Fassadenoptik weglassen?
- 2 zusätzliche Dachfenster direkt neben der Gaube im OG, um in Kinderzimmern für mehr Licht zu sorgen?
- Bodenbeläge EG und UG: Im OG wird es Parkett werden, für die beiden anderen Geschosse schwanken wir zwischen Parkett und durchgehendem Granitfußboden oder Sichtestrich/Spachtelboden
Wir sind gespannt auf die Kommentare!






wir bauen an einem schönen Hanggrundstück unweit der Innenstadt ein Einfamilienhaus mit ca. 200qm Wohnfläche. Wir hatten erste Entwürfe bereits vor ein paar Monaten eingestellt. Weil sich seitdem viel geändert hat, stellen wir den derzeitigen Planungsstand noch einmal neu ein und freuen uns auf die Diskussionen:
Bebauungsplan/Einschränkungen: Bebauungsplan
Größe des Grundstücks: 500qm
Hang: ja, ca 6 m Gefälle über 28 m Grundstückslänge (Südosthang)
Grundflächenzahl 0,2
Geschossflächenzahl 0,3 (Abweichungen bei Einhaltung der Grundflächenzahl werden voraussichtlich genehmigt)
Baufenster, Baulinie und -grenze: normale Abstandsflächen
Randbebauung: Garage wird in Grenze gebaut werden. Dies ist zulässig.
Anzahl Stellplatz: 1 + Garagenzufahrt
Geschossigkeit: I+IS (das bedeutet 1 Vollgeschoss + Sockelgeschoss --> Keller am Hang
Dachform: keine Vorgabe
Stilrichtung: keine Vorgabe
Ausrichtung: Dachfirst muss in Ost-West Richtung verlaufen
Maximale Höhen/Begrenzungen: Traufe Max. 3,60 m über Straßenniveau
weitere Vorgaben
Anforderungen der Bauherren
Stilrichtung, Dachform, Gebäudetyp: Satteldach 48° Neigung
Keller, Geschosse: Kellergeschoss - am Südhang als vorwertiger Wohnraum mit Ausgang zur Terrasse nutzbar
Anzahl der Personen, Alter: Eltern knapp über 30, Kinder 0 und 2 Jahre alt
Raumbedarf im EG, OG: EG: Hauptwohnbereich und Küche; OG: 3 Schlafzimmer + Bad; UG: Sommerwohnzimmer/Spielzimmer mit Gartenzugang, Gästezimmer
Büro: Familiennutzung oder Homeoffice?: evtl. Büro als Studio unterm Dach (nicht entscheidendes Kriterium.
Schlafgäste pro Jahr: längerfristige Besuche sind absehbar
offene oder geschlossene Architektur: offene
konservativ oder moderne Bauweise: klassische Form aber große und Raumhöhe Fenster.
offene Küche, Kochinsel: offene Küche mit kalter Insel mit Sitzmöglichkeit
Anzahl Essplätze: 6
Kamin: wahrscheinlich ja, allerdings als Außenkamin
Musik/Stereowand: nein
Balkon, Dachterrasse: nein
Garage, Carport: Fertiggarage mit gemauerter Unterkellerung
Nutzgarten, Treibhaus: nein
weitere Wünsche/Besonderheiten/Tagesablauf, gern auch Begründungen, warum dieses oder das nicht sein soll:
ebenerdiger Terrassenzugang vom Souterrain aus
Photovoltaik
Hausentwurf
Von wem stammt die Planung:
-Planer eines Bauunternehmens (Bauingenieur) / Bauherren-Eigenplanung
Was gefällt besonders? Warum? Großes Souterrainzimmer mit Terrassenzugang. Komfortable Übernachtungsmöglichkeit für Gäste.
Was gefällt nicht? Warum? Die Treppenform finden wir sehr funktional, sie optimiert die Platzausnutzung im OG und generell zur Südseite des Hauses hin. Optisch hätten wir allerdings eine gerade Treppe bevorzugt.
Die geltende Vollgeschossdefinition nach Bayerischer Bauordnung von 1969 verbietet hier z.B. auch eine Drempelerhöhung oder eine zweite Gaube im OG.
Preisschätzung lt Architekt/Planer: €360.000
Persönliches Preislimit fürs Haus, inkl Ausstattung: 400.000
favorisierte Heiztechnik: Luft-Wasser-Wärmepumpe
Wenn Ihr verzichten müsst, auf welche Details/Ausbauten
-könnt Ihr verzichten: Photovoltaik
-könnt Ihr nicht verzichten: Keller in Wohnraum-Qualität
Warum ist der Entwurf so geworden, wie er jetzt ist? ZB
Ausgehend von den Gegebenheiten des Grundstücks und des Bebauungsplan haben wir den ersten Entwurf nach und nach vollständig umgestaltet, dabei Inspirationen hier aus dem Forum und aus Neubaugebieten (offline) / Pinterest und co (online) eingeplant.
Aktuell beschäftigen uns u.a. noch folgende Fragen:
- Bodentiefe Fenster auf Südseite einflügelig oder zweiflügelig - ursprünglich waren zweiflügelige mit 150cm Breite geplant. Uns gefällt die Optik ohne Unterteilung besser, dann wären aber wahrscheinlich Max. 120cm möglich.
- Festverglasung als großes Lichtband an Südwestecke des UG oder doch lieber zwei Fenster, die in Westansicht auf einer Linie mit den darüberliegenden Fenstern liegen
- Fenster im kleinen Kellerraum im Nordwesten zugunsten der Fassadenoptik weglassen?
- 2 zusätzliche Dachfenster direkt neben der Gaube im OG, um in Kinderzimmern für mehr Licht zu sorgen?
- Bodenbeläge EG und UG: Im OG wird es Parkett werden, für die beiden anderen Geschosse schwanken wir zwischen Parkett und durchgehendem Granitfußboden oder Sichtestrich/Spachtelboden
Wir sind gespannt auf die Kommentare!
SupaCriz01.11.17 08:05
ivenh001.11.17 09:55
Leider finde ich diesen Entwurf nicht stimmig. Alles in allem sind die Räume nicht gut geschnitten und mMn viel zu groß.
- Ein rechteckiger Saal mit 60qm als Wohn/Essbereich? 60qm dafür finde ich ok, allerdings ist die Form sehr ungemütlich
- Vorrat 13qm? Für was?
- das OG hat lediglich 4 Räume auf ca. 100qm Grundfläche - Kinderzimmer mit über 20qm braucht niemand
- das KG ist nicht wirklich zu Ende geplant, die Kellerräume sind total unförmig - > wo ist der Technikraum? (falls das der HAR sein soll, reichen die 8qm wahrscheinlich nicht aus)
- ....
Des Weiteren denke ich nicht, dass ihr mit eurem Budget auskommt. Der Keller hat ja auch einige qm in Wohnraumqualität, dazu wollt ihr evtl noch das Studio ausbauen.
Ihr solltet eure Anforderungen mit einem Architekten diskutieren und euch dann einen Entwurf zeichnen lassen
Viele Grüße
ivenh0
- Ein rechteckiger Saal mit 60qm als Wohn/Essbereich? 60qm dafür finde ich ok, allerdings ist die Form sehr ungemütlich
- Vorrat 13qm? Für was?
- das OG hat lediglich 4 Räume auf ca. 100qm Grundfläche - Kinderzimmer mit über 20qm braucht niemand
- das KG ist nicht wirklich zu Ende geplant, die Kellerräume sind total unförmig - > wo ist der Technikraum? (falls das der HAR sein soll, reichen die 8qm wahrscheinlich nicht aus)
- ....
Des Weiteren denke ich nicht, dass ihr mit eurem Budget auskommt. Der Keller hat ja auch einige qm in Wohnraumqualität, dazu wollt ihr evtl noch das Studio ausbauen.
Ihr solltet eure Anforderungen mit einem Architekten diskutieren und euch dann einen Entwurf zeichnen lassen
Viele Grüße
ivenh0
ypg01.11.17 11:23
Ich kann mich an die Planung von damals erinnern: ihr habt den Fokus darauf, vom Hobbyraum in den Garten zu gehen. WZ bzw Küche dagegen geschlossen zu halten.
Hab ich damals nicht verstanden.
Verstehe jetzt auch so einiges nicht, sorry, zB die Fensterpositionen.
Warum nehmt ihr Euch keinen Architekt, der Eure Wünsche fachgerecht umsetzen wird?
Hab ich damals nicht verstanden.
Verstehe jetzt auch so einiges nicht, sorry, zB die Fensterpositionen.
Warum nehmt ihr Euch keinen Architekt, der Eure Wünsche fachgerecht umsetzen wird?
haydee01.11.17 11:33
Immer noch riesiger Vorrat.
Waschmaschine kommt denke ich in den HAR. Somit der längst mögliche Weg. Abstellräume Keller total verschachtelt.
Garten/Terrasse und Hauptwohnraum getrennt, ist und bleibt für mich ein NoGo.
Budget wird sehr knapp.
Plant ihr Stein auf Stein oder Holzständer?
Waschmaschine kommt denke ich in den HAR. Somit der längst mögliche Weg. Abstellräume Keller total verschachtelt.
Garten/Terrasse und Hauptwohnraum getrennt, ist und bleibt für mich ein NoGo.
Budget wird sehr knapp.
Plant ihr Stein auf Stein oder Holzständer?
ypg01.11.17 12:55
Ach, ich vergaß:
Kellermauern bilden grundsätzlich statisch das Fundament der nächsten Geschosse.
Euer Hobbyraum ist statisch so nicht machbar, geschweige denn als Grundlage der weiteren Geschosse zu sehen [emoji853]
Kellermauern bilden grundsätzlich statisch das Fundament der nächsten Geschosse.
Euer Hobbyraum ist statisch so nicht machbar, geschweige denn als Grundlage der weiteren Geschosse zu sehen [emoji853]
Ähnliche Themen