ᐅ Grundstück- und Grundriss-Planung mit Zufahrt in Süd-Ost
Erstellt am: 13.04.25 14:52
H
Häuslebauer26Häuslebauer26 schrieb:
Mittlerweile denken wir, kuckt er sich weg?Sicher nicht. Deswegen macht es ja niemand beim Walmdach. Satteldach wäre da eine Möglichkeit.Schorsch_baut schrieb:
Wir haben unseren Kaminofen seit zwei Jahren nicht genutzt und überlegen ernsthaft, den Ofen abzubauen, um den Platz besser nutzen zu können. Hätte ich auch nicht gedacht, aber uns wird es echt zu warm und wir sitzen lieber draußen an der Feuerschale, statt vor der Glasscheibe.So geht es vielen im Neubau. Die Dämmung sorgt dafür, dass das Bedürfnis nach mehr Wärme einfach nicht auftritt und sogar lästig wäre. Dazu der Dreck, den man wieder weg machen muss. Da lässt man es lieber.motorradsilke schrieb:
Ich finde gerade bei einer trägen Fußbodenheizung einen Kamin toll. Tagsüber, wenn man sich bewegt, sind die 21 Grad, auf die die Fußbodenheizung eingestellt ist, ausreichend. Das ist uns aber abends zum sitzen nicht warm genug. Also heizen wir im Winter und in der Übergangszeit oft abends mit dem Kamin zusätzlich. Wir möchten ihn nicht missen.Ich weiß @motorradsilke, wir Beide hatten das schon einmal besprochen hier und will auch gar nicht behaupten, mehr Recht zu haben als Andere; wie so oft gibt es eben verschiedene Meinungen und insbes. Empfindunen. Wir hatten das so, wie von Dir beschrieben und für uns war das nicht komfortabel, sondern eher ärgerlich. Wir hatten unsere "normale" Wohlfühltemperatur durch die Fußbodenheizung eingestellt (eher ein bisschen weniger, weil wir keine überhitzten Räume mögen) und wenn dann einmal der Kamin an war mit seiner jeweils ordentlichen Leistung wurde es uns schnell zu warm und wir machet, auch im Winter, das Fenster auf. Die Fußbodenheizung gab uns ja "unsere" Temperatur, wozu hätte es der Kamin dann wärmer als Wolhlfühlen machen sollen? Oder wir brauchten ihn , weil es vorher zu kalt war aber dann war ja die Fußbodenheizung zu niedrig eingestellt.Das "Problem" der Fußbodenheizung ist eben ihre Trägheit, weswegen wir auch keine mehr haben wollten. Im neuen Haus z.B. haben wir große Fensterflächen und selbst im Winter (nicht in den eiskalten Minustagen) wird es dennoch ab 9h angenehm warm durch die Sonne und ohne jegliche Heizung, am Nachmittag lässt das dann wieder nach und wir heizen mit dem Kamin (oder Infrarot oder Klima) ein bisschen dazu, so wie wir es eben jeweils brauchen. Eine Fußbodenheizung könnte darauf nicht so individuell und schnell reagieren, uns war es daher oft zu warm. Ich lese aber auch oft von Standardtemperaturen in den Räumen, die für mich unangenehm wären, insofern kann das auch, wie von Dir angesprochen, individuell sein.
Wir haben da auch ein anderes Nutzungsprofil bzw. eine andere Lebensweise und genau da sollten die Bauherren eben auch ansonsten genau hinschauen, nämlich wie ihre ganz individuellen Empfindungen sind, denn das kann keine Heizungsart zum Glück aller abdecken.
Meine Frau ist z.B. den Tag über nicht da und ich bin im überwiegend im offenen OG, wenn ich da bin und dann läuft im Einten oft mal gar keine Heizung außer punktuell oben bei mir. Das muss eben immer für jeden Anwendungsfall passen, ich finde einfach, dass man sich das wirklich kritisch überlegen sollte, weil es für ein nettes Gimmick ein teurer Spass ist, der auch, wie hier noch, räumliche Konsequenzen mit sich bringt. Bekannte haben auch einen schönen Kamin, nutzen den aber max. 3-4 mal im Winter. Da wüsste ich mein Geld anders zu nutzen für Komfortgewinn im Haus.
Insofern widerspreche ich Dir nicht, da es für Dein Empfinden so ist, für mich hatte das so gar nicht gepasst und der schöne, teure Kamin blieb immer aus.
Häuslebauer26 schrieb:
Zum Thema Dach: Wir haben mit dem Walmdach die Möglichkeit zwei Vollgeschosse mit einer Deckenhöhe von knapp 2.63 zu bauen. Außerdem kann die Photovoltaik auf Süd und Westdach verteilt werden. Beim Satteldach wird der Kniestock im OG zu niedrig und Sobald die Sonne um 14:30 / 15 Uhr in den Westen zieht, wars das mit der Photovoltaik.Ich lese hier keine härtere Kniestockbegrenzung für das Sattel- als für das Walmdach ?https://www.instagram.com/11antgmxde/
https://www.linkedin.com/company/bauen-jetzt/
H
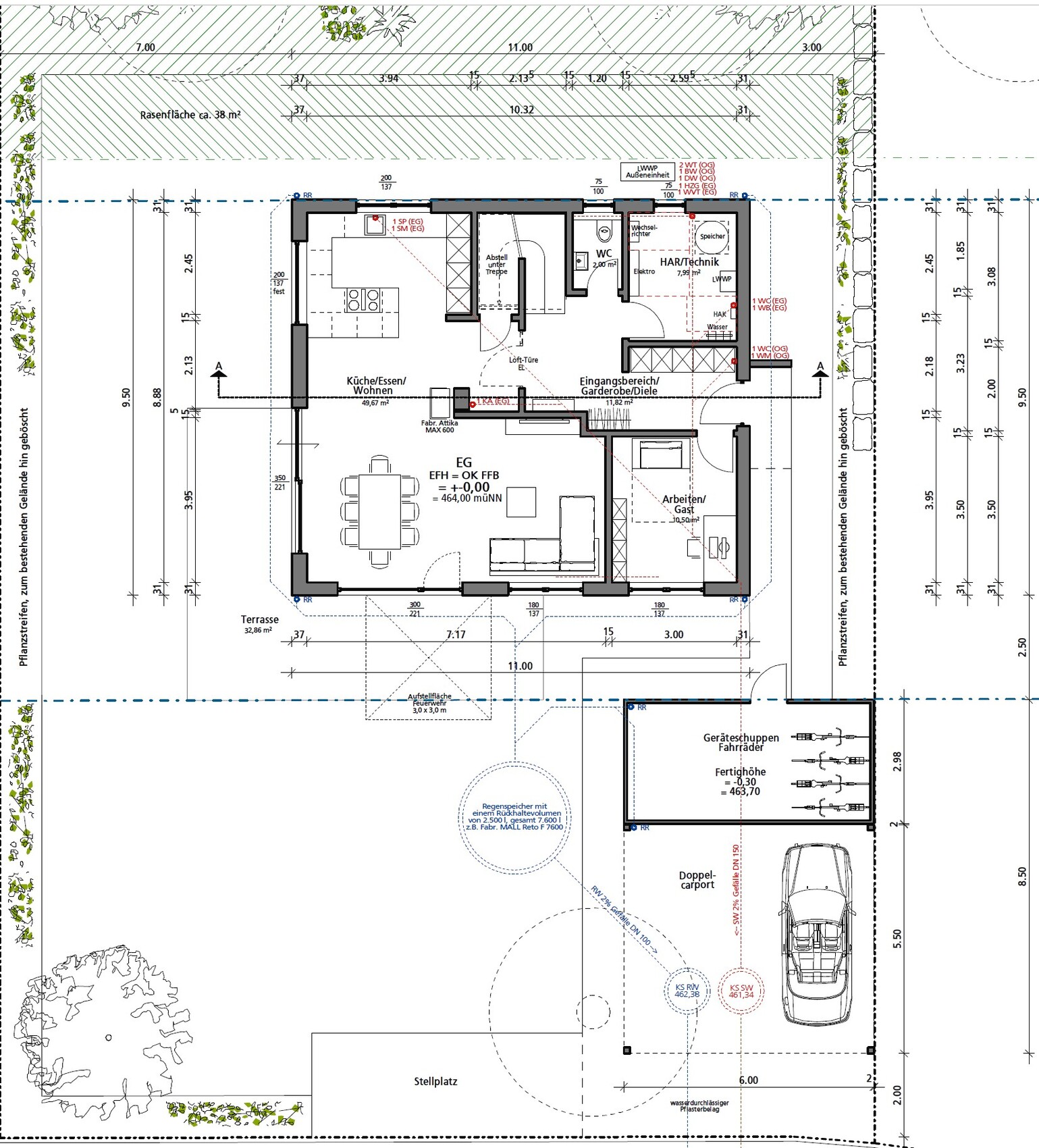
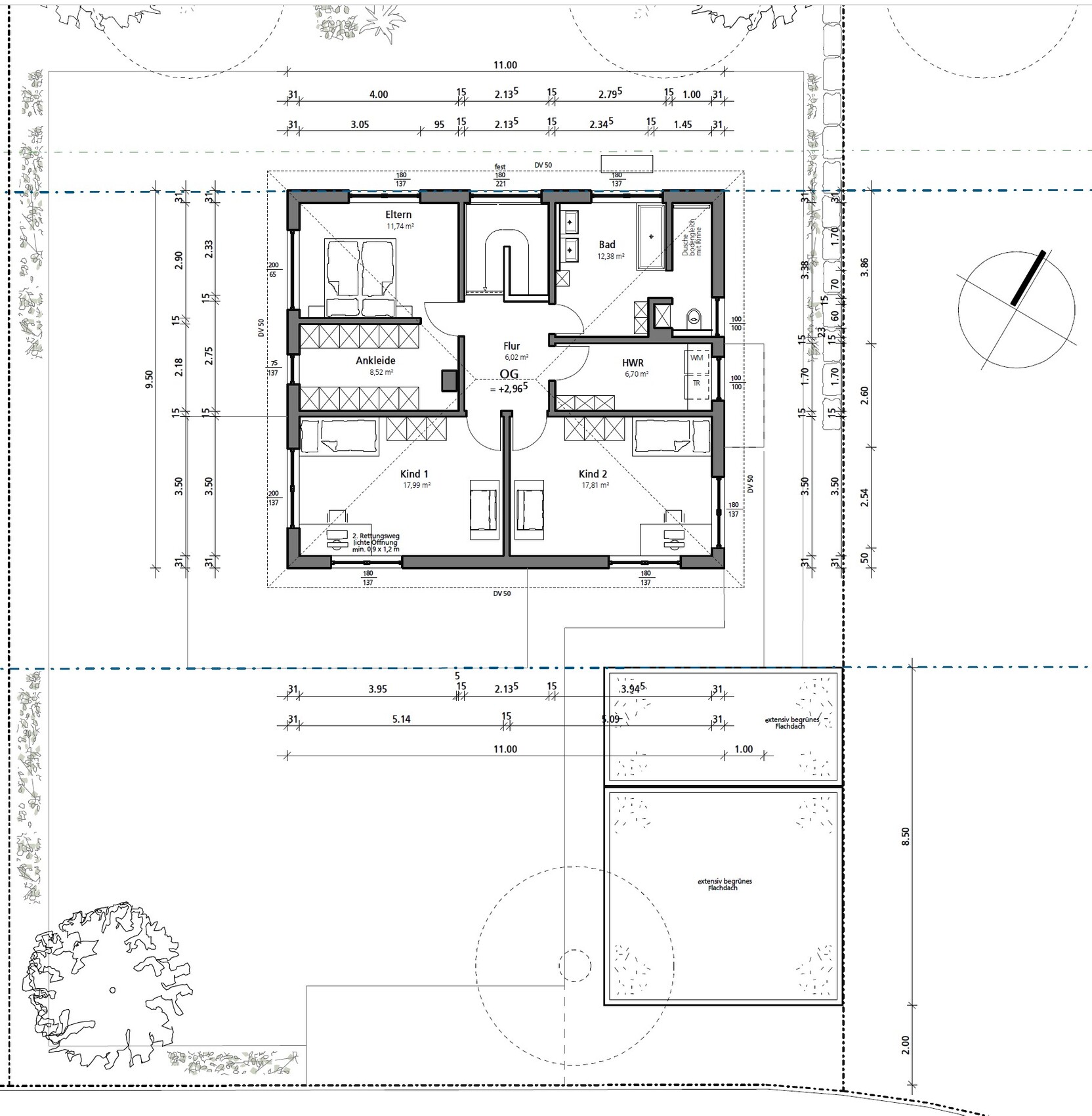
Häuslebauer2629.04.25 11:45Es gibt einige neue Infos, welche ich gerne mit euch teilen wir.
Wir haben nochmals abgewägt und gewisse Kompromisse neu bedacht.
Was hat sich geändert:
-Anbindung der Garage/Carport ans Haus ist vom Tisch, es macht einfach keinen Sinn und wir suchen hier keine Möglichkeit mehr. Vielleicht gibts irgendwann eine Überdachung vom Carport ans Haus, aktuell aber kein Thema.
-Speisekammer ja, aber nicht so wie geplant. Küche/Wohn- und Esszimmer waren dadurch kaputt.
Wir haben Wohn und Esszimmer getauscht und daher die Speisekammer in den Raum unter der Treppe verplant. Die Treppe ist natürlich geschlossen.
-Den Außenkamin haben wir auch verworfen, da wir eine gute Lösung für einen Innenliegenden Kamin gefunden haben.
-Der Flurbereich ist vermutlich noch immer nicht perfekt aber ein Kompromiss mit dem wir leben könnten.
Hier unser aktueller Stand.


Wir haben nochmals abgewägt und gewisse Kompromisse neu bedacht.
Was hat sich geändert:
-Anbindung der Garage/Carport ans Haus ist vom Tisch, es macht einfach keinen Sinn und wir suchen hier keine Möglichkeit mehr. Vielleicht gibts irgendwann eine Überdachung vom Carport ans Haus, aktuell aber kein Thema.
-Speisekammer ja, aber nicht so wie geplant. Küche/Wohn- und Esszimmer waren dadurch kaputt.
Wir haben Wohn und Esszimmer getauscht und daher die Speisekammer in den Raum unter der Treppe verplant. Die Treppe ist natürlich geschlossen.
-Den Außenkamin haben wir auch verworfen, da wir eine gute Lösung für einen Innenliegenden Kamin gefunden haben.
-Der Flurbereich ist vermutlich noch immer nicht perfekt aber ein Kompromiss mit dem wir leben könnten.
Hier unser aktueller Stand.
Ähnliche Themen