ᐅ Grundstück- und Grundriss-Planung mit Zufahrt in Süd-Ost
Erstellt am: 13.04.25 14:52
H
Häuslebauer26H
Häuslebauer2613.04.25 14:52Hallo liebe Forum-Mitglieder,
nun möchten auch wir auf eure Hilfe zurückgreifen!
Wir stehen an dem Punkt, dass die Entscheidung für einen Bauträger im Bereich Holzfertighaus (kleines Familienunternehmen, Ökologische Holztafel-Bauweise mit diffussionsoffenem Wandaufbau) gefallen ist und wir nur noch auf die Freigabe des Kredits warten, dieser sollte zeitnah erfolgen.
Die Architektenleistungen sind bei uns im Hauspreis inklusive und daher haben wir bereits erste Entwürfe und einige Nachbesserungen auf unsere Wünsche erhalten.
Wir sind allerdings etwas unglücklich und erhoffen uns, dass ihr ein paar tolle habt oder nochmal Gedankengänge antriggert.
Zu den Fakten:
Bebauungsplan/Einschränkungen
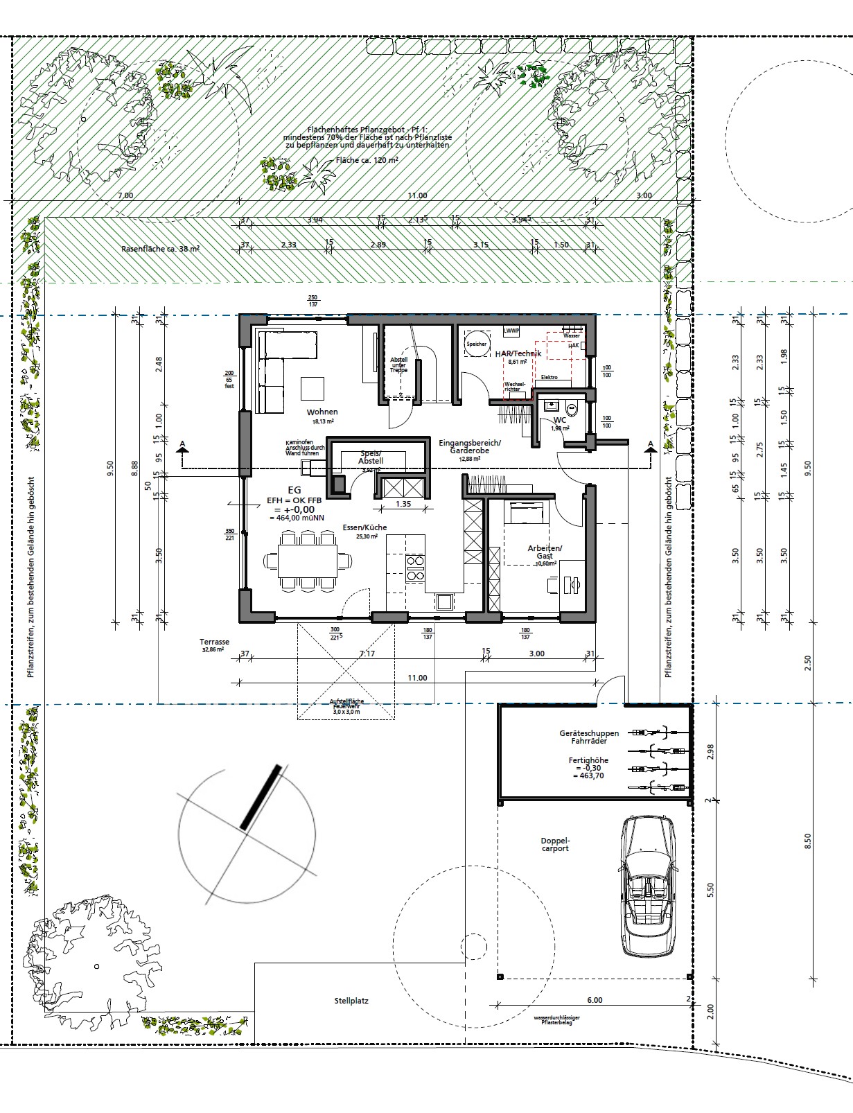
Größe des Grundstücks: 651qm
Hang: nein
Grundflächenzahl: 0,25 = 162,5
Geschossflächenzahl: keine Angabe im Bebauungsplan (BaWü)
Baufenster, Baulinie und -grenze: keine Angaben (BaWü); blau gestrichelte Linie im Bild
Randbebauung: Garage
Anzahl Stellplatz: maximal 6 oberirdische Stellplätze - brauchen wir niemals 🙂
Geschossigkeit 2 Vollgeschosse möglich, aber maximale Firsthöhe 8,50m
Dachform Sattel-, Walm oder Zeltdach; Dachneigung 20° - 35°
Maximale Höhen/Begrenzungen max. Firsthöhe max. 8,50

Anforderungen der Bauherren
Stilrichtung, Dachform, Gebäudetyp: Einfamilienhaus, Stadtvilla, Zelt oder Walmdach, Holzfertighaus
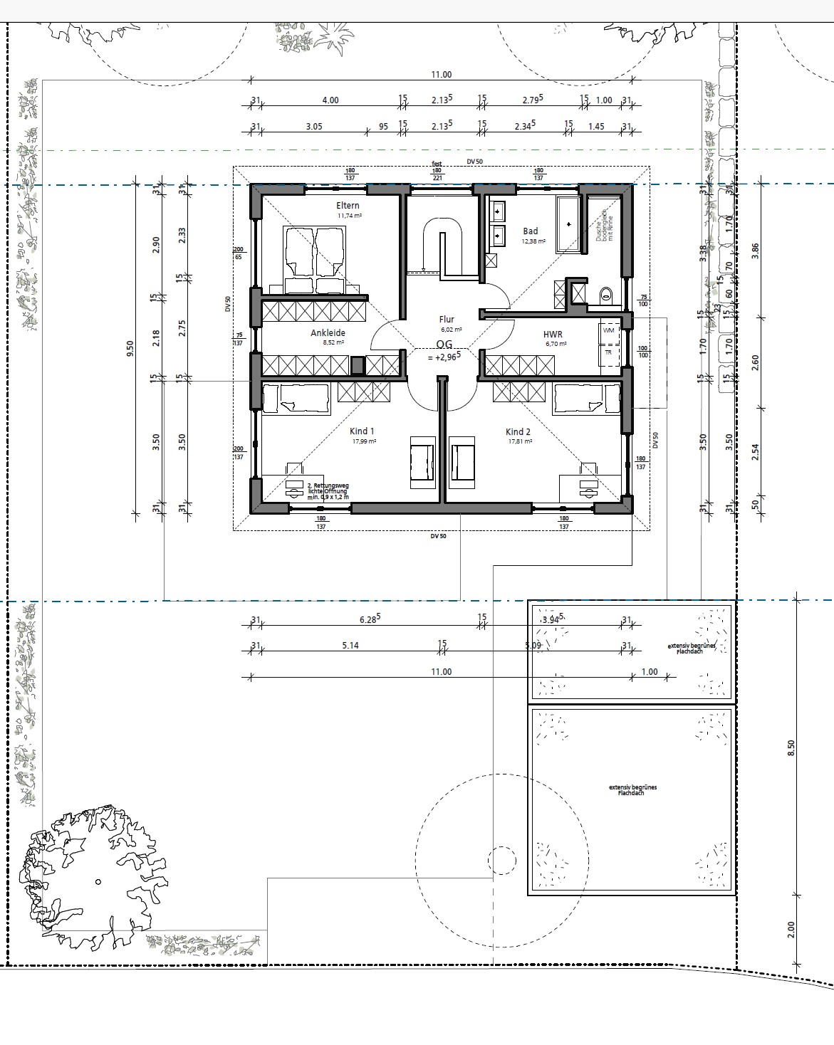
Keller, Geschosse kein Keller, 2 Vollgeschosse
Anzahl der Personen, Alter aktuell M32J., F27J., Nachwuchs gewünscht, geplant maximal zu 4.
Raumbedarf im EG, OG vermutlich ca. +/- 160qm, Zahl resultiert aus bisherigen Entwürfen
Büro: Familiennutzung oder Homeoffice? M hat 100% Homeofficejob, Raum dient auch als Gästezimmer
Schlafgäste pro Jahr ca. 3-4x
offene oder geschlossene Architektur eher offen
konservativ oder moderne Bauweise modern
offene Küche, Kochinsel offene Küche mit Küchenblock
Anzahl Essplätze 6 sicher, 8 wäre schön
Kamin gewünscht, aktuell eines der Probleme :-)
Musik/Stereowand nein
Balkon, Dachterrasse nein
Garage, Carport Wunsch wäre eine ans Haus angeschlossene Doppelgarage. Architekt hat es bisher nicht hinbekommen.
Nutzgarten, Treibhaus nein
weitere Wünsche/Besonderheiten/Tagesablauf, gern auch Begründungen, warum dieses oder das nicht sein soll
Hausentwurf
Von wem stammt die Planung: Architekt des Bauträgers
Was gefällt besonders? Warum? Offene Küche und Esszimmer, weil Mittelpunkt des Lebens im Haus. Ausrichtung Schlafzimmer Eltern und Bad, weil Fensterfront Richtung unbebautes Gelände, dort wird keine Siedlungserweiterung kommen
Was gefällt nicht? Warum?
-Speisekammer, weil Essbereich vielleicht etwas zu eng wird. Außerdem Kamin innerhalb Speisekammer, da Fläche sonst zu klein. Kamin Fixpunkt weil OG, nur minimaler Spielraum.
-Durchgang Esszimmer zu Wohnzimmer, lässt sich nur schwer vorstellen und soll kein unnützer Schlauch werden
-Garage: Aktuell ein Kompromiss. Wunsch wäre direkt angebundene Garage mit Zugang ins Haus durch z.B. Technikraum. Architekt sieht keine Möglichkeit da sonst SW-Seite zu eng wird - seine Worte. Falls es doch klappt, was tun mit dem Eingangsbereich?
Preisschätzung laut Architekt/Planer: Haus schlüsselfertig ohne Erdarbeiten und Küche 480K, bereits mit Bemusterten Materialien.
Persönliches Preislimit fürs Haus, inkl. Ausstattung: 500K
favorisierte Heiztechnik: Luft-Wasser-Wärmepumpe
Wenn Ihr verzichten müsst, auf welche Details/Ausbauten
-könnt Ihr verzichten: -Durchgang Wohnzimmer in Flur ist nice to have
-könnt Ihr nicht verzichten: -Speisekammer an sich
Warum ist der Entwurf so geworden, wie er jetzt ist? ZB
Standardentwurf vom Planer? War die Grundlage, mittlerweile ein gutes Stück weg davon.
Entsprechende/Welche Wünsche wurden vom Architekten umgesetzt? Große Küche und viel Licht im Küchen- und Essbereich, Wohnzimmer wurde etwas vergrößert
Was macht ihn in Euren Augen besonders gut oder schlecht? Gefühlt ist alles was er umgesetzt hat, was wir gesagt haben. Es kommt keine eigene Idee. Und wir warten auf ein "Hey - das könnte man besser machen".


Ich würde mich freuen, über jede kleide Idee und auch über jede Kritik!
Wünsche euch einen schönen Sonntag!
nun möchten auch wir auf eure Hilfe zurückgreifen!
Wir stehen an dem Punkt, dass die Entscheidung für einen Bauträger im Bereich Holzfertighaus (kleines Familienunternehmen, Ökologische Holztafel-Bauweise mit diffussionsoffenem Wandaufbau) gefallen ist und wir nur noch auf die Freigabe des Kredits warten, dieser sollte zeitnah erfolgen.
Die Architektenleistungen sind bei uns im Hauspreis inklusive und daher haben wir bereits erste Entwürfe und einige Nachbesserungen auf unsere Wünsche erhalten.
Wir sind allerdings etwas unglücklich und erhoffen uns, dass ihr ein paar tolle habt oder nochmal Gedankengänge antriggert.
Zu den Fakten:
Bebauungsplan/Einschränkungen
Größe des Grundstücks: 651qm
Hang: nein
Grundflächenzahl: 0,25 = 162,5
Geschossflächenzahl: keine Angabe im Bebauungsplan (BaWü)
Baufenster, Baulinie und -grenze: keine Angaben (BaWü); blau gestrichelte Linie im Bild
Randbebauung: Garage
Anzahl Stellplatz: maximal 6 oberirdische Stellplätze - brauchen wir niemals 🙂
Geschossigkeit 2 Vollgeschosse möglich, aber maximale Firsthöhe 8,50m
Dachform Sattel-, Walm oder Zeltdach; Dachneigung 20° - 35°
Maximale Höhen/Begrenzungen max. Firsthöhe max. 8,50
Anforderungen der Bauherren
Stilrichtung, Dachform, Gebäudetyp: Einfamilienhaus, Stadtvilla, Zelt oder Walmdach, Holzfertighaus
Keller, Geschosse kein Keller, 2 Vollgeschosse
Anzahl der Personen, Alter aktuell M32J., F27J., Nachwuchs gewünscht, geplant maximal zu 4.
Raumbedarf im EG, OG vermutlich ca. +/- 160qm, Zahl resultiert aus bisherigen Entwürfen
Büro: Familiennutzung oder Homeoffice? M hat 100% Homeofficejob, Raum dient auch als Gästezimmer
Schlafgäste pro Jahr ca. 3-4x
offene oder geschlossene Architektur eher offen
konservativ oder moderne Bauweise modern
offene Küche, Kochinsel offene Küche mit Küchenblock
Anzahl Essplätze 6 sicher, 8 wäre schön
Kamin gewünscht, aktuell eines der Probleme :-)
Musik/Stereowand nein
Balkon, Dachterrasse nein
Garage, Carport Wunsch wäre eine ans Haus angeschlossene Doppelgarage. Architekt hat es bisher nicht hinbekommen.
Nutzgarten, Treibhaus nein
weitere Wünsche/Besonderheiten/Tagesablauf, gern auch Begründungen, warum dieses oder das nicht sein soll
- im EG: Offener Wohn-Essbereich, Technikraum ohne Hauswirtschaftsraum, Zusätzlich Zimmer als Büro, Gäste-WC ohne Dusche.
- im OG: Elternschlafzimmer, 2 Kinderzimmer, Bad mit Dusche + Badewanne, Hauswirtschaftsraum für Waschmaschine und Trockner
- eine Rasen/Spielfläche für die Kids später
- Eine Terrasse die nicht direkt an der Straße liegt für Rückzugsmöglichkeit
Hausentwurf
Von wem stammt die Planung: Architekt des Bauträgers
Was gefällt besonders? Warum? Offene Küche und Esszimmer, weil Mittelpunkt des Lebens im Haus. Ausrichtung Schlafzimmer Eltern und Bad, weil Fensterfront Richtung unbebautes Gelände, dort wird keine Siedlungserweiterung kommen
Was gefällt nicht? Warum?
-Speisekammer, weil Essbereich vielleicht etwas zu eng wird. Außerdem Kamin innerhalb Speisekammer, da Fläche sonst zu klein. Kamin Fixpunkt weil OG, nur minimaler Spielraum.
-Durchgang Esszimmer zu Wohnzimmer, lässt sich nur schwer vorstellen und soll kein unnützer Schlauch werden
-Garage: Aktuell ein Kompromiss. Wunsch wäre direkt angebundene Garage mit Zugang ins Haus durch z.B. Technikraum. Architekt sieht keine Möglichkeit da sonst SW-Seite zu eng wird - seine Worte. Falls es doch klappt, was tun mit dem Eingangsbereich?
Preisschätzung laut Architekt/Planer: Haus schlüsselfertig ohne Erdarbeiten und Küche 480K, bereits mit Bemusterten Materialien.
Persönliches Preislimit fürs Haus, inkl. Ausstattung: 500K
favorisierte Heiztechnik: Luft-Wasser-Wärmepumpe
Wenn Ihr verzichten müsst, auf welche Details/Ausbauten
-könnt Ihr verzichten: -Durchgang Wohnzimmer in Flur ist nice to have
-könnt Ihr nicht verzichten: -Speisekammer an sich
Warum ist der Entwurf so geworden, wie er jetzt ist? ZB
Standardentwurf vom Planer? War die Grundlage, mittlerweile ein gutes Stück weg davon.
Entsprechende/Welche Wünsche wurden vom Architekten umgesetzt? Große Küche und viel Licht im Küchen- und Essbereich, Wohnzimmer wurde etwas vergrößert
Was macht ihn in Euren Augen besonders gut oder schlecht? Gefühlt ist alles was er umgesetzt hat, was wir gesagt haben. Es kommt keine eigene Idee. Und wir warten auf ein "Hey - das könnte man besser machen".
Ich würde mich freuen, über jede kleide Idee und auch über jede Kritik!
Wünsche euch einen schönen Sonntag!
Was sind denn nun ganz konkret die Dinge, die Euch gerade unglücklich machen und ich weiß auch nicht, ob ihr bei Bedarf auch nochmal von vorne beginnen würdet mit der Planung. Nicht dass man das zwingend müsste aber erfahrungsgemäß kann an eben nicht an einer Eck ziehen, ohne das an der anderen Seite etwas herunterfällt.
Zudem habt ihr offenbar Musthaves wollen, die eben woanders Probleme mit sich bringen.
Ich nenne mal zu allererst die sogenannte "Stadtvilla", die zum Einen eben nur Villa heißt und keine ist, wegen der schicken Bezeichnung aber offenbar immer wieder gerne genommen wird. Diese Bauform bringt oftmals Probleme mit sich, die man z.B. in einem Rechteck weniger hat.
Dann muss es ein Kamin sein, den ich zumindest i.V. mit einer Fußbodenheizung als unpassend ansehe und dieses Teil problematisiert nun die Speisekammer aber vor allen Dingen den Durchgang zwischem Wohnzimmer und Esszimmer. Ich finde, dass ein solcher Kamin auch geeigneten, optischen Wirkraum benötigt und man ihn doch gerne vom Wohnzimmer aus oder von woanders betrachtet, wenn er da so vor sich hinflimmert. Wir machen das äußest gerne, allerdings eben ohne Fußbodenheizung und dazu an einem schönen, dafür geschaffenen Platz. Will man zu viel erhält man irgendwann Mittelmaß, so wohl auch hier und vlt. sollte man sich von einigen Dingen einfach lösen, wobei ich schon beim Garagenthema wäre.
Eine Garage hätte ich eh nie, weil ich die Mehrkosten zum Carport lieber in mein Haus investieren würde (Kontrollierte-Wohnraumlüftung, Klima, Treppe, Beleuchtung etc.) anstatt in die Überdachung eines Autos. Die gezwungene, direkte Anbindung der Garage ans Wohnhaus stammt wohl auf so manchem amerikanischen Film aber das wäre eines der letzten Dinge, die ich dermaßen bestimmend einplanen würde beachten würde.
Die Kinderzimmer sind wirkliche sehr groß, auch das wurde vielfach besprochen hie und das Bad im OG ebenso und hat deutlich zu viel Leerfläche, ohne dass es deswegen schöner würde.
Im EG würde ich definitiv eine Dusch spendieren, da der Gast auch duschen möchte/sollte und bei 4 Personen sehe ich mittel-langfristig auch Bedarf dafür.
Soweit erstmal.
Zudem habt ihr offenbar Musthaves wollen, die eben woanders Probleme mit sich bringen.
Ich nenne mal zu allererst die sogenannte "Stadtvilla", die zum Einen eben nur Villa heißt und keine ist, wegen der schicken Bezeichnung aber offenbar immer wieder gerne genommen wird. Diese Bauform bringt oftmals Probleme mit sich, die man z.B. in einem Rechteck weniger hat.
Dann muss es ein Kamin sein, den ich zumindest i.V. mit einer Fußbodenheizung als unpassend ansehe und dieses Teil problematisiert nun die Speisekammer aber vor allen Dingen den Durchgang zwischem Wohnzimmer und Esszimmer. Ich finde, dass ein solcher Kamin auch geeigneten, optischen Wirkraum benötigt und man ihn doch gerne vom Wohnzimmer aus oder von woanders betrachtet, wenn er da so vor sich hinflimmert. Wir machen das äußest gerne, allerdings eben ohne Fußbodenheizung und dazu an einem schönen, dafür geschaffenen Platz. Will man zu viel erhält man irgendwann Mittelmaß, so wohl auch hier und vlt. sollte man sich von einigen Dingen einfach lösen, wobei ich schon beim Garagenthema wäre.
Eine Garage hätte ich eh nie, weil ich die Mehrkosten zum Carport lieber in mein Haus investieren würde (Kontrollierte-Wohnraumlüftung, Klima, Treppe, Beleuchtung etc.) anstatt in die Überdachung eines Autos. Die gezwungene, direkte Anbindung der Garage ans Wohnhaus stammt wohl auf so manchem amerikanischen Film aber das wäre eines der letzten Dinge, die ich dermaßen bestimmend einplanen würde beachten würde.
Die Kinderzimmer sind wirkliche sehr groß, auch das wurde vielfach besprochen hie und das Bad im OG ebenso und hat deutlich zu viel Leerfläche, ohne dass es deswegen schöner würde.
Im EG würde ich definitiv eine Dusch spendieren, da der Gast auch duschen möchte/sollte und bei 4 Personen sehe ich mittel-langfristig auch Bedarf dafür.
Soweit erstmal.
R
roteweste13.04.25 18:15An sich gefällt mir der Entwurf mit ein paar Abstrichen.
- Ich bin kein großer Fan von Speisekammern, aber bei euch, ist sie komplett zentral im EG untergebracht und verbaut euch aus meiner Sicht die Eingangs-Situation. Ich persönlich würde vom Wohnzimmer auch nicht auf die Eingangstür schauen wollen, aber ich glaube da bin ich eigen. Plant mal ohne Speise oder mit Speise an einer anderen Stelle.
- Ich persönlich würde mir auch überlegen die Garderobe in zwei Bereiche aufzuteilen.
- Was ist der Grund für ein Walmdach? Ein Satteldach ist bei eurem Baukörper günstiger, bietet mehr Dachboden und bessere Photovoltaik-Ausbeute (in BW braucht ihr das ja eh zwangsläufig).
- Garage/Carport: Das sehe ich anders als @Arauki, aber recht hat er schon: Überlegt euch, wofür ihr die haben wollt. Mit zwei Kindern und zwei Autos, die zur Arbeit bewegt werden wollen, sehe ich da aber schon Sinn drin. Das Delta gegenüber Carport sollte um die 20k Euro betragen.
- EG Dusche schließe ich mich bei 2 Kindern an.
roteweste schrieb:
Wenn das Grundstück tatsächlich eben ist, könnte man auch nochmal über die Hausposition nachdenken und den Garten in den Nord-Westen legen mit einer kleinen Südterrasse.Guck dir mal im Eingangsbeitrag die blau gestrichelten Linien an. Das sollte der Bereich sein, in dem das Haus stehen darf.Deshalb finde ich auch den Architektenansatz mit dem Carport und dem Schuppen im Anschluss recht gut. Der schafft schon mal einen Bereich, der abends auch Westsonne bekommt aber geschützt von der Straße liegt.
Der Hauseingang liegt halt ziemlich versteckt.
Ich würde auch über ein recht flaches Satteldach nachdenken.
S
Schorsch_baut13.04.25 19:23Ich find den Grundriss auch gut, aber die Speisekammer wäre besser zu nutzen, wenn diese 1m tiefer wäre. So ist ein (kaum) begehbarer Schrank. Und man hat einen seltsamen Zickzack Weg vom Eingang zum Wohnzimmer. Das ist arg verwinkelt.
Arauki11 schrieb:
Diese Bauform bringt oftmals Probleme mit sich, die man z.B. in einem Rechteck weniger hat.Die Grundfläche hier .ist. ein Rechteck.Und es gibt jetzt auch vom Grundriss her wenig negative Eigenschaften, die eine konventionelle Anstattvilla besitzt.
Häuslebauer26 schrieb:
Architekt sieht keine Möglichkeit da sonst SW-Seite zu eng wird - seine Worte. Falls es doch klappt, was tun mit dem Eingangsbereich?Was soll denn da klappen?Mal davon abgesehen, dass ich von dieser Flurdoppelung durch einen weiten Hauseingang nichts halte, wirst Du wohl auch die Problematik erkennen, die die Durchführung eines solchen Wunsches hat?! Man will dieses, man will das und jenes, und dabei vergisst man, dass das Grundstück endlich ist, ein Haus, zumindest eine Stadtvilla meist nur vier Außenwände hat, man doch sicherlich den Wohnräumen mehr Aufmerksamkeit schenkt als einer Unterbringung von Fahrzeugen, die alle Jahre ausgetauscht werden.
In diesem Sinne finde ich die Priorisierung des Architekten schon nachvollziehbar.
Häuslebauer26 schrieb:
Die Architektenleistungen sind bei uns im Hauspreis inklusiveBeim Lesen hatte ich eigentlich schon eine vorgefertigte negative Meinung, allerdings muss ich sagen:Häuslebauer26 schrieb:
Wir sind allerdings etwas unglücklichIch kann nicht erkennen, dass hier Grund besteht, mit dem Architekten und mit der Planung unglücklich sein zu müssen.Der Entwurf ist zwar kein Optimum, aber auch kein quadratisch praktisch gut bzw. schlecht, weil sich keine Mühe gegeben wird.
Ich finde ihn schon recht gut bis auf 2,3 Kleinigkeiten, die man schnell verbessern kann.
Allerdings sehe ich in der Speis und der Wahl des Hausstiles das größte Problem
Häuslebauer26 schrieb:
Was gefällt nicht? Warum?
-Speisekammer, weil Essbereich vielleicht etwas zu eng wird.Häuslebauer26 schrieb:
soll kein unnützer Schlauch werdenGenau, es hat sich ein unnützer Schlauch gebildet, der dafür sorgt, dass der Kamin eigentlich ein trostloses Dasein findet. Ein Gang, der WZ vom Essbereich trennt, eine Speis, die zwar Lagerfläche für die Küche generiert, aber wozu?Kleinigkeiten wie die Toilette im Nassbereich der Dusche usw.
Es gibt keinen weiteren Stauraum durch die Villa-Optik für zb Koffer und Dekokrams. Will man diese Sachsen tatsächlich in der Ankleide oder im Hauswirtschaftsraum lagern? Ich würde hier tatsächlich auf einen Kniestock von 180 oder ähnlich gehen und Abstellfläche unterm Dach über Dachschräge/Satteldach generieren.
Speis würde ich einschränken, z.B. über eine schmale Verlängerung des AB unter der Treppe, die dann als Abtrennung, aber nicht als Blockade dient. In der Küche sollten 3 Hochschränke reichen, damit man die Arbeitsfläche vergrößert, denn die finde ich bei dieser Küche einfach zu wenig. Die Ecken sind nur als Abstellfläche zu gebrauchen und dann ist da nur noch die Insel. Der Rest ergibt sich dann hoffentlich von allein.
Ähnliche Themen