Hausbau - Ratgeber
Bauherrenhilfe
- Bauherrenhilfe vor Vertragsabschluss
-- Warum einen unabhängigen Baubetreuer?
-- Vertragsgrundlagen
-- Bausumme
-- Zahlungsplan zur Kostenkontrolle
-- Pflichten des Bauherren vor Vertragsabschluss
-- Unterlagen beim Hausbau vor Vertragsabschluss
- Bauherrenhilfe nach Vertragsabschluss
-- Bauantrag bei Behörden
-- Bau-Genehmigungsverfahren bei Baubehörden
-- Bauspezifische Versicherungen
-- Bauzeitenplan
-- Baubeginn - die Letzten Pflichten der Bauherrschaft
- Bauherrenhilfe während der Bauzeit
- Gewährleistungsansprüche
- Bauabnahme
Baufinanzierung
- Baufinanzierung - Allgemeine Fragen
- Kreditarten
- Kredit-Konditionen
- Bausparen
- Staatliche Förderungen
- Verkehrswert
- Haushaltsrechnung und Bonität
Hausbau Planung
- Haustypen
- Hausbau Vorbereitungsarbeiten
- Das Baugrundstück
- Baugrund beim Hausbau
- Baurecht
- Gebäudeschutz
- Erdarbeiten und Wasserhaltung
- Stützmauern
- Einfriedung
- Untergeschoss
- Kanalisation
- Tragende Elemente
- Nichttragende Innenwände
- Fundation / Fundament
- Deckenkonstruktionen
- Dächer
- Kaminanlagen
- Treppen Rampen Leitern
- Dachbeläge und Spengler
- Fenster
- Sonnen und Wetterschutz
- Aussenputze
- Einbauten, Küchen, Türen
- Bodenbeläge und Unterlagsböden
- Parkett
- Gips, Wand, Decke
Haustechnik und Energie
- Heiztechnik
- Lüftung und Klimatechnik
- Sanitärtechnik
- Elektrotechnik
- Erneuerbare Energie
Whirlpools / Jacuzzi
Hausbau Magazin
- Baufinanzierung trotz Krise?
- Das Blockhaus
- Moderne Dämmstoffe im Vergleich
- Erker Vor- und Nachteile
- Glasflächen beim Hausbau
- Günstig ein Haus Bauen
- Mediterraner Hausbaustil
- Mehrgenerationenhaus
- Moderne Architektur
- Gartengestaltung leicht gemacht
- Traditioneller Ziegelbau
- Villa als höchster Traum
- Im Eigenheim Ruhestand geniessen
- Altbau sanieren
- Kauf einer Holzgarage
- Immobilienmakler
- Arbeitshandschuhe für den Winter
- Zuhause verschönern
- Outdoor-Plissees
- Schlafzimmer planen
- Terrassenüberdachung
- Wohngebäudeversicherung
- Zaunarten und Eigenschaften
- Hauseingang gestalten
- Der perfekte Grundriss
- Sparsamer heizen im Altbau
- Einfamilienhaus smart finanzieren
- Planung einer PV-Anlage
- Neues Haus
- Immobilienfinanzierung
- Installation einer Photovoltaikanlage
- Asbest erkennen und entfernen
- Gartenpflege im Frühling – worauf achten
- Sauna im Fokus - Wellness zuhause
- Erfolgreich vermieten
- Die perfekte Winterbekleidung
- Das Niedrigenergiehaus
- Der April und seine Stürme
- Architektonische Vielfalt
- Ökologisch und nachhaltig bauen
- Das perfekte Schlafzimmer
- Nachhaltige Energieversorgung
- Zukunftsorientiert bauen
- Nachhaltigkeit beim Hausbau
- Tiny Houses
- Wärmepumpen als nachhaltige Heizvariante
- Maßgeschneiderten Kleiderschrank
- Der richtige Baukredit
- Ratgeber für erfolgreichen Hausbau
- Haus als Altersvorsorge
Do-it-yourself Anleitungen
- Verlegeanleitung für Bodenbeläge und Parkett
- Bodenbeläge und Parkett reinigen und pflegen
- Malerarbeiten am Haus
- Garten Tipps
- Umzug und Reinigung

ᐅ Grundstück- und Grundriss-Planung mit Zufahrt in Süd-Ost

Erstellt am: 13.04.25 14:52
H
Häuslebauer26
S
Schorsch_baut
13.04.25 19:37
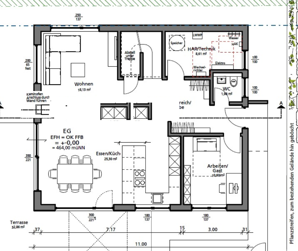
Ich würde statt der Kammer eine Hochschrankzeile setzen und die Insel verbreitern. Den Kamin an die Außenwand.


Grundriss eines Hauses: Wohnzimmer, Essbereich/Küche, Arbeitszimmer, WC, Technikraum, Terrasse.
roteweste13.04.25 19:56
kbt09 schrieb:

Guck dir mal im Eingangsbeitrag die blau gestrichelten Linien an. Das sollte der Bereich sein, in dem das Haus stehen darf.
Mir ging es insbesondere um die Ausrichtung von Hauseingang und Allraum. Das Haus würde dann noch 1-2 Meter nach Süden rücken. Vorteil ist dann der schöne Ausblick auf unverbautes Grün. Sicher nicht ganz konventionell, aber eine Überlegung wert, wie ich finde. Das Grundstück ist auch groß genug für eine kleine Zweitterrasse im Süden. Ich bin gerade schon etwas neidisch.
A
Arauki11
13.04.25 20:07
ypg schrieb:

Die Grundfläche hier .ist. ein Rechteck.
Ok, 11 zu 9,50m ist tatsächlich kein genaues Quadrat, das ist richtig. Beim Draufschauen, und das alleine habe ich gemacht, erscheint das auch nah Genuss eines alkoholfreien Bieres wie ein Quadrat bzw. zumindest nahe dran. Ich weiß selbst nicht, ob diese üblichen "Stadtvillen" (Frage an @11ant: Hast Du Dir Deine Bezeichnung eigentlich schon patentieren lassen?) immer cm-genau ein Quadrat darstellen, dennoch erinnere ich mich an immer ähnliche Probleme, nämlich dem zu viel an Raum in der Hausmitte und dem zu wenig anderswo. Genau daraus resultiert auch dieser m.E. sinnlose Block in der Mitte, der bei einem "ausgeprägten" Rechteck dort zum Glück niemals Platz hätte.
Ich befürchte, dass zuerst der Haustyp abgefragt wurde und dieser mit "gerne eine Stadtvilla" o.ä. beantwortet wurde und der Planer erst dann die Bedürfnisse seiner Kunden darin versteckt hat.
@Häuslebauer26 ist ja erkennbar unzufrieden bislang; ich denke, dass daher ein Plan neu gedacht werden sollte, frei von unnötigen Vorgaben an die verkaufsorientierten Begriffsbestimmungen. Wenn dann immer noch so ein Pseudo-Quadrat herauskommen ok, das glaube ich aber nicht wirklich.
ypg schrieb:

Und es gibt jetzt auch vom Grundriss her wenig negative Eigenschaften, die eine konventionelle Anstattvilla besitzt.
Ich möchte den Grundriss damit keinesfalls als schlecht abtun, jedoch ist die verquerte Flursituation mit 2 Garderobenseiten nicht wirklich gelungen und ich für meinen Teil hätte lieber relativ frei in den hellen Wohnraum und/oder darüber hinaus ins Grüne geschaut als auf die Rückwand der Speisekammer. Das ist aber mein ureigenes Empfinden und lediglich (m)eine Meinung.
Sofern das EG noch eine Dusche bekommt, was ich bei dieser Familiensituation als zwingend ansehen würde, wird es ohnehnin knapp, auch weil der Technikraum nicht gerade üppig ist.
ypg schrieb:

Will man diese Sachsen tatsächlich in der Ankleide oder im Hauswirtschaftsraum lagern?
sag Nichts gegen diese Sachsen, gell!
Die Idee von @Schorsch_baut gefällt mir schon gut, vielleicht würde ich den rechten Garderobenteil in die Dusche umwandeln. Falls der Kamin tatsächlich sein soll trotz FBHJ würde ich über einen Außenkamin nachdenken. Das spart innen Platz und sieht meiner Meinung nach auch schick aus; wir haben das so gemacht und mögen es auch von der Außenansicht.
Y
ypg
13.04.25 20:22
Arauki11 schrieb:

sag Nichts gegen diese Sachsen, gell!
Hehe, die Sachsen sperrt man ein.
Arauki11 schrieb:

2 Garderobenseiten
Die wären mir auch ein Dorn im Auge. Ein breiter Schrank passt auf keiner Seite.
Allerdings würde ich ungern vom Sofa durch den Flur zur Haustür schauen können.
11ant13.04.25 20:32
Ich sehe hier auf den ersten Blick zwei Fehlkonstruktionen: die Speisekammer umschlossen von Wohnräumen, also rundum warmgehalten obwohl sie besser an der Nordwand läge, zudem zusätzlich "geheizt" durch den Kamin; zweitens der Kamin selbst: in einem Energieeinsparverordnung-Haus schon Quatsch, in einem Gebäudeenergiegesetz-Haus erst recht. Nehmt einen "Kamin21" (Black Matrix Display, Raspberry, Sound) - authentisch, erheblich billiger, emittiert keine Überwärme, der Schornsteinfeger ist arbeitslos.
Häuslebauer26 schrieb:

Wir stehen an dem Punkt, dass die Entscheidung für einen Bauträger im Bereich Holzfertighaus [...] gefallen ist
"Entscheidung gefallen" weil Firma nett, andere Firma weniger nett, dritte Firma zu teuer und eine vierte kennt Ihr nicht und/oder.
Häuslebauer26 schrieb:

(kleines Familienunternehmen, Ökologische Holztafel-Bauweise mit diffussionsoffenem Wandaufbau)
Wegen des langbärtigsten Marketingwitzes von der atmenden Wand?
Häuslebauer26 schrieb:

Von wem stammt die Planung: Architekt des Bauträgers
Wie müssen wir uns das vorstellen: seid Ihr mit Wünschen dahin gegangen und der Entwurf stammt vom "Architekten", oder hat er schlicht Euren Eigenentwurf "sauber gezeichnet" ?
Ein Laienplan (der auch ein solcher bleibt, wenn ein Provi ihn abgemalt hat) weist typischerweise etwa 20% unerkannte Überfläche auf, hat also bei 160 qm das Potential, verlustfrei (!) um ca. 25 qm (= 75 k EUR) geschrumpft werden zu können - sind die bisher ausgelesenen Mitbewerber dann immer noch über dem Budget ?
Arauki11 schrieb:

Ich weiß selbst nicht, ob diese üblichen "Stadtvillen" (Frage an @11ant: Hast Du Dir Deine Bezeichnung eigentlich schon patentieren lassen?) immer cm-genau ein Quadrat darstellen, dennoch erinnere ich mich an immer ähnliche Probleme, nämlich dem zu viel an Raum in der Hausmitte und dem zu wenig anderswo. Genau daraus resultiert auch dieser m.E. sinnlose Block in der Mitte, der bei einem "ausgeprägten" Rechteck dort zum Glück niemals Platz hätte.
Ich befürchte, dass zuerst der Haustyp abgefragt wurde und dieser mit "gerne eine Stadtvilla" o.ä. beantwortet wurde und der Planer erst dann die Bedürfnisse seiner Kunden darin versteckt hat.
Das Problem der Anstattvilla (der Begriff ist nicht schutzfähig, was mich aber nicht stört) liegt an anderen Stellen begraben, betrifft diesen Entwurf aber nicht. Auch der (treffend formuliert) "sinnlose Block in der Mitte" ist hier nur energetisch ungünstig und zerschießt den Grundriss nicht im Ganzen, trägt aber wohl zur unerkannten Überfläche bei. Das Seitenverhältnis von 22:19 (etwa 1,15 : 1) ist "weit genug" vom in der Tat planerisch ungünstigen Exaktquadrat entfernt.
https://www.instagram.com/11antgmxde/
https://www.linkedin.com/company/bauen-jetzt/
kbt0913.04.25 21:31
roteweste schrieb:

Mir ging es insbesondere um die Ausrichtung von Hauseingang und Allraum. Das Haus würde dann noch 1-2 Meter nach Süden rücken.
Da würde ich eher vielleicht überlegen, für das Haus die gesamte Tiefe des Baufensters zu nutzen und es dafür schmaler zu machen.
kamingrundrissspeisekammerduscheentwurfüberfläche