ᐅ Grundstück- und Grundriss-Planung mit Zufahrt in Süd-Ost
Erstellt am: 13.04.25 14:52
H
Häuslebauer26Oben finde ich den Grundriss absolut gelungen. Besonders das Bad finde ich richtig gut. Eine gute Anordnung der Zonen, man schaut nicht direkt beim Reinkommen aufs Klo und an Schränke wurde auch gedacht. Wirklich top aus meiner Sicht.
Unten bin ich froh, dass ihr euch gegen die Speise im Zentrum des Hauses entschieden habt. Die 6 m², die ihr gewonnen habt, tuen den Wohn-Ess-Kochbereich wirklich gut. Ihr habt jetzt schöne Flächen um euch zu bewegen und auch insgesamt wirkt der Raum jetzt viel harmonischer.
So richtig gefällt mir die Eingangs- bzw. Garderobensituation immer noch nicht. Da wo ihr im Flur Platz habt euch zu bewegen sind keine Möbel und umgekehrt. Aber ich kenne das Problem: Wir kommen auch über die lange Seite von Osten rein, was in der Konsequenz bedeutet, dass man zumindest durch sein halbes Haus laufen darf, bevor man im Wohn-Ess-Kochbereich ist, wenn man eine Anordnung über L will. Ich hab inzwischen meinen Frieden mit unseren Flur gemacht, aber vielleicht kann hier ja mal der ein oder andere Vielposter mal einen raushauen.
Unten bin ich froh, dass ihr euch gegen die Speise im Zentrum des Hauses entschieden habt. Die 6 m², die ihr gewonnen habt, tuen den Wohn-Ess-Kochbereich wirklich gut. Ihr habt jetzt schöne Flächen um euch zu bewegen und auch insgesamt wirkt der Raum jetzt viel harmonischer.
So richtig gefällt mir die Eingangs- bzw. Garderobensituation immer noch nicht. Da wo ihr im Flur Platz habt euch zu bewegen sind keine Möbel und umgekehrt. Aber ich kenne das Problem: Wir kommen auch über die lange Seite von Osten rein, was in der Konsequenz bedeutet, dass man zumindest durch sein halbes Haus laufen darf, bevor man im Wohn-Ess-Kochbereich ist, wenn man eine Anordnung über L will. Ich hab inzwischen meinen Frieden mit unseren Flur gemacht, aber vielleicht kann hier ja mal der ein oder andere Vielposter mal einen raushauen.
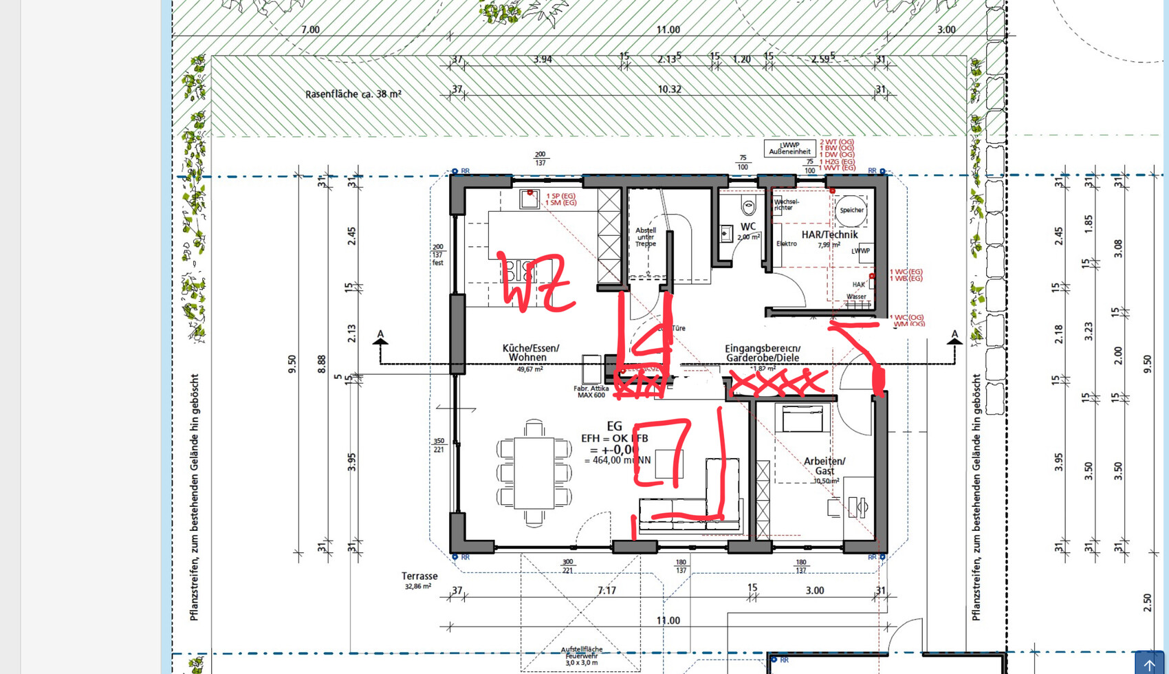
Insgesamt besser. Allerdings erklärt sich mir der Wartesaal vor der Küche nicht.
Zum WC in der Dische wurde schon was gesagt.
Ich habe hier noch eine Variante für den Eingangsbereich und ggf für die Speissituation.
Grundsätzlich würde ich aber mal vorschlagen - falls nicht schon geschehen - dass ihr den Entwurf auch mal dazu benutzt, wozu er sein soll, nämlich eigene Möbel einzuzeichnen. Dann sieht man auch die ein oder andere Engstelle oder eben die Stellen, wo reichlich Luft ist.

Zum WC in der Dische wurde schon was gesagt.
Ich habe hier noch eine Variante für den Eingangsbereich und ggf für die Speissituation.
Grundsätzlich würde ich aber mal vorschlagen - falls nicht schon geschehen - dass ihr den Entwurf auch mal dazu benutzt, wozu er sein soll, nämlich eigene Möbel einzuzeichnen. Dann sieht man auch die ein oder andere Engstelle oder eben die Stellen, wo reichlich Luft ist.
Das Bad oben ist (zu) groß, insofern hätte ich mir überlegt, Waschmaschine + Trockner dort reinzupacken und in einen schicken Schrank zu verstecken, dann wäre der Platz vom Hauswirtschaftsraum übrig. Bei der Wanne solltest Du aufpassen, weil dahinter gleich das Fenster ist. Im Detail kann das knifflig werden bzw. unschön, insofern würde ich dort ohnehin eine Mauer sehen zumindest bis Wannenhöhe, am besten "normale" Brüstung. Das wäre auch besser für das andere Fenster, denn ein bodentiefes Fenster im Bad ist meist keine gute Lösung. Damit wäre auch das Thema Wanne aufgelöst und ich würde diese direkt an die Wand bauen anstatt einen schmalen Spalt übrig zu lassen. Wenn freistehend, dann bräuchte es auch sichtbaren Platz. Bei der Wahl der Wanne solltest Du genau hinschauen, ein schönes Modell dafür zu erhaschen für solch eine präsidiale Position; das muss nicht zwingend viel teurer werden. Auch wirst Du bei der Wanne eine extra Vormauerung brauchen, was ja aber kein Problem ist und zudem schöne Ablagefläche bringt.
Das Schlafzimmer gefällt mir nich nicht, die Tür geht ja fast nicht auf; wenn das eine Reihe mit 60er Schränken ist könnte das ja vlt. schon reichen und das Weglassen der zweiten Reihe dem Schlafzimmer guttun. Aktuell kommt man fast nicht um die Tür herum bzw. muss sie ganz aufschlagen, um reinzukommen, das ist nicht wirklich gut. Das, was ihr an den Kinderzimmer gut machen wollt vergesst ihr bei Eurem Schlafzimmer, dann könnte man auch über eine halbhohe Wand nachdenken, an der das Kopfteil des Bettes steht und diese Wand rückt das Stück nach hinten zur Ankleide oder die Ankleidetrennung weglassen und z.B. die Schränke rechts neben die Tür stellen und den dann großen Raum schick als Schlafzimmer gestalten; aktuell finde ich das noch nicht schön gelöst, die Ankleide ist "fast" so groß wie das Schlafzimmer, Proportion finde ich unpassend. Evtl. sich gedanklich mal lösen von einer typischen Ankleide, es gibt ohne "Ankleide" endlos Ideen für ein schickes Schlafzimmer.
Kinderzimmer 1 das Fenster vlt. ein bisschen kleiner/anders, damit das Bett auch nicht teilweise vorm Fenster steht.
Die Hauseingangstür hätte ich wohl eher andersrum geöffnet, im Gäste-WC prüfen, ob das Waschbecken von der Größe mit der Tür auch tatsächlich passt, denn oftmals wird da etwas hemdsärmelig eingezeichnet, was dann in der Umsetzung unnötig teuer wird.
Den Haken im Flur, der sich im WZ fortsetzt hätte ich weggelassen. Ich hätte schon bei 3 Personen mit Sicherheit eine zweite Dusche im Haus, spätestens wenn die Kinder nicht mehr Lego spielen werdet ihr das merken. Man selbst braucht länger im Bad und die Gepflogenheit der Kinder sind diesbezüglich unkalkulierbar; auch ist das ein Raum für Privatsphäre und auch das wollen Kinder mit 14 aufwärts so nicht mehr. Ihr habt soviel Platz, daran würde ich nie sparen, denn das geht kaum zu korrigieren danach.
Der vom Haus gelöste Carport ist doch gut, ein durchgehend trockener Fußweg zum Haus ist nicht notwendig wie ich finde, das Haus innendrin muss passen.
Wenn Euch der Flur noch nicht so gefällt prüft doch mal den Bedarf an Schränken. Vlt. können ja vorne am Eingang hohe Schränke stehen und danach halbhohe und dadurch könnte das Mauerstück i.R. Wohnraum auch halbhoch aufgeführt werden als Schlüsselablage, Telefon etc. und würde dadurch einen freieren Blick ermöglichen.
Im großen und Ganzen passt es doch aber, dennoch würde ich so Manches nochmal loslassen, um auch Lösungen für die noch offenen Themen finden zu können, den z.B. einen Flur, der mir nicht gefällt, würde ich nicht bauen; da geht noch was.
Ich hab viel gesabbelt uns seh jetzt die schöne Idee von @ypg.
Mein erster Eindruck: Jetzt gibts endlich Luft, auch am Eingang und der Hinweis mit den vermaßten, echten Möbeln gilt ja immer. Das ist sehr wichtig !
Das Schlafzimmer gefällt mir nich nicht, die Tür geht ja fast nicht auf; wenn das eine Reihe mit 60er Schränken ist könnte das ja vlt. schon reichen und das Weglassen der zweiten Reihe dem Schlafzimmer guttun. Aktuell kommt man fast nicht um die Tür herum bzw. muss sie ganz aufschlagen, um reinzukommen, das ist nicht wirklich gut. Das, was ihr an den Kinderzimmer gut machen wollt vergesst ihr bei Eurem Schlafzimmer, dann könnte man auch über eine halbhohe Wand nachdenken, an der das Kopfteil des Bettes steht und diese Wand rückt das Stück nach hinten zur Ankleide oder die Ankleidetrennung weglassen und z.B. die Schränke rechts neben die Tür stellen und den dann großen Raum schick als Schlafzimmer gestalten; aktuell finde ich das noch nicht schön gelöst, die Ankleide ist "fast" so groß wie das Schlafzimmer, Proportion finde ich unpassend. Evtl. sich gedanklich mal lösen von einer typischen Ankleide, es gibt ohne "Ankleide" endlos Ideen für ein schickes Schlafzimmer.
Kinderzimmer 1 das Fenster vlt. ein bisschen kleiner/anders, damit das Bett auch nicht teilweise vorm Fenster steht.
Die Hauseingangstür hätte ich wohl eher andersrum geöffnet, im Gäste-WC prüfen, ob das Waschbecken von der Größe mit der Tür auch tatsächlich passt, denn oftmals wird da etwas hemdsärmelig eingezeichnet, was dann in der Umsetzung unnötig teuer wird.
Den Haken im Flur, der sich im WZ fortsetzt hätte ich weggelassen. Ich hätte schon bei 3 Personen mit Sicherheit eine zweite Dusche im Haus, spätestens wenn die Kinder nicht mehr Lego spielen werdet ihr das merken. Man selbst braucht länger im Bad und die Gepflogenheit der Kinder sind diesbezüglich unkalkulierbar; auch ist das ein Raum für Privatsphäre und auch das wollen Kinder mit 14 aufwärts so nicht mehr. Ihr habt soviel Platz, daran würde ich nie sparen, denn das geht kaum zu korrigieren danach.
Der vom Haus gelöste Carport ist doch gut, ein durchgehend trockener Fußweg zum Haus ist nicht notwendig wie ich finde, das Haus innendrin muss passen.
Wenn Euch der Flur noch nicht so gefällt prüft doch mal den Bedarf an Schränken. Vlt. können ja vorne am Eingang hohe Schränke stehen und danach halbhohe und dadurch könnte das Mauerstück i.R. Wohnraum auch halbhoch aufgeführt werden als Schlüsselablage, Telefon etc. und würde dadurch einen freieren Blick ermöglichen.
Im großen und Ganzen passt es doch aber, dennoch würde ich so Manches nochmal loslassen, um auch Lösungen für die noch offenen Themen finden zu können, den z.B. einen Flur, der mir nicht gefällt, würde ich nicht bauen; da geht noch was.
Ich hab viel gesabbelt uns seh jetzt die schöne Idee von @ypg.
Mein erster Eindruck: Jetzt gibts endlich Luft, auch am Eingang und der Hinweis mit den vermaßten, echten Möbeln gilt ja immer. Das ist sehr wichtig !
Ähnliche Themen