Grundrissplanung Stadthaus mit einem Satteldach

4,70 Stern(e) 9 Votes
Zuletzt aktualisiert 22.12.2025
Sie befinden sich auf der Seite 3 der Diskussion zum Thema: Grundrissplanung Stadthaus mit einem Satteldach
>> Zum 1. Beitrag <<

B

Benutzername12

Wozu werden hier eigentlich die Spinoff-Threads zu Küchen- und Badplanung dieses Entwurfes gestartet - ist noch irgendein Zweifel daran geblieben, daß der Ball der Planungsqualität hier noch von keinem der bisher beteiligten VAR im Tor gesehen wird ?
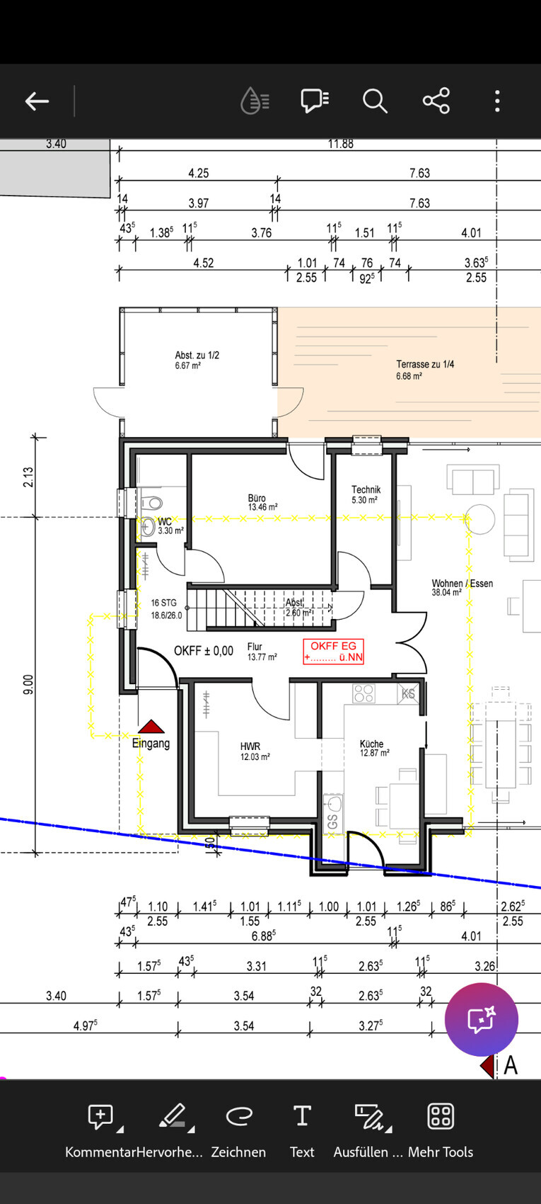
Bad und Küche bleiben von der Anordnung so.

Wir werden jetzt den Technikraum verändern bzw das Büro vergrößern.
Im Hauswirtschaftsraum soll jetzt die Technik komplett rein
Waschmaschine und Trockner
Ein Spülbecken und zwei Regale für Vorrat und ggf ein Gefrierschrank.

Oben im Schlafzimmer werden wir den Abstellraum wohl verkleinern für ein größeres Schlafzimmer bzw so das wir das Bett anders stellen können.


Wir finden einen Abstellraum oben im OG schon wichtig ? Ihr nicht?
 
kbt09

kbt09

Du bist jetzt schon an mehreren Stellen gefragt worden, was du immer so abstellen willst. Vielleicht erläuterst du deine Gedanken mal, warum z. B. dieser Abstellraum? Warum findest du ihn wichtig? Ich fände ihn gut, wenn man da Waschmaschine/Trockner stellt.

Und noch einmal ... hier ein bisschen vergrößern, da ein bisschen verkleinern macht nicht den besseren Grundriss. Das Büro unten leidet jetzt schon unter der Tür, die in die Raumecke gedrängt ist.

Dein Budget leidet darunter, dass du von 194 qm ca. 37 qm Wohnzimmer finanzierst, wovon der Esstischbereich nur für Gäste gedacht ist. Flure mit Treppenhaus insgesamt rund 26 qm und das bei
Preisschätzung laut Architekt/Planer:
450k
Persönliches Preislimit fürs Haus, inkl. Ausstattung: 550k
favorisierte Heiztechnik: Wärepumpe oder Gasheizung
550 k durch 194 qm = 2835 Euro INKL. Ausstattung ... das kracht doch hinten und vorne

Und warum zwischen Wärmepumpe und Gasheizung überlegen?
Was ist mit Photovoltaik?
 
B

Benutzername12

Du bist jetzt schon an mehreren Stellen gefragt worden, was du immer so abstellen willst. Vielleicht erläuterst du deine Gedanken mal, warum z. B. dieser Abstellraum? Warum findest du ihn wichtig? Ich fände ihn gut, wenn man da Waschmaschine/Trockner stellt.

Und noch einmal ... hier ein bisschen vergrößern, da ein bisschen verkleinern macht nicht den besseren Grundriss. Das Büro unten leidet jetzt schon unter der Tür, die in die Raumecke gedrängt ist.

Dein Budget leidet darunter, dass du von 194 qm ca. 37 qm Wohnzimmer finanzierst, wovon der Esstischbereich nur für Gäste gedacht ist. Flure mit Treppenhaus insgesamt rund 26 qm und das bei

550 k durch 194 qm = 2835 Euro INKL. Ausstattung ... das kracht doch hinten und vorne

Und warum zwischen Wärmepumpe und Gasheizung überlegen?
Was ist mit Photovoltaik?
Ja oben in den Abstellraum wäre es gut wenn dort Waschmaschine oder Trockner wir stellen aber das passt wohl nicht daher machen wir den Abstellraum oben kleiner so daß wir einen bisschen größeren Schlafzimmer haben

Bügelbrett, Deko und so Kleinkram soll oben in Abstellraum.
Ansonsten fällt uns auch nicht viel ein.

Unten der Hauswirtschaftsraum ist uns wichtig das dort Waschmaschine und Trockner sind und Platz für zwei Wäscheständer vorhanden ist.

Die Tür im Büro kommt weg dahinten. Da kommt ein Fenster.

Muss ehrlich sagen, über das Budget haben wir uns keine so großen Gedanken gemacht. Wir haben viel geerbt und sind hier flexibel.

Wichtig ist das wir auf dieses Grundstück das Maximum rausholen und da wir nur einmal bauen wollen wir auch jetzt schon an alles denken.
 
11ant

11ant

Ja wir haben jetzt es so gemacht das wir eine kleine Garderobe für Gäste machen, das Büro wird vergrößert und Technik kommt in den Hauswirtschaftsraum wo es auch hingehört.
Küche hat den Durchgang zum Hauswirtschaftsraum als Art Speisekammer.
Uns ist eine geschlossene Küche wichtig mit Sitzmöglichkeiten.
Bad und Küche bleiben von der Anordnung so.
Wir werden jetzt den Technikraum verändern bzw das Büro vergrößern.
Im Hauswirtschaftsraum soll jetzt die Technik komplett rein
Waschmaschine und Trockner
Ein Spülbecken und zwei Regale für Vorrat und ggf ein Gefrierschrank.
Oben im Schlafzimmer werden wir den Abstellraum wohl verkleinern für ein größeres Schlafzimmer bzw so das wir das Bett anders stellen können.
Nein, Blödsinn. Umbauen tut man ein Haus, das es schon gibt. Aber keines, das erst im Stadium "nur als Zeichnungen existierend" ist. Das heilt man durch "Zurück auf Anfang !". Eure Architekten sind bereits im Vorentwurfsstadium falsch abgebogen. Das ist im Zusammenhang mit "von 70 auf ü190 qm" auch alles andere als verwunderlich. Mit solchen Bauherren muß sich jemand sehr gründlich auseinandersetzen (ich nicht, außer ein Termin im Sommer 2025 wäre für Euch okay). Vielleicht Frau Forster ? (@roteweste_2 kommt gerade gut damit klar, mit ihr "fernzuplanen"). Bezahlen werdet Ihr den jetzigen Architekten wohl müssen, aber entweder Ihr bringt ihn auf Kurs oder er kostet Euch ich weiß noch nicht ob mehr Geld oder Nerven. Eine Forelle Müllerin in nur fast allen Parametern umzubestellen wenn man ein Jägerschnitzel haben will, ist jedenfalls maximaler Humbug.

Dieser Entwurf ist keine Grundlage für das, was Ihr braucht. Plant mit jemandem, der zuhören kann und den Mut hat, Euch wachzurütteln.
 
B

Benutzername12

Nein, Blödsinn. Umbauen tut man ein Haus, das es schon gibt. Aber keines, das erst im Stadium "nur als Zeichnungen existierend" ist. Das heilt man durch "Zurück auf Anfang !". Eure Architekten sind bereits im Vorentwurfsstadium falsch abgebogen. Das ist im Zusammenhang mit "von 70 auf ü190 qm" auch alles andere als verwunderlich. Mit solchen Bauherren muß sich jemand sehr gründlich auseinandersetzen (ich nicht, außer ein Termin im Sommer 2025 wäre für Euch okay). Vielleicht Frau Forster ? (@roteweste_2 kommt gerade gut damit klar, mit ihr "fernzuplanen"). Bezahlen werdet Ihr den jetzigen Architekten wohl müssen, aber entweder Ihr bringt ihn auf Kurs oder er kostet Euch ich weiß noch nicht ob mehr Geld oder Nerven. Eine Forelle Müllerin in nur fast allen Parametern umzubestellen wenn man ein Jägerschnitzel haben will, ist jedenfalls maximaler Humbug.

Dieser Entwurf ist keine Grundlage für das, was Ihr braucht. Plant mit jemandem, der zuhören kann und den Mut hat, Euch wachzurütteln.
Verstehe es nicht. Du stellst es ja so dar als ob wir bzw der Architekt keine Ahnung hat.
Wir haben uns ja was dabei gedacht.

Schau Mal so sieht das Nachbarhaus aus.

Wir haben bewusst die Küche vorne platziert für die Abendsonne (S/W Terrasse) und Wohnzimmer hinten für Ost/Süd Terrasse.
.
Der aller erste Entwurf vom Architekt sah so aus... Siehe Handzeichnung
Uns hat die offen Küche nicht gefallen...
Dann habe ich dir noch ein Entwurf gesendet wo der Eingang anders war...die Idee hatte auch der Architekt.
Grundriss Dachgeschoss: zwei Kinderzimmer, Schlafraum mit Ankleide, Bad, Flur

Grundriss Erdgeschoss: Küche, Wohnen/Essen, Diele, Büro, HWR, WC/Du.

Skizze eines Erdgeschoss-Grundrisses mit Terrassen, Küche, Essen, Wohnen und Vorrat.

Grundriss EG: Eingang, Flur, Küche, Wohnen/Essen, Büro, Technik, WC, HWR, Terrasse
 
11ant

11ant

Verstehe es nicht. Du stellst es ja so dar als ob wir bzw der Architekt keine Ahnung hat.
Das habe ich nicht gesagt, sondern: daß der Vergleich von Entwurf und Unzulänglichkeiten nachdrücklich nahelegt, einen Mangel an Zuhören zu vermuten. "Keine Ahnung" sage nicht ich, obwohl die hauptsächlich von anderen Mitdiskutierenden benannten leider deutlich in diese Richtung weisen. Fakt ist: strukturelle Unzufriedenheiten mit dem Ergebnis der Leistungsphase 3 sind nicht auf dem Weg zwischen Leistungsphase 3 und Leistungsphase 4 heilbar, sondern ausschließlich im Rückschritt in den Streckenabschnitt zwischen Leistungsphase 2 und Leistungsphase 3. Jeder Versuch, hierfür einen anderen Weg zu nehmen, wird unverhältnismäßig teurer. Latent hast Du hier ja auch wiederholt anklingen lassen, die Wahl eines anderen Architekten stünde zur Disposition. Und ich müßte lügen, wenn ich da widerspräche, das für erwägenswert zu halten.
 
Zuletzt aktualisiert 22.12.2025
Im Forum Grundrissplanung / Grundstücksplanung gibt es 2554 Themen mit insgesamt 88553 Beiträgen


Ähnliche Themen zu Grundrissplanung Stadthaus mit einem Satteldach
Nr.ErgebnisBeiträge
1Grundriss-Entwurf Stadtvilla mit Doppelgarage - Seite 338
2Ankleide/Schlafzimmer Problem - Grundrissdiskussion 25
3Architekten-Leistungsphase 1-4 - Welche Unterlagen müssen sein? 33
4Waschmaschine und Trockner in Ankleide? 16
5Waschmaschine und Trockner im Keller oder OG? 14
6Grundriss erster Entwurf - Meinungen erwünscht - Seite 321
7Reicht der Hauswirtschaftsraum auch als Abstellkammer aus? - Seite 222
8Grundriss-Entwurf für Einfamilienhaus 135 qm - Ideen und Ratschläge gesucht 29
9Einfamilienhaus, ~160m², Bauhausstil; Erster Entwurf nach unseren Wünschen - Seite 13420
10Grundriss EFH165 qm erster Entwurf - Architekt unzufrieden 74
11Einfamilienhaus - Meinungen zu unserem Entwurf - Seite 11159
12Ikea Pax Hauswirtschaftsraum/Waschküche System? - Was habt ihr? 64
13Grundriss 170m2 - Hauswirtschaftsraum zu klein? Verbesserungsvorschläge? - Seite 342
14Hauswirtschaftsraum im OG - Probleme mit Lärm? 27
15Haus-Entwurf Einfamilienhaus - Zukünftig als Zweifamilienhaus trennbar - Seite 572
16Einfamilienhaus 180-190qm auf 10x20m Baufenster, erster Entwurf GU - Seite 278
17Neubau Einfamilienhaus ca.220qm, 2. Entwurf Stadtvilla - Seite 259
18Extra-Bad vom Schlafzimmer oder doch Abstellraum? 29
19Abluft im Schlafzimmer - Zuluft im Abstellraum - Seite 224
20Grundriss Zugang von Küche in Speis / Abstellraum - Seite 329

Oben