ᐅ Grundrissplanung REH mit ca. 145qm
Erstellt am: 06.06.19 10:53
G
goalkeeper06.06.19 10:53Hallo zusammen,
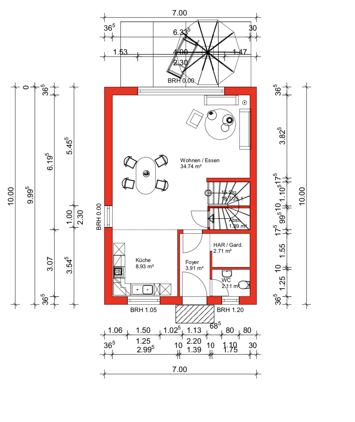
wir werden ein Reihenendhaus zusammen mit einem GÜ selbst bebauen und haben hierzu natürlich schon die Grundrisse geplant und uns entsprechend Gedanken gemacht.
Das Grundstück ist 10 x 21m und so wie es aktuell geplant ist, wurde das Maximum an zu Verfügung stehendem Platz ausgenutzt, so dass wir auch noch ausreichend Platz im Garten haben.
Im EG wird die Treppe unten verschlossen und dient dann als zusätzlicher Stauraum für Getränke oder Putzzeug. In die Garderobe wandern zusätzlich noch die Hausanschlüsse - da wollte meine Frau einen extra Raum, dass die Schuhe und Jacken nicht immer so unschön im Flur herumstehen.
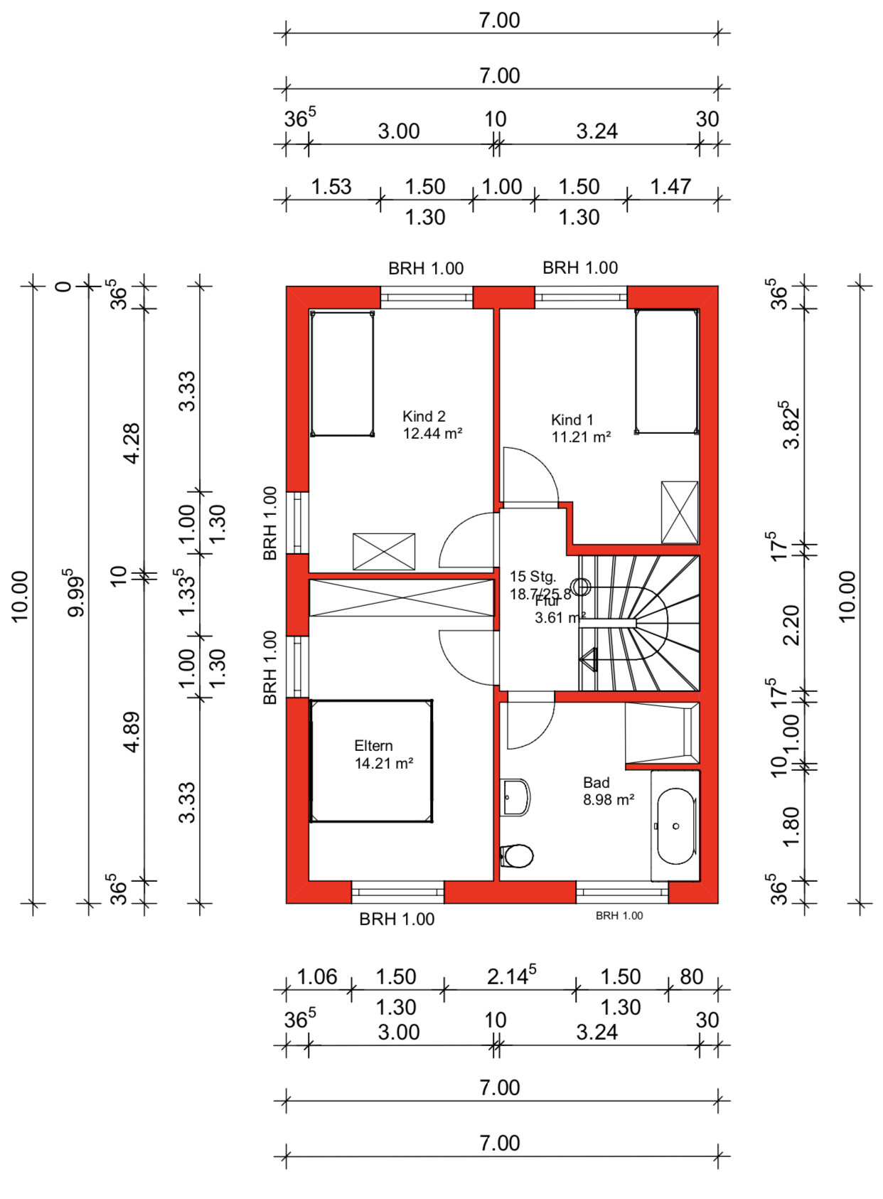
Wir werden ab dem November zu viert sein, so dass wir für uns entschieden haben, dann mit zwei sehr kleinen Kindern alle zusammen auf einem Stockwerk (OG) zu wohnen, weil das einfach praktischer ist. Als Vorgabe für unser Elternschlafzimmer war die Möglichkeit, einen 3m breiten Schrank zu stellen. Allerdings sind wir mit dem Grundriss im OG noch nicht ganz zufrieden - uns fallen allerdings keine Alternativen ein. Bad sollte bei der Größe bleiben.
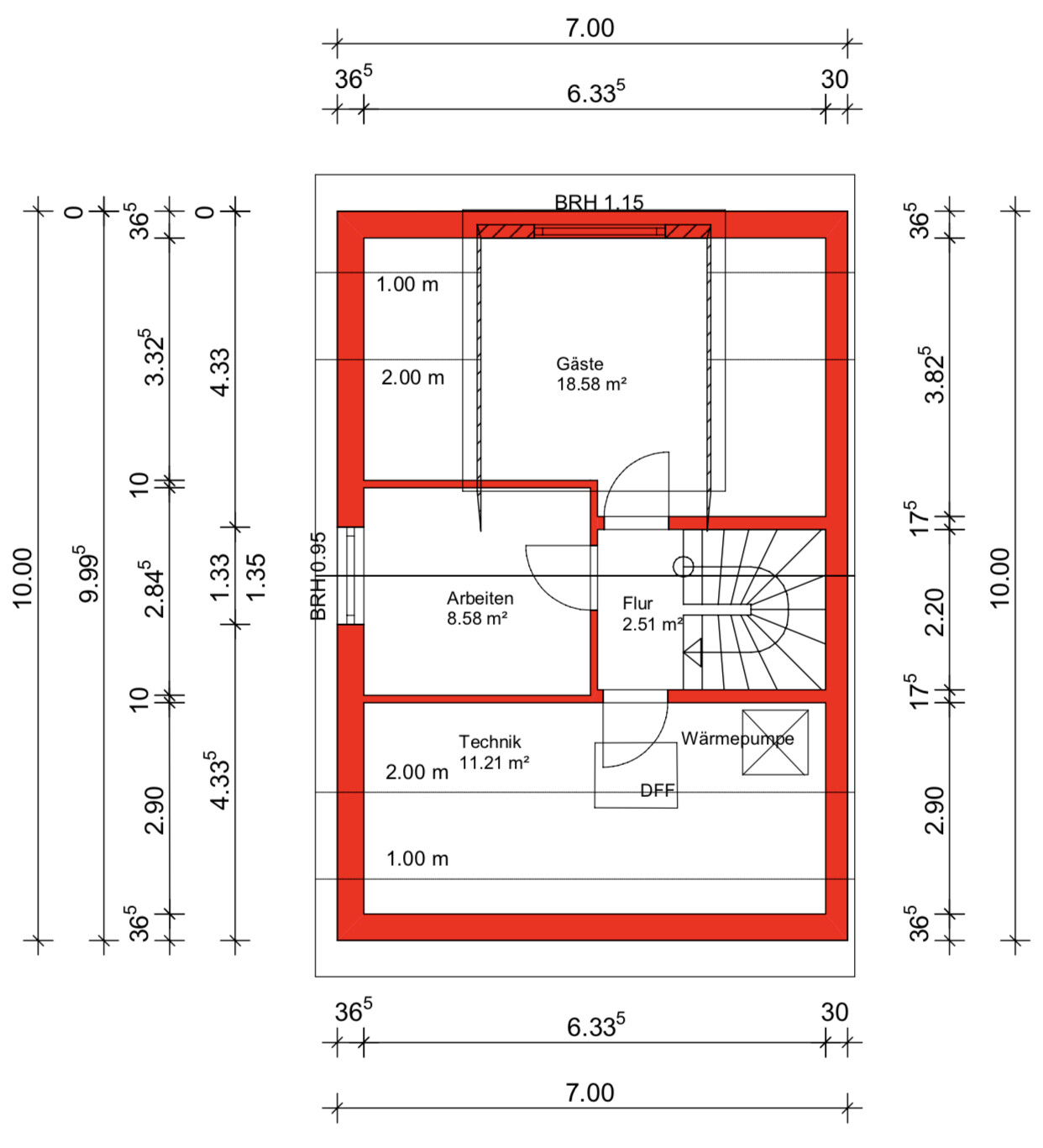
Im DG wird ein Gästezimmer, was eher für die Kinder und mich )) ein Spielzimmer wird. Dort kommt dann noch eine große Gaube dazu. Hier könnte später auch einmal eines der dann älteren Kinder hoch ziehen und die beiden Kinderzimmer im OG werden zu einem großen verbunden. Das Arbeitszimmer benötigen wir beide, daher ist es etwas größer dimensioniert.
Wir haben die Technik absichtlich ins DG verfrachtet, da wir ohne Keller bauen und somit dieser dann hätte ins EG gemusst. Das verkleinert doch den Platz dort ungemein. Außerdem werden wir den Platz noch für die Waschmaschine und Trockner sowie als zusätzlichen Abstellraum nutzen.
Weiter werden wir als zusätzliche Staufläche einen ausgebauten Spitzboden mit 1,36m Höhe haben.
Freue mich über Anregungen.






wir werden ein Reihenendhaus zusammen mit einem GÜ selbst bebauen und haben hierzu natürlich schon die Grundrisse geplant und uns entsprechend Gedanken gemacht.
Das Grundstück ist 10 x 21m und so wie es aktuell geplant ist, wurde das Maximum an zu Verfügung stehendem Platz ausgenutzt, so dass wir auch noch ausreichend Platz im Garten haben.
Im EG wird die Treppe unten verschlossen und dient dann als zusätzlicher Stauraum für Getränke oder Putzzeug. In die Garderobe wandern zusätzlich noch die Hausanschlüsse - da wollte meine Frau einen extra Raum, dass die Schuhe und Jacken nicht immer so unschön im Flur herumstehen.
Wir werden ab dem November zu viert sein, so dass wir für uns entschieden haben, dann mit zwei sehr kleinen Kindern alle zusammen auf einem Stockwerk (OG) zu wohnen, weil das einfach praktischer ist. Als Vorgabe für unser Elternschlafzimmer war die Möglichkeit, einen 3m breiten Schrank zu stellen. Allerdings sind wir mit dem Grundriss im OG noch nicht ganz zufrieden - uns fallen allerdings keine Alternativen ein. Bad sollte bei der Größe bleiben.
Im DG wird ein Gästezimmer, was eher für die Kinder und mich )) ein Spielzimmer wird. Dort kommt dann noch eine große Gaube dazu. Hier könnte später auch einmal eines der dann älteren Kinder hoch ziehen und die beiden Kinderzimmer im OG werden zu einem großen verbunden. Das Arbeitszimmer benötigen wir beide, daher ist es etwas größer dimensioniert.
Wir haben die Technik absichtlich ins DG verfrachtet, da wir ohne Keller bauen und somit dieser dann hätte ins EG gemusst. Das verkleinert doch den Platz dort ungemein. Außerdem werden wir den Platz noch für die Waschmaschine und Trockner sowie als zusätzlichen Abstellraum nutzen.
Weiter werden wir als zusätzliche Staufläche einen ausgebauten Spitzboden mit 1,36m Höhe haben.
Freue mich über Anregungen.
T
Thielemann0306.06.19 11:18Sieht gut aus, da gibt es nichts zu meckern, nur wird euch der Keller doch irgendwann fehlen.
G
goalkeeper06.06.19 11:29Thielemann03 schrieb:
Sieht gut aus, da gibt es nichts zu meckern, nur wird euch der Keller doch irgendwann fehlen.Danke erst mal.
Das mit dem Keller kann gut sein - wir wollten eigentlich schon gerne einen Keller. Allerdings hätte uns der mind. 80.000 € gekostet - und da wir ihn nur als Abstellfläche genutzt hätten, wäre das ein teurer Spaß geworden. Daher haben wir das Geld lieber in die Ausstattung investiert.
B
boxandroof06.06.19 12:07Es ist wenig bis keine Abstellfläche für Kinderwagen, Autositz, Kleidung etc. am Eingang vorhanden. Habt Ihr Euch dazu Gedanken gemacht wie viel in den kleinen Raum passt? Wir haben da auch nicht üppig, aber deutlich mehr Platz und schauen dennoch, dass möglichst viel Zeug nicht im Haus ist, sondern draußen bleibt (Auto, Anbau).
Foyer an einer Stelle Richtung Küche verbreitern für kleine Garderobe im Flur? Sonst müsst ihr IMMER in den Anschlussraum für Jacke/Schuhe.
Über die Treppe im Wohnzimmer kommen Geräusche direkt von oben und umgekehrt: TV, Kochen, Geschirr räumen, Musik. Es müssten im OG dann immer
alle Türen zu sein, um es etwas zu unterbinden - das könnte auf Dauer sehr nerven.
Waschmaschine/Trockner kommen in Technik? Überlegt, ob ihr die nicht übereinander ins Bad bekommt, z.B. zwischen gedrehter Wanne und Dusche. Bei WC/Waschbecken zum Schlafzimmer, aber auch ggf. bei Fallrohren zum Treppenhaus hin auf Schallschutz achten.
Dachgeschoss mit Büro und Gäste gefällt mir als separater Ruhebereich. Man könnte auch das Schlafzimmer nach oben legen und die Situation im OG etwas entspannen.
Foyer an einer Stelle Richtung Küche verbreitern für kleine Garderobe im Flur? Sonst müsst ihr IMMER in den Anschlussraum für Jacke/Schuhe.
Über die Treppe im Wohnzimmer kommen Geräusche direkt von oben und umgekehrt: TV, Kochen, Geschirr räumen, Musik. Es müssten im OG dann immer
alle Türen zu sein, um es etwas zu unterbinden - das könnte auf Dauer sehr nerven.
Waschmaschine/Trockner kommen in Technik? Überlegt, ob ihr die nicht übereinander ins Bad bekommt, z.B. zwischen gedrehter Wanne und Dusche. Bei WC/Waschbecken zum Schlafzimmer, aber auch ggf. bei Fallrohren zum Treppenhaus hin auf Schallschutz achten.
Dachgeschoss mit Büro und Gäste gefällt mir als separater Ruhebereich. Man könnte auch das Schlafzimmer nach oben legen und die Situation im OG etwas entspannen.
G
goalkeeper06.06.19 12:16boxandroof schrieb:
Es ist wenig bis keine Abstellfläche für Kinderwagen, Autositz, Kleidung etc. am Eingang vorhanden. Habt Ihr Euch dazu Gedanken gemacht?
Wir haben da nicht üppig, aber deutlich mehr Platz und schauen dennoch, dass möglichst viel Zeug nicht im Haus ist, sondern draußen bleibt (Auto, Anbau).
Foyer an einer Stelle Richtung Küche verbreitern für kleine Garderobe im Flur? Sonst müsst ihr IMMER in den Anschlussraum für Jacke/Schuhe.
Über die Treppe im Wohnzimmer kommen Geräusche direkt von oben und umgekehrt: TV, Kochen, Geschirr räumen, Musik. Es müssten im OG dann immer
alle Türen zu sein, um es etwas zu unterbinden - das könnte auf Dauer sehr nerven.
Waschmaschine/Trockner kommen in Technik? Überlegt, ob ihr die nicht übereinander ins Bad bekommt, z.B. zwischen gedrehter Wanne und Dusche. Bei WC/Waschbecken zum Schlafzimmer, aber auch ggf. bei Fallrohren zum Treppenhaus hin auf Schallschutz achten.
Dachgeschoss mit Büro und Gäste gefallen mir als separater Ruhebereich. Man könnte auch das Schlafzimmer nach oben legen und die Situation im OG etwas entspannen.Zum Thema Abstellfläche für Kinderwagen/Kindersitz ist die Idee, die Tür links vor der Küche als zweiten Eingang zu machen, da direkt dahinter entweder eine Garage oder großen Gartenhaus kommt. Da kann dann der Kinderwagen hin.
Vermutlich wird die Tür vom Foyer ins Wohnzimmer eine Schiebetüre, so dass dann links noch eine kleine Garderobe hin passt.
Wie sollte das mit den Geräuschen sonst gelöst werden? Evtl. mit einer Tür?
Waschmaschine und Trockner sollen bewusst in den Technikraum, da dort dann auch gebügelt wird und in dem ohnehin nicht sehr großen Bad noch Platz weg nimmt.
Zum Schlafzimmer im DG hatte ich ja schon etwas im Eingangspost geschrieben.
Bezüglich der Treppe im Wohnraum und der Geräusche:
Alternative ist, die Treppe in den Flurbereich zu bekommen.
Ist bei der Hausbreite schwierig aber machbar.
Insgesamt aber ein brauchbarer Grundriss.
Ich würde wahrscheinlich auch das Dachgeschoss mehr nutzen, d.h. das Schlafzimmer rauf legen.
Dafür könnt ihr die Kinderzimmer etwas größer machen und das jetzige Schlafzimmer wird als Gäste/Spielzimmer benutzt.
Himmelsrichtung wäre noch sehr interessant auf den Grundrissen.
Alternative ist, die Treppe in den Flurbereich zu bekommen.
Ist bei der Hausbreite schwierig aber machbar.
Insgesamt aber ein brauchbarer Grundriss.
Ich würde wahrscheinlich auch das Dachgeschoss mehr nutzen, d.h. das Schlafzimmer rauf legen.
Dafür könnt ihr die Kinderzimmer etwas größer machen und das jetzige Schlafzimmer wird als Gäste/Spielzimmer benutzt.
Himmelsrichtung wäre noch sehr interessant auf den Grundrissen.
Ähnliche Themen