ᐅ Grundrissplanung Neubau moderne Doppelhaushälfte mit 6m Deckenhöhe und 239qm Wohnfläche
Erstellt am: 09.11.25 23:46
L
lucaskilamL
lucaskilam09.11.25 23:46Hallo zusammen,
ich plane den Abriss meiner bestehenden Doppelhaushälfte und den Neubau eines modernen Wohnhauses auf meinem Grundstück.
Das neue Haus wird wieder direkt an die bestehende Nachbarhälfte angebaut.
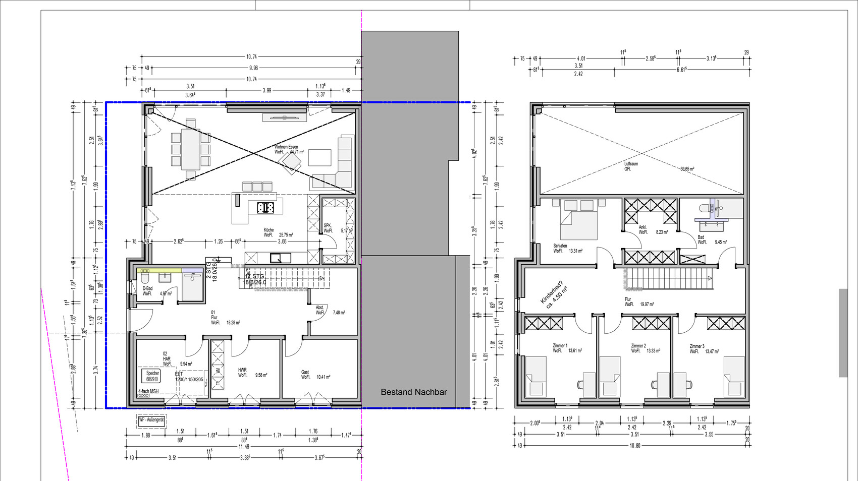
Das Grundstück hat 1.027 qm, der Entwurf stammt von meinem Architekten.
Ich freue mich über eine ehrliche und konstruktive Einschätzung zu Grundriss und Raumaufteilung.
Ansichten und Grundrisse sind im Anhang enthalten.
Bebauungsplan / Einschränkungen
Viele Grüße
Lucas Kilama




ich plane den Abriss meiner bestehenden Doppelhaushälfte und den Neubau eines modernen Wohnhauses auf meinem Grundstück.
Das neue Haus wird wieder direkt an die bestehende Nachbarhälfte angebaut.
Das Grundstück hat 1.027 qm, der Entwurf stammt von meinem Architekten.
Ich freue mich über eine ehrliche und konstruktive Einschätzung zu Grundriss und Raumaufteilung.
Ansichten und Grundrisse sind im Anhang enthalten.
Bebauungsplan / Einschränkungen
- Grundstücksgröße: 1.027 qm (hälftige Nutzung bei Doppelhaus)
- Hang: kein Hang, ebene Fläche
- Grundflächenzahl (Grundflächenzahl): 0,3
- Geschossflächenzahl (Geschossflächenzahl): 0,5
- Baufenster / Baulinie / Baugrenze: laut Bebauungsplan, Doppelhaus zulässig
- Randbebauung: Anbau an bestehende Nachbarhälfte
- Anzahl Stellplätze: 2
- Geschossigkeit: 1,5 Geschosse
- Dachform: Satteldach
- Stilrichtung: modern, klare Linien
- Ausrichtung: Garten nach Südwesten
- Maximale Bauhöhe: 10 m
- Weitere Vorgaben: nur ein Vollgeschoss erlaubt
- Gebäudetyp: Doppelhaushälfte, Neubau nach Abriss
- Keller: nein
- Wohnfläche: ca. 239 qm
- Bewohner: 5 Personen (2 Erwachsene, 3 Kinder)
- Raumhöhe im Wohnbereich: ca. 6 m
- Wohn-/Essbereich: ca. 44 qm, offen und hell
- Büro: Homeoffice im Erdgeschoss
- Schlafgäste: selten (max. 2–3 mal im Jahr)
- Architektur: offen, modern, große Fensterflächen
- Bauweise: massiv
- Küche: offen mit Kochinsel
- Essplätze: 6–8
- Kamin: nicht vorgesehen
- Musik/Stereowand: möglich
- Balkon / Dachterrasse: aktuell nicht geplant
- Garage / Carport: Doppelcarport
- Garten: pflegeleicht, Familiennutzung
- Besonderheiten: hoher, offener Wohnbereich mit Galerie
- Planung durch: freien Architekten
- Was gefällt besonders: der offene Wohnraum mit Galerie und hoher Decke, großzügige Belichtung
- Was gefällt weniger: Zugang zur Galerie noch nicht ganz optimal gelöst
- Preisschätzung laut Architekt: ca. 850.000 Euro (inkl. Ausstattung, ohne Außenanlagen)
- Persönliches Preislimit: ca. 900.000 Euro
- Heiztechnik: Luft-Wasser-Wärmepumpe mit Fußbodenheizung
- Darauf könnte verzichtet werden: Gästezimmer im Erdgeschoss
- Darauf auf keinen Fall: hohe Decke im Wohnbereich, offene Küche, Galerie
- Warum der Entwurf so wurde: Kombination aus modernem Wohnkonzept und Vorgaben des Bebauungsplan (nur 1 Vollgeschoss, Anbaupflicht)
- Besonderheiten: trotz Doppelhausstruktur großzügiges Raumgefühl durch 6 m Deckenhöhe und offene Galerie
- Grundrissaufteilung
- Belichtung und Fensterflächen
- Proportionen bei 1,5 Geschossen
- Praktische Nutzung im Alltag (Familie mit drei Kindern)
Viele Grüße
Lucas Kilama
R
roteweste10.11.25 07:03Hi, da wir zuletzt ja selbst ein Einfamilienhaus mit drei Kinderzimmern geplant haben, kann ich vielleicht etwas beitragen.
1. Der Flur im EG wirkt schlecht belichtet. Ihr wollt sicher eine Garderobe neben der Treppe einrichten. Überlegt euch gut, ob ihr eure drei Kinder mit Dreckschuhen durch das halbe EG führen wollt.
2. Der Split in Wohn-Ess-Koch gefällt mir – wer hat, der kann. Um ihn wirklich in Szene zu setzen, bräuchte man meiner Meinung nach aber eine größere Durchgangsbreite.
3. Küche: Die Insel ist cool, aber der Abstand vom Kochfeld zum Rest erscheint mir zu groß, um im Alltag effizient arbeiten zu können. Das würde mich auf Dauer nerven.
4. Drei Kinder und keine Wanne? Und ja: Ein Kinderbad macht absolut Sinn, besonders da euer Hauptbad sehr kompakt ist. Diesen Luxus würde ich mir gönnen.
5. Mögt ihr eure Kinder? Nicht falsch verstehen – aber bei der Größe des Hauses könnte man im Obergeschoss locker 1–2 m² mehr für die Kinderzimmer gewinnen, zum Beispiel wenn ihr die Ankleiden streicht. Auch die Fenstergrößen in den Kinderzimmern würde ich nochmal überdenken.
6. Wollt ihr wirklich in so einem dunklen Klotz wohnen?
7. Budget könnte eng werden.
1. Der Flur im EG wirkt schlecht belichtet. Ihr wollt sicher eine Garderobe neben der Treppe einrichten. Überlegt euch gut, ob ihr eure drei Kinder mit Dreckschuhen durch das halbe EG führen wollt.
2. Der Split in Wohn-Ess-Koch gefällt mir – wer hat, der kann. Um ihn wirklich in Szene zu setzen, bräuchte man meiner Meinung nach aber eine größere Durchgangsbreite.
3. Küche: Die Insel ist cool, aber der Abstand vom Kochfeld zum Rest erscheint mir zu groß, um im Alltag effizient arbeiten zu können. Das würde mich auf Dauer nerven.
4. Drei Kinder und keine Wanne? Und ja: Ein Kinderbad macht absolut Sinn, besonders da euer Hauptbad sehr kompakt ist. Diesen Luxus würde ich mir gönnen.
5. Mögt ihr eure Kinder? Nicht falsch verstehen – aber bei der Größe des Hauses könnte man im Obergeschoss locker 1–2 m² mehr für die Kinderzimmer gewinnen, zum Beispiel wenn ihr die Ankleiden streicht. Auch die Fenstergrößen in den Kinderzimmern würde ich nochmal überdenken.
6. Wollt ihr wirklich in so einem dunklen Klotz wohnen?
7. Budget könnte eng werden.
Die Hausansicht erinnert mich etwas an unsere eigene Anfangsphase, in der wir noch irgendwie Alles und das so groß wie möglich und auch besonders wollten; im Rückblick hätte es mMn eher wie eine kleine Kirche ausgesehen, so ähnlich geht es mir hier auch, denn diese klobige Außenansicht mag mir gar nicht gefallen. Der Eingangsbereich an der Giebelseite wirkt wie verloren in dieser hohen Wand, auch das ist bislang keine schöne Lösung.
Zum Grundriss:
Das Gästezimmer würde ich weiter nach vorne zum Eingangsbereich bzw. Gästebad ziehen, damit der Gast nicht durchs Haus zum Bad laufen muss bzw. irgendein Fremder sich dort auch mal kurz die Hände waschen kann, ohne weit ins Haus zu gelangen.
Der Flur ist riesig aber vor Allem lang bei einem gleichzeitig schmalen Eingangsbereich und ohne weiteres Tageslicht; dieser sollte eher vorne breit sein und Platz bereitstellen, gleich nachdem man das Haus betritt, um Schuhe und Kleidung abzulegen; Staumöglichkeiten fehlen und können trotz des riesigen Raumes auch kaum ordentlich generiert werden. Tatsächlich wundere ich mich etwas darüber, dass dies Alles aus Architektenhand stammt.
Der große Eingangsbereich mit 6 Türöffnungen und ohne Fenster wird schwierig vom Eindruck eines Kellers zu befreien sein, dazu noch der bereits genannte, lediglich schmale Zugang in den dann wiederum großzügigen Wohnbereich, wobei mir der tiefergelegte Wohnraum an sich ja gut gefällt. Das Grundstück ist doch gerade oder? Wird also das Haus vorne "künstlich" und im hinteren Bereich wiederum abgesenkt, alleine um dem aktzuell so geplanten Wohnraum im OG gerecht zu werden? Daher wohl auch die mMn unschöne Rampe zur kaum sichtbaren Hauseingangstür.
Im EG entsteht der Eindruck, als habe man einfach den übriggebliebenen Raum in drei Teile geteilt, um Hauswirtschaftsraum etc. dort unterzubringen. Sind diese Raumgrößen tatsächlich bewusst und individuell nach tatsächlichem Bedarf so geworden?
In einem solch großen Wohnhaus gefiele mir auch eine wirklich schön integrierte Treppe als zentrales Element, aucb damit die Galerie schön wirken kann; all das fehlt aber komplett. Die Treppe hängt irgendwie an der Seite dran und läuft im OG direkt gegen die Wand anstatt in einen offenen Bereich zu münden oder zumindest gegen eine helle Glasfläche mit Aussicht, zudem treffen Treppenaufgang und Zugang beim Wohnbereich direkt aufeinander, was ich als ebenso unglücklich bzw. fehlgeplant empfinde.
Nun bin ich wahrlich kein Küchenfachmann aber der gerade Weg führt hier direkt an die Kante der Insel, was wohl auch in der aktuell eher trendigen Speisekammer begründet liegt, ansonsten hätte die Küche etwas aus dem Zugangsbereich wegrücken können. Dagegen befindet sich auf der gegenüberliegenden Seite des Raumes ein riesiges "Freigelände" ohne erkennbaren Nutzen. Irgendwie scheint es dem Architekten hier aus Versehehn zu groß geworden sein, weshalb er den Esstisch einfach in die entlegende Ecke des Raumes geschoben hat; das sieht nicht nach bewusster oder sinnvoller Raumplanung/-gestaltung aus.
Den Wunsch nach einem außergwöhnlichen Wohnraum kann ich sehr gut nachvollziehen und mag selbst auch hohe Räume. Auch hier aber fehlt mir die besondere Art des Wohnen passend zur Besonderheit des Raumes. Der TV hängt irgendwie verrutscht seitlich an der Wand und ermöglicht nur schräge Blicke darauf, sofern man dabei auf dem Sofa sitzen mag. Was passiert mit der anderen Seite dieser Wandscheibe neben dem TV oder bleibt diese einfach leer? Zumindest der Koch hätte einen geraden Blick auf den TV. Gibt es keine Idee, den TV aus dem Wohnraum zu verbannen in einen der anderen, ohnehin dunklen Räume?
Der Umstand, dass die beiden Fenster/Türen im Essbereich gegeneinander öffnen ist nicht gut.
Die 6,12m Deckenhöhe ergibt sich ja nun mal aufgrund der geplanten OG-Raumsituation. Wir selbst haben Dachschräge bis 7m Höhe und daher empfehle ich Euch, bereits vorab dazu auch unbedingt eine gute Planung der Beleuchtung zu tätigen und auchb die Mehrkosten dabei zu bedenken. Mit gewöhnlichen Funzeln wird das nur schwerlich möglich sein bzw. kann dann auch hier der eigentlich großzügige und tolle Raum schnell seinen Charme verlieren.
Im OG hatte ich die Treppe bereits erwähnt. Das Bad hat kein Fenster/Tageslicht und mehr als eine Tür im Bad empfinde ich zusätzlich als Fehlplanung. Zudem bedingt das ebenso trendige "T" im Bad auch hier eine sehr kleine Dusche und eine WC-Box, was ohne "T" problemlos großzügig lösbar wäre. Unser Bad hier ist etwa gleichgroß und mit großer, begehbarer Dusche, Wanne und sogar Waschmaschine immer noch recht großzügig. Insofern würde ich die Badtür zum Flur wegnehmen und könnte dann ein schönes Bad planen, dazu das Bad für die Kinder auf der anderen Seite, die Kinderzimmer finde ich hinsichtlich Größe absolut ausreichend bemessen und glaube nicht, dass mehr qm zwingend einen schöneren Raum ergeben würden.
Ich kann also Euren grundsätzlichen Wunsch nach besonderen Räumen nachvollziehen, sehe dies aber bislang nur schwach umgesetzt bzw. nicht erreicht. Bei den zur Verfügung stehenden 240qm geht das sicherlich deutlich besser, weshalb ich einen anderen Entwurf haben möchte. Ich glaube, dass ich an diesem mich nicht abarbeiten möchte, da grundsätzliche Dinge mMn nicht oder nicht wirklich gut umgesetzt sind. Noch ist Nichts in Stein gemeißelt.......und irgendwie beschleicht mich das Gefühl, dass der Architekt das nicht besser kann.
Zum Grundriss:
Das Gästezimmer würde ich weiter nach vorne zum Eingangsbereich bzw. Gästebad ziehen, damit der Gast nicht durchs Haus zum Bad laufen muss bzw. irgendein Fremder sich dort auch mal kurz die Hände waschen kann, ohne weit ins Haus zu gelangen.
Der Flur ist riesig aber vor Allem lang bei einem gleichzeitig schmalen Eingangsbereich und ohne weiteres Tageslicht; dieser sollte eher vorne breit sein und Platz bereitstellen, gleich nachdem man das Haus betritt, um Schuhe und Kleidung abzulegen; Staumöglichkeiten fehlen und können trotz des riesigen Raumes auch kaum ordentlich generiert werden. Tatsächlich wundere ich mich etwas darüber, dass dies Alles aus Architektenhand stammt.
Der große Eingangsbereich mit 6 Türöffnungen und ohne Fenster wird schwierig vom Eindruck eines Kellers zu befreien sein, dazu noch der bereits genannte, lediglich schmale Zugang in den dann wiederum großzügigen Wohnbereich, wobei mir der tiefergelegte Wohnraum an sich ja gut gefällt. Das Grundstück ist doch gerade oder? Wird also das Haus vorne "künstlich" und im hinteren Bereich wiederum abgesenkt, alleine um dem aktzuell so geplanten Wohnraum im OG gerecht zu werden? Daher wohl auch die mMn unschöne Rampe zur kaum sichtbaren Hauseingangstür.
Im EG entsteht der Eindruck, als habe man einfach den übriggebliebenen Raum in drei Teile geteilt, um Hauswirtschaftsraum etc. dort unterzubringen. Sind diese Raumgrößen tatsächlich bewusst und individuell nach tatsächlichem Bedarf so geworden?
In einem solch großen Wohnhaus gefiele mir auch eine wirklich schön integrierte Treppe als zentrales Element, aucb damit die Galerie schön wirken kann; all das fehlt aber komplett. Die Treppe hängt irgendwie an der Seite dran und läuft im OG direkt gegen die Wand anstatt in einen offenen Bereich zu münden oder zumindest gegen eine helle Glasfläche mit Aussicht, zudem treffen Treppenaufgang und Zugang beim Wohnbereich direkt aufeinander, was ich als ebenso unglücklich bzw. fehlgeplant empfinde.
Nun bin ich wahrlich kein Küchenfachmann aber der gerade Weg führt hier direkt an die Kante der Insel, was wohl auch in der aktuell eher trendigen Speisekammer begründet liegt, ansonsten hätte die Küche etwas aus dem Zugangsbereich wegrücken können. Dagegen befindet sich auf der gegenüberliegenden Seite des Raumes ein riesiges "Freigelände" ohne erkennbaren Nutzen. Irgendwie scheint es dem Architekten hier aus Versehehn zu groß geworden sein, weshalb er den Esstisch einfach in die entlegende Ecke des Raumes geschoben hat; das sieht nicht nach bewusster oder sinnvoller Raumplanung/-gestaltung aus.
Den Wunsch nach einem außergwöhnlichen Wohnraum kann ich sehr gut nachvollziehen und mag selbst auch hohe Räume. Auch hier aber fehlt mir die besondere Art des Wohnen passend zur Besonderheit des Raumes. Der TV hängt irgendwie verrutscht seitlich an der Wand und ermöglicht nur schräge Blicke darauf, sofern man dabei auf dem Sofa sitzen mag. Was passiert mit der anderen Seite dieser Wandscheibe neben dem TV oder bleibt diese einfach leer? Zumindest der Koch hätte einen geraden Blick auf den TV. Gibt es keine Idee, den TV aus dem Wohnraum zu verbannen in einen der anderen, ohnehin dunklen Räume?
Der Umstand, dass die beiden Fenster/Türen im Essbereich gegeneinander öffnen ist nicht gut.
Die 6,12m Deckenhöhe ergibt sich ja nun mal aufgrund der geplanten OG-Raumsituation. Wir selbst haben Dachschräge bis 7m Höhe und daher empfehle ich Euch, bereits vorab dazu auch unbedingt eine gute Planung der Beleuchtung zu tätigen und auchb die Mehrkosten dabei zu bedenken. Mit gewöhnlichen Funzeln wird das nur schwerlich möglich sein bzw. kann dann auch hier der eigentlich großzügige und tolle Raum schnell seinen Charme verlieren.
lucaskilam schrieb:Aktuell gibt es ja eher gar keinen Zugang zur Galerie aber gerade das ist doch das Schöne an einer Galerie, wenn man oben nach unten in den Wohnraum und nach draußen ins Grüne schauen kann. Ein solcher Raum bedarf besonderes Augenmerk hinsichtlich Beleuchtung und auch Schall, sonst hat man schnell eine Hallenwirkung. Insofern braucht es mMn hier parallel einer passenden Planung/Gestatung der Innenräume, was bei ansonsten üblichen Wohnraumgrößen eher einfach zu realisieren ist. Wie gesagt haben wir selbst einen solch offenen Bereich, weshalb ich mir das ganz gut vorstellen kann.
Was gefällt weniger: Zugang zur Galerie noch nicht ganz optimal gelöst
Im OG hatte ich die Treppe bereits erwähnt. Das Bad hat kein Fenster/Tageslicht und mehr als eine Tür im Bad empfinde ich zusätzlich als Fehlplanung. Zudem bedingt das ebenso trendige "T" im Bad auch hier eine sehr kleine Dusche und eine WC-Box, was ohne "T" problemlos großzügig lösbar wäre. Unser Bad hier ist etwa gleichgroß und mit großer, begehbarer Dusche, Wanne und sogar Waschmaschine immer noch recht großzügig. Insofern würde ich die Badtür zum Flur wegnehmen und könnte dann ein schönes Bad planen, dazu das Bad für die Kinder auf der anderen Seite, die Kinderzimmer finde ich hinsichtlich Größe absolut ausreichend bemessen und glaube nicht, dass mehr qm zwingend einen schöneren Raum ergeben würden.
Ich kann also Euren grundsätzlichen Wunsch nach besonderen Räumen nachvollziehen, sehe dies aber bislang nur schwach umgesetzt bzw. nicht erreicht. Bei den zur Verfügung stehenden 240qm geht das sicherlich deutlich besser, weshalb ich einen anderen Entwurf haben möchte. Ich glaube, dass ich an diesem mich nicht abarbeiten möchte, da grundsätzliche Dinge mMn nicht oder nicht wirklich gut umgesetzt sind. Noch ist Nichts in Stein gemeißelt.......und irgendwie beschleicht mich das Gefühl, dass der Architekt das nicht besser kann.
B y the w ay: die Ansichten passen nicht zum Grundriss.
Wie sieht denn das Grundstück aus? Hast Du mal einen Lageplan, wo Straße, Ausrichtung und das Grundstück mit dem Entwurf zu sehen ist? Welches Bundesland ist es?
Aber jetzt zum Anfang:
den klobigen Würfel muss man mögen. Viele wollen das genau so. ich bin da zwiegespalten - wenn ich allerdings weiss, dass innen dort nur ein Luftraum ist, höher als einem Luftraum gut tut, dann bin ich bei Veränderung. Es tut beiden gut - innen wie außen - wenn man da noch mehr Gehirnschmalz einsetzt. Der Luftraum ist uA auch nur dazu da, die Eingeschossigkeit zu vertreten?!
Eingang "Althaus": die drei Räume im EG ergeben sich durch die Kinderzimmer im Dach. Nun weiß man nicht, wo die Straße verläuft, wo man parkt auf dem Grundstück. Gefühlt tausche ich Gast und Technik. Vielleicht tausche ich auch Hauswirtschaftsraum/Abstell/Eingang. Ursprünglich Hauswirtschaftsraum wird Eingang mit Garderoben-Schränken, direkte Sichtachse in Richtung Allraum, Bad aus der Eingangssituation. Gast/Hobby wäre dann an der Ecke (Süd-Ecke?) nah bei dem Duschbad. Der ganze Flur wäre strukturierter.
"Anbau" Allraum: dem fehlen Elemente, die dem Raum Struktur geben. Wie schon gesat, war mein erster Gedanke "da muss eine Wand hin". Wer beim Kochen TV schauen will, der kann auch mal den seitlichen Schritt machen.
ABER: die Küche ist ja stockdunkel! Noch dazu hat sie eine Decke. Sie hat quasi nichts vom Luftraum und dem einfallenden Licht.
Gedanklich wäre ich bei: Küche an die Außenwand zum Tageslicht, Chillbereich darf etwas dunkler, schicky Drei-Meter-Insel (oder ähnlich), streiche den Zugang zur Speis durch den Hochschrank und lege die Speis als Struktur- und Statikelement mittig in den großen Allraum.
Gedanklich wäre ich bei einem Luftraum über Küche und Essbereich, den aber auch planen und nicht nur nach oben frei lassen. Den Elternbereich kann man noch frei anpassen, usw.
roteweste schrieb:Das ist dem Anbau geschuldet. Der hat sich bei der Planung jetzt wohl etwas verändert.
Der Split in Wohn-Ess-Koch gefällt mir
Arauki11 schrieb:Doch, bestimmt. Das ist doch jetzt erst einmal ein Weg, den man einschlagen könnte und den man dem Kunden zeigt, um alles mal zu hinterfragen. Vielleicht hat er sich aber auch eingefahren.
....und irgendwie beschleicht mich das Gefühl, dass der Architekt das nicht besser kann.
lucaskilam schrieb:Da wollen wir mal den Rechnungen des Architekten glauben, dass es sich hier noch um eine Eingeschossigkeit handelt.
Weitere Vorgaben: nur ein Vollgeschoss erlaubt
lucaskilam schrieb:Du meinst oder hast jetzt 510qm an Eigentum?
Grundstücksgröße: 1.027 qm (hälftige Nutzung bei Doppelhaus)
Wie sieht denn das Grundstück aus? Hast Du mal einen Lageplan, wo Straße, Ausrichtung und das Grundstück mit dem Entwurf zu sehen ist? Welches Bundesland ist es?
lucaskilam schrieb:Was verstehst Du unter Galerie? Wo ist denn hier eine?
Was gefällt weniger: Zugang zur Galerie noch nicht ganz optimal gelöst
lucaskilam schrieb:Hohe Decke im Wohnbereich ist etwas anderes als gar keine Decke (wie hier) zu haben.
Darauf auf keinen Fall: hohe Decke im Wohnbereich,
roteweste schrieb:Mir gefällt sie so, wie sie ist, nicht. Ich kann mir aber auch vorstellen, dass es eben eine Platzhalterküche ist. Sie hat hier kaum Arbeitsfläche und der Tresen, naja, der ist schon recht übersichtlich.
Küche: Die Insel ist cool,
Arauki11 schrieb:Als ich den Entwurf gestern Abend angeschaut habe, habe ich sofort gedacht, da fehlt, genau dort, wo die drei Stühle stehen, eine Wand, die dem Raum Struktur gibt.
Zumindest der Koch hätte einen geraden Blick auf den TV. Gibt es keine Idee, den TV aus dem Wohnraum zu verbannen in einen der anderen, ohnehin dunklen Räume?
Aber jetzt zum Anfang:
den klobigen Würfel muss man mögen. Viele wollen das genau so. ich bin da zwiegespalten - wenn ich allerdings weiss, dass innen dort nur ein Luftraum ist, höher als einem Luftraum gut tut, dann bin ich bei Veränderung. Es tut beiden gut - innen wie außen - wenn man da noch mehr Gehirnschmalz einsetzt. Der Luftraum ist uA auch nur dazu da, die Eingeschossigkeit zu vertreten?!
Eingang "Althaus": die drei Räume im EG ergeben sich durch die Kinderzimmer im Dach. Nun weiß man nicht, wo die Straße verläuft, wo man parkt auf dem Grundstück. Gefühlt tausche ich Gast und Technik. Vielleicht tausche ich auch Hauswirtschaftsraum/Abstell/Eingang. Ursprünglich Hauswirtschaftsraum wird Eingang mit Garderoben-Schränken, direkte Sichtachse in Richtung Allraum, Bad aus der Eingangssituation. Gast/Hobby wäre dann an der Ecke (Süd-Ecke?) nah bei dem Duschbad. Der ganze Flur wäre strukturierter.
"Anbau" Allraum: dem fehlen Elemente, die dem Raum Struktur geben. Wie schon gesat, war mein erster Gedanke "da muss eine Wand hin". Wer beim Kochen TV schauen will, der kann auch mal den seitlichen Schritt machen.
ABER: die Küche ist ja stockdunkel! Noch dazu hat sie eine Decke. Sie hat quasi nichts vom Luftraum und dem einfallenden Licht.
Gedanklich wäre ich bei: Küche an die Außenwand zum Tageslicht, Chillbereich darf etwas dunkler, schicky Drei-Meter-Insel (oder ähnlich), streiche den Zugang zur Speis durch den Hochschrank und lege die Speis als Struktur- und Statikelement mittig in den großen Allraum.
Gedanklich wäre ich bei einem Luftraum über Küche und Essbereich, den aber auch planen und nicht nur nach oben frei lassen. Den Elternbereich kann man noch frei anpassen, usw.
Quick & dirty wäre ich eher hier. Allerdings muss man ja eher von oben nach unten planen, wenn es um Luftraum und Schlafzimmer geht, das mit dem Bad ja auch belüftet und belichtet werden möchte. Hier würde ich den Wohnbereich nicht im Lftraum sehen.
Aber ich zeige es dennoch, da man den Flurbereich und die Idee mit der Speis erkennen kann.
Planoben rechts wäre eine Kinderecke, zur Not kann man den Esstisch erweitern.

Aber ich zeige es dennoch, da man den Flurbereich und die Idee mit der Speis erkennen kann.
Planoben rechts wäre eine Kinderecke, zur Not kann man den Esstisch erweitern.
W
wiltshire10.11.25 13:05Vorab: Ich liebe hohe Räume mit viel Luftraum.
Damit ein hoher Raum wirkt braucht es ein gutes Verhältnis zwischen Länge, Breite und Höhe. Das sehe ich bei Deinem Entwurf nicht gegeben. Der Luftraum ist 50% höher als breit. Dieses Verhältnis kommt mir ungünstig vor - "Schacht-Optik".
Damit man sich in großen Räumen gerne aufhält, spielt die Akustik eine entscheidende Rolle. Die Raumgeometrie, die Du anstrebst erfordert Maßnahmen in diese Richtung, die es kostenseitig in sich haben. Ich hoffe, dass das berücksichtigt ist. Anderenfalls baust Du einen Raum, der einen permanenten Druck auf die Ohren gibt, da sich für den Fall zu viel glatter Wandflächen in der gewählten Geometrie bereits leise Geräusche über Hall-Effekte potenzieren und überlagern.
Wie bereits von anderen erwähnt bekommen Küche und Flur sehr wenig natürliches Licht. Mir würde das missfallen.
Im OG wird es für ein Kinderbad eng, aber für ein "Sonderbad" mit Toilette und einem Waschbecken, etwas Ablage, damit Platz für Zähneputzen ist, wäre schon sinnvoll. Es braucht ja nicht notwendigerweise eine Dusche. Bei "Doppelbelegung" ist ja noch eine im EG.
Damit ein hoher Raum wirkt braucht es ein gutes Verhältnis zwischen Länge, Breite und Höhe. Das sehe ich bei Deinem Entwurf nicht gegeben. Der Luftraum ist 50% höher als breit. Dieses Verhältnis kommt mir ungünstig vor - "Schacht-Optik".
Damit man sich in großen Räumen gerne aufhält, spielt die Akustik eine entscheidende Rolle. Die Raumgeometrie, die Du anstrebst erfordert Maßnahmen in diese Richtung, die es kostenseitig in sich haben. Ich hoffe, dass das berücksichtigt ist. Anderenfalls baust Du einen Raum, der einen permanenten Druck auf die Ohren gibt, da sich für den Fall zu viel glatter Wandflächen in der gewählten Geometrie bereits leise Geräusche über Hall-Effekte potenzieren und überlagern.
Wie bereits von anderen erwähnt bekommen Küche und Flur sehr wenig natürliches Licht. Mir würde das missfallen.
Im OG wird es für ein Kinderbad eng, aber für ein "Sonderbad" mit Toilette und einem Waschbecken, etwas Ablage, damit Platz für Zähneputzen ist, wäre schon sinnvoll. Es braucht ja nicht notwendigerweise eine Dusche. Bei "Doppelbelegung" ist ja noch eine im EG.
Ähnliche Themen