ᐅ Grundrissplanung mit einigen Anforderungen - Ideen?
Erstellt am: 29.12.17 00:54
Hallo zusammen,
die Erschließung "unseres" Neubaugebietes ist fast fertig, demnächst können wir hoffentlich das Grundstück kaufen.
Ich würde mich sehr freuen, wenn ihr unsere Planung kritisch unter die Lupe nehmen könntet:
Bebauungsplan/Einschränkungen
Größe des Grundstücks: 740qm
Hang: leichter Hang
Grundflächenzahl/Geschossflächenzahl: keine Angabe im BP
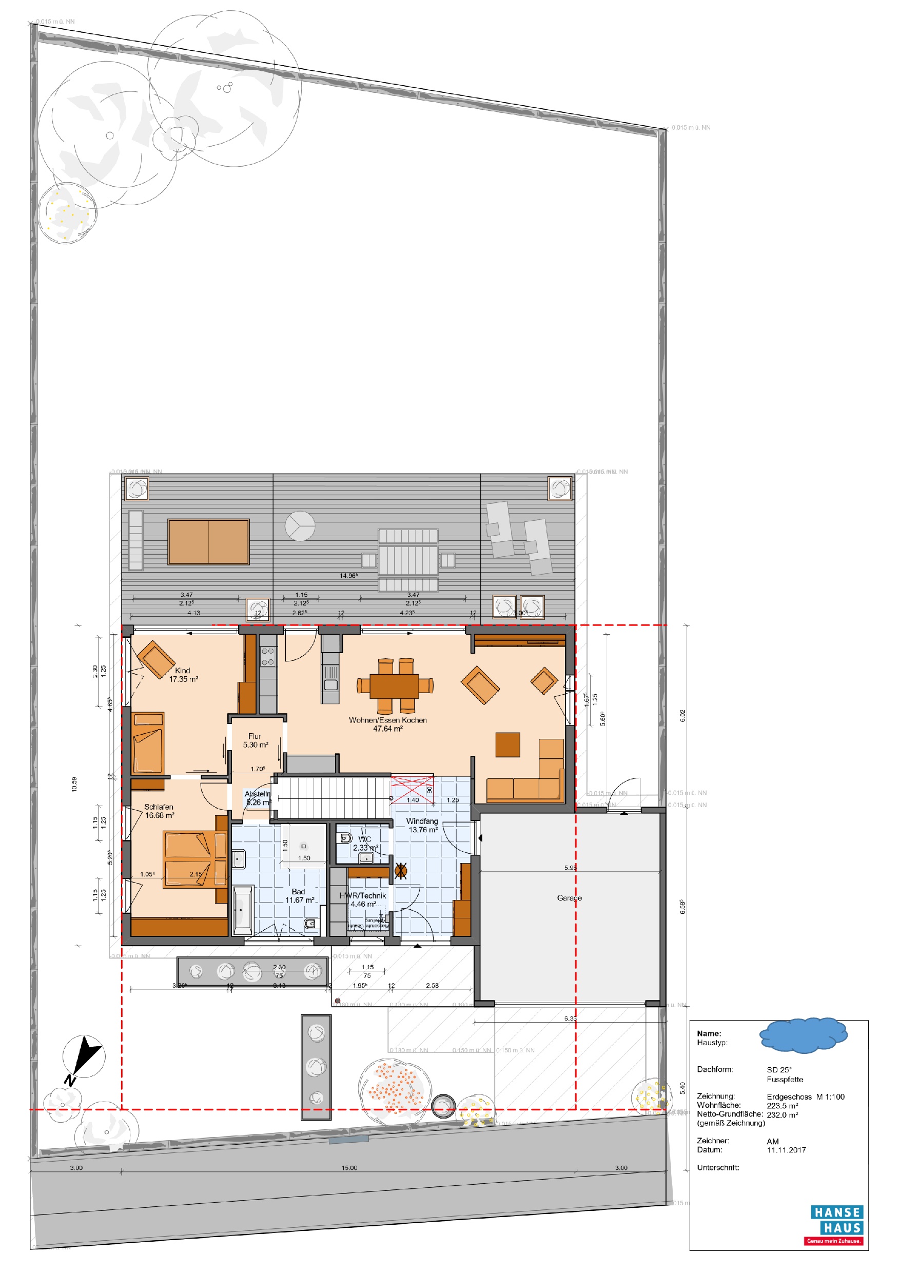
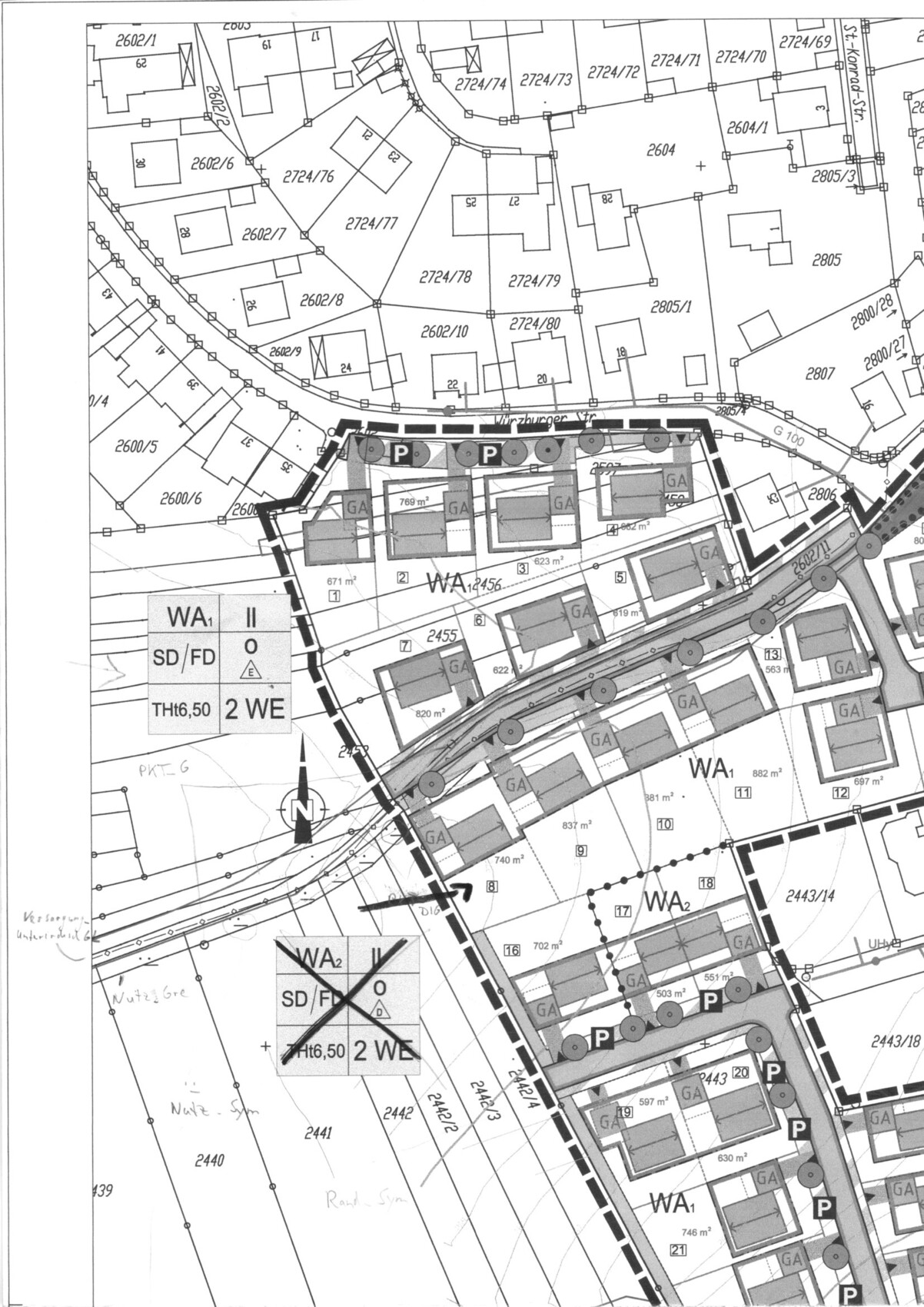
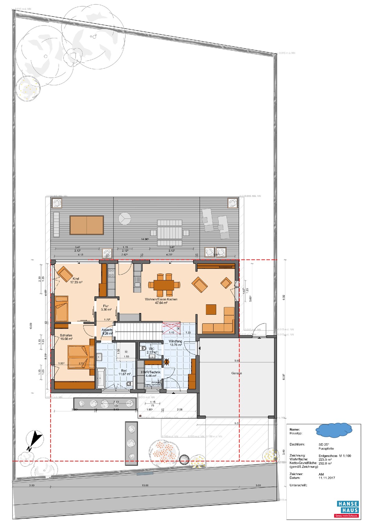
Baufenster, Baulinie und -grenze: siehe Bild, Grundstücksbreite laut Bebauungsplan leider nur 21,5m. Vorsichtshalber mit 21m Breite geplant. Also ein Handtuchgrundstück von der Form her...
Randbebauung: Garage
Anzahl Stellplatz: k.A.
Geschossigkeit Max 2
Dachform: gleichgeneigtes SD (10-25 Grad) bzw. Flachdach Max. 5 Grad
Ausrichtung: Strasse im Norden, Garten im Süden, Hauptfirstrichtung muss parallel zur Strasse, im Westen Acker mit vermutlich baldiger Erweiterung unseres Neubaugebietes,
Maximale Höhen/Begrenzungen: Traufhöhe Max. 6,5m
Anforderungen der Bauherren
Stilrichtung, Dachform, Gebäudetyp
Keller, Geschosse: kein Keller, idealerweise 2 Geschosse
Anzahl der Personen, Alter: 2 Erw, 3 Kinder (2,5,6)
Raumbedarf im EG: Elternschlafzimmer, Kinderzimmer, Bad, Gäste-WC,Kochen/Essen, Wohnen, Treppe mit Platz für Plattformlift ins OG, Abstellraum (mit Platz für Haus-Anschlüsse, Waschmaschine und Trockner, Gefrierschrank)
Raumbedarf im OG: 2 weitere Kinderzimmer, Bad, Arbeitszimmer, Gästezimmer, Duschbad, Technik incl. Kontrollierte-Wohnraumlüftung, Abstellfläche, traumhaft wäre ein kleiner extra Raum nur zum Schmutzwäsche sortieren, waschen und trocknen
Büro: Familiennutzung
Schlafgäste pro Jahr: grob 1x monatlich 1-2 Personen für 1-2 Nächte
offene oder geschlossene Architektur:eher geschlossen
konservativ oder moderne Bauweise: hauptsächlich praktisch
offene Küche, Kochinsel: Offene Küche mit viel Stauraum, hochgestelltem Grundstück, viel Arbeitsfläche und Platz für einen auf mind. 2,40m ausziehbarem Esstisch. Wohnzimmer dürfte gerne abgetrennt sein, aber schwierig machbar.
Anzahl Essplätze: im Alltag mind. 5, manchmal auch 10-12 Personen
Kamin: Nein
Musik/Stereowand: Nein
Balkon, Dachterrasse: Nein
Garage, Carport: Doppelgarage, Breite laut BP Max 6,5m
Nutzgarten ja, Treibhaus eher nein
weitere Wünsche/Besonderheiten/Tagesablauf, gern auch Begründungen, warum dieses oder das nicht sein soll. Tochter (2) ist mehrfach schwerstbehindert, wird den Rolli nicht selber bedienen können. Nachts sollte sie auch nahe bei uns sein. Bisher hält sie sich tagsüber nicht im Kinderzimmer auf, sondern bei uns. Allerdings brauchen wir Platz für verschiedene Hilfsmittel.
Hausentwurf:
Von wem stammt die Planung:
-Architekt eines Bauunternehmens zusammen mit meinen Ideen
Was gefällt besonders? Nachts direkter Blick von meinem Bett in das Bett. Alle Räume sind von den Himmelsrichtungen gut untergebracht.
Was gefällt nicht? Wohnzimmer zu lang und schmal: Im Wohnzimmer ist eine Bodenmatte (1,25 x 2,0m) eingezeichnet. Langfristig werden wir ein erhöhtes Podest mit Umrandung für sie im Wohnzimmer machen. Im jetzigen Plan geht das schlecht. Ein extra Hauswirtschaftsraum wäre noch schön. Küche evtl zu klein
Im OG gefällt mir der Bereich Technik/Duschbad/Ecke Arbeitszimmer noch nicht so richtig.
Preisschätzung lt Architekt/Planer:
Persönliches Preislimit fürs Haus, inkl Ausstattung:
favorisierte Heiztechnik: Gas, Solar (?), Kontrollierte-Wohnraumlüftung mit Wärmerückgewinnung
Wenn Ihr verzichten müsst, auf welche Details/Ausbauten
-könnt Ihr verzichten: Die Türe von der Garage wird nicht ins Haus sondern unters Vordach gehen, Badewanne im OG (vielleicht ein guter Wäscheständer-Platz?)
-könnt Ihr nicht verzichten: rollstuhlgerecht
Warum ist der Entwurf so geworden, wie er jetzt ist? Viele Überlegungen
Was macht ihn in Euren Augen besonders gut oder schlecht? Alles schon recht gut untergebracht.
Was ist die wichtigste/grundlegende Frage zum Grundriss in 130 Zeichen zusammengefasst? Wie könnte man den Allraum anders gestalten, gerne mit besser abgetrenntem Wohnzimmer. Wo seht ihr noch Verbesserungsmöglichkeiten? Können Verkehrsflächen noch minimiert werden?
Ein großes Danke schon mal!
Viele Grüße
Anitra

die Erschließung "unseres" Neubaugebietes ist fast fertig, demnächst können wir hoffentlich das Grundstück kaufen.
Ich würde mich sehr freuen, wenn ihr unsere Planung kritisch unter die Lupe nehmen könntet:
Bebauungsplan/Einschränkungen
Größe des Grundstücks: 740qm
Hang: leichter Hang
Grundflächenzahl/Geschossflächenzahl: keine Angabe im BP
Baufenster, Baulinie und -grenze: siehe Bild, Grundstücksbreite laut Bebauungsplan leider nur 21,5m. Vorsichtshalber mit 21m Breite geplant. Also ein Handtuchgrundstück von der Form her...
Randbebauung: Garage
Anzahl Stellplatz: k.A.
Geschossigkeit Max 2
Dachform: gleichgeneigtes SD (10-25 Grad) bzw. Flachdach Max. 5 Grad
Ausrichtung: Strasse im Norden, Garten im Süden, Hauptfirstrichtung muss parallel zur Strasse, im Westen Acker mit vermutlich baldiger Erweiterung unseres Neubaugebietes,
Maximale Höhen/Begrenzungen: Traufhöhe Max. 6,5m
Anforderungen der Bauherren
Stilrichtung, Dachform, Gebäudetyp
Keller, Geschosse: kein Keller, idealerweise 2 Geschosse
Anzahl der Personen, Alter: 2 Erw, 3 Kinder (2,5,6)
Raumbedarf im EG: Elternschlafzimmer, Kinderzimmer, Bad, Gäste-WC,Kochen/Essen, Wohnen, Treppe mit Platz für Plattformlift ins OG, Abstellraum (mit Platz für Haus-Anschlüsse, Waschmaschine und Trockner, Gefrierschrank)
Raumbedarf im OG: 2 weitere Kinderzimmer, Bad, Arbeitszimmer, Gästezimmer, Duschbad, Technik incl. Kontrollierte-Wohnraumlüftung, Abstellfläche, traumhaft wäre ein kleiner extra Raum nur zum Schmutzwäsche sortieren, waschen und trocknen
Büro: Familiennutzung
Schlafgäste pro Jahr: grob 1x monatlich 1-2 Personen für 1-2 Nächte
offene oder geschlossene Architektur:eher geschlossen
konservativ oder moderne Bauweise: hauptsächlich praktisch
offene Küche, Kochinsel: Offene Küche mit viel Stauraum, hochgestelltem Grundstück, viel Arbeitsfläche und Platz für einen auf mind. 2,40m ausziehbarem Esstisch. Wohnzimmer dürfte gerne abgetrennt sein, aber schwierig machbar.
Anzahl Essplätze: im Alltag mind. 5, manchmal auch 10-12 Personen
Kamin: Nein
Musik/Stereowand: Nein
Balkon, Dachterrasse: Nein
Garage, Carport: Doppelgarage, Breite laut BP Max 6,5m
Nutzgarten ja, Treibhaus eher nein
weitere Wünsche/Besonderheiten/Tagesablauf, gern auch Begründungen, warum dieses oder das nicht sein soll. Tochter (2) ist mehrfach schwerstbehindert, wird den Rolli nicht selber bedienen können. Nachts sollte sie auch nahe bei uns sein. Bisher hält sie sich tagsüber nicht im Kinderzimmer auf, sondern bei uns. Allerdings brauchen wir Platz für verschiedene Hilfsmittel.
Hausentwurf:
Von wem stammt die Planung:
-Architekt eines Bauunternehmens zusammen mit meinen Ideen
Was gefällt besonders? Nachts direkter Blick von meinem Bett in das Bett. Alle Räume sind von den Himmelsrichtungen gut untergebracht.
Was gefällt nicht? Wohnzimmer zu lang und schmal: Im Wohnzimmer ist eine Bodenmatte (1,25 x 2,0m) eingezeichnet. Langfristig werden wir ein erhöhtes Podest mit Umrandung für sie im Wohnzimmer machen. Im jetzigen Plan geht das schlecht. Ein extra Hauswirtschaftsraum wäre noch schön. Küche evtl zu klein
Im OG gefällt mir der Bereich Technik/Duschbad/Ecke Arbeitszimmer noch nicht so richtig.
Preisschätzung lt Architekt/Planer:
Persönliches Preislimit fürs Haus, inkl Ausstattung:
favorisierte Heiztechnik: Gas, Solar (?), Kontrollierte-Wohnraumlüftung mit Wärmerückgewinnung
Wenn Ihr verzichten müsst, auf welche Details/Ausbauten
-könnt Ihr verzichten: Die Türe von der Garage wird nicht ins Haus sondern unters Vordach gehen, Badewanne im OG (vielleicht ein guter Wäscheständer-Platz?)
-könnt Ihr nicht verzichten: rollstuhlgerecht
Warum ist der Entwurf so geworden, wie er jetzt ist? Viele Überlegungen
Was macht ihn in Euren Augen besonders gut oder schlecht? Alles schon recht gut untergebracht.
Was ist die wichtigste/grundlegende Frage zum Grundriss in 130 Zeichen zusammengefasst? Wie könnte man den Allraum anders gestalten, gerne mit besser abgetrenntem Wohnzimmer. Wo seht ihr noch Verbesserungsmöglichkeiten? Können Verkehrsflächen noch minimiert werden?
Ein großes Danke schon mal!
Viele Grüße
Anitra
Erstmal willkommen zurück in der Diskussionsrunde. Wir hatten uns in der Zwischenzeit ja ein paar Mal per PN ausgetauscht, für die Community mag daher manches am aktuellen Entwurf nicht ganz nachvollziehbar sein. Aus meiner Sicht war es bisher keine leichte Geburt, aber nun sehe ich den Entwurf im Stadium des Landeanfluges.
Wie per PN schon gesagt, der obere Hauswirtschaftsraum ist noch nicht so recht mein Traumprinz, aber insgesamt erscheinen mir die Abstriche am "Optimum" erträglich, so steckt doch noch ein gutes Stück Wunschhaus darin. Da kann es der ganzen Familie gemütlich werden, auch wenn die Kostendisziplin einige Schlichtheit diktiert. Der Flächenmehrbedarf für Aktionsradien dürfte recht gut abgefangen sein.
https://www.instagram.com/11antgmxde/
https://www.linkedin.com/company/bauen-jetzt/
Wie per PN schon gesagt, der obere Hauswirtschaftsraum ist noch nicht so recht mein Traumprinz, aber insgesamt erscheinen mir die Abstriche am "Optimum" erträglich, so steckt doch noch ein gutes Stück Wunschhaus darin. Da kann es der ganzen Familie gemütlich werden, auch wenn die Kostendisziplin einige Schlichtheit diktiert. Der Flächenmehrbedarf für Aktionsradien dürfte recht gut abgefangen sein.
https://www.instagram.com/11antgmxde/
https://www.linkedin.com/company/bauen-jetzt/
Vielen Dank,
ja, ich war einige Zeit in der Versenkung.
Falls sich jemand wundert: Im alten Thread musste ich die Grundrisse löschen (lassen) weil dort explizit erwähnt war, dass sie nicht veröffentlicht werden dürfen. Leider so klein geschrieben, dass ich es im Vorfeld selber nicht entdeckt und gelesen hatte.
Meine Sorge ist auch, dass der Allraum durch die fehlende Trennung ungemütlich werden könnte. Dabei ist mir Gemütlichkeit besonders wichtig zum Wohlfühlen
ja, ich war einige Zeit in der Versenkung.
Falls sich jemand wundert: Im alten Thread musste ich die Grundrisse löschen (lassen) weil dort explizit erwähnt war, dass sie nicht veröffentlicht werden dürfen. Leider so klein geschrieben, dass ich es im Vorfeld selber nicht entdeckt und gelesen hatte.
Meine Sorge ist auch, dass der Allraum durch die fehlende Trennung ungemütlich werden könnte. Dabei ist mir Gemütlichkeit besonders wichtig zum Wohlfühlen
Ok, nachdem ich mir das seit gestern 3 mal angeschaut habe, kann ich meine ein oder zwei Bedenken formulieren und mein Verbesserungsvorschlag anbringen.
Grundsätzlich finde ich es gut gelöst, wenig unnütze Flurfläche im EG, wenig Ecken, wo der Rolly hängen bleiben kann.
1. Ich würde überlegen, ob die Durchgangstür zw Eltern und Kind sein muss oder ob der Flur als Verbindung ausreicht. Das könnt nur Ihr wissen.
2. Der Allraum ist nicht groß genug, um ungemütlich zu sein, für den Chillbereich könntet ihr Euch auch einen Raumteiler a la Kallax ans sofa stellen.
Aber: ich sehe nur ein RBM von 3 Metern Breite für die Couch. Und somit sehe ich dort nicht gerade eine Familiencouch für 4-5 Personen.
Wenn ich daran denke, wie vor wenigen Jahren unsere Suche nach einem gemütlichen Sofa ausfiel... kaum ein Sofa unter 300 Breite. Und auch 280 bringen den Bereich dazu, etwas zu platzen: Stehlampe, Tischchen, Ablage.... all das wird sehr eng.
Ich seh dort aber auch keine andere Möglichkeit, als mal TV mit Couch zu tauschen.
Allerdings gibt es die Möglichkeit, Küche mit Chill zu tauschen. Dann würde ich aber das Sofa an die dort fensterlose Außenwand setzen, TV an die Treppenrückwand. Küche bietet dann genug Stauraum bzw verschiebt sich etwas mit dem Esstisch. Ich würde es an Eurer Stelle zumindest mal aufzeichnen, wie Eure Möblierung so passt.
3. überprüft die Länge der Treppe. Sie sieht sehr kurz aus... kann aber sein, dass es nur so wirkt, weil sie breiter ist.
4. ich würde wohl für mich persönlich das Haus spiegeln: Garage im Norden, zum Westen (SW) das Kind und Schlafzimmer. Im OG den Hauswirtschaftsraum in den Norden.
Liebe Grüße
Grundsätzlich finde ich es gut gelöst, wenig unnütze Flurfläche im EG, wenig Ecken, wo der Rolly hängen bleiben kann.
1. Ich würde überlegen, ob die Durchgangstür zw Eltern und Kind sein muss oder ob der Flur als Verbindung ausreicht. Das könnt nur Ihr wissen.
2. Der Allraum ist nicht groß genug, um ungemütlich zu sein, für den Chillbereich könntet ihr Euch auch einen Raumteiler a la Kallax ans sofa stellen.
Aber: ich sehe nur ein RBM von 3 Metern Breite für die Couch. Und somit sehe ich dort nicht gerade eine Familiencouch für 4-5 Personen.
Wenn ich daran denke, wie vor wenigen Jahren unsere Suche nach einem gemütlichen Sofa ausfiel... kaum ein Sofa unter 300 Breite. Und auch 280 bringen den Bereich dazu, etwas zu platzen: Stehlampe, Tischchen, Ablage.... all das wird sehr eng.
Ich seh dort aber auch keine andere Möglichkeit, als mal TV mit Couch zu tauschen.
Allerdings gibt es die Möglichkeit, Küche mit Chill zu tauschen. Dann würde ich aber das Sofa an die dort fensterlose Außenwand setzen, TV an die Treppenrückwand. Küche bietet dann genug Stauraum bzw verschiebt sich etwas mit dem Esstisch. Ich würde es an Eurer Stelle zumindest mal aufzeichnen, wie Eure Möblierung so passt.
3. überprüft die Länge der Treppe. Sie sieht sehr kurz aus... kann aber sein, dass es nur so wirkt, weil sie breiter ist.
4. ich würde wohl für mich persönlich das Haus spiegeln: Garage im Norden, zum Westen (SW) das Kind und Schlafzimmer. Im OG den Hauswirtschaftsraum in den Norden.
Liebe Grüße
Ähnliche Themen