Hallo zusammen,
die Erschließung "unseres" Neubaugebietes ist fast fertig, demnächst können wir hoffentlich das Grundstück kaufen.
Ich würde mich sehr freuen, wenn ihr unsere Planung kritisch unter die Lupe nehmen könntet:
Bebauungsplan/Einschränkungen
Größe des Grundstücks: 740qm
Hang: leichter Hang
Grundflächenzahl/Geschossflächenzahl: keine Angabe im BP
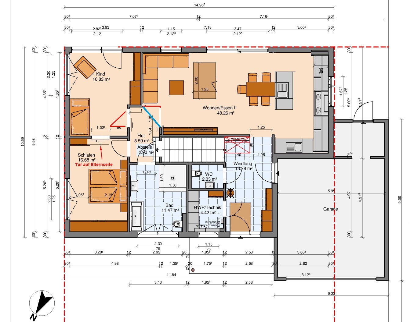
Baufenster, Baulinie und -grenze: siehe Bild, Grundstücksbreite laut Bebauungsplan leider nur 21,5m. Vorsichtshalber mit 21m Breite geplant. Also ein Handtuchgrundstück von der Form her...
Randbebauung: Garage
Anzahl Stellplatz: k.A.
Geschossigkeit Max 2
Dachform: gleichgeneigtes SD (10-25 Grad) bzw. Flachdach Max. 5 Grad
Ausrichtung: Strasse im Norden, Garten im Süden, Hauptfirstrichtung muss parallel zur Strasse, im Westen Acker mit vermutlich baldiger Erweiterung unseres Neubaugebietes,
Maximale Höhen/Begrenzungen: Traufhöhe Max. 6,5m
Anforderungen der Bauherren
Stilrichtung, Dachform, Gebäudetyp
Keller, Geschosse: kein Keller, idealerweise 2 Geschosse
Anzahl der Personen, Alter: 2 Erw, 3 Kinder (2,5,6)
Raumbedarf im EG: Elternschlafzimmer, Kinderzimmer, Bad, Gäste-WC,Kochen/Essen, Wohnen, Treppe mit Platz für Plattformlift ins OG, Abstellraum (mit Platz für Haus-Anschlüsse, Waschmaschine und Trockner, Gefrierschrank)
Raumbedarf im OG: 2 weitere Kinderzimmer, Bad, Arbeitszimmer, Gästezimmer, Duschbad, Technik incl. Kontrollierte-Wohnraumlüftung, Abstellfläche, traumhaft wäre ein kleiner extra Raum nur zum Schmutzwäsche sortieren, waschen und trocknen
Büro: Familiennutzung
Schlafgäste pro Jahr: grob 1x monatlich 1-2 Personen für 1-2 Nächte
offene oder geschlossene Architektur:eher geschlossen
konservativ oder moderne Bauweise: hauptsächlich praktisch
offene Küche, Kochinsel: Offene Küche mit viel Stauraum, hochgestelltem Grundstück, viel Arbeitsfläche und Platz für einen auf mind. 2,40m ausziehbarem Esstisch. Wohnzimmer dürfte gerne abgetrennt sein, aber schwierig machbar.
Anzahl Essplätze: im Alltag mind. 5, manchmal auch 10-12 Personen
Kamin: Nein
Musik/Stereowand: Nein
Balkon, Dachterrasse: Nein
Garage, Carport: Doppelgarage, Breite laut BP Max 6,5m
Nutzgarten ja, Treibhaus eher nein
weitere Wünsche/Besonderheiten/Tagesablauf, gern auch Begründungen, warum dieses oder das nicht sein soll. Tochter (2) ist mehrfach schwerstbehindert, wird den Rolli nicht selber bedienen können. Nachts sollte sie auch nahe bei uns sein. Bisher hält sie sich tagsüber nicht im Kinderzimmer auf, sondern bei uns. Allerdings brauchen wir Platz für verschiedene Hilfsmittel.
Hausentwurf:
Von wem stammt die Planung:
-Architekt eines Bauunternehmens zusammen mit meinen Ideen
Was gefällt besonders? Nachts direkter Blick von meinem Bett in das Bett. Alle Räume sind von den Himmelsrichtungen gut untergebracht.
Was gefällt nicht? Wohnzimmer zu lang und schmal: Im Wohnzimmer ist eine Bodenmatte (1,25 x 2,0m) eingezeichnet. Langfristig werden wir ein erhöhtes Podest mit Umrandung für sie im Wohnzimmer machen. Im jetzigen Plan geht das schlecht. Ein extra Hauswirtschaftsraum wäre noch schön. Küche evtl zu klein
Im OG gefällt mir der Bereich Technik/Duschbad/Ecke Arbeitszimmer noch nicht so richtig.
Preisschätzung lt Architekt/Planer:
Persönliches Preislimit fürs Haus, inkl Ausstattung:
favorisierte Heiztechnik: Gas, Solar (?), Kontrollierte-Wohnraumlüftung mit Wärmerückgewinnung
Wenn Ihr verzichten müsst, auf welche Details/Ausbauten
-könnt Ihr verzichten: Die Türe von der Garage wird nicht ins Haus sondern unters Vordach gehen, Badewanne im OG (vielleicht ein guter Wäscheständer-Platz?)
-könnt Ihr nicht verzichten: rollstuhlgerecht
Warum ist der Entwurf so geworden, wie er jetzt ist? Viele Überlegungen
Was macht ihn in Euren Augen besonders gut oder schlecht? Alles schon recht gut untergebracht.
Was ist die wichtigste/grundlegende Frage zum Grundriss in 130 Zeichen zusammengefasst? Wie könnte man den Allraum anders gestalten, gerne mit besser abgetrenntem Wohnzimmer. Wo seht ihr noch Verbesserungsmöglichkeiten? Können Verkehrsflächen noch minimiert werden?
Ein großes Danke schon mal!
Viele Grüße
Anitra
die Erschließung "unseres" Neubaugebietes ist fast fertig, demnächst können wir hoffentlich das Grundstück kaufen.
Ich würde mich sehr freuen, wenn ihr unsere Planung kritisch unter die Lupe nehmen könntet:
Bebauungsplan/Einschränkungen
Größe des Grundstücks: 740qm
Hang: leichter Hang
Grundflächenzahl/Geschossflächenzahl: keine Angabe im BP
Baufenster, Baulinie und -grenze: siehe Bild, Grundstücksbreite laut Bebauungsplan leider nur 21,5m. Vorsichtshalber mit 21m Breite geplant. Also ein Handtuchgrundstück von der Form her...
Randbebauung: Garage
Anzahl Stellplatz: k.A.
Geschossigkeit Max 2
Dachform: gleichgeneigtes SD (10-25 Grad) bzw. Flachdach Max. 5 Grad
Ausrichtung: Strasse im Norden, Garten im Süden, Hauptfirstrichtung muss parallel zur Strasse, im Westen Acker mit vermutlich baldiger Erweiterung unseres Neubaugebietes,
Maximale Höhen/Begrenzungen: Traufhöhe Max. 6,5m
Anforderungen der Bauherren
Stilrichtung, Dachform, Gebäudetyp
Keller, Geschosse: kein Keller, idealerweise 2 Geschosse
Anzahl der Personen, Alter: 2 Erw, 3 Kinder (2,5,6)
Raumbedarf im EG: Elternschlafzimmer, Kinderzimmer, Bad, Gäste-WC,Kochen/Essen, Wohnen, Treppe mit Platz für Plattformlift ins OG, Abstellraum (mit Platz für Haus-Anschlüsse, Waschmaschine und Trockner, Gefrierschrank)
Raumbedarf im OG: 2 weitere Kinderzimmer, Bad, Arbeitszimmer, Gästezimmer, Duschbad, Technik incl. Kontrollierte-Wohnraumlüftung, Abstellfläche, traumhaft wäre ein kleiner extra Raum nur zum Schmutzwäsche sortieren, waschen und trocknen
Büro: Familiennutzung
Schlafgäste pro Jahr: grob 1x monatlich 1-2 Personen für 1-2 Nächte
offene oder geschlossene Architektur:eher geschlossen
konservativ oder moderne Bauweise: hauptsächlich praktisch
offene Küche, Kochinsel: Offene Küche mit viel Stauraum, hochgestelltem Grundstück, viel Arbeitsfläche und Platz für einen auf mind. 2,40m ausziehbarem Esstisch. Wohnzimmer dürfte gerne abgetrennt sein, aber schwierig machbar.
Anzahl Essplätze: im Alltag mind. 5, manchmal auch 10-12 Personen
Kamin: Nein
Musik/Stereowand: Nein
Balkon, Dachterrasse: Nein
Garage, Carport: Doppelgarage, Breite laut BP Max 6,5m
Nutzgarten ja, Treibhaus eher nein
weitere Wünsche/Besonderheiten/Tagesablauf, gern auch Begründungen, warum dieses oder das nicht sein soll. Tochter (2) ist mehrfach schwerstbehindert, wird den Rolli nicht selber bedienen können. Nachts sollte sie auch nahe bei uns sein. Bisher hält sie sich tagsüber nicht im Kinderzimmer auf, sondern bei uns. Allerdings brauchen wir Platz für verschiedene Hilfsmittel.
Hausentwurf:
Von wem stammt die Planung:
-Architekt eines Bauunternehmens zusammen mit meinen Ideen
Was gefällt besonders? Nachts direkter Blick von meinem Bett in das Bett. Alle Räume sind von den Himmelsrichtungen gut untergebracht.
Was gefällt nicht? Wohnzimmer zu lang und schmal: Im Wohnzimmer ist eine Bodenmatte (1,25 x 2,0m) eingezeichnet. Langfristig werden wir ein erhöhtes Podest mit Umrandung für sie im Wohnzimmer machen. Im jetzigen Plan geht das schlecht. Ein extra Hauswirtschaftsraum wäre noch schön. Küche evtl zu klein
Im OG gefällt mir der Bereich Technik/Duschbad/Ecke Arbeitszimmer noch nicht so richtig.
Preisschätzung lt Architekt/Planer:
Persönliches Preislimit fürs Haus, inkl Ausstattung:
favorisierte Heiztechnik: Gas, Solar (?), Kontrollierte-Wohnraumlüftung mit Wärmerückgewinnung
Wenn Ihr verzichten müsst, auf welche Details/Ausbauten
-könnt Ihr verzichten: Die Türe von der Garage wird nicht ins Haus sondern unters Vordach gehen, Badewanne im OG (vielleicht ein guter Wäscheständer-Platz?)
-könnt Ihr nicht verzichten: rollstuhlgerecht
Warum ist der Entwurf so geworden, wie er jetzt ist? Viele Überlegungen
Was macht ihn in Euren Augen besonders gut oder schlecht? Alles schon recht gut untergebracht.
Was ist die wichtigste/grundlegende Frage zum Grundriss in 130 Zeichen zusammengefasst? Wie könnte man den Allraum anders gestalten, gerne mit besser abgetrenntem Wohnzimmer. Wo seht ihr noch Verbesserungsmöglichkeiten? Können Verkehrsflächen noch minimiert werden?
Ein großes Danke schon mal!
Viele Grüße
Anitra
Hallo,
zur späteren Trennung: die Treppe hat im OG nur eine brüstungshohe Mauer als Geländer und keine komplette Wand damit mehr Licht zur Treppe kommt und der enge Flur oben etwas weiter wirkt. Eine Trennung geht somit eigentlich nur wenn im EG unten vor der Treppe noch eine Wohnungstür eingezogen wird, oder? Wo würdest ihr Küchenanschlüsse vorsehen? Am billigsten wahrscheinlich im Arbeitszimmer zur Bad Wand hin, aber ein richtig schöner Ort ist das nicht für die Küche.
Von der Trennung im Wohnraum muss ich mich wohl verabschieden. Selbst wenn man das Kinderzimmer verkleinert, ist es suboptimal: Danke für die Visualisierung, kaho.
Die Bodenmatte ist nicht für Therapien gedacht sondern als zusätzlicher Aufenthaltsort für unsere Tochter. Sie hat zwar einen Therapiestuhl aber das Sitzen wird mit der Zeit anstrengend, so dass sie immer wieder auch liegt. Sie hat dort seitlich und am Kopfende eine etwa 1m hohe Umrandung und daran Spielzeug über sich hängen. Das ist ihr Rückzugs- und Wohlfühlort. Toll wäre es, wenn ich einen guten Blick auf sie hätte (geht wegen der Umrandung nur von vorne, also ihren Füßen). Brauche dafür auch Strom weil eine Lichtleiste drinnen liegt. Da das vom Boden aufheben immer beschwerlicher wird, möchte ich ihre Spielhöhle demnächst auf ein Podest machen. Das könnte schon Rollen haben aber wird im normalen Alltag bestimmt einen Lieblingsplatz finden.
Das Kinderzimmer an der Südseite passt besser damit sie näher am Wohnbereich ist.
Ein abtrennbarer Flur wäre mir lieber falls wir irgendwann einen Pflegedienst bräuchten. Dann hat man falls man mal ungestört sein will eine Tür mehr zu machen und kann sich ungezwungener unterhalten. Nachts würden wir dann ggfalls im Gästezimmer schlafen.
Was haltet ihr davon eine schräge zwei(?)flügelige Tür hinzumachen?
Danke euch allen fürs fleißige Mithelfen!
Schöne Grüße
Anitra
zur späteren Trennung: die Treppe hat im OG nur eine brüstungshohe Mauer als Geländer und keine komplette Wand damit mehr Licht zur Treppe kommt und der enge Flur oben etwas weiter wirkt. Eine Trennung geht somit eigentlich nur wenn im EG unten vor der Treppe noch eine Wohnungstür eingezogen wird, oder? Wo würdest ihr Küchenanschlüsse vorsehen? Am billigsten wahrscheinlich im Arbeitszimmer zur Bad Wand hin, aber ein richtig schöner Ort ist das nicht für die Küche.
Von der Trennung im Wohnraum muss ich mich wohl verabschieden. Selbst wenn man das Kinderzimmer verkleinert, ist es suboptimal: Danke für die Visualisierung, kaho.
Die Bodenmatte ist nicht für Therapien gedacht sondern als zusätzlicher Aufenthaltsort für unsere Tochter. Sie hat zwar einen Therapiestuhl aber das Sitzen wird mit der Zeit anstrengend, so dass sie immer wieder auch liegt. Sie hat dort seitlich und am Kopfende eine etwa 1m hohe Umrandung und daran Spielzeug über sich hängen. Das ist ihr Rückzugs- und Wohlfühlort. Toll wäre es, wenn ich einen guten Blick auf sie hätte (geht wegen der Umrandung nur von vorne, also ihren Füßen). Brauche dafür auch Strom weil eine Lichtleiste drinnen liegt. Da das vom Boden aufheben immer beschwerlicher wird, möchte ich ihre Spielhöhle demnächst auf ein Podest machen. Das könnte schon Rollen haben aber wird im normalen Alltag bestimmt einen Lieblingsplatz finden.
Das Kinderzimmer an der Südseite passt besser damit sie näher am Wohnbereich ist.
Ein abtrennbarer Flur wäre mir lieber falls wir irgendwann einen Pflegedienst bräuchten. Dann hat man falls man mal ungestört sein will eine Tür mehr zu machen und kann sich ungezwungener unterhalten. Nachts würden wir dann ggfalls im Gästezimmer schlafen.
Was haltet ihr davon eine schräge zwei(?)flügelige Tür hinzumachen?
Danke euch allen fürs fleißige Mithelfen!
Schöne Grüße
Anitra
Anitra schrieb:
Was haltet ihr davon eine schräge zwei(?)flügelige Tür hinzumachen?Garnichts.haydee schrieb:
Finde die Schiebetüre aus dem 1. Plan am Besten.Da schließe ich mich an - was gefiele Dir daran weniger ?https://www.instagram.com/11antgmxde/
https://www.linkedin.com/company/bauen-jetzt/
Damit ich die Couch dort unterbringe muss die Wand im Flur wo ursprünglich Küchenzeile und Kinderzimmerwand dahinter waren nach planunten wandern. Dann fehlt aber der Platz zum Öffnen der Schiebetüren jeweils.
Beim Kinderzimmer sehe ich kein Problem. Da wird es entweder eine normale Tür oder die Schiebetür läuft innen vor den Schränken entlang. Die Tür zum Abstellraum unter der Treppe müsste besser trotzdem nach außen aufgehen um den Raum halbwegs gut nutzen zu können. Somit geht die Schiebetür zum Wohnzimmer aber nicht mehr auf.
Beim Kinderzimmer sehe ich kein Problem. Da wird es entweder eine normale Tür oder die Schiebetür läuft innen vor den Schränken entlang. Die Tür zum Abstellraum unter der Treppe müsste besser trotzdem nach außen aufgehen um den Raum halbwegs gut nutzen zu können. Somit geht die Schiebetür zum Wohnzimmer aber nicht mehr auf.
Anitra schrieb:
Die Tür zum Abstellraum unter der Treppe müsste besser trotzdem nach außen aufgehen um den Raum halbwegs gut nutzen zu können. Somit geht die Schiebetür zum Wohnzimmer aber nicht mehr auf.Dann müssen wir hier eben eine schicke Falttürlösung ertüfteln. Oder wie bei einem Kleiderschrank, die beiden Türen (Flur und Abstellraum) gehen als Schiebetüren hintereinander.
https://www.instagram.com/11antgmxde/
https://www.linkedin.com/company/bauen-jetzt/
Ähnliche Themen