ᐅ Grundrissplanung für unser Einfamilienhaus Einfamilienhaus in SH
Erstellt am: 21.08.18 17:54
O
opalauHallo zusammen,
Nachdem wir vor einigen Monaten erfolgreich ein Grundstück in Schleswig Holstein gefunden und erworben haben läuft aktuell die Planung für unser Einfamilienhaus. Auf der einen Seite evaluieren wir gerade GU für eine mögliche Zusammenarbeit, zum anderen feilen wir am Grundriss.
Ursprünglich war ein Keller geplant (s. Schnitt), allerdings kommen wir nicht ohne Weiße Wanne aus (Gründungsempfehlung Bodengutachten) und grundsätzlich scheinen die Anforderungen der Energieeinsparverordnung Keller noch teurer zu machen. Das schmale Grundstück (15m) erschwert zudem Abböschungen. All das hat dazu geführt, dass wir ohne Keller planen, dafür aber mehr Fläche überirdisch einplanen.
Wir sind inzwischen relativ zufrieden mit dem Zwischenergebnis, hängen aber nicht daran. Hoffe ich… Insgesamt haben wir großzügig geplant, ich bin dennoch etwas überrascht, dass es ~230qm Grundfläche geworden sind. Ich habe aber auch etwas die Sorge, dass wir einen laienhaften Tunnelblick haben, daher auch mein Beitrag hier
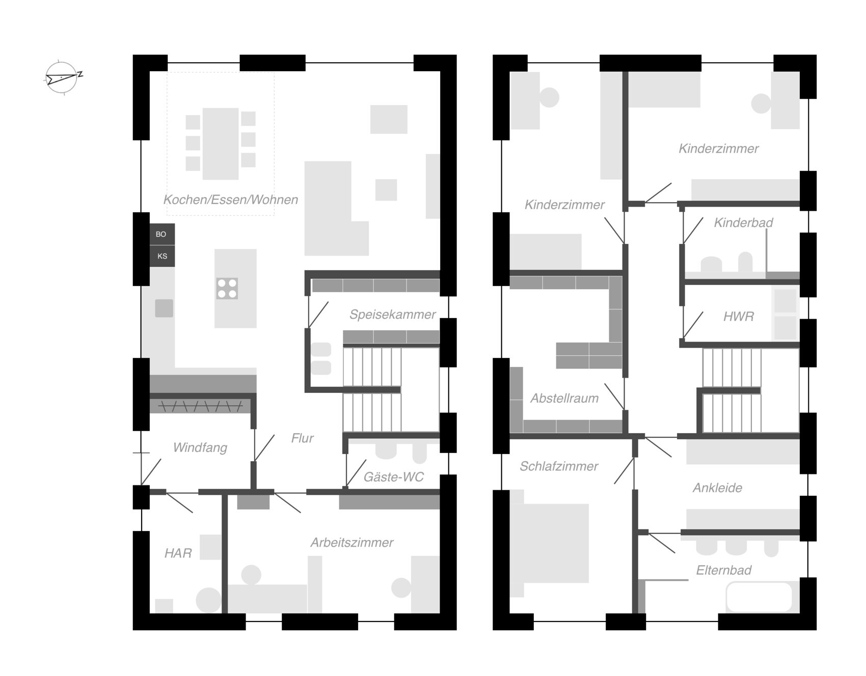
Entschuldigt bitte die doppelten Grundrisse. Ich finde die Einrichtungsvisualisierung von Sweet Home 3D so furchtbar, dass ich darin keine Innenraumgestaltung machen kann. Daher diese separat. Ich hoffe das verwirrt nicht zu sehr.
An dieser Stelle auch ein großer Dank an das Forum, was wir allein durch’s Mitlesen schon gelernt haben ist wirklich toll!
Größe des Grundstücks: 1150qm (15m x ca. 77m)
Hang: Nein
Grundflächenzahl, Geschossflächenzahl, etc.: §34
Einschränkungen: Traufhöhe 5,5m und Firsthöhe 8,14m (Bauvoranfrage bzgl. Kubatur)
Anforderungen der Bauherren
Stilrichtung, Dachform, Gebäudetyp: Schlicht, Satteldach
Keller, Geschosse: Nein, 2 Vollgeschosse
Anzahl der Personen, Alter: 32, 39, 3, 0
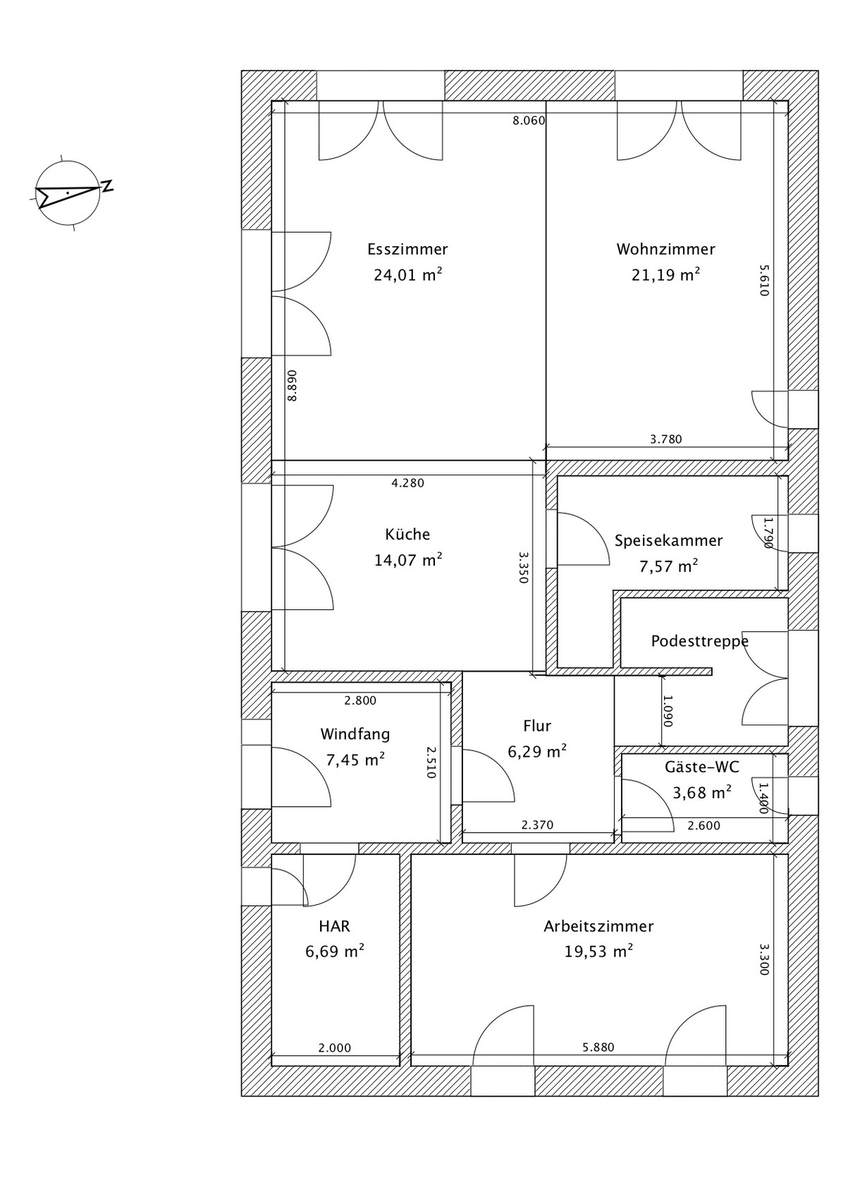
Raumbedarf im EG: Kochen/Essen/Wohnen, Speisekammer, Arbeitszimmer, Hauswirtschaftsraum, Gäste-WC, Windfang, Flur
Raumbedarf im OG: 2 Kinderzimmer, Kinderduschbad, Elternschlafzimmer, Ankleide, Elternbad, Abstellzimmer, Hauswirtschaftsraum, Flur
Büro: Home Office, Hobby (viel genutzt)
Schlafgäste pro Jahr: 0
Offene oder geschlossene Architektur: Offen
Konservativ oder moderne Bauweise: Vmtl. modern
Offene Küche, Kochinsel: Offen mit Kochinsel
Anzahl Essplätze: 6
Kamin: Nein
Musik/Stereowand: Nein (Was ist überhaupt eine Stereowand? )
Balkon, Dachterrasse: Nein
Garage, Carport: Doppel-Carport mit Schuppen als Grenzbebauung
Hausentwurf
Von wem stammt die Planung: Do-it-Yourself
Was gefällt besonders? Warum?
- Großzügig bemessene Zimmer
- Eltern- und Kinderbereich gut getrennt
- Kinder Richtung uneinsehbarem Garten
- Eltern Richtung Sonnenaufgang
- Hoher Kniestock im OG
- Ausreichend Abstellfläche
Was gefällt nicht? Warum?
- Elternbad über Arbeitszimmer
- Abstellraum im OG auf Südseite (Wobei hier in 6m Entfernung ein Nachbar lauert)
- Ist der Windfang beengt?
Preisschätzung lt Architekt/Planer: 500TEUR zzgl. Baunebenkosten, Außenanlagen, Carport
Favorisierte Heiztechnik: Gas
Wenn Ihr verzichten müsst, auf welche Details/Ausbauten könnt Ihr verzichten: Keinen Raum an sich, eher etwas von der Großzügigkeit insgesamt, evtl. noch die vielen Abstellräume (Speisekammer, Hauswirtschaftsraum, HAR, Abstellkammer) konsolidieren.
Warum ist der Entwurf so geworden, wie er jetzt ist? Viele Iterationen, Abwägen von Wünschen, Gespräche mit GUs, Musterparkbesuche, etc.
Was ist die wichtigste/grundlegende Frage zum Grundriss in 130 Zeichen zusammengefasst: Ist der Grundriss grundlegend plausibel? Haben wir durch Tunnelblick Entscheidendes übersehen?






Nachdem wir vor einigen Monaten erfolgreich ein Grundstück in Schleswig Holstein gefunden und erworben haben läuft aktuell die Planung für unser Einfamilienhaus. Auf der einen Seite evaluieren wir gerade GU für eine mögliche Zusammenarbeit, zum anderen feilen wir am Grundriss.
Ursprünglich war ein Keller geplant (s. Schnitt), allerdings kommen wir nicht ohne Weiße Wanne aus (Gründungsempfehlung Bodengutachten) und grundsätzlich scheinen die Anforderungen der Energieeinsparverordnung Keller noch teurer zu machen. Das schmale Grundstück (15m) erschwert zudem Abböschungen. All das hat dazu geführt, dass wir ohne Keller planen, dafür aber mehr Fläche überirdisch einplanen.
Wir sind inzwischen relativ zufrieden mit dem Zwischenergebnis, hängen aber nicht daran. Hoffe ich… Insgesamt haben wir großzügig geplant, ich bin dennoch etwas überrascht, dass es ~230qm Grundfläche geworden sind. Ich habe aber auch etwas die Sorge, dass wir einen laienhaften Tunnelblick haben, daher auch mein Beitrag hier
Entschuldigt bitte die doppelten Grundrisse. Ich finde die Einrichtungsvisualisierung von Sweet Home 3D so furchtbar, dass ich darin keine Innenraumgestaltung machen kann. Daher diese separat. Ich hoffe das verwirrt nicht zu sehr.
An dieser Stelle auch ein großer Dank an das Forum, was wir allein durch’s Mitlesen schon gelernt haben ist wirklich toll!
Größe des Grundstücks: 1150qm (15m x ca. 77m)
Hang: Nein
Grundflächenzahl, Geschossflächenzahl, etc.: §34
Einschränkungen: Traufhöhe 5,5m und Firsthöhe 8,14m (Bauvoranfrage bzgl. Kubatur)
Anforderungen der Bauherren
Stilrichtung, Dachform, Gebäudetyp: Schlicht, Satteldach
Keller, Geschosse: Nein, 2 Vollgeschosse
Anzahl der Personen, Alter: 32, 39, 3, 0
Raumbedarf im EG: Kochen/Essen/Wohnen, Speisekammer, Arbeitszimmer, Hauswirtschaftsraum, Gäste-WC, Windfang, Flur
Raumbedarf im OG: 2 Kinderzimmer, Kinderduschbad, Elternschlafzimmer, Ankleide, Elternbad, Abstellzimmer, Hauswirtschaftsraum, Flur
Büro: Home Office, Hobby (viel genutzt)
Schlafgäste pro Jahr: 0
Offene oder geschlossene Architektur: Offen
Konservativ oder moderne Bauweise: Vmtl. modern
Offene Küche, Kochinsel: Offen mit Kochinsel
Anzahl Essplätze: 6
Kamin: Nein
Musik/Stereowand: Nein (Was ist überhaupt eine Stereowand? )
Balkon, Dachterrasse: Nein
Garage, Carport: Doppel-Carport mit Schuppen als Grenzbebauung
Hausentwurf
Von wem stammt die Planung: Do-it-Yourself
Was gefällt besonders? Warum?
- Großzügig bemessene Zimmer
- Eltern- und Kinderbereich gut getrennt
- Kinder Richtung uneinsehbarem Garten
- Eltern Richtung Sonnenaufgang
- Hoher Kniestock im OG
- Ausreichend Abstellfläche
Was gefällt nicht? Warum?
- Elternbad über Arbeitszimmer
- Abstellraum im OG auf Südseite (Wobei hier in 6m Entfernung ein Nachbar lauert)
- Ist der Windfang beengt?
Preisschätzung lt Architekt/Planer: 500TEUR zzgl. Baunebenkosten, Außenanlagen, Carport
Favorisierte Heiztechnik: Gas
Wenn Ihr verzichten müsst, auf welche Details/Ausbauten könnt Ihr verzichten: Keinen Raum an sich, eher etwas von der Großzügigkeit insgesamt, evtl. noch die vielen Abstellräume (Speisekammer, Hauswirtschaftsraum, HAR, Abstellkammer) konsolidieren.
Warum ist der Entwurf so geworden, wie er jetzt ist? Viele Iterationen, Abwägen von Wünschen, Gespräche mit GUs, Musterparkbesuche, etc.
Was ist die wichtigste/grundlegende Frage zum Grundriss in 130 Zeichen zusammengefasst: Ist der Grundriss grundlegend plausibel? Haben wir durch Tunnelblick Entscheidendes übersehen?
Cool. Riesenhütte. Habt Ihr die Kohle?
Find den Entwurf nicht schlecht - mit viel Fläche plant es sich natürlich leichter.
Was mir nicht gefällt: Galaktische Hütte, aber im Elternbad ist es zu eng. Küche wirkt leider etwas ungemütlich wie ein Durchgangszimmer. Treppentiefe sieht etwas knapp aus - kann aber täuschen.
Wozu braucht Ihr den riesigen Abstellraum im OG?
Find den Entwurf nicht schlecht - mit viel Fläche plant es sich natürlich leichter.
Was mir nicht gefällt: Galaktische Hütte, aber im Elternbad ist es zu eng. Küche wirkt leider etwas ungemütlich wie ein Durchgangszimmer. Treppentiefe sieht etwas knapp aus - kann aber täuschen.
Wozu braucht Ihr den riesigen Abstellraum im OG?
kaho674 schrieb:
Cool. Riesenhütte. Habt Ihr die Kohle?
Find den Entwurf nicht schlecht - mit viel Fläche plant es sich natürlich leichter.
Was mir nicht gefällt: Galaktische Hütte, aber im Elternbad ist es zu eng. Küche wirkt leider etwas ungemütlich wie ein Durchgangszimmer. Treppentiefe sieht etwas knapp aus - kann aber täuschen.
Wozu braucht Ihr den riesigen Abstellraum im OG?Cool, dass du direkt andere Aspekte bemerkst als ich gefragt hatte! (Ernst und positiv gemeint)
Zum Elternbad: Wir sind grundsätzlich keine Badfetischisten, daher muss es kein Wellness-Tempel sein. Aber es sollte auch nicht beengt wirken. Meinst du das würde es? Die Anordnung ist nur ein erster Entwurf, ließe sich das dadurch optimieren?
Zur Küche: Ungemütlich weil Zugang zu Wohnen/Essen? Es ist sicher viel Gewohnheit dabei, denn so kenne ich z.B. von früher und fand es immer Recht passend Wohnen in der hintersten gemütlichen Ecke zu haben und die anderen beiden Räume dementsprechend anzuordnen (z.B. Weg vom Eingang zur Speisekammer zur Küche) Und der Bereich hinter der Insel ist ja auch „gemütlich“ abgeschirmt.
Treppentiefe ist in der Tat knapp. Da müssen sicher noch 20cm dazu wenn es nicht zu steil oder das Podest zu schmal werden soll. Das verträgt die aktuelle Position aber.
Abstellraum kommt mir im Vergleich zu vielen hier im Forum auch groß vor. Er ist aus dem Verzicht auf den Keller entstanden und sicher großzügig bemessen (aber bei weitem kleiner und günstiger als ein Keller ). Aber wir haben auch einiges an Zeug (z.B. Tauchausrüstung, Reitausrüstung) das Platz braucht. Außerdem bin ich von der nervigen schlechten Zugänglichkeit unseres kleinen Kellers aktuell hochgradig genervt…
opalau schrieb:
Grösse des Grundstücks: 1150qm (15m x ca. 77m)Aua. Das sieht nach Feldern mit versäumter Baulandumlegung aus.opalau schrieb:
Hang: NeinWas in diesem Fall schade ist, am Hang hätte man das Handtuch wenigstens schon splitleveln können.opalau schrieb:
Ist der Grundriss grundlegend plausibel? Haben wir durch Tunnelblick Entscheidendes übersehen?Ich denke, den Umständen entsprechend hast Du die Kajüten ganz ordentlich platziert. Den HAR würde ich unter das Elternbad legen (oder umgekehrt), und die Treppe scheint mir ein bißchen zu kurz (da sehe ich den Umstieg auf eine Wendelung im "Podest" angesagt).https://www.instagram.com/11antgmxde/
https://www.linkedin.com/company/bauen-jetzt/
11ant schrieb:
Aua. Das sieht nach Feldern mit versäumter Baulandumlegung aus.
Was in diesem Fall schade ist, am Hang hätte man das Handtuch wenigstens schon splitleveln können.Ist da jetzt eine Frage versteckt?
Ich finde 15m noch gerade okay, der unverbaubare GartenAusblick ist ein großes Plus. Und dass ich die Mehrkosten eines Hanges spare finde ich auch nicht schlecht.
opalau schrieb:
Ist da jetzt eine Frage versteckt?Wo soll da eine sein ?opalau schrieb:
Ich finde 15m noch gerade okay,Für eine Doppelhaushälfte ja, oder wenn man in der Haustiefe dann mit 12 oder 13 m hinkommt.Was ist das, was im Lageplan wie die Umrisse einer Doppelgarage aussieht (die allerdings ein Fenster des Arbeitszimmers verdecken würde) ?
https://www.instagram.com/11antgmxde/
https://www.linkedin.com/company/bauen-jetzt/
Ähnliche Themen