ᐅ Grundrissplanung Einfamilienhaus inkl Praxis
Erstellt am: 19.05.17 18:36
Hallo Zusammen
Ich möchte in ca. 1,5 Jahren Hausbauen und beschäftige mich gerade mit dem Grundriss.
Die letzten 2 Monate zeichne ich in einem Planungtool den Grundriss und ich wollte Euch bitte meine Ausarbeitung zu bewerten.
Prinzipiell stelle ich mir folgend Fragen:
Bebauungsplan/Einschränkungen
1700m2
Hang Nein
Grundflächenzahl Nein
Geschossflächenzahl Nein
Randbebauung Nein
Geschossigkeit 2
Dachform Walmdach
Stilrichtung Modern
Ausrichtung Terrasse Richtung Süden
Ausrichtung Garage ist Norden - d.h. das Plan ist um 90° verdreht
Anforderungen der Bauherren
Keller, Geschosse - Keller + EG + OG
offene Architektur
moderne Bauweise
offene Küche, Kochinsel
Kamin
kein Balkon notwendig
Garage
Hausentwurf
Von wem stammt die Planung:
-Do-it-Yourself
Spezial
Praxis mit eigenem Eingang ist zwingend notwendig und muss barrierefrei im Erdgeschoss sein.
Danke!!






Ich möchte in ca. 1,5 Jahren Hausbauen und beschäftige mich gerade mit dem Grundriss.
Die letzten 2 Monate zeichne ich in einem Planungtool den Grundriss und ich wollte Euch bitte meine Ausarbeitung zu bewerten.
Prinzipiell stelle ich mir folgend Fragen:
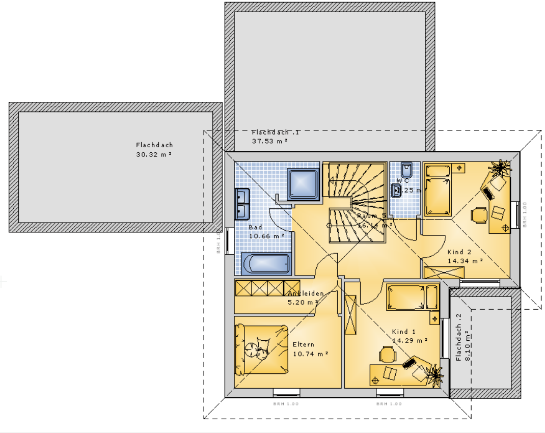
- Durch die große Anzahl an Dächern vielleicht unnötig teuer? Könnte man am Grundriss noch etwas optimieren?
- Raumaufteilung soweit okay - Arbeitszimmer könnte aber auch oben sein
- Ist die gesamte Aufteilung für den Bau eventuell zu aufwendig.
Bebauungsplan/Einschränkungen
1700m2
Hang Nein
Grundflächenzahl Nein
Geschossflächenzahl Nein
Randbebauung Nein
Geschossigkeit 2
Dachform Walmdach
Stilrichtung Modern
Ausrichtung Terrasse Richtung Süden
Ausrichtung Garage ist Norden - d.h. das Plan ist um 90° verdreht
Anforderungen der Bauherren
Keller, Geschosse - Keller + EG + OG
offene Architektur
moderne Bauweise
offene Küche, Kochinsel
Kamin
kein Balkon notwendig
Garage
Hausentwurf
Von wem stammt die Planung:
-Do-it-Yourself
Spezial
Praxis mit eigenem Eingang ist zwingend notwendig und muss barrierefrei im Erdgeschoss sein.
Danke!!
Ein Fitnessraum mit "Wartezimmer" genanntem eigenem Eingangsflur - was dürfen wir uns darunter vorstellen ?
Die Garage ist den Abmessungen nach für zwei Smarts oder Aygos gedacht ?
Die Morgentoilette hat zwei Teile: zwischen Pinkeln und Zähneputzen tapst man durch den Flur ...
Da drängt sich die Frage regelrecht auf, wo genau da nun zwei Monate Reifungsprozeß zu sehen sein sollen (?)
https://www.instagram.com/11antgmxde/
https://www.linkedin.com/company/bauen-jetzt/
Die Garage ist den Abmessungen nach für zwei Smarts oder Aygos gedacht ?
Die Morgentoilette hat zwei Teile: zwischen Pinkeln und Zähneputzen tapst man durch den Flur ...
Da drängt sich die Frage regelrecht auf, wo genau da nun zwei Monate Reifungsprozeß zu sehen sein sollen (?)
https://www.instagram.com/11antgmxde/
https://www.linkedin.com/company/bauen-jetzt/
Hallo,
wenn Maße dran stehen würden, dann könnte man definitiv sagen, dass so einiges zu schmal geplant wurde.
zB Ankleide, Schlafzimmer, Flur zur Praxis. Auch die Garage mag mir zu kurz vorkommen, der Tresen in der Küche ist zu schmal.
So aber ist es nur abgeleitet.
Wieviel QM sollen es denn sein???
wenn Maße dran stehen würden, dann könnte man definitiv sagen, dass so einiges zu schmal geplant wurde.
zB Ankleide, Schlafzimmer, Flur zur Praxis. Auch die Garage mag mir zu kurz vorkommen, der Tresen in der Küche ist zu schmal.
So aber ist es nur abgeleitet.
Wieviel QM sollen es denn sein???
Hallo
Vielen Dank für die Antworten.
- Der Fitnessraum ist eine Praxis, Vorher ein kleiner Warteraum für die Patienten
- Garage ist noch nicht 100% fertig - aber du hast recht viel zu eng
- Das mit der Morgentoilette verkrafte ich - hab ich jetzt auch schon so ;-)
- Die Maße sind noch nicht 100% perfekt, hab mich bisher grob um die Raumaufteilung gekümmert. Aber gut erkannt ist alles noch etwas zu eng. Ankleide + Hauswirtschaftsraum sollen noch größer werden.
Derzeit lt. Plan sind es ca. 185m2 - größer wollte ich eigentlich nicht bauen. ABer ich befürchte das wird nicht reichen.
Vielen Dank für die Antworten.
- Der Fitnessraum ist eine Praxis, Vorher ein kleiner Warteraum für die Patienten
- Garage ist noch nicht 100% fertig - aber du hast recht viel zu eng
- Das mit der Morgentoilette verkrafte ich - hab ich jetzt auch schon so ;-)
- Die Maße sind noch nicht 100% perfekt, hab mich bisher grob um die Raumaufteilung gekümmert. Aber gut erkannt ist alles noch etwas zu eng. Ankleide + Hauswirtschaftsraum sollen noch größer werden.
Derzeit lt. Plan sind es ca. 185m2 - größer wollte ich eigentlich nicht bauen. ABer ich befürchte das wird nicht reichen.
applic schrieb:
Vorher ein kleiner Warteraum für die PatientenWo stellt man denn da einen Hocker hin?
Mag die Breite des Flures 120cm sein, mit geöffneten Türen wäre Slalom angesagt.
Die mangelnde Breite ist auch im Eingang zur Wohnung vorhanden
applic schrieb:
- Das mit der Morgentoilette verkrafte ich - hab ich jetzt auch schon so ;-)Ist diese unbefriedigende Situation nicht Grund, in einem neuen eigenen Haus es besser hinzubekommen???
applic schrieb:
ABer ich befürchte das wird nicht reichen.Das befürchte ich auch 🙂
applic schrieb:
- Der Fitnessraum ist eine Praxis, Vorher ein kleiner Warteraum für die PatientenEine Praxis ohne Rezeption, und man wartet im Stehen zwischen Garderobenständer und Badezimmertür (???)
Was für eine Praxis denn überhaupt ?
https://www.instagram.com/11antgmxde/
https://www.linkedin.com/company/bauen-jetzt/
Ähnliche Themen