Wir wollen ein Einfamilienhaus mit ca. 125qm bauen. Unser Wunsch ist es ein kleines Arbeitszimmer im OG zu integrieren.
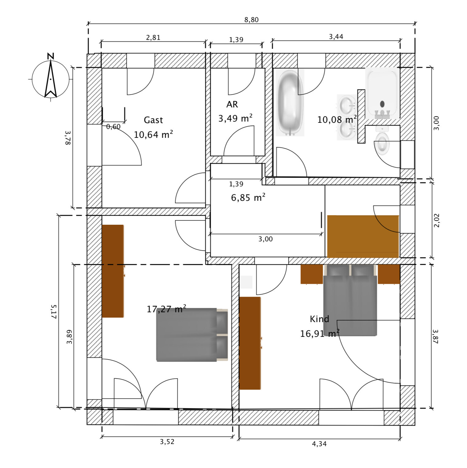
Die Treppe wollen wir ungern direkt neben der Haustür um nicht immer durch den „Dreckbereich“ laufen zu müssen. Vermutlich würde aber eine Treppe in L-Form (dann neben der Haustür) Platz sparen. Der Hauswirtschaftsraum könnte somit entsprechend größer ausfallen (Haustür dann etwas verschieben).
Die Anordnung der Küchenschränke ist noch nicht final. Ein Platz für den Kamin fehlt ebenfalls noch (Problem ist hier den Schornstein im OG unterzubringen).
Bebauungsplan/Einschränkungen
Größe des Grundstücks 1000qm
Hang ca. 1 - 1,5m Gefälle von Nord nach Süd über 50m.
Grundflächenzahl / Geschossflächenzahl unbekannt da §34
Baufenster, Baulinie und -grenze Baufenster 5m von der Straße im Norden, ca. 20 x 20 m, im Westen ist zum Nachbarbaufenster 15m Abstand à d.h der Mindestabstand zum westlichen Nachbarn beträgt 15m, siehe Lageplan.
Randbebauung -
Anzahl Stellplatz -
Geschossigkeit I-II
Dachform / Stilrichtung / Ausrichtung keine Einschränkung
Maximale Höhen/Begrenzungen -
Anforderungen der Bauherren
Stilrichtung, Dachform, Gebäudetyp Stadtvilla, Walmdach oder Zeltdach
Keller, Geschosse ohne Keller, 2 Geschosse
Anzahl der Personen, Alter 3 (33, 33, 3)
Raumbedarf im
EG: Wohn-/Esszimmer, Küche, Hauswirtschaftsraum, WC
OG: Bad, Schlafen, Kind, Arbeiten, Gast/Hobby
Büro: Familiennutzung oder Homeoffice? Homeoffice
Schlafgäste pro Jahr 3-4
offene oder geschlossene Architektur
konservativ oder moderne Bauweise klassisch
offene Küche, Kochinsel halb offen, ggf. Kochinsel
Anzahl Essplätze 4-6
Kamin ja
Musik/Stereowand -
Balkon, Dachterrasse -
Garage, Carport: Carport
Nutzgarten, Treibhaus -
Hausentwurf
Von wem stammt die Planung: > Do-it-Yourself
Was gefällt besonders? Warum?
Was gefällt nicht? Warum? Ansicht Nord und West sieht etwas komisch, evtl. sollte dort noch ein zusätzliches Fenster integriert werden.
Persönliches Preislimit fürs Haus, inkl Ausstattung: ca. 250T€
favorisierte Heiztechnik: Gas oder Luft-Wasser-Wärmepumpe
Wenn Ihr verzichten müsst, auf welche Details/Ausbauten
-könnt Ihr verzichten:
-könnt Ihr nicht verzichten:
Warum ist der Entwurf so geworden, wie er jetzt ist? ZB
Als Vorlage dienten uns verschiedene Grundrisse von Fertighausanbietern/GU aus dem Netz.
Was ist die wichtigste/grundlegende Frage zum Grundriss in 130 Zeichen zusammengefasst?
Folgende Fragen:
1. Ist der Grundriss problemlos umsetzbar und praktisch in der Nutzung?
2. Lieber eine Treppe in L-Form um Platz zu sparen?
3. Müssen tragende Wände im OG und EG aufeinander stehen?
4. Wie am besten den Carport auf dem Grundstück anordnen, im Nord-Osten oder im Nord-Westen?
5. Wie könnte der Schornstein für den Kamin im OG integriert werden ohne zu viel Platz wegzunehmen?
Grundriss:


Lage:
Anordnung Carport:
Die Treppe wollen wir ungern direkt neben der Haustür um nicht immer durch den „Dreckbereich“ laufen zu müssen. Vermutlich würde aber eine Treppe in L-Form (dann neben der Haustür) Platz sparen. Der Hauswirtschaftsraum könnte somit entsprechend größer ausfallen (Haustür dann etwas verschieben).
Die Anordnung der Küchenschränke ist noch nicht final. Ein Platz für den Kamin fehlt ebenfalls noch (Problem ist hier den Schornstein im OG unterzubringen).
Bebauungsplan/Einschränkungen
Größe des Grundstücks 1000qm
Hang ca. 1 - 1,5m Gefälle von Nord nach Süd über 50m.
Grundflächenzahl / Geschossflächenzahl unbekannt da §34
Baufenster, Baulinie und -grenze Baufenster 5m von der Straße im Norden, ca. 20 x 20 m, im Westen ist zum Nachbarbaufenster 15m Abstand à d.h der Mindestabstand zum westlichen Nachbarn beträgt 15m, siehe Lageplan.
Randbebauung -
Anzahl Stellplatz -
Geschossigkeit I-II
Dachform / Stilrichtung / Ausrichtung keine Einschränkung
Maximale Höhen/Begrenzungen -
Anforderungen der Bauherren
Stilrichtung, Dachform, Gebäudetyp Stadtvilla, Walmdach oder Zeltdach
Keller, Geschosse ohne Keller, 2 Geschosse
Anzahl der Personen, Alter 3 (33, 33, 3)
Raumbedarf im
EG: Wohn-/Esszimmer, Küche, Hauswirtschaftsraum, WC
OG: Bad, Schlafen, Kind, Arbeiten, Gast/Hobby
Büro: Familiennutzung oder Homeoffice? Homeoffice
Schlafgäste pro Jahr 3-4
offene oder geschlossene Architektur
konservativ oder moderne Bauweise klassisch
offene Küche, Kochinsel halb offen, ggf. Kochinsel
Anzahl Essplätze 4-6
Kamin ja
Musik/Stereowand -
Balkon, Dachterrasse -
Garage, Carport: Carport
Nutzgarten, Treibhaus -
Hausentwurf
Von wem stammt die Planung: > Do-it-Yourself
Was gefällt besonders? Warum?
Was gefällt nicht? Warum? Ansicht Nord und West sieht etwas komisch, evtl. sollte dort noch ein zusätzliches Fenster integriert werden.
Persönliches Preislimit fürs Haus, inkl Ausstattung: ca. 250T€
favorisierte Heiztechnik: Gas oder Luft-Wasser-Wärmepumpe
Wenn Ihr verzichten müsst, auf welche Details/Ausbauten
-könnt Ihr verzichten:
-könnt Ihr nicht verzichten:
Warum ist der Entwurf so geworden, wie er jetzt ist? ZB
Als Vorlage dienten uns verschiedene Grundrisse von Fertighausanbietern/GU aus dem Netz.
Was ist die wichtigste/grundlegende Frage zum Grundriss in 130 Zeichen zusammengefasst?
Folgende Fragen:
1. Ist der Grundriss problemlos umsetzbar und praktisch in der Nutzung?
2. Lieber eine Treppe in L-Form um Platz zu sparen?
3. Müssen tragende Wände im OG und EG aufeinander stehen?
4. Wie am besten den Carport auf dem Grundstück anordnen, im Nord-Osten oder im Nord-Westen?
5. Wie könnte der Schornstein für den Kamin im OG integriert werden ohne zu viel Platz wegzunehmen?
Grundriss:
Lage:
Anordnung Carport:
kaho674 schrieb:
Vom TE hatte ich diesen Wunsch nicht mitbekommen.Stefan890 schrieb:
Uns gefallen diese ja auch. Das Haus wirkt hebt sich damit von den klassischen Stadtvillen ab..
Stefan890 schrieb:
Es soll also uns gefallen, ob das Haus daneben noch mal steht spielt keine Rolle.Ja, dann ist der Wienebenan-Erker genau richtig https://www.instagram.com/11antgmxde/
https://www.linkedin.com/company/bauen-jetzt/
S
Stefan89003.08.18 11:2711ant schrieb:
.
Ja, dann ist der Wienebenan-Erker genau richtig Gemeint war lediglich es darf sich abheben, müssen tut es das aber nicht Und da ein Standardhaus sicher preiswerter ist als ein einmaliges, wird es bei uns wohl eher 1.
Ehrlich gesagt, sehe ich bei diesem Budget überhaupt kein Stadthaus mit den Außenmaßen 9 x 9,6m. Bei 250 Riesen ist vielleicht noch ein Satteldach möglich - aber selbst da wird es schon knapp. Wenn es 2-geschossig werden soll mit 125m², muss ein Zimmer oben rausfliegen und die Außenmaße runter.
kaho674 schrieb:
Bei 250 Riesen ist vielleicht noch ein Satteldach möglich - aber selbst da wird es schon knapp.Na ja, das eher symbolisch geneigte Zeltdach als Binderdach kostet auch nicht die Welt, sonst wäre es seltener.kaho674 schrieb:
Wenn es 2-geschossig werden soll mit 125m², muss ein Zimmer oben rausfliegen und die Außenmaße runter.Wie gesagt, für 125 mit zwei Erkern und einem Eckfenster bekommt man auch 140 (mit normaler Dusche, ohne T, und natürlich ohne Klinker).https://www.instagram.com/11antgmxde/
https://www.linkedin.com/company/bauen-jetzt/
11ant schrieb:
Na ja, das eher symbolisch geneigte Zeltdach als Binderdach kostet auch nicht die Welt, sonst wäre es seltener.Träum weiter. Wir haben beides mit ähnlicher Flächengröße. Das Satteldach kam an die 17 Riesen - Walmdach mit Binder 32 Glocken. Dazu kommen beim 2-Geschosser noch die Steinchen der höheren Wände, welche auch alle gekauft, gemauert, verputzt usw. werden wollen.S
Stefan89008.11.18 22:43Ähnliche Themen