ᐅ Grundrissplanung Einfamilienhaus 180m2 Süd-Zufahrt - Chaos-Grundrisse
Erstellt am: 16.02.24 23:10
C
Cubus3f
Bebauungsplan/Einschränkungen
Größe des Grundstücks: 450m2
Hang: Nein
Grundflächenzahl: 0,4
Geschossflächenzahl: 0,8
Baufenster, Baulinie und -grenze: Grundstück ist 18,36 x 24,49; Baufenster jeweils 3 Meter zu Nord, Ost und West und 5 Meter in Richtung Süden (Straße)
Randbebauung: ja
Anzahl Stellplatz: 2
Geschossigkeit: 2
Dachform: Flachdach
Stilrichtung: modern, offen
Ausrichtung: Süd/West
Maximale Höhen/Begrenzungen
weitere Vorgaben: Moderat befahrene Straße im Süden, im Norden steht ein Mehrfamilienhaus
Anforderungen der Bauherren
Stilrichtung, Dachform, Gebäudetyp: modern, offen, Flachdach
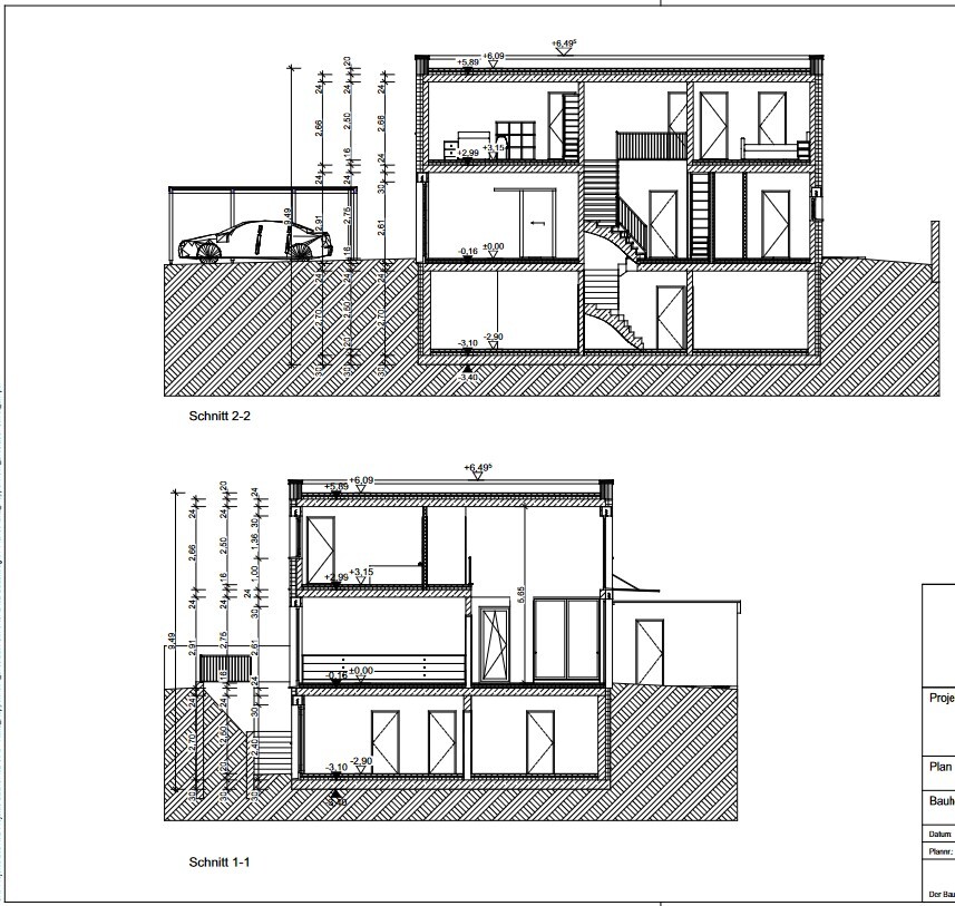
Keller, Geschosse: Kein Keller, 2 Vollgeschosse
Anzahl der Personen, Alter: 2 mitdreizige Erwachsene, 2 Kinder (6+1)
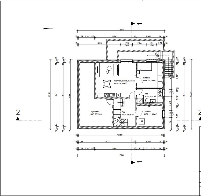
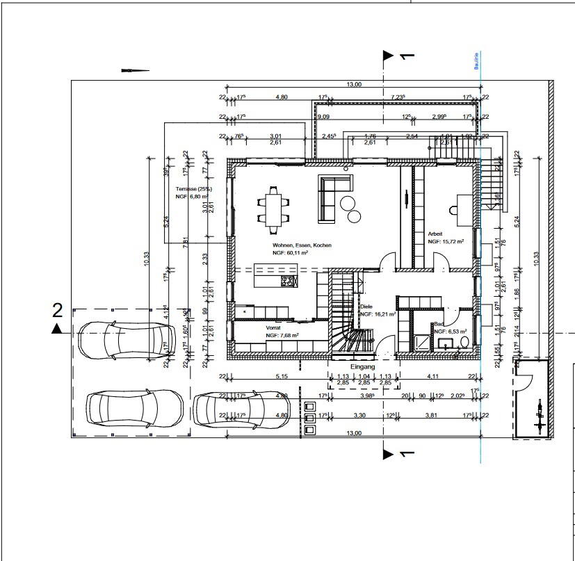
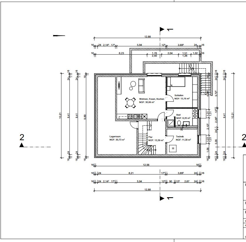
Raumbedarf im EG, OG: EG 100m², OG 80m²
Büro: Familiennutzung oder Homeoffice? Homeoffice
Schlafgäste pro Jahr: 2 Personen, 3x im Jahr
offene oder geschlossene Architektur: offen
konservativ oder moderne Bauweise: modern
offene Küche, Kochinsel
Anzahl Essplätze: 8
Kamin:nein
Musik/Stereowand:nein
Balkon, Dachterrasse: nein
Garage, Carport: beides Ja
Nutzgarten, Treibhaus: nein
weitere Wünsche/Besonderheiten/Tagesablauf, gern auch Begründungen, warum dieses oder das nicht sein soll:
Wohn-Essbereich so viel wie möglich im Süden
Küche mit freistehender Kochinsel mit Speise teiloffen, ums Eck
Hausentwurf
Von wem stammt die Planung:
-Planer eines Bauunternehmens
-Architekt
Was gefällt besonders? Warum?Werkstatt hinten, Fahrradständer, Größe der Kinderzimmer, Elternbereich ist im Norden, Treppe Variante 1,
Was gefällt nicht? Warum? sehr knapper Garten vor allem von Terrasse bis Nachbarhaus
Variante 1:
EG:
Variante 2:
EG:
Preisschätzung laut Architekt/Planer: 3.200 €/m2
Persönliches Preislimit fürs Haus, inkl. Ausstattung: 700.000
favorisierte Heiztechnik: Wärmepumpe
Wenn Ihr verzichten müsst, auf welche Details/Ausbauten
-könnt Ihr verzichten: offene Treppe
-könnt Ihr nicht verzichten: Speise, Küche mit Kochinsel, Hauswirtschaftsraum im OG, Kinderbad, große Ankleide
Warum ist der Entwurf so geworden, wie er jetzt ist? ZB
Standardentwurf vom Planer? Architekt hat nach Gespräch Variante 1 & 2 entworfen
Entsprechende/Welche Wünsche wurden vom Architekten umgesetzt?
Ein Gemisch aus vielen Beispielen aus div. Magazinen...
Was macht ihn in Euren Augen besonders gut oder schlecht?
Hättet ihr Vorschläge, wie wir den Wohn/Ess/Kochbereich planen sollten, um eine L-Variante zu realisieren. Dabei sollte Platz für eine Kochinsel (2,35m x 1,1m) in der Küche sein. Die Treppen sollen mittig im Haus platziert werden, um die Räume im OG besser aufteilen zu können.
Gibt es sonst noch Verbesserungsvorschläge?
Vielen lieben Dank
Cubus3f



Größe des Grundstücks: 450m2
Hang: Nein
Grundflächenzahl: 0,4
Geschossflächenzahl: 0,8
Baufenster, Baulinie und -grenze: Grundstück ist 18,36 x 24,49; Baufenster jeweils 3 Meter zu Nord, Ost und West und 5 Meter in Richtung Süden (Straße)
Randbebauung: ja
Anzahl Stellplatz: 2
Geschossigkeit: 2
Dachform: Flachdach
Stilrichtung: modern, offen
Ausrichtung: Süd/West
Maximale Höhen/Begrenzungen
weitere Vorgaben: Moderat befahrene Straße im Süden, im Norden steht ein Mehrfamilienhaus
Anforderungen der Bauherren
Stilrichtung, Dachform, Gebäudetyp: modern, offen, Flachdach
Keller, Geschosse: Kein Keller, 2 Vollgeschosse
Anzahl der Personen, Alter: 2 mitdreizige Erwachsene, 2 Kinder (6+1)
Raumbedarf im EG, OG: EG 100m², OG 80m²
Büro: Familiennutzung oder Homeoffice? Homeoffice
Schlafgäste pro Jahr: 2 Personen, 3x im Jahr
offene oder geschlossene Architektur: offen
konservativ oder moderne Bauweise: modern
offene Küche, Kochinsel
Anzahl Essplätze: 8
Kamin:nein
Musik/Stereowand:nein
Balkon, Dachterrasse: nein
Garage, Carport: beides Ja
Nutzgarten, Treibhaus: nein
weitere Wünsche/Besonderheiten/Tagesablauf, gern auch Begründungen, warum dieses oder das nicht sein soll:
Wohn-Essbereich so viel wie möglich im Süden
Küche mit freistehender Kochinsel mit Speise teiloffen, ums Eck
Hausentwurf
Von wem stammt die Planung:
-Planer eines Bauunternehmens
-Architekt
Was gefällt besonders? Warum?Werkstatt hinten, Fahrradständer, Größe der Kinderzimmer, Elternbereich ist im Norden, Treppe Variante 1,
Was gefällt nicht? Warum? sehr knapper Garten vor allem von Terrasse bis Nachbarhaus
Variante 1:
EG:
- Schlecht: Zu kleine Küche, freistehende Kochinsel von 2,35m passt nicht rein, Eingang zum Wohnbereich zu klein
- Gut: gerämige Diele, offene Podesttreppe
- Schlecht: Durchgang zum Kinderbad durch Hauswirtschaftsraum, Eingang Elternbereich durch Ankleide, Schminktisch im Elternschlafzimmer und nicht in Ankleide
- Gut: geräimiges Elternbad, Größe Hauswirtschaftsraum und Kinderbad,
Variante 2:
EG:
- Schlecht: keine Podesttreppe, kleiner Eingang bzw. Diele, Eingangsbereich in den Wohnbereich
- Gut: große Küche
- Schlecht: zu großes Hauswirtschaftsraum, Eingang Schlafbereich (man läuft gegen eine Wand), Schminktisch im Elternschlafzimmer, zu kleines Elternbad
- Gut: separater Eingang in den Hauswirtschaftsraum
Preisschätzung laut Architekt/Planer: 3.200 €/m2
Persönliches Preislimit fürs Haus, inkl. Ausstattung: 700.000
favorisierte Heiztechnik: Wärmepumpe
Wenn Ihr verzichten müsst, auf welche Details/Ausbauten
-könnt Ihr verzichten: offene Treppe
-könnt Ihr nicht verzichten: Speise, Küche mit Kochinsel, Hauswirtschaftsraum im OG, Kinderbad, große Ankleide
Warum ist der Entwurf so geworden, wie er jetzt ist? ZB
Standardentwurf vom Planer? Architekt hat nach Gespräch Variante 1 & 2 entworfen
Entsprechende/Welche Wünsche wurden vom Architekten umgesetzt?
Ein Gemisch aus vielen Beispielen aus div. Magazinen...
Was macht ihn in Euren Augen besonders gut oder schlecht?
Hättet ihr Vorschläge, wie wir den Wohn/Ess/Kochbereich planen sollten, um eine L-Variante zu realisieren. Dabei sollte Platz für eine Kochinsel (2,35m x 1,1m) in der Küche sein. Die Treppen sollen mittig im Haus platziert werden, um die Räume im OG besser aufteilen zu können.
Gibt es sonst noch Verbesserungsvorschläge?
Vielen lieben Dank
Cubus3f
K a t j a schrieb:
Also Variante 2 ist raus mangels Büro.
Zu Variante 1 - ich finde es unter den Vorgaben ganz gelungen. Mir persönlich gefällt nur der Elternbereich nicht so gut. Erstens finde ich Schiebetüren im Bad total daneben. Da muss man erst mal eine finden, die richtig dicht schließt. Außerdem schaut man vom Bett aus in die Ankleide, auf die Tür, dieses Stück Wand und rechts geht's ins Bad. Das alles wirkt so offen, unruhig und ungemütlich - da kommt man gar nicht zur Ruhe. Aber sonst - warum nicht?Ja, wir finden das Schlafzimmer tatsächlich auch als etwas unruhig, weil man das Bad und das Ankleidezimmer von dort aus betritt. Werden wir am Freitag mit dem Architekten aufnehmen. Hättest du vielleicht nochmal eine Idee, wie man das anders lösen kann?
Das ist ja geradezu maximal anders. Leider fehlt das Ursprungsgelände. Entweder das Grundstück ist so unglaublich topfeben wir dargestellt, dann ist der Keller absoluter Luxus. Oder die Ebenheit wird erst hergestellt (und möglicherweise vergessen, daß eine Baggerschaufel bewegter Erde auch eine Baggerschaufel Geldes kostet).
https://www.instagram.com/11antgmxde/
https://www.linkedin.com/company/bauen-jetzt/
https://www.instagram.com/11antgmxde/
https://www.linkedin.com/company/bauen-jetzt/
Ähnliche Themen