ᐅ Grundrissplanung Einfamilienhaus 180m2 Süd-Zufahrt - Chaos-Grundrisse
Erstellt am: 16.02.24 23:10
C
Cubus3f
Bebauungsplan/Einschränkungen
Größe des Grundstücks: 450m2
Hang: Nein
Grundflächenzahl: 0,4
Geschossflächenzahl: 0,8
Baufenster, Baulinie und -grenze: Grundstück ist 18,36 x 24,49; Baufenster jeweils 3 Meter zu Nord, Ost und West und 5 Meter in Richtung Süden (Straße)
Randbebauung: ja
Anzahl Stellplatz: 2
Geschossigkeit: 2
Dachform: Flachdach
Stilrichtung: modern, offen
Ausrichtung: Süd/West
Maximale Höhen/Begrenzungen
weitere Vorgaben: Moderat befahrene Straße im Süden, im Norden steht ein Mehrfamilienhaus
Anforderungen der Bauherren
Stilrichtung, Dachform, Gebäudetyp: modern, offen, Flachdach
Keller, Geschosse: Kein Keller, 2 Vollgeschosse
Anzahl der Personen, Alter: 2 mitdreizige Erwachsene, 2 Kinder (6+1)
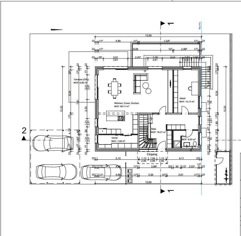
Raumbedarf im EG, OG: EG 100m², OG 80m²
Büro: Familiennutzung oder Homeoffice? Homeoffice
Schlafgäste pro Jahr: 2 Personen, 3x im Jahr
offene oder geschlossene Architektur: offen
konservativ oder moderne Bauweise: modern
offene Küche, Kochinsel
Anzahl Essplätze: 8
Kamin:nein
Musik/Stereowand:nein
Balkon, Dachterrasse: nein
Garage, Carport: beides Ja
Nutzgarten, Treibhaus: nein
weitere Wünsche/Besonderheiten/Tagesablauf, gern auch Begründungen, warum dieses oder das nicht sein soll:
Wohn-Essbereich so viel wie möglich im Süden
Küche mit freistehender Kochinsel mit Speise teiloffen, ums Eck
Hausentwurf
Von wem stammt die Planung:
-Planer eines Bauunternehmens
-Architekt
Was gefällt besonders? Warum?Werkstatt hinten, Fahrradständer, Größe der Kinderzimmer, Elternbereich ist im Norden, Treppe Variante 1,
Was gefällt nicht? Warum? sehr knapper Garten vor allem von Terrasse bis Nachbarhaus
Variante 1:
EG:
Variante 2:
EG:
Preisschätzung laut Architekt/Planer: 3.200 €/m2
Persönliches Preislimit fürs Haus, inkl. Ausstattung: 700.000
favorisierte Heiztechnik: Wärmepumpe
Wenn Ihr verzichten müsst, auf welche Details/Ausbauten
-könnt Ihr verzichten: offene Treppe
-könnt Ihr nicht verzichten: Speise, Küche mit Kochinsel, Hauswirtschaftsraum im OG, Kinderbad, große Ankleide
Warum ist der Entwurf so geworden, wie er jetzt ist? ZB
Standardentwurf vom Planer? Architekt hat nach Gespräch Variante 1 & 2 entworfen
Entsprechende/Welche Wünsche wurden vom Architekten umgesetzt?
Ein Gemisch aus vielen Beispielen aus div. Magazinen...
Was macht ihn in Euren Augen besonders gut oder schlecht?
Hättet ihr Vorschläge, wie wir den Wohn/Ess/Kochbereich planen sollten, um eine L-Variante zu realisieren. Dabei sollte Platz für eine Kochinsel (2,35m x 1,1m) in der Küche sein. Die Treppen sollen mittig im Haus platziert werden, um die Räume im OG besser aufteilen zu können.
Gibt es sonst noch Verbesserungsvorschläge?
Vielen lieben Dank
Cubus3f



Größe des Grundstücks: 450m2
Hang: Nein
Grundflächenzahl: 0,4
Geschossflächenzahl: 0,8
Baufenster, Baulinie und -grenze: Grundstück ist 18,36 x 24,49; Baufenster jeweils 3 Meter zu Nord, Ost und West und 5 Meter in Richtung Süden (Straße)
Randbebauung: ja
Anzahl Stellplatz: 2
Geschossigkeit: 2
Dachform: Flachdach
Stilrichtung: modern, offen
Ausrichtung: Süd/West
Maximale Höhen/Begrenzungen
weitere Vorgaben: Moderat befahrene Straße im Süden, im Norden steht ein Mehrfamilienhaus
Anforderungen der Bauherren
Stilrichtung, Dachform, Gebäudetyp: modern, offen, Flachdach
Keller, Geschosse: Kein Keller, 2 Vollgeschosse
Anzahl der Personen, Alter: 2 mitdreizige Erwachsene, 2 Kinder (6+1)
Raumbedarf im EG, OG: EG 100m², OG 80m²
Büro: Familiennutzung oder Homeoffice? Homeoffice
Schlafgäste pro Jahr: 2 Personen, 3x im Jahr
offene oder geschlossene Architektur: offen
konservativ oder moderne Bauweise: modern
offene Küche, Kochinsel
Anzahl Essplätze: 8
Kamin:nein
Musik/Stereowand:nein
Balkon, Dachterrasse: nein
Garage, Carport: beides Ja
Nutzgarten, Treibhaus: nein
weitere Wünsche/Besonderheiten/Tagesablauf, gern auch Begründungen, warum dieses oder das nicht sein soll:
Wohn-Essbereich so viel wie möglich im Süden
Küche mit freistehender Kochinsel mit Speise teiloffen, ums Eck
Hausentwurf
Von wem stammt die Planung:
-Planer eines Bauunternehmens
-Architekt
Was gefällt besonders? Warum?Werkstatt hinten, Fahrradständer, Größe der Kinderzimmer, Elternbereich ist im Norden, Treppe Variante 1,
Was gefällt nicht? Warum? sehr knapper Garten vor allem von Terrasse bis Nachbarhaus
Variante 1:
EG:
- Schlecht: Zu kleine Küche, freistehende Kochinsel von 2,35m passt nicht rein, Eingang zum Wohnbereich zu klein
- Gut: gerämige Diele, offene Podesttreppe
- Schlecht: Durchgang zum Kinderbad durch Hauswirtschaftsraum, Eingang Elternbereich durch Ankleide, Schminktisch im Elternschlafzimmer und nicht in Ankleide
- Gut: geräimiges Elternbad, Größe Hauswirtschaftsraum und Kinderbad,
Variante 2:
EG:
- Schlecht: keine Podesttreppe, kleiner Eingang bzw. Diele, Eingangsbereich in den Wohnbereich
- Gut: große Küche
- Schlecht: zu großes Hauswirtschaftsraum, Eingang Schlafbereich (man läuft gegen eine Wand), Schminktisch im Elternschlafzimmer, zu kleines Elternbad
- Gut: separater Eingang in den Hauswirtschaftsraum
Preisschätzung laut Architekt/Planer: 3.200 €/m2
Persönliches Preislimit fürs Haus, inkl. Ausstattung: 700.000
favorisierte Heiztechnik: Wärmepumpe
Wenn Ihr verzichten müsst, auf welche Details/Ausbauten
-könnt Ihr verzichten: offene Treppe
-könnt Ihr nicht verzichten: Speise, Küche mit Kochinsel, Hauswirtschaftsraum im OG, Kinderbad, große Ankleide
Warum ist der Entwurf so geworden, wie er jetzt ist? ZB
Standardentwurf vom Planer? Architekt hat nach Gespräch Variante 1 & 2 entworfen
Entsprechende/Welche Wünsche wurden vom Architekten umgesetzt?
Ein Gemisch aus vielen Beispielen aus div. Magazinen...
Was macht ihn in Euren Augen besonders gut oder schlecht?
Hättet ihr Vorschläge, wie wir den Wohn/Ess/Kochbereich planen sollten, um eine L-Variante zu realisieren. Dabei sollte Platz für eine Kochinsel (2,35m x 1,1m) in der Küche sein. Die Treppen sollen mittig im Haus platziert werden, um die Räume im OG besser aufteilen zu können.
Gibt es sonst noch Verbesserungsvorschläge?
Vielen lieben Dank
Cubus3f
Cubus3f schrieb:
Wie findest du den Grundriss?Den des OG gar nicht, dafür den des UG dreimal (?)https://www.instagram.com/11antgmxde/
https://www.linkedin.com/company/bauen-jetzt/
Puuh, das ist aber eine Transformation…
Ich gestehe: ich bin nicht nur kein Freund, sondern ein Feind von Zugängen zwischen PKWs. Da geht es nicht nur um den Post- und Paketboten, die sich zwischen Fahrzeugen zwängen müssen, sondern auch Bewohner selbst, wenn sie kein Auto nutzen.
Einliegerwohnung ohne Terrasse… wie alt ist denn die Schwiemu? Zahlt sie den Keller, dafür bekommt sie ein dunkles Loch im Keller ohne Terrasse, muss aber eine recht langen Hausumwanderung in Kauf nehmen? Durch das Fenster der Einliegerwohnung kommt durch die Lage zu gut wie nix an Tageslicht rein. Und das, was reinkommt, erreicht die Mitte des Raumes nicht.
Im Süden ist eine Einliegerwohnung im „Souterrain“ besser aufgehoben.
Die Idee mit dem Zugang im Westen nimmt Euch quasi den ganzen Westgarten. Euch bleibt da ja gerade mal ein Meter, um das Haus umrunden zu können.
Ihr solltet Euch Gedanken machen, wie Ihr Eure Außenanlagen begehen, nutzen, pflegen und zugänglich machen wollt. Ich sehe da keine Alltagstauglichkeit.
Ich finde auch den Technikraum recht unlogisch von der Lage: warum nimmt man denn die lange Leitung in Kauf, wenn man doch die vordere Hausecke für den TK nehmen könnte? Spontan würde ich TK sowie Einliegerwohnung nach vorne setzen. Weisst Du, was sich der Planer da gedacht hat, dass man für die Einliegerwohnung einen ewig langen Weg um das Haus rum bewältigen muss?
Ich gestehe: ich bin nicht nur kein Freund, sondern ein Feind von Zugängen zwischen PKWs. Da geht es nicht nur um den Post- und Paketboten, die sich zwischen Fahrzeugen zwängen müssen, sondern auch Bewohner selbst, wenn sie kein Auto nutzen.
Einliegerwohnung ohne Terrasse… wie alt ist denn die Schwiemu? Zahlt sie den Keller, dafür bekommt sie ein dunkles Loch im Keller ohne Terrasse, muss aber eine recht langen Hausumwanderung in Kauf nehmen? Durch das Fenster der Einliegerwohnung kommt durch die Lage zu gut wie nix an Tageslicht rein. Und das, was reinkommt, erreicht die Mitte des Raumes nicht.
Im Süden ist eine Einliegerwohnung im „Souterrain“ besser aufgehoben.
Die Idee mit dem Zugang im Westen nimmt Euch quasi den ganzen Westgarten. Euch bleibt da ja gerade mal ein Meter, um das Haus umrunden zu können.
Ihr solltet Euch Gedanken machen, wie Ihr Eure Außenanlagen begehen, nutzen, pflegen und zugänglich machen wollt. Ich sehe da keine Alltagstauglichkeit.
Ich finde auch den Technikraum recht unlogisch von der Lage: warum nimmt man denn die lange Leitung in Kauf, wenn man doch die vordere Hausecke für den TK nehmen könnte? Spontan würde ich TK sowie Einliegerwohnung nach vorne setzen. Weisst Du, was sich der Planer da gedacht hat, dass man für die Einliegerwohnung einen ewig langen Weg um das Haus rum bewältigen muss?
Das muß schon eine ziemlich böse Schwiegermutter sein, die man als Kellerkind in einer Katakombe mit Zugang über den Lichtschacht parkt. Der Architekt hat insgesamt ein Faible für Schlauchräume, wie mir scheint - jedenfalls wenig wohnliche Architektur im Sinn. Mir fehlt gerade die Zeit, den Thread herauszusuchen, aber wir hatten hier mal einen Fall, wo der TE den Planer eines Geschoßwohnungsbaues mitbenutzen mußte, weil der Bauträger neben einem oder mehreren Mehrfamilienhaus auch noch wenn ich recht erinnere ein Einzel- und ein Doppelhaus errichtete. So richtig s*xy finde ich hier nichts.
https://www.instagram.com/11antgmxde/
https://www.linkedin.com/company/bauen-jetzt/
ypg schrieb:Der Frage kann ich mich nur anschließen. Wo kommt eigentlich die lange Pause her: hattet Ihr wenig Zeit, oder hat der Planer ewig für diesen Geniestreich gebraucht ?
Ich finde auch den Technikraum recht unlogisch von der Lage: warum nimmt man denn die lange Leitung in Kauf, wenn man doch die vordere Hausecke für den TK nehmen könnte?
https://www.instagram.com/11antgmxde/
https://www.linkedin.com/company/bauen-jetzt/
Ähnliche Themen