Grundrissplanung Einfamilienhaus 150m²

4,00 Stern(e) 8 Votes
Zuletzt aktualisiert 06.10.2025
Sie befinden sich auf der Seite 7 der Diskussion zum Thema: Grundrissplanung Einfamilienhaus 150m²
>> Zum 1. Beitrag <<

C

Cico1

Wo trocknet ihr die Wäsche?

Wir planen momentan Waschmaschine und Trockner im OG Abstellraum, dieser wird auch eine Abluft der Kontrollierte-Wohnraumlüftung bekommen.

Was würdet ihr empfehlen? Wir werden natürlich auch die Anschlüsse unten im Hauswirtschaftsraum legen lassen.
 
Y

ypg

Ich würde das Ankleidefenster definitiv mit Brüstung machen, ansonsten fühlt ihr Euch beobachtet.
Dann würde ich das Schlafzimmer-Fenster verschieben- für die (bescheidene) Symmetrie in Erwägung ziehen, Bad mit Abstell zu tauschen -> keine Angst vor der Schräge, zumindest mal ausprobieren


In aller Kürze Grüsse
 
C

Cico1

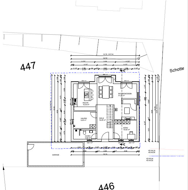
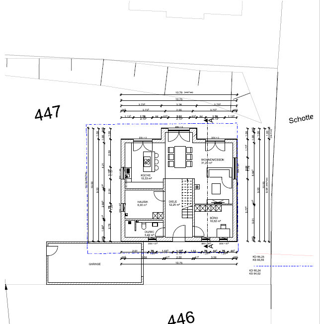
Anbei noch der Lageplan mit Nordpfeil.

Ich habe es gedreht, sodass es mit den Grundrissen passt. Eingang ist unten.

Dazu noch das Erdgeschoss inkl. Anordnung des Hauses auf dem Grundstück. Die Garage ist auf der Nordgrenze.

Lageplan mit Parzellen und Gebäuden; graue Gebäude, Parzellenumrisse und gelb markierte Ecke unten links.


Grundriss eines Hauses mit Küche, Wohn-/Essbereich, Diele, Büro, Bad und Garage.
 
C

Cico1

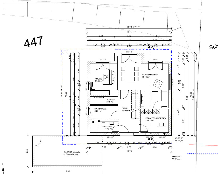
Anbei mal das Update.

Den Kamin gibt es nicht mehr.
Die Wand zwischen Hauswirtschaftsraum und Vorrat würde ich nicht ganz durchziehen.

Unter der Treppe ist eine Garderobe geplant.

Meint ihr auf das große Fenster Richtung Westen (im Wohnzimmer) kann man verzichten?

IM OG Bad würde Ich eventuell Badewanne und die Waschbecken tauschen oder was meint ihr?

Aber der Grundriss gefällt mir jetzt richtig gut. Würde nur noch paar Details anpassen, wie zum Beispiel die Badplanung.

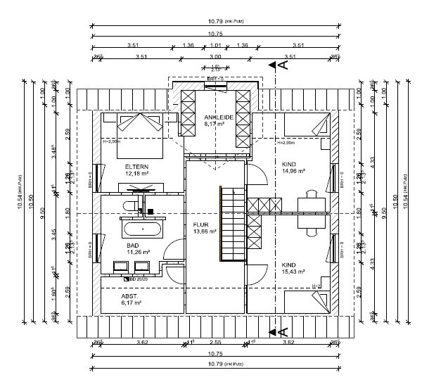
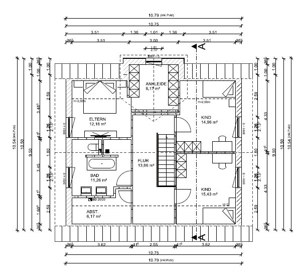
Grundriss des Obergeschosses: Flur mit Treppe, Eltern-, Kinderzimmer, Ankleide, Bad, Abstellraum.


Zweistöckiges Haus mit Garage; Nord-Ost und Süd-West Ansichten, Eingangstür und Fenster.


Grundriss eines Einfamilienhauses: Wohnen/Essen, Küche, Diele, Bad, Vorrat, Garage.


Nord-West- und Süd-Ost-Ansicht eines zweistöckigen Hauses mit Dach, Fenstern, Kamin und Garage.
 
T

Tanita

Hallo Cico,

meist du nicht, dass die Speis viel zu schmal ist? 1m Breite ist echt nicht viel!
Stell dir dass mal nach, wenn du z.B. einen TK reinsetzen möchtest, würde ich sagen, der geht nicht einmal ganz auf...

Lass die Wand zum Hauswirtschaftsraum weg und stelle einfach eine Reihe Regale in die Mitte. Die können dann auch ordentlich tief sein, du kommst ja von 2 Seiten ran.
Ansonsten finde ich den Grundriss ganz gut.
Gruß
Tanita
 
C

Curly

die Küche ist 4m breit und wenn du oben und unten an der Kochinsel einen Durchgang von 1m planst, dann kann die Kochinsel nur ungefähr 1,40m breit werden.

LG
Sabine
 
Zuletzt aktualisiert 06.10.2025
Im Forum Grundrissplanung / Grundstücksplanung gibt es 2510 Themen mit insgesamt 87168 Beiträgen


Ähnliche Themen zu Grundrissplanung Einfamilienhaus 150m²
Nr.ErgebnisBeiträge
1Bungalow 135qm: Grundriss + Fenster - Seite 7104
2Hauswirtschaftsraum Raum ohne Fenster - Lüftungsanlage ausreichend? 26
3Kleinstmögliches Fenster für Lüftung Hauswirtschaftsraum 22
4Grundriss Einfamilienhaus geplant, Fenster gefallen uns 43
5Grundriss Neubau Einfamilienhaus: Fenster/Türen/Innenwände Größe/Anordnung ok? 20
6Eure Meinung zum Grundriss für das EG 28
7Meinungen zu Grundriss "Haus am Hang" erbeten - Seite 231
8Grundriss Einfamilienhaus. Eure Anregungen sind gefragt. - Seite 317
9Grundriss Einfamilienhaus mit Wohnkeller am Hang ? - Seite 538
10Eure Meinungen zu unserem Grundriss und Angebot 22
11Unser Grundriss-Entwurf, eure Meinungen 20
12Findet ihr den Grundriss unserer Stadtvilla so Ok? 46
13Grundriss. Meinungen, Ideen und konstruktive Kritiken. - Seite 424
14Grundriss mit Garage auf Grundstück realisierbar? - Seite 429
15Standard-Grundriss für Stadtvilla mit 130qm - Seite 425
16180 qm Stadtvilla - Bitte um Kritik zum Grundriss - Seite 639
17Meinungen und Anregungen zu unserem Einfamilienhaus-Grundriss 20
18Grundriss 160m² Bungalow - Seite 546
19Meinungen zum Grundriss Einfamilienhaus Münsterland 32
20Grundriss gesucht für Hanghaus - Seite 212

Oben