Grundrissplanung eines Zweifamilienhauses

4,60 Stern(e) 9 Votes
Zuletzt aktualisiert 23.11.2025
Sie befinden sich auf der Seite 5 der Diskussion zum Thema: Grundrissplanung eines Zweifamilienhauses
>> Zum 1. Beitrag <<

R

Robert84

Danke erstmal für die Tipps zum Grundriss. Wir werden den kompletten Grundriss neu gestalten und ein Gäste-WC berücksichtigen.
Haltet ihr ein 2 Kinderzimmer für essenziell wichtig beim vermieten? Ich überlege dieses weg zu lassen und dafür das Haus kleiner zu bauen...so ca. 10x12 Meter anstatt 11x13. Spart Baukosten und ich brauche es nicht, da ich alleine lebe und keine Kinder oder Familie in Planung sind.
 
11ant

11ant

Danke erstmal für die Tipps zum Grundriss. Wir werden den kompletten Grundriss neu gestalten und ein Gäste-WC berücksichtigen.
Schade, daß Du sie wohl nur oberflächlich gelesen hast, wenn die Dimension der Frage "make or buy" bei Dir nicht angekommen ist.
Haltet ihr ein 2 Kinderzimmer für essenziell wichtig beim vermieten? Ich überlege dieses weg zu lassen und dafür das Haus kleiner zu bauen...so ca. 10x12 Meter anstatt 11x13. Spart Baukosten und ich brauche es nicht, da ich alleine lebe und keine Kinder oder Familie in Planung sind.
Auch dazu hast Du hier bereits Antworten bekommen. Die meisten Baukosten spart es, die Mieter-Wohneinheit ganz wegzulassen. Andernfalls machst Du Dir am besten gründliche Gedanken über Deinen Wunschmieter-Avatar, aber auch das wurde bereits gesagt.
 
R

Robert84

Guten Tag,

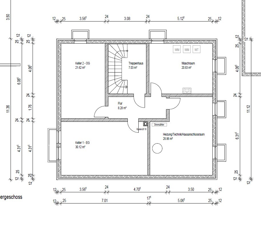
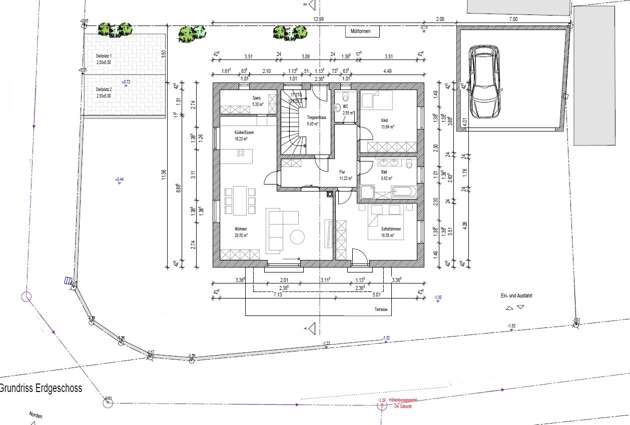
hier mal der aktuelle Entwurf des Zweifamilienhauses auf dem Grundstück angepasst. Damit man es sich besser vorstellen kann.
Wir haben den Eingang auf die Nordseite verlegt, was meiner Meinung nach jetzt besser passt. Ein Gäste-WC hat Einzug gehalten und das 2. Kinderzimmer ist weggefallen, damit die anderen Räume großzügiger gestaltet werden können.

Ich bin mit dem Flur noch nicht 100% zufrieden. Vielleicht könnt ihr mir ja sagen, wie man das eventuell besser gestalten kann.

Meinungen, Kritik, Verbesserungsvorschläge gerne erwünscht.

Gruß
Grundriss eines Hauses: Keller 1 EG, Keller 2-OG, Flur, Treppenhaus, Waschraum, Heiz-/Technikraum.

Grundriss Erdgeschoss eines Hauses mit Wohnzimmer, Küche, Bad und Terrasse
 
E

Enrico02

Es tut mir leid es so hart zu sagen, aber man kommt hier so nicht weiter.
Du möchtest Hilfe, lieferst aber nach der Zeit trotz mehrfacher Nachfrage immer noch nicht einen ausgefüllten Fragebogen.

Und im neuen Grundriss sind viele der im ersten Grundriss angesprochenen Fehler immer noch verhandeln. Am langen dunklen Flur, dem großen Schlafzimmer ohne brauchbare Stellfläche für einen Schrank etc. hat sich nichts geändert.
 
Zuletzt aktualisiert 23.11.2025
Im Forum Grundrissplanung / Grundstücksplanung gibt es 2535 Themen mit insgesamt 87994 Beiträgen


Ähnliche Themen zu Grundrissplanung eines Zweifamilienhauses
Nr.ErgebnisBeiträge
1Planung Gäste-WC im Neubau - Wie groß muss es sein? (DIN?) - Seite 14107
2alternativer Grundriss Bungalow 140m² 84
3Lage Gäste-WC - Eingangsbereich? - Seite 328
4Meinungen zu Einfamilienhaus Grundriss - Seite 224
5Grundriss Einfamilienhaus mit Doppelgarage 15
6Grundriss für 150qm Einfamilienhaus mit Wohnzimmer nach Norden - Seite 321
7Grundriss Einfamilienhaus 170qm Tipps und meinungen 21
8Grundriss Stadtvilla 160qm - Bitte um Tipps! - Seite 4284
9Grundriss Stadtvilla mit Walmdach ca. 170 qm 61
10Grundriss Bungalow 160-170qm mit Keller - Seite 14175
11Grundriss Familienhaus in Randlage mit freien Sicht - Seite 22153
12Grundriss 9x11.30m, 4 Personen, 2 Büros - Seite 427
13Grundriss Einfamilienhaus, 200m2, 2 Vollgeschosse, Garage, ohne Keller 39
14Grundriss Einfamilienhaus in Hanglage mit Keller - Seite 651
15Grundriss 2-vollgeschossiges Einfamilienhaus ca. 160 m² Wohnfläche 22
16WC-Fenster Gäste-WC neben der Eingangstür - inzwischen nogo? 44
17Gäste-WC: Decke abhängen oder Rohr verkleiden? - Seite 216
18Lichtanschluss falsche Stelle Gäste-WC 29
19Beispiel Kaltwasserhahn für Gäste-WC 12
20Gäste-WC (1,65qm) und Bad (4,88qm) Sanierung 21

Oben