Grundrissplanung eines Zweifamilienhauses

4,60 Stern(e) 9 Votes
Zuletzt aktualisiert 25.11.2025
Sie befinden sich auf der Seite 4 der Diskussion zum Thema: Grundrissplanung eines Zweifamilienhauses
>> Zum 1. Beitrag <<

RomeoZwo

RomeoZwo

Doppelhaus ist zu teuer ca. 1 Mio und zu groß.
240m2 + Keller kosten für 240m2 + Keller. Ob das 2 horizontal oder vertikal gestapelte Wohnungen sind, ist dem Preis erstmal egal. Doppelhaus wird teurer, wenn man 2x völlig getrennte Technik will, dass muss hier ja aber nicht sein. Ich denke da auch nicht an ein klassisches gespiegeltes DH, sondern eins mit 2 individuellen "Hälften" die sich durchaus auch überlappen dürfen.
Z.B. die Wohnung für die Eltern fast vollständig im EG und nur z.B. ein Zimmer für Besuch oder den Pflegedienst im OG. Die Hauptwohnung mit "nur" Esszimmer und Küche im EG und die Wohnräume im OG.

Für die Größe halte ich in Augsburg übrigens 800k für völlig illusorisch.
240m2 * 3500€/m2 sind schon 840k + Keller 100k + Baunebenkosten.
Ja, das wird bei 1 Mio. landen. So oder so.
 
Y

ypg

Genau, so hatte ich mir meine Wohnung ja auch geplant.
Ich weiß jetzt nicht, ob Du im Mehrfamilienhaus wohnst oder im OG eines Zweifamilienhaus, aber letztendlich gilt: wenn man in einem Mehrfamilienhaus, wo meist links und rechts noch Nachbarn wohnen und keine Fenster möglich sind, dennoch fast überall Tageslicht hinbekommt, dann sollte es wohl auch auf einer Grundfläche möglich sein, wo man an allen vier Seiten Außenwände hat. Man verzichtet halt auf ungemütliche zu lange Flure, also nutzlose Qm und verbindet Wohnen und trennt die Privatzone.
 
Y

ypg

Ach, man braucht doch nur den ein oder anderen Häuslebauer googeln. Wir leben schließlich im Zeitalter des Internets.
Ich finde innerhalb von 5 Minuten zig Grundrissideen, wahrlich alle wertvoller ein der im Eingangsbeitrag. Kann überhaupt nicht verstehen, wie man das nicht selbst erkennt.
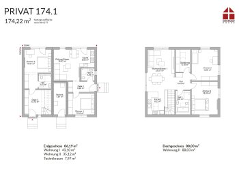
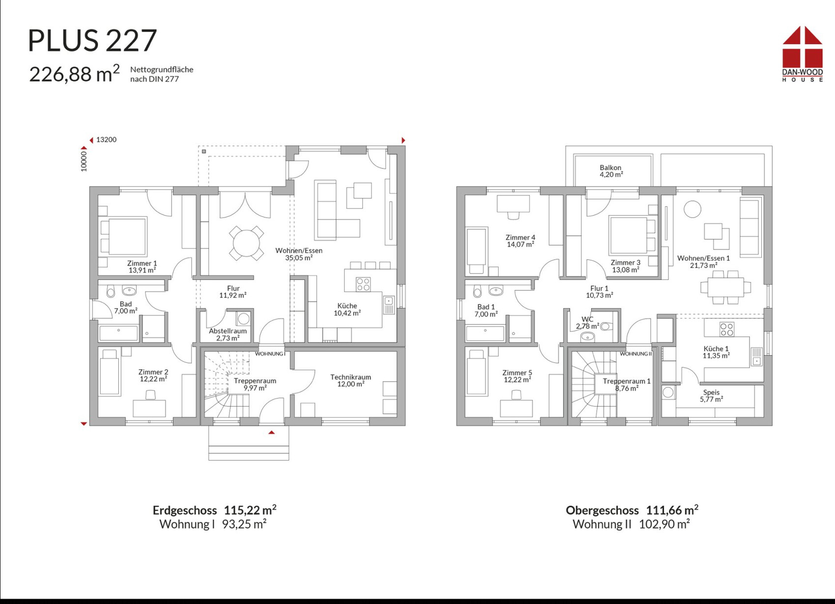
Zweistöckiger Grundriss eines Hauses mit Erd- und Dachgeschoss, Wohnraum und Küche.

Grundriss eines Hauses mit Erdgeschoss und Dachgeschoss, Zimmer, Küche und Bad.

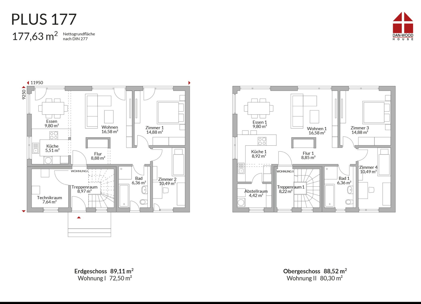
Zweistöckiger Grundriss eines Hauses mit zwei Wohnungen, Wohnzimmer, Küche und Treppenhaus.

Zweistöckiger Hausgrundriss: Erdgeschoss und Obergeschoss mit Wohnen, Essen, Küche und Zimmern.
 
11ant

11ant

in plane ein Zweifamilienhaus in der Nähe von Augsburg. Es sollen 2 Wohnungen mit jeweils ca. 100 qm übereinander entstehen.
Ich habe jetzt eine grobe Planung von meiner Bauzeichnerin zugeschickt bekommen. Was haltet ihr von der Raumaufteilung? Das Grundstück hat 600 qm und ist länger als breit. Es soll mit Doppelgarage und Keller gebaut werden.
Ich schließe mich dem allgemeinen Ruf nach mehr Details / ausgefülltem Fragebogen an (und ebenso der Bewertung des Entwurfes als Nullachtvierzehnkommaneun). Im übrigen fühle ich mich hier vom Murmeltier gegrüßt: https://www.hausbau-forum.de/threads/grundriss-haus-auf-2-etagen-mit-leichter-hanglage.46014/ bzw. https://www.hausbau-forum.de/threads/einfamilienhaus-ausrichtung-garten-und-terrasse-sueden-oder-westen.47167/
 
Zuletzt aktualisiert 25.11.2025
Im Forum Grundrissplanung / Grundstücksplanung gibt es 2536 Themen mit insgesamt 88016 Beiträgen


Ähnliche Themen zu Grundrissplanung eines Zweifamilienhauses
Nr.ErgebnisBeiträge
1Sinnvolles Wohnkonzept für Keller-Einliegerwohnung - Seite 317
2Mehrfamilienhaus: Platzierung der Wohneinheiten, Bäume etc. - Seite 235
3Tiefgarage Mehrfamilienhaus unter freistehenden Einfamilienhaus - Seite 213
4Mehrfamilienhaus - Bausparvertrag & Vorfinanzierung sinnvoll? - Seite 324
5Projekt Mehrfamilienhaus Fragen zu Kosten und Vorgehensweise 24
6Grundrissentwurf Stadtvilla mit Keller Verbesserungsvorschlag? - Seite 477
7Einfamilienhaus (2Etagen+Wohn-Keller+ausgebautes Dach) etwa 200qm -Änderungen - Seite 15162
8Mehrfamilienhaus mit 6 WE - Aktueller Stand und weiteres Vorgehen 13
9Kalkulation Einfamilienhaus mit 175m² Wohnfläche, Keller und Doppelgarage - Seite 379
10Planung Mehrfamilienhaus - Kosten optimieren 73
11Bauverlauf: Doppelhaus mit WU-Keller und ausgebauten Spitzboden - Seite 101813
12Hausbauplanung Massivhaus oder Fertighaus. Mit oder ohne Keller? - Seite 380
13Finanzierung machbar in aktueller Situation ? Einfamilienhaus 140 m² inkl. Keller - Seite 223
14Wohnung verkaufen Kredit auf Haus übernehmen machbar? 16
15Grundriss Neubau Mehrfamilienhaus mit 3 Wohneinheiten, Wohnfläche ca. 350m² 72
16Doppelhaus in HH mit GU auf eigenem Grund (zwei + vollwertiges Dach-Geschoss, kein Keller) 18
17Mehrfamilienhaus als Kapitalanlage in überalterter Stadt - Seite 1170
18Extrem hoher Pelletsverbauch (200kg in 3 Tagen) bei Kfw70 Mehrfamilienhaus! - Seite 437
19Wohnung aus Zweifamilienhaus gleich nach Fertigstellung verkaufen - Seite 534
20Grundriss für 2 Doppelhaushälfte - breit und schmal bzw. quadratisch 25

Oben