Hallo,
Ich bzw. wir sind neu hier und würden euch gern unseren plan zeigen. Wir sind gerade dabei den finalen Grundriss auszuarbeiten.
Bebauungsplan/Einschränkungen
Größe des Grundstücks: 650qm
Hang: Nein
Grundflächenzahl 0,30
Geschossflächenzahl 0,70
Baufenster,
Baulinie und -grenze
Randbebauung
Anzahl Stellplatz 2
Geschossigkeit. 2
Dachform alles offen
Stilrichtung Modern
Ausrichtung Westen (Südwest)
Maximale Höhen/Begrenzungen
weitere Vorgaben
Anforderungen der Bauherren
Stilrichtung, Dachform, Gebäudetyp: Walmdach
Keller, Geschosse: kein Keller, 2 Vollgeschosse
Anzahl der Personen, Alter: noch 2, 1 unterwegs, 3 geplant
Raumbedarf im EG, OG: wir wollen unbedingt, alle Schlafzimmer im OG haben
Büro: Familiennutzung oder Homeoffice? nein
Schlafgäste pro Jahr ?
offene oder geschlossene Architektur: EG offen
konservativ oder moderne Bauweise egal
offene Küche, Kochinsel: Ja
Anzahl Essplätze: 8-14 (große Familie)
Kamin: Ja
Musik/Stereowand: Jain
Balkon, Dachterrasse: Nein
Garage, Carport: Ja
Ortsangabe:
- Deutschland
- Bayern
- Burgkrichen an der Alz
Eigene Wünsche
- kein Keller,
- Gerade Treppe
- alle Schlafzimmer oben (3 Kinderzimmer müssen sein)
- Wäscheraum im OG
- Schlafen mit Ankleide
Ich würde gern, eure Meinungen hören, pro und contra. Da ich finde 3 Kinderzimmer + Schlafen mit Ankleide in eine Etage zu bringen schwierig ist, bin ich gespannt was ihr da zu sagen wird.
Schönen Tag
Roki & Concetta




Ich bzw. wir sind neu hier und würden euch gern unseren plan zeigen. Wir sind gerade dabei den finalen Grundriss auszuarbeiten.
Bebauungsplan/Einschränkungen
Größe des Grundstücks: 650qm
Hang: Nein
Grundflächenzahl 0,30
Geschossflächenzahl 0,70
Baufenster,
Baulinie und -grenze
Randbebauung
Anzahl Stellplatz 2
Geschossigkeit. 2
Dachform alles offen
Stilrichtung Modern
Ausrichtung Westen (Südwest)
Maximale Höhen/Begrenzungen
weitere Vorgaben
Anforderungen der Bauherren
Stilrichtung, Dachform, Gebäudetyp: Walmdach
Keller, Geschosse: kein Keller, 2 Vollgeschosse
Anzahl der Personen, Alter: noch 2, 1 unterwegs, 3 geplant
Raumbedarf im EG, OG: wir wollen unbedingt, alle Schlafzimmer im OG haben
Büro: Familiennutzung oder Homeoffice? nein
Schlafgäste pro Jahr ?
offene oder geschlossene Architektur: EG offen
konservativ oder moderne Bauweise egal
offene Küche, Kochinsel: Ja
Anzahl Essplätze: 8-14 (große Familie)
Kamin: Ja
Musik/Stereowand: Jain
Balkon, Dachterrasse: Nein
Garage, Carport: Ja
Ortsangabe:
- Deutschland
- Bayern
- Burgkrichen an der Alz
Eigene Wünsche
- kein Keller,
- Gerade Treppe
- alle Schlafzimmer oben (3 Kinderzimmer müssen sein)
- Wäscheraum im OG
- Schlafen mit Ankleide
Ich würde gern, eure Meinungen hören, pro und contra. Da ich finde 3 Kinderzimmer + Schlafen mit Ankleide in eine Etage zu bringen schwierig ist, bin ich gespannt was ihr da zu sagen wird.
Schönen Tag
Roki & Concetta
Bitte Lageplan nachreichen
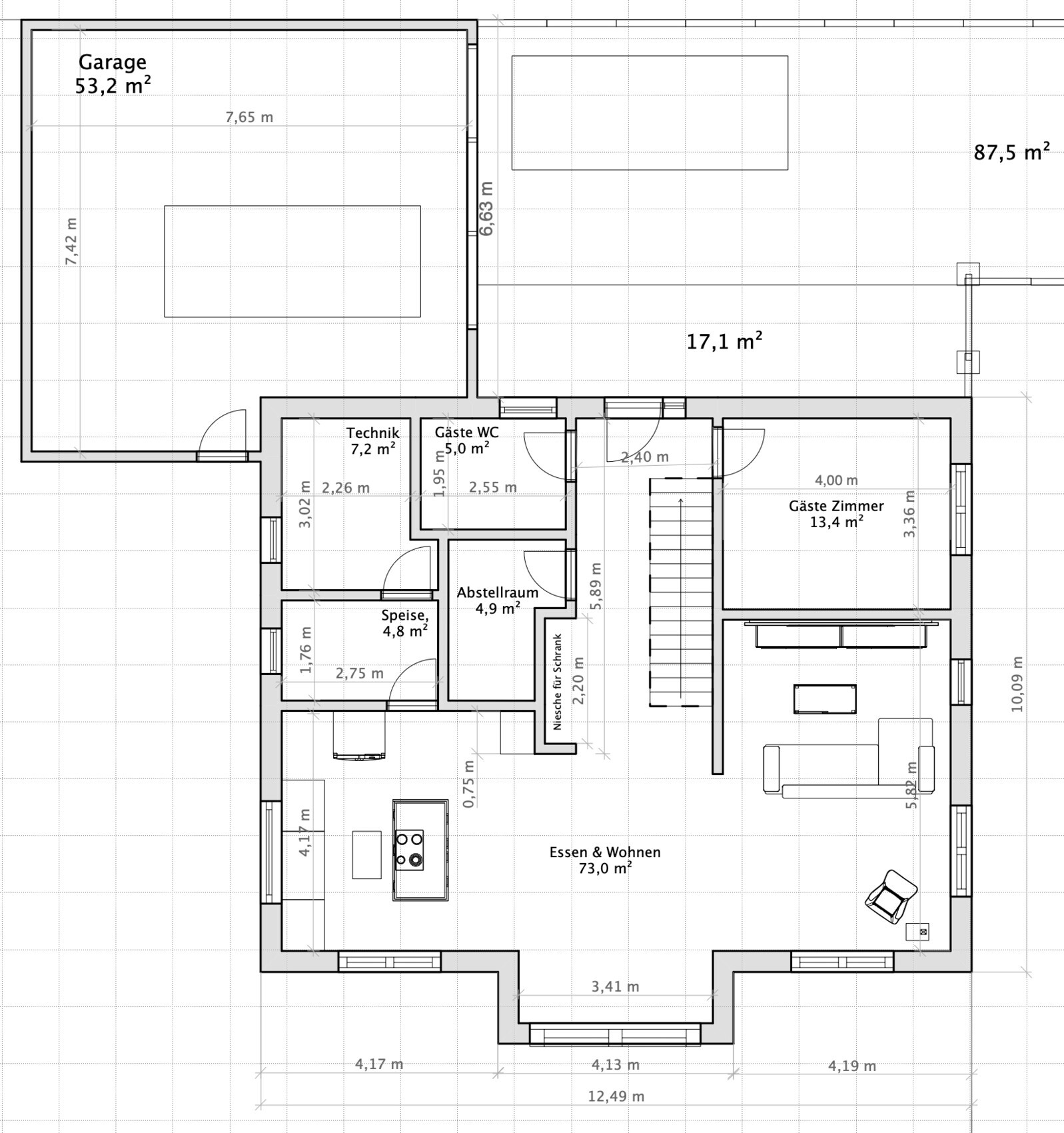
Technik/Abstellraum/Speisekammer
Würde ich zu Max 2 Räumen aufteilen. Die Türen kosten Platz
Putzmittel/Weihnachtsdekoration etc kann problemlos mit der Technik in einem Raum stehen. Speisekammer ist Geschmacksache. Selbst wenn der Raum ungeheizt ist, wird er nicht richtig kühl mehr. Da kannst du gleich in der Küche lagern
Was fehlt ist eine Garderobe. Fünf Personen haben recht viele Jacken und Schuhe in Gebrauch. Dazu kommt gepackte Wickeltasche, MaxiCosi oder Kinderwagen (Neugeborene/Winterbabies legt man nicht in einem Kinderwagen der die ganze Nacht in der Garage stand bei knapp über Null Grad)
Sitzgelegenheiten nicht vergessen.
OG gefällt mir ganz gut. Kind 1 hat die 15 qm nur auf dem Papier
Anordnung Ankleide Schlafen
So wie eingezeichnet bietet es den Kindern gegenüber einen Schallschutz tauscht ihr Ankleide und Schlafen, stört ihr euch nicht gegenseitig und die Kinder stehen nicht sofort im Schlafzimmer
Technik/Abstellraum/Speisekammer
Würde ich zu Max 2 Räumen aufteilen. Die Türen kosten Platz
Putzmittel/Weihnachtsdekoration etc kann problemlos mit der Technik in einem Raum stehen. Speisekammer ist Geschmacksache. Selbst wenn der Raum ungeheizt ist, wird er nicht richtig kühl mehr. Da kannst du gleich in der Küche lagern
Was fehlt ist eine Garderobe. Fünf Personen haben recht viele Jacken und Schuhe in Gebrauch. Dazu kommt gepackte Wickeltasche, MaxiCosi oder Kinderwagen (Neugeborene/Winterbabies legt man nicht in einem Kinderwagen der die ganze Nacht in der Garage stand bei knapp über Null Grad)
Sitzgelegenheiten nicht vergessen.
OG gefällt mir ganz gut. Kind 1 hat die 15 qm nur auf dem Papier
Anordnung Ankleide Schlafen
So wie eingezeichnet bietet es den Kindern gegenüber einen Schallschutz tauscht ihr Ankleide und Schlafen, stört ihr euch nicht gegenseitig und die Kinder stehen nicht sofort im Schlafzimmer
M
Mottenhausen11.03.19 14:57Durch den meines Erachtens unnötigen "Wäscheraum" bekommt das Bad nur ein eher kleines Nord-Fenster, was mir bei der Größe des Bades zu wenig wäre. Das hat dann nicht viel mit Tageslichtbad zu tun.
Das Konglomerat aus Abstellräumen im EG ist irgendwie ungünstig. Lieber eine Garaderobe, als Durchgang zum Technikraum und diesen auch als universellen Abstellraum/Speisekammer nutzen. Die "Technik" heutzutage ist ja kein unansehnliches Rohr- und Kabelchaos mit schmutzigen, lauten und stinkenden Anlagen. Also gibt keinen Grund mehr das so hart zu separieren.
Das Konglomerat aus Abstellräumen im EG ist irgendwie ungünstig. Lieber eine Garaderobe, als Durchgang zum Technikraum und diesen auch als universellen Abstellraum/Speisekammer nutzen. Die "Technik" heutzutage ist ja kein unansehnliches Rohr- und Kabelchaos mit schmutzigen, lauten und stinkenden Anlagen. Also gibt keinen Grund mehr das so hart zu separieren.
Ähnliche Themen