ᐅ Grundrissoptimierung Stadtvilla 180m2 (mit Visualisierungen)
Erstellt am: 17.08.18 18:42
Liebes Forum:
Wir würden uns sehr über Verbesserungsvorschläge für den beigefügten Grundriss freuen. Beigefügt ist auch ein von uns erstelltes Konzeptblatt (u.a. mit Visualisierung mit einem einfachen CAD-Programm), in welchem die Vorstellungen vom Haus etwas näher konkretisiert sind. Das detaillierte Konzeptblatt weicht hinsichtlich des beigefügten Grundrissentwurfs nur bzgl. der beiden Erker auf der Rückseite und des Balkons ab.
Der Grundriss der Hausbaufirma basiert ganz überwiegend auf unseren Plänen ohne Änderungen. Wir bauen mit einem Bauträger und möchten im Rahmen der Möglichkeiten weg vom Stil "Stadtvilla von der Stange". Da wir keinerlei Erfahrung haben, möchten wir sehr gerne Fehler / Nicht-gentutzes Potential vermeiden.
Daten:
Bebauungsplan/Einschränkungen
Größe des Grundstücks: 648 m2
Hang: nein
Grundflächenzahl: 0,2 - 0,3
Geschossflächenzahl: dito
Baufenster, Baulinie und -grenze: Einhaltung 5m zur Straßenfront
Randbebauung: Grundstück eingerahmt von zwei nahe stehenden Stadztvillen, bei einer grenzbebaute Terrasse (siehe Visualisierung beigefügt)
Geschossigkeit: zwei Vollgeschosse (§ 34 Baugesetzbuch)
Dachform: Waldmach, Flachdach, Spitzdach (§ 34 Baugesetzbuch)
Ausrichtung: Nord-Ost
Anforderungen der Bauherren
Stilrichtung, Dachform, Gebäudetyp: Stadtvilla klassizistisch-modern; Walmdach; Flachdach - was zum Haustyp klassizistisch Villa sehr gut passt, aufgrund Aufpreis von ca. 30 - 50.000 nicht realisierbar für uns. Daher Walmdach ohne Dachüberstand mit innen-liegender Dachrinne.
Keller: Ja, Teilkeller
Geschosse: 2
Anzahl der Personen, Alter: 4 Personen (zwei Erw., Kinder 1J sowie 7J, ggf. drittes Kind einmal).
Raumbedarf im EG, OG: ca. 160 - 190
Büro: Homeoffice
Schlafgäste pro Jahr: 2-3
Weitere Details gemäß Thread-Vorlage:
- offene Architektur
- moderne Bauweise (insbesondere durch schmale langgezogene Fenster) aber mit - klassizistisch Elementen:
Kochinsel
- Anzahl Essplätze: 6
- Kamin: ja
- Musik/Stereowand: nein
- Balkon, Dachterrasse: Balkon, aber kein Muss
- Garage, Carport: Garage
- Nutzgarten, Treibhaus: nein
Hausentwurf
Von wem stammt die Planung: Planer eines Bauunternehmens nach detaillierten Do-it-Yourself-Vorgaben
Was ist die wichtigste/grundlegende Frage zum Grundriss in 130 Zeichen zusammengefasst?
Wir bitten um Einschätzung und möglichen Verbesserungen. Beim Grundriss sind wir insbesondere noch nicht zufrieden mit der hinreichend modernen Fensterverortung sowie der möglichen Verortung der Garderoben.
Über Rückmeldungen würden wir uns sehr freuen!
Viele Grüße
TBO

Wir würden uns sehr über Verbesserungsvorschläge für den beigefügten Grundriss freuen. Beigefügt ist auch ein von uns erstelltes Konzeptblatt (u.a. mit Visualisierung mit einem einfachen CAD-Programm), in welchem die Vorstellungen vom Haus etwas näher konkretisiert sind. Das detaillierte Konzeptblatt weicht hinsichtlich des beigefügten Grundrissentwurfs nur bzgl. der beiden Erker auf der Rückseite und des Balkons ab.
Der Grundriss der Hausbaufirma basiert ganz überwiegend auf unseren Plänen ohne Änderungen. Wir bauen mit einem Bauträger und möchten im Rahmen der Möglichkeiten weg vom Stil "Stadtvilla von der Stange". Da wir keinerlei Erfahrung haben, möchten wir sehr gerne Fehler / Nicht-gentutzes Potential vermeiden.
Daten:
Bebauungsplan/Einschränkungen
Größe des Grundstücks: 648 m2
Hang: nein
Grundflächenzahl: 0,2 - 0,3
Geschossflächenzahl: dito
Baufenster, Baulinie und -grenze: Einhaltung 5m zur Straßenfront
Randbebauung: Grundstück eingerahmt von zwei nahe stehenden Stadztvillen, bei einer grenzbebaute Terrasse (siehe Visualisierung beigefügt)
Geschossigkeit: zwei Vollgeschosse (§ 34 Baugesetzbuch)
Dachform: Waldmach, Flachdach, Spitzdach (§ 34 Baugesetzbuch)
Ausrichtung: Nord-Ost
Anforderungen der Bauherren
Stilrichtung, Dachform, Gebäudetyp: Stadtvilla klassizistisch-modern; Walmdach; Flachdach - was zum Haustyp klassizistisch Villa sehr gut passt, aufgrund Aufpreis von ca. 30 - 50.000 nicht realisierbar für uns. Daher Walmdach ohne Dachüberstand mit innen-liegender Dachrinne.
Keller: Ja, Teilkeller
Geschosse: 2
Anzahl der Personen, Alter: 4 Personen (zwei Erw., Kinder 1J sowie 7J, ggf. drittes Kind einmal).
Raumbedarf im EG, OG: ca. 160 - 190
Büro: Homeoffice
Schlafgäste pro Jahr: 2-3
Weitere Details gemäß Thread-Vorlage:
- offene Architektur
- moderne Bauweise (insbesondere durch schmale langgezogene Fenster) aber mit - klassizistisch Elementen:
Kochinsel
- Anzahl Essplätze: 6
- Kamin: ja
- Musik/Stereowand: nein
- Balkon, Dachterrasse: Balkon, aber kein Muss
- Garage, Carport: Garage
- Nutzgarten, Treibhaus: nein
Hausentwurf
Von wem stammt die Planung: Planer eines Bauunternehmens nach detaillierten Do-it-Yourself-Vorgaben
- Offener Wohn- und Essbereich, der jedoch atmosphärisch getrennt ist
- Stil: Moderne Fassade im Stil einer klassizistischen Stadtvilla (vgl. Fotos)
- Breite stattliche Flure / Sichtachse von Eingangstür bis zur Terrasse
- Im Übrigen verweise ich auf die Angaben zum Grundriss EG im Konzeptblatt
- TGA: luftwärmepumpe, Photovoltaik
Was ist die wichtigste/grundlegende Frage zum Grundriss in 130 Zeichen zusammengefasst?
Wir bitten um Einschätzung und möglichen Verbesserungen. Beim Grundriss sind wir insbesondere noch nicht zufrieden mit der hinreichend modernen Fensterverortung sowie der möglichen Verortung der Garderoben.
Über Rückmeldungen würden wir uns sehr freuen!
Viele Grüße
TBO
So mal kurz ins Blaue geschossen weil nur mobil:
Warum diese komische Ecke in der Ankleide? Würd ich weglassen, die Türen sind sich eh nur im Weg
hat der arme Gast echt ne Tür zur Garage?
Flachdach zu teuer?
Teilkeller, Balkon und Erker weglassen, dann langts auch fürs Flachdach. Aber ich glaub da redet man in Bayern gegen Windmühlen, da scheint es nicht ohne Keller zu gehen.
Ohne Keller bräuchte man dann einen Technikraum, den man so grad nicht unterkriegen würde - das ist mein nächstes Problem: 180qm? Wo ist der ganze Platz denn hin...
Warum diese komische Ecke in der Ankleide? Würd ich weglassen, die Türen sind sich eh nur im Weg
hat der arme Gast echt ne Tür zur Garage?
Flachdach zu teuer?
Teilkeller, Balkon und Erker weglassen, dann langts auch fürs Flachdach. Aber ich glaub da redet man in Bayern gegen Windmühlen, da scheint es nicht ohne Keller zu gehen.
Ohne Keller bräuchte man dann einen Technikraum, den man so grad nicht unterkriegen würde - das ist mein nächstes Problem: 180qm? Wo ist der ganze Platz denn hin...
Interessant.
Zum EG
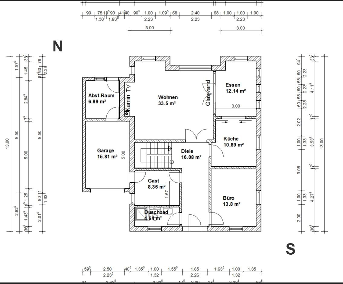
- Küche und Esszimmer find ich für geplante 5 Personen zu klein. Erker schlecht möblierbar.
- Muss der Eingang unbedingt planunten oder kann er auch gleich mit dem Gast den Platz tauschen? Falls er dort bleiben muss, täte ihm der Erker vom Wohnzimmer viel besser als eben dort.
- Kamin und TV nebeneinander? Schornstein außen sieht dann wie aus?
zum OG
Katastrophe - muss komplett neu.
3. Kinderzimmer eher unten im Büro oder Verzicht auf Ankleide?
Was ist das für ne Straße? Können die Kinder nach Südwest oder ist da Lärm?
Insgesamt mit Ausrichtung Nord- Ost Wohnzimmer sehr dunkel. Muss die Garage sein oder kann die weg und noch ein wenig Westsonne ins WZ geholt werden?
Zum EG
- Küche und Esszimmer find ich für geplante 5 Personen zu klein. Erker schlecht möblierbar.
- Muss der Eingang unbedingt planunten oder kann er auch gleich mit dem Gast den Platz tauschen? Falls er dort bleiben muss, täte ihm der Erker vom Wohnzimmer viel besser als eben dort.
- Kamin und TV nebeneinander? Schornstein außen sieht dann wie aus?
zum OG
Katastrophe - muss komplett neu.
3. Kinderzimmer eher unten im Büro oder Verzicht auf Ankleide?
Was ist das für ne Straße? Können die Kinder nach Südwest oder ist da Lärm?
Insgesamt mit Ausrichtung Nord- Ost Wohnzimmer sehr dunkel. Muss die Garage sein oder kann die weg und noch ein wenig Westsonne ins WZ geholt werden?
Müllerin schrieb:
Aber ich glaub da redet man in Bayern gegen Windmühlen, da scheint es nicht ohne Keller zu gehen.Berlin, sie bauen in Berlin
kaho674 schrieb:
zum OG
Katastrophe - muss komplett neu.Dem stimme ich zu.
Schlafzimmer zw den Kinderzimmers mit einer Wand am Kinderzimmer.
Teilung des Balkons Eltern mit Kind.
Kinderzimmern-Größe zu verschieden.
Schlafzimmer zu groß
Wozu der Balkon? Raucherbalkon fürs Flügge-Kind oder für Euch - stört in jedem Fall die Privatsphäre.
Badewanne unter Fenster braucht keiner
Bad zu viel Freifläche in der Mitte.
Flur auch insgesamt zu verschwenderisch, auch wenn man es großzügig mag.
EG:
Breite der Treppe mit 1,77 viel zu schmal!
Gastzimmer mit Garagendurchgang muss man nicht verstehen, aber wenn auf Teilkeller verzichtet wird, kann hier die TK rein (oben wäre auch genug Platz für einen Hauswirtschaftsraum)
2-3 Gäste/Jahr können im Hotel übernachten.
Ess viel zu klein, Küche ist auch ein Armutszeugnis bei 180qm Wohnfläche.
WZ finde ich wiederum zu groß, etwas ungemütlich... im Quadrat schlecht strukturierbar.
Nach der Ausrichtung ist die Garage für mich falsch platziert.
Gäste-WC ist 1,37 breit
Kücheninsel schlecht machbar.
Wer hat denn die Terrasse auf Nachbars Grund genehmigt?
Außenansicht mag ich sehr gern!!!
Grundriss gefällt mir nicht. Die Küche hat die Maße und die Fenstergröße von einem kleinen Reihenhaus, das Esszimmer wird zu knapp, besonders da auch noch am Fenster so eine Ecke ist, da kommt doch keiner mehr dran vorbei. Man mag das schön finden mit abgetrennter Küche und separatem Esszimmer, allerdings braucht man dafür auch mehr Quadratmeter sonst wirkt es einfach beengend. Der Wohnraum ist durch die quadratische Form auch nicht so gut zu möblieren. Den langen Flur im EG und OG finde ich etwas zu groß, besonders da für Küche und Esszimmer so wenig Platz ist. Im OG ist der Zugang zum Schlafzimmer auch nicht schön, also ich würde das alles lieber noch mal planen.
LG
Sabine
LG
Sabine
Ähnliche Themen