Hausbau - Ratgeber
Bauherrenhilfe
- Bauherrenhilfe vor Vertragsabschluss
-- Warum einen unabhängigen Baubetreuer?
-- Vertragsgrundlagen
-- Bausumme
-- Zahlungsplan zur Kostenkontrolle
-- Pflichten des Bauherren vor Vertragsabschluss
-- Unterlagen beim Hausbau vor Vertragsabschluss
- Bauherrenhilfe nach Vertragsabschluss
-- Bauantrag bei Behörden
-- Bau-Genehmigungsverfahren bei Baubehörden
-- Bauspezifische Versicherungen
-- Bauzeitenplan
-- Baubeginn - die Letzten Pflichten der Bauherrschaft
- Bauherrenhilfe während der Bauzeit
- Gewährleistungsansprüche
- Bauabnahme
Baufinanzierung
- Baufinanzierung - Allgemeine Fragen
- Kreditarten
- Kredit-Konditionen
- Bausparen
- Staatliche Förderungen
- Verkehrswert
- Haushaltsrechnung und Bonität
Hausbau Planung
- Haustypen
- Hausbau Vorbereitungsarbeiten
- Das Baugrundstück
- Baugrund beim Hausbau
- Baurecht
- Gebäudeschutz
- Erdarbeiten und Wasserhaltung
- Stützmauern
- Einfriedung
- Untergeschoss
- Kanalisation
- Tragende Elemente
- Nichttragende Innenwände
- Fundation / Fundament
- Deckenkonstruktionen
- Dächer
- Kaminanlagen
- Treppen Rampen Leitern
- Dachbeläge und Spengler
- Fenster
- Sonnen und Wetterschutz
- Aussenputze
- Einbauten, Küchen, Türen
- Bodenbeläge und Unterlagsböden
- Parkett
- Gips, Wand, Decke
Haustechnik und Energie
- Heiztechnik
- Lüftung und Klimatechnik
- Sanitärtechnik
- Elektrotechnik
- Erneuerbare Energie
Whirlpools / Jacuzzi
Hausbau Magazin
- Baufinanzierung trotz Krise?
- Das Blockhaus
- Moderne Dämmstoffe im Vergleich
- Erker Vor- und Nachteile
- Glasflächen beim Hausbau
- Günstig ein Haus Bauen
- Mediterraner Hausbaustil
- Mehrgenerationenhaus
- Moderne Architektur
- Gartengestaltung leicht gemacht
- Traditioneller Ziegelbau
- Villa als höchster Traum
- Im Eigenheim Ruhestand geniessen
- Altbau sanieren
- Kauf einer Holzgarage
- Immobilienmakler
- Arbeitshandschuhe für den Winter
- Zuhause verschönern
- Outdoor-Plissees
- Schlafzimmer planen
- Terrassenüberdachung
- Wohngebäudeversicherung
- Zaunarten und Eigenschaften
- Hauseingang gestalten
- Der perfekte Grundriss
- Sparsamer heizen im Altbau
- Einfamilienhaus smart finanzieren
- Planung einer PV-Anlage
- Neues Haus
- Immobilienfinanzierung
- Installation einer Photovoltaikanlage
- Asbest erkennen und entfernen
- Gartenpflege im Frühling – worauf achten
- Sauna im Fokus - Wellness zuhause
- Erfolgreich vermieten
- Die perfekte Winterbekleidung
- Das Niedrigenergiehaus
- Der April und seine Stürme
- Architektonische Vielfalt
- Ökologisch und nachhaltig bauen
- Das perfekte Schlafzimmer
- Nachhaltige Energieversorgung
- Zukunftsorientiert bauen
- Nachhaltigkeit beim Hausbau
- Tiny Houses
- Wärmepumpen als nachhaltige Heizvariante
- Maßgeschneiderten Kleiderschrank
- Der richtige Baukredit
- Ratgeber für erfolgreichen Hausbau
- Haus als Altersvorsorge
Do-it-yourself Anleitungen
- Verlegeanleitung für Bodenbeläge und Parkett
- Bodenbeläge und Parkett reinigen und pflegen
- Malerarbeiten am Haus
- Garten Tipps
- Umzug und Reinigung

ᐅ Grundrissoptimierung Einfamilienhaus in Hanglage Eingeschossig + Keller

Erstellt am: 29.11.20 10:42
N
NoSchnitzers
N
NoSchnitzers
29.11.20 10:42
Hallo ihr Lieben,
wir würden uns sehr über eure Meinungen zu unserem Grundriss freuen. Prinzipiell sind wir sehr zufrieden mit dem Grundriss. Dennoch würden uns eure Meinungen zu dem Wohngeschoss interessieren. Speziell der Bereich mit dem Elternschlafzimmer, Kinderzimmer und dem Bad. Im Bad fehlt z.B. noch ein Platz, wo man mal seine 1x getragenen Klamotten hinhängen kann oder einen Wäschekorb.

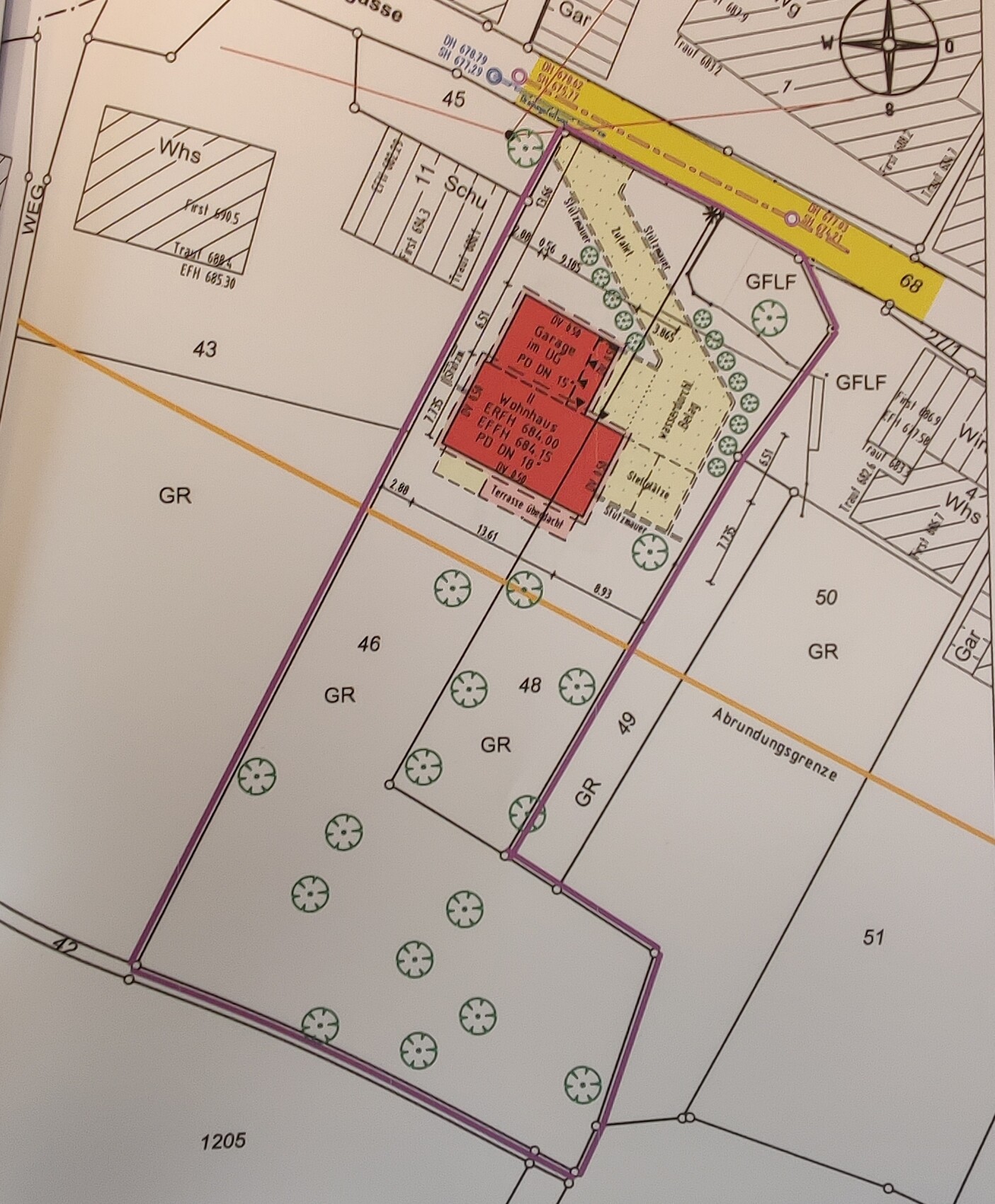
Bebauungsplan/Einschränkungen
Größe des Grundstücks: 2262qm
Hang: ja
Grundflächenzahl: 0,4
Geschossflächenzahl: 0,8
Baufenster, Baulinie und -grenze: siehe Bilder
Anzahl Stellplatz: 4 (Doppelgarage, 2 an Straße)
Geschossigkeit: 2-2,5 (Kellergeschiss, Erdgeschoss, Dachboden)
Dachform: versetztes Pultdächer (15° und 18°)
Ausrichtung: Nord-Ost/Süd-West
weitere Vorgaben: Kein Bebauungsplan, von der Straße aus geht es Bergauf

Anforderungen der Bauherren
Stilrichtung, Dachform, Gebäudetyp: relativ modern, versetztes Pultdach, Einfamilienhaus
Keller, Geschosse: 1 Vollgeschoss + „halber“ Keller (Hälfte in Berg)
Anzahl der Personen, Alter: 2 (27+33) evtl. 2 Kinder geplant
Raumbedarf im EG, OG:
Stauraum haben wir im Keller und auf dem Dachboden. Im Keller ist der Technikraum, sowie eine Werkstatt und eine Einliegerwohnung. Im OG haben wir einen offenen Wohnbereich, ein Gästebad, ein Bad, 2 Büros/Kinderzimmer und das Elternschlafzimmer. Über dem Hausgang und der „Küche“ ist Dachboden geplant
Büro:
Momentan sind 2 Büros/Kinderzimmer geplant. Da wir noch nicht wissen, ob wir Kinder haben wollen, wollen wir kein zusätzliches Büro einplanen. Sollten wir später doch ein weiteres Büro benötigen wird die Einliegerwohnung verwendet oder eine „Hütte“ im Garten gebaut.
Schlafgäste pro Jahr: 15 (Einliegerwohnung)
offene oder geschlossene Architektur: Eher offen. Wohnzimmer, Esszimmer und Gast gehen bis unter die Decke. Über Flur und Küche ist Dachboden
konservativ oder moderne Bauweise: eher Modern
offene Küche, Kochinsel: offene Küche mit Halbinsel
Anzahl Essplätze: 6-8 Dauerhaft
Kamin: Schwedenofen
Musik/Stereowand: egal
Balkon, Dachterrasse: nein
Garage, Carport: Doppelgarage
weitere Wünsche: Wir wollten unbedingt eine große Werkstatt um alle vorahnenden Geräte unterzubringen. Außerdem war eine Doppelgarage gewünscht.

Hausentwurf
Von wem stammt die Planung: Architekt
Was gefällt besonders: Wohnen auf einem Geschoss
Was gefällt nicht: Das Bad, da es hier keine Möglichkeit gibt Klamotten abzulegen und für einen Wäschekorb. Die „Ankleide“ (die ja eigentlich Hausgang ist).
Preisschätzung lt Architekt/Planer: 650.000 (inkl. Außenanlage, Küche, Bad, Baunebenkosten)
Persönliches Preislimit fürs Haus, inkl. Ausstattung: 720.000 (Möbel sind alle vorhanden, außer Bad und Küche)
favorisierte Heiztechnik: Luft-Wärmepumpe

Wenn Ihr verzichten müsst,
auf welche Details/Ausbauten könnt Ihr verzichten: Außer dem Bidet im Bad fällt uns nichts mehr ein (geplant waren ursprünglich 2 Räume mehr)
könnt Ihr nicht verzichten: Keller, Werkstatt

Warum ist der Entwurf so geworden, wie er jetzt ist?
Das Grundstück ist relativ Steil, Die Auffahrt erfolgt von der Straße aus den „Hang hoch“ (siehe Bilder). Das Haus ist nach hinten versetzt, da der Hang direkt an der Straße die größte Steigung hat und dort ein „Schattenloch“ ist.
Geplant war ursprünglich ein Einfamilienhaus mit Keller+ 2 Geschossen und Doppelgarage. Unser Architekt hatte dann die Idee, dass man über der Doppelgarage Wohnraum haben könnte. Dadurch ist dann das 2. Vollgeschoss gewichen. Außerdem gefiel uns die Idee im Alter auf einem Geschoss wohnen zu können (dann mit Treppenlift ).

Schon mal vielen Dank für eure Ideen

Grundriss eines Einfamilienhauses mit Terrasse, Wohn-/Essbereich, Küche, Schlaf- und Kinderzimmer.


Grundriss eines Hauses: Garage, Werkstatt, Küche/Wohnen, Bad, Keller, Flur.


Grundriss eines Einfamilienhauses mit Doppelgarage, Zufahrt und Garten mit Bäumen.


Lageplan eines Grundstücks mit rotem Gebäude, violetter Grenzlinie, gelber Straße und Bäumen
1
11ant
29.11.20 12:01
Ergänze mal weitere Höhenangaben. Weshalb nennt Ihr ein OG "Erdgeschoss", dessen Fußboden oberhalb der Traufen der Nachbarn liegt ?
Mein Lesetip lautet: https://www.hausbau-forum.de/threads/werkplanung-efh-180qm-flachdach-mit-keller-doppelgarage.26277/ von @ivenh0
https://www.instagram.com/11antgmxde/
https://www.linkedin.com/company/bauen-jetzt/
N
NoSchnitzers
29.11.20 13:22
Hallo 11ant,
wie genau meinst du das mit OG und EG? Im Prinzip haben wir Kellergeschoss, Erdgeschoss und Dachboden.
Der Fußboden liegt oberhalb der Traufe des rechten Nachbarn aber auf selber Höhe wie beim Wohngebäude des linken Nachbar (das Gebäude links, dass so nah bei unserem Grundstück steht ist eine Scheune)
Im Anhang mal noch ein Bild vom Schnitt.
Zum den Höhenangaben: Meinst du die vom Hang?
Die Straße liegt auf ca. 678m Höhe.
Das Kellergeschoss liegt im Moment auf ca. 681,5m und dass Erdgeschoss bei 684,5

Mit der Position des Hauses sind wir so zufrieden uns geht es hauptsächlich im die Raumaufteilung im EG.

Schnitt A-A durch ein Haus mit Wohnen, Diele, Bad, Schlafen, Technikraum


Vermessungslageplan mit vielen grünen Baumkreisen (Bäume) und Maßlinien.
H
haydee
29.11.20 13:43
wie verläuft das Baufenster?
Was soll diese Mini Einliegerwohnung?
warum verbaut ihr euch mit der Garage Fenster?
N
NoSchnitzers
29.11.20 14:03
haydee schrieb:

wie verläuft das Baufenster?
Was soll diese Mini Einliegerwohnung?
warum verbaut ihr euch mit der Garage Fenster?

Das was als Abrundungsgrenze eingezeichnet ist, ist das Ende des Baugrundstücks. Wir müssen ansonsten nur die Grenzen zum Nachbarn einhalten. Aber wie gesagt, wir sind mit der Position des Hauses zufrieden. Uns geht es nur um die Anordnung von Bad, Kinderzimmer und Elternschlafzimmer.

Die Einliegerwohnung wollen wir nicht vermieten. Wir haben unterschiedliche Möglichkeiten wie wir die Einliegerwohnung nutzen wollen und dafür reicht die Größe aus.

Welche Fenster werden durch die Garage verbaut?
Die Garage grenzt an den Flur im Keller und an die Werkstatt, die zur Seite hin Fenster hat.
H
hampshire
29.11.20 14:04
Das ist keine Garagenmauer vor dem Fenster, sondern das Ende einer Fundamentmauer auf Bodenhöhe. Die Garage ist ein Parkplatz.
Der Entwurf gefällt mir gut. 3 Personen Haushalt mit gutem Verhältnis mit Kind insbesondere auch durch das Teenageralter... Gemeinsame Ankleide ist eine pfiffige Idee. Später, wenn Kind Besuch hat kann ja das Gästezimmer zum Kinderwohnzimmer werden. Ich hätte Gäste nicht so gerne durch meine Ankleide laufen. Trotzdem: Seid selbstbewusst, das kann genau richtig für Euch sein!
Für Menschen, die nicht viel ansammeln und im Haus steuen müssen. Terrasse verspricht Urlaubsfeeling - je nach Aussicht. Schönes und stringentes Projekt.
doppelgaragekellergeschossbaufenstereinliegerwohnungküchedachbodenkinderzimmerhangerdgeschossvollgeschoss