ᐅ Grundrissoptimierung Einfamilienhaus, 5 Personen, 8,5m x 17m, 250qm
Erstellt am: 18.05.20 14:12
C
chrisseHallo zusammen,
ich lese hier schon seit einigen Wochen mit und habe einige Ideen aufgeschnappt und wohl auch schon ein paar Dinge mir Eurer Hilfe verbessern können.
Daher denke ich, dass es jetzt an der Zeit ist, dass ich unseren bisher erarbeitete Grundriss hier zur Diskussion stelle. Ich denke zum einen wird man selbst mit der Zeit etwas "Betriebsblind", was den eigenen Entwurf anbelangt und zum anderen gibt es hier, so wie ich bei den anderen Themen gesehen habe, viele Mitglieder mit viel Erfahrung.
Bitte entschuldigt die optisch nicht optimalen Pläne. Ich habe die Möbel mit Pauspapier über die Grundrisse gelegt. Ich habe keine (für mich) geeignete Softwarelösung gefunden, in die ich die Pläne des Architekten hätte importieren können. Habe dann aufgegeben und es per Hand gemacht
Ich freue mich auf Eure Vorschläge. Gerne auch Kritik und Anregungen. Jetzt sind wir noch in der Phase in der wir einiges anpassen und optimieren können.
Vielen Dank schon Mal an Alle.
Chrisse
Bebauungsplan/Einschränkungen
Größe des Grundstücks: >1.000qm
Hang: nein
Grundflächenzahl 0,3
Geschossflächenzahl
Baufenster, Baulinie und -grenze: Baufenstertiefe wurde in Richtung Nord zu Süd mit dem Entwurf bereits komplett ausgenutzt
Randbebauung
Anzahl Stellplatz: 4
Geschossigkeit: 2
Dachform: zulässig sind Zeltdach, Satteldach und Walmdach
Stilrichtung:
Ausrichtung: Pläne sind alle genau nach Norden ausgerichtet. Eingang somit im Norden.
Maximale Höhen/Begrenzungen: maximale Wandhöhe: 5,60m (gemessen an Unterkante Sparren)
weitere Vorgaben
Anforderungen der Bauherren
Stilrichtung, Dachform, Gebäudetyp: Satteldach
Keller, Geschosse: 2 Vollgeschosse plus Keller
Anzahl der Personen, Alter: 5 Personen (38,37,4,2,0)
Raumbedarf im EG, OG:
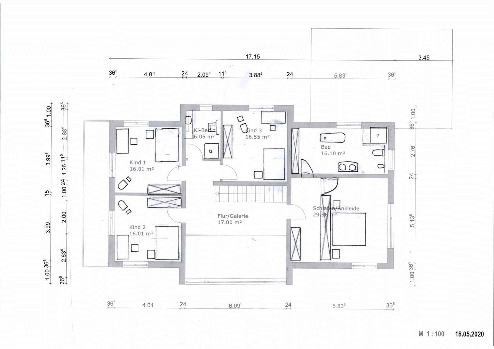
Im EG: Büro für teilweise Homeoffice, Gäste-WC mit Dusche, Speisekammer, Hauswirtschaftsraum (auch als Schmutztrennung zwischen Garage/Küche), Küche mit Essbereich, Wohnzimmer
Im OG: 3 recht gleichwertige Kinderzimmer. Separates Kinderbad, Elternbereich über Ankleidezimmer erschlossen, soll auch als Verteiler zu Elternbad und Schlafzimmer dienen, damit man sich nicht stört, wenn einer bereits/noch schläft.
Im Keller: Haustechnikraum, Erdkeller, Gästezimmer mit Toilette, Lagerraum, Hobbyraum, Werkstatt
Büro: Familiennutzung oder Homeoffice? Homeoffice und Besprechungen (Ehrenamt, Verein etc.)
Schlafgäste pro Jahr: 5
offene oder geschlossene Architektur: Küchen und Essbereich offen, Wohnzimmer daran anschließend, jedoch etwas abtrennbar davon
konservativ oder moderne Bauweise: moderner Landhausstil
offene Küche, Kochinsel: Ja, offen und Platz zum gemeinsamen Frühstück an der Kochinsel.
Anzahl Essplätze: täglich 5 , erweiterbar auf 10
Kamin: Wäre schön als „Raumtrenner“ zu Wohnbereich
Musik/Stereowand: nein
Balkon, Dachterrasse: OG Westseite Balkon vor Kinderzimmer
Garage, Carport: Doppelgarage, 8,50m lang wegen Fahrräder etc.
Nutzgarten, Treibhaus: nein
Hausentwurf
Von wem stammt die Planung:
Befreundeter Architekt (mit viel Input unsererseits)
Was gefällt besonders?
Nach Norden zu Straße/Nachbar wenig Aufenthaltsräume und daher gut „abgeschirmt“, nach Süden recht offen, da kein Nachbar und nach Osten schöner Blick in den Wald.
Was gefällt nicht?
Küche, Essbereich bis hin zum Kamin ist etwas schmal im Vergleich zur Länge Dies ist zum einen der eingeschränkten breite des Baufensters in Kombination mit der unbedingt gewünschten Doppelgarage geschuldet, sowie gleichzeitig dem Thema, dass es sich um 2 Grundstücke handelt, das östliche davon ist jedoch mit einer maximale Grundflächenzahl von 110qm belegt. Hierdurch könnten wir trotz evtl. schmalerer Garage nicht wirklich breiter bauen. An sich ist dies auch nicht schlimm, bedarf jedoch noch ein par Überlegungen hinsichtlich der sinnvollen Aufteilung von Küche/Ess-/Wohnbereich.
Wohnzimmer ist gewollt verhältnismäßig klein, da wir dort lediglich private Sitzgelegenheiten sowie einen Fernseher haben möchten und dies eher „kuschlig“ halten möchten. Dafür auf der anderen Seite des Kamins eine kleine Sitzgruppe wenn wir Besuch haben.
Preisschätzung lt Architekt/Planer: 650k
Persönliches Preislimit fürs Haus, inkl Ausstattung: -
favorisierte Heiztechnik: Traditionell (Gastherme mit Photovoltaik), Fußbodenheizung
Wenn Ihr verzichten müsst, auf welche Details/Ausbauten
-könnt Ihr verzichten:
Auf ein paar qm in den westlichen Kinderzimmern und im Elternbad
-könnt Ihr nicht verzichten:
Großzügiger Hauswirtschaftsraum mit „Dreckdusche“ (für Kinderklamotten, Schuhe etc)
Großzügiger Eingangsbereich (nichts schlimmeres, als wenn der Besuch sich beim Jacke ausziehen gegenseitig blutige Nasen schlägt)
Warum ist der Entwurf so geworden, wie er jetzt ist? ZB
Wir haben für uns eine Art Pflichtenheft erstellt, welche Räume wir benötigen und wie groß diese ca. sein sollten. Ebenso die Wünsche wie bspw. Gäste-WC mit Dusche, Hauswirtschaftsraum zwischen Garage und Küche, Ankleidezimmer im Elternbereich etc.
Welche Wünsche wurden vom Architekten umgesetzt?
Im Prinzip wurde fast alle Anforderungen so umgesetzt wie gewünscht bzw. haben wir mit dem Architekten so lange optimiert, bis wir das jetzige Ergebnis hatten.
Wir waren auch in zahllosen Musterhausparks und haben uns sehr viele Grundrisse in Büchern und im Internet angeschaut um Ideen zu bekommen.
Was macht ihn in Euren Augen besonders gut oder schlecht?
GUT: Ausrichtungen finden wir optimal. Norden wenig Aufenthaltsräume, nach Süden sehr offen (problemlos, da keine direkten Nachbarn). Im Osten Morgensonne im Schlafzimmer, im Westen bei den Kinderzimmern schöner Blick auf den Ort/das restliche Baugebiet.
SCHLECHT: Küche/Ess-/Wohnbereich etwas schmal im Verhältnis zu Länge. Daher Möblierung/Nutzung noch nicht optimal.
Die Integration des Ofens als Raumtrenner zwischen Essbereich und Wohnzimmer ist für uns noch nicht so stimmig. Wir möchten zwischen Essbereich und Wohnzimmer eine kleine Sitzgruppe haben die man mit Gästen zusammen nutzen kann.
Was ist die wichtigste/grundlegende Frage zum Grundriss in 130 Zeichen zusammengefasst?
- Fallen euch Schwachstellen auf, die wir nicht erkannt haben bzw. die ihr suboptimal findet (bspw. etwas zu schmal oder zu breit, zu groß oder zu klein)?
- Habt ihr Ideen hinsichtliches der sinnvollen Einteilung/Nutzung des Küchen und Essbereichs?
- Ansonsten sind wir für alle Anmerkungen, Tipps und Ideen offen und sehr dankbar.








ich lese hier schon seit einigen Wochen mit und habe einige Ideen aufgeschnappt und wohl auch schon ein paar Dinge mir Eurer Hilfe verbessern können.
Daher denke ich, dass es jetzt an der Zeit ist, dass ich unseren bisher erarbeitete Grundriss hier zur Diskussion stelle. Ich denke zum einen wird man selbst mit der Zeit etwas "Betriebsblind", was den eigenen Entwurf anbelangt und zum anderen gibt es hier, so wie ich bei den anderen Themen gesehen habe, viele Mitglieder mit viel Erfahrung.
Bitte entschuldigt die optisch nicht optimalen Pläne. Ich habe die Möbel mit Pauspapier über die Grundrisse gelegt. Ich habe keine (für mich) geeignete Softwarelösung gefunden, in die ich die Pläne des Architekten hätte importieren können. Habe dann aufgegeben und es per Hand gemacht
Ich freue mich auf Eure Vorschläge. Gerne auch Kritik und Anregungen. Jetzt sind wir noch in der Phase in der wir einiges anpassen und optimieren können.
Vielen Dank schon Mal an Alle.
Chrisse
Bebauungsplan/Einschränkungen
Größe des Grundstücks: >1.000qm
Hang: nein
Grundflächenzahl 0,3
Geschossflächenzahl
Baufenster, Baulinie und -grenze: Baufenstertiefe wurde in Richtung Nord zu Süd mit dem Entwurf bereits komplett ausgenutzt
Randbebauung
Anzahl Stellplatz: 4
Geschossigkeit: 2
Dachform: zulässig sind Zeltdach, Satteldach und Walmdach
Stilrichtung:
Ausrichtung: Pläne sind alle genau nach Norden ausgerichtet. Eingang somit im Norden.
Maximale Höhen/Begrenzungen: maximale Wandhöhe: 5,60m (gemessen an Unterkante Sparren)
weitere Vorgaben
Anforderungen der Bauherren
Stilrichtung, Dachform, Gebäudetyp: Satteldach
Keller, Geschosse: 2 Vollgeschosse plus Keller
Anzahl der Personen, Alter: 5 Personen (38,37,4,2,0)
Raumbedarf im EG, OG:
Im EG: Büro für teilweise Homeoffice, Gäste-WC mit Dusche, Speisekammer, Hauswirtschaftsraum (auch als Schmutztrennung zwischen Garage/Küche), Küche mit Essbereich, Wohnzimmer
Im OG: 3 recht gleichwertige Kinderzimmer. Separates Kinderbad, Elternbereich über Ankleidezimmer erschlossen, soll auch als Verteiler zu Elternbad und Schlafzimmer dienen, damit man sich nicht stört, wenn einer bereits/noch schläft.
Im Keller: Haustechnikraum, Erdkeller, Gästezimmer mit Toilette, Lagerraum, Hobbyraum, Werkstatt
Büro: Familiennutzung oder Homeoffice? Homeoffice und Besprechungen (Ehrenamt, Verein etc.)
Schlafgäste pro Jahr: 5
offene oder geschlossene Architektur: Küchen und Essbereich offen, Wohnzimmer daran anschließend, jedoch etwas abtrennbar davon
konservativ oder moderne Bauweise: moderner Landhausstil
offene Küche, Kochinsel: Ja, offen und Platz zum gemeinsamen Frühstück an der Kochinsel.
Anzahl Essplätze: täglich 5 , erweiterbar auf 10
Kamin: Wäre schön als „Raumtrenner“ zu Wohnbereich
Musik/Stereowand: nein
Balkon, Dachterrasse: OG Westseite Balkon vor Kinderzimmer
Garage, Carport: Doppelgarage, 8,50m lang wegen Fahrräder etc.
Nutzgarten, Treibhaus: nein
Hausentwurf
Von wem stammt die Planung:
Befreundeter Architekt (mit viel Input unsererseits)
Was gefällt besonders?
Nach Norden zu Straße/Nachbar wenig Aufenthaltsräume und daher gut „abgeschirmt“, nach Süden recht offen, da kein Nachbar und nach Osten schöner Blick in den Wald.
Was gefällt nicht?
Küche, Essbereich bis hin zum Kamin ist etwas schmal im Vergleich zur Länge Dies ist zum einen der eingeschränkten breite des Baufensters in Kombination mit der unbedingt gewünschten Doppelgarage geschuldet, sowie gleichzeitig dem Thema, dass es sich um 2 Grundstücke handelt, das östliche davon ist jedoch mit einer maximale Grundflächenzahl von 110qm belegt. Hierdurch könnten wir trotz evtl. schmalerer Garage nicht wirklich breiter bauen. An sich ist dies auch nicht schlimm, bedarf jedoch noch ein par Überlegungen hinsichtlich der sinnvollen Aufteilung von Küche/Ess-/Wohnbereich.
Wohnzimmer ist gewollt verhältnismäßig klein, da wir dort lediglich private Sitzgelegenheiten sowie einen Fernseher haben möchten und dies eher „kuschlig“ halten möchten. Dafür auf der anderen Seite des Kamins eine kleine Sitzgruppe wenn wir Besuch haben.
Preisschätzung lt Architekt/Planer: 650k
Persönliches Preislimit fürs Haus, inkl Ausstattung: -
favorisierte Heiztechnik: Traditionell (Gastherme mit Photovoltaik), Fußbodenheizung
Wenn Ihr verzichten müsst, auf welche Details/Ausbauten
-könnt Ihr verzichten:
Auf ein paar qm in den westlichen Kinderzimmern und im Elternbad
-könnt Ihr nicht verzichten:
Großzügiger Hauswirtschaftsraum mit „Dreckdusche“ (für Kinderklamotten, Schuhe etc)
Großzügiger Eingangsbereich (nichts schlimmeres, als wenn der Besuch sich beim Jacke ausziehen gegenseitig blutige Nasen schlägt)
Warum ist der Entwurf so geworden, wie er jetzt ist? ZB
Wir haben für uns eine Art Pflichtenheft erstellt, welche Räume wir benötigen und wie groß diese ca. sein sollten. Ebenso die Wünsche wie bspw. Gäste-WC mit Dusche, Hauswirtschaftsraum zwischen Garage und Küche, Ankleidezimmer im Elternbereich etc.
Welche Wünsche wurden vom Architekten umgesetzt?
Im Prinzip wurde fast alle Anforderungen so umgesetzt wie gewünscht bzw. haben wir mit dem Architekten so lange optimiert, bis wir das jetzige Ergebnis hatten.
Wir waren auch in zahllosen Musterhausparks und haben uns sehr viele Grundrisse in Büchern und im Internet angeschaut um Ideen zu bekommen.
Was macht ihn in Euren Augen besonders gut oder schlecht?
GUT: Ausrichtungen finden wir optimal. Norden wenig Aufenthaltsräume, nach Süden sehr offen (problemlos, da keine direkten Nachbarn). Im Osten Morgensonne im Schlafzimmer, im Westen bei den Kinderzimmern schöner Blick auf den Ort/das restliche Baugebiet.
SCHLECHT: Küche/Ess-/Wohnbereich etwas schmal im Verhältnis zu Länge. Daher Möblierung/Nutzung noch nicht optimal.
Die Integration des Ofens als Raumtrenner zwischen Essbereich und Wohnzimmer ist für uns noch nicht so stimmig. Wir möchten zwischen Essbereich und Wohnzimmer eine kleine Sitzgruppe haben die man mit Gästen zusammen nutzen kann.
Was ist die wichtigste/grundlegende Frage zum Grundriss in 130 Zeichen zusammengefasst?
- Fallen euch Schwachstellen auf, die wir nicht erkannt haben bzw. die ihr suboptimal findet (bspw. etwas zu schmal oder zu breit, zu groß oder zu klein)?
- Habt ihr Ideen hinsichtliches der sinnvollen Einteilung/Nutzung des Küchen und Essbereichs?
- Ansonsten sind wir für alle Anmerkungen, Tipps und Ideen offen und sehr dankbar.
chrisse schrieb:
Bitte entschuldigt die optisch nicht optimalen Pläne. Ich habe die Möbel mit Pauspapier über die Grundrisse gelegt. Ich habe keine (für mich) geeignete Softwarelösung gefunden, in die ich die Pläne des Architekten hätte importieren können. Habe dann aufgegeben und es per Hand gemacht Ich entschuldige das nicht - ich begrüße das.Die Häßlichkeit des Baukörpers mit den Erkern ist ja gottseidank Geschmackssache. Bleibt objektiv nur die Frage: was verspricht man sich von einer Garage in einer Breite für anderthalb Autos - sollen da ein Zwei- und ein Einspurer drinstehen ?
P.S.: (@Escroda)
chrisse schrieb:
dass es sich um 2 Grundstücke handelt, das östliche davon ist jedoch mit einer maximale Grundflächenzahl von 110qm belegt.Wie gut praktisch handhabbar ist denn das, eine knödellinienübergreifende Bebauung zu realisieren ?https://www.instagram.com/11antgmxde/
https://www.linkedin.com/company/bauen-jetzt/
Kind 3 zwischen den Bädern? Das gefällt mir so gar nicht. Wohnzimmer ist schnuckelig klein für 5 Personen, der Kamin dann noch dazwischen. Falls ihr gemeinsam TV schaut, wie sähe das dann aus?
Galerie versteh ich einfach nicht, weil ich auch 3 Kinder habe und den Lärm und ihre Geräusche ja schon irgendwie auch liebte, aber mehr hätte ich nicht haben wollen. Da war es doch manchmal schön, wenn man die Türen schließen konnte und wenig gehört hat.
Galerie versteh ich einfach nicht, weil ich auch 3 Kinder habe und den Lärm und ihre Geräusche ja schon irgendwie auch liebte, aber mehr hätte ich nicht haben wollen. Da war es doch manchmal schön, wenn man die Türen schließen konnte und wenig gehört hat.
Ähnliche Themen