ᐅ Grundrisshilfe: 216qm Einfamilienhaus mit Einliegerwohnung & Doppelgarage
Erstellt am: 28.02.22 13:59
A
AHLK2022Hallo zusammen,
Wir haben nähe Frankfurt/Main ein Haus gefunden wo bald der Baubeginn stattfinden soll. Es kommt von einem Bauträger. Aktuell sind auf dem Grundstück ein altes Haus welches gerade kernsaniert wird. Daraus werden 3 ETW gemacht. Unser Haus wird am hinteren Ende ein Einfamilienhaus mit ca216 qm.
es müssten 2 Garagen in das Haus u ein Stellplatz, den wir dazu kaufen können.
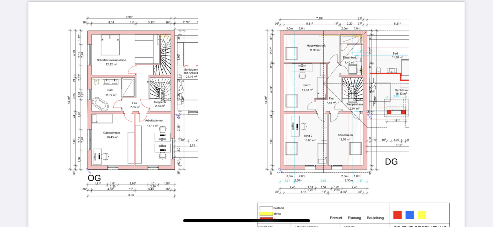
Beim Grundriss haben wir ausser den Außenmauern (eine Linie mit Grenzbebauung u 3,5 m zum Nachbarn) und Doppelgarage völlige Narrenfreiheit. Der Grundriss wurde von uns schon geändert, da wir vorbereiten möchten das OG irgendwann zu vermieten (Außentreppe wird wohl nicht genehmigt). Daher die zweite innentreppe.
Grundsätzlich fragen wir uns wie wir das EG sm besten nutzen. Irgendwie finde ich es für Kochen/wohnen/Essen etwas klein. (Wobei ich die Qm Angaben nicht nachvollziehen kann, weil lt Außenmaße und etwas Mathematik es zusammen ca 49 statt ~44 sein müssten, aber ich weiß nicht ob die Treppe rausgerechnet wird).
Wo stellt man sm besten eine Couch hin?
Ebenfalls ist die Frage nach möglichen Optimierungen bzw Denk-Fehler die wir gemacht haben. Macht das alles Sinn? Der Architekt hat alle unsere Wünsche einfach umgesetzt ohne zu hinterfragen oder ob es Sinn macht. Daher sind wir verunsichert.
kein Keller, eine Garage für Fahrräder und ansonsten wird ein Zimmer geopfert.
Gerne kochinsel 🙂
kostet 769k schlüsselfertig.
Danke für eurer Feedback!
Bebauungsplan/Einschränkungen
Größe des Grundstücks 290qm
Hang nein
Grundflächenzahl wissen wir nicht
Geschossflächenzahl wissen wir nicht
Baufenster, Baulinie und -grenze
Randbebauung siehe Bilder
Anzahl Stellplatz DG + Stellplatz
Geschossigkeit 2 voll + DG
Anforderungen der Bauherren
Anzahl der Personen, Alter 2 + Baby + irgendwann noch eins
Büro: Familiennutzung oder Homeoffice? HO
Schlafgäste pro Jahr. Wenige
offene oder geschlossene Architektur. Offen
konservativ oder moderne Bauweise modern
offene Küche, Kochinsel





Wir haben nähe Frankfurt/Main ein Haus gefunden wo bald der Baubeginn stattfinden soll. Es kommt von einem Bauträger. Aktuell sind auf dem Grundstück ein altes Haus welches gerade kernsaniert wird. Daraus werden 3 ETW gemacht. Unser Haus wird am hinteren Ende ein Einfamilienhaus mit ca216 qm.
es müssten 2 Garagen in das Haus u ein Stellplatz, den wir dazu kaufen können.
Beim Grundriss haben wir ausser den Außenmauern (eine Linie mit Grenzbebauung u 3,5 m zum Nachbarn) und Doppelgarage völlige Narrenfreiheit. Der Grundriss wurde von uns schon geändert, da wir vorbereiten möchten das OG irgendwann zu vermieten (Außentreppe wird wohl nicht genehmigt). Daher die zweite innentreppe.
Grundsätzlich fragen wir uns wie wir das EG sm besten nutzen. Irgendwie finde ich es für Kochen/wohnen/Essen etwas klein. (Wobei ich die Qm Angaben nicht nachvollziehen kann, weil lt Außenmaße und etwas Mathematik es zusammen ca 49 statt ~44 sein müssten, aber ich weiß nicht ob die Treppe rausgerechnet wird).
Wo stellt man sm besten eine Couch hin?
Ebenfalls ist die Frage nach möglichen Optimierungen bzw Denk-Fehler die wir gemacht haben. Macht das alles Sinn? Der Architekt hat alle unsere Wünsche einfach umgesetzt ohne zu hinterfragen oder ob es Sinn macht. Daher sind wir verunsichert.
kein Keller, eine Garage für Fahrräder und ansonsten wird ein Zimmer geopfert.
Gerne kochinsel 🙂
kostet 769k schlüsselfertig.
Danke für eurer Feedback!
Bebauungsplan/Einschränkungen
Größe des Grundstücks 290qm
Hang nein
Grundflächenzahl wissen wir nicht
Geschossflächenzahl wissen wir nicht
Baufenster, Baulinie und -grenze
Randbebauung siehe Bilder
Anzahl Stellplatz DG + Stellplatz
Geschossigkeit 2 voll + DG
Anforderungen der Bauherren
Anzahl der Personen, Alter 2 + Baby + irgendwann noch eins
Büro: Familiennutzung oder Homeoffice? HO
Schlafgäste pro Jahr. Wenige
offene oder geschlossene Architektur. Offen
konservativ oder moderne Bauweise modern
offene Küche, Kochinsel
M
Myrna_Loy28.02.22 14:08Ich kann mir nicht vorstellen, dass ein Architekt so etwas zeichnet. Da funktioniert leider gar nichts.
Myrna_Loy schrieb:
Ich kann mir nicht vorstellen, dass ein Architekt so etwas zeichnet. Da funktioniert leider gar nichts.Dem ist aber so, was genau funktioniert da gar nicht?M
Myrna_Loy28.02.22 14:17AHLK2022 schrieb:
Dem ist aber so, was genau funktioniert da gar nicht?Für Küche und Essplatz allein brauchst Du zusammen schon ca 6 m. Da kannst Du Dir ausrechnen, wie viel Platz für Couch und Fernseher bleibt. Es gibt keinen Platz für die Garderobe und Ihr verballert irrsinnig viel Fläche für zwei Treppenhäuser. Oben habt Ihr massig Zimmer für drei Personen.Ähnliche Themen