ᐅ Grundrissentwurf Einfamilienhaus 1,5 Geschossig ohne Keller ca. 160qm
Erstellt am: 31.08.23 17:22
H
heamer1Bebauungsplan/Einschränkungen
Größe des Grundstücks 648m²
Grundflächenzahl 0,3
Geschossflächenzahl 0,3
Baufenster, Baulinie und -grenze: Siehe Lageplan
Randbebauung
Anzahl Stellplatz: 1
Geschossigkeit: 1
Dachform Satteldach 42-46°
Stilrichtung
Ausrichtung
Maximale Höhen/Begrenzungen
weitere Vorgaben
Anforderungen der Bauherren
Stilrichtung, Dachform, Gebäudetyp
Keller, Geschosse
Anzahl der Personen, Alter 4 30,29,0,0
Raumbedarf im EG, OG
Büro: Familiennutzung oder Homeoffice? Hobby
Schlafgäste pro Jahr: 1
offene oder geschlossene Architektur: geschlossen
konservativ oder moderne Bauweise: konservativ
offene Küche, Kochinsel egal
Anzahl Essplätze: 8-10
Kamin: Nein
Musik/Stereowand
Balkon, Dachterrasse
Garage, Carport: Holzcarport
Nutzgarten, Treibhausm
weitere Wünsche/Besonderheiten/Tagesablauf, gern auch Begründungen, warum dieses oder das nicht sein soll
Hausentwurf
Von wem stammt die Planung:
-Do-it-Yourself, Bauzeichner
Was gefällt besonders? Warum?
Was gefällt nicht? Warum?
Preisschätzung lt Architekt/Planer:
Persönliches Preislimit fürs Haus, inkl Ausstattung: 500k
favorisierte Heiztechnik:
Wenn Ihr verzichten müsst, auf welche Details/Ausbauten
-könnt Ihr verzichten:
-könnt Ihr nicht verzichten:
Warum ist der Entwurf so geworden, wie er jetzt ist?
wir wollten eine geschlossene Küche und eine Treppe die nicht direkt an der Haustür zum OG geht.
zusätzlich sollte im EG noch ein kleines Büro platz finden.
Anhand der vorgaben des Baufenster wollten wir einen größeren Hauptgarten vorne aber auch einen kleinen Gemütlichen Rückzug Ort hinter dem Haus, beide erreichbar aus dem Wohn / Esszimmer.
zusätzlich war definit ein 2. Eingang durch den Hauswirtschaftsraum gesetzt als Schmutzschleuse.
Das Grundstück im Westen ist zudem das meiner Eltern, dadurch ist die EInfahrt auch in die RIchtung geplant.
Was ist die wichtigste/grundlegende Frage zum Grundriss in 130 Zeichen zusammengefasst?
Bitte um Kritik zu unserem Entwurf.





Größe des Grundstücks 648m²
Grundflächenzahl 0,3
Geschossflächenzahl 0,3
Baufenster, Baulinie und -grenze: Siehe Lageplan
Randbebauung
Anzahl Stellplatz: 1
Geschossigkeit: 1
Dachform Satteldach 42-46°
Stilrichtung
Ausrichtung
Maximale Höhen/Begrenzungen
weitere Vorgaben
Anforderungen der Bauherren
Stilrichtung, Dachform, Gebäudetyp
Keller, Geschosse
Anzahl der Personen, Alter 4 30,29,0,0
Raumbedarf im EG, OG
Büro: Familiennutzung oder Homeoffice? Hobby
Schlafgäste pro Jahr: 1
offene oder geschlossene Architektur: geschlossen
konservativ oder moderne Bauweise: konservativ
offene Küche, Kochinsel egal
Anzahl Essplätze: 8-10
Kamin: Nein
Musik/Stereowand
Balkon, Dachterrasse
Garage, Carport: Holzcarport
Nutzgarten, Treibhausm
weitere Wünsche/Besonderheiten/Tagesablauf, gern auch Begründungen, warum dieses oder das nicht sein soll
Hausentwurf
Von wem stammt die Planung:
-Do-it-Yourself, Bauzeichner
Was gefällt besonders? Warum?
Was gefällt nicht? Warum?
Preisschätzung lt Architekt/Planer:
Persönliches Preislimit fürs Haus, inkl Ausstattung: 500k
favorisierte Heiztechnik:
Wenn Ihr verzichten müsst, auf welche Details/Ausbauten
-könnt Ihr verzichten:
-könnt Ihr nicht verzichten:
Warum ist der Entwurf so geworden, wie er jetzt ist?
wir wollten eine geschlossene Küche und eine Treppe die nicht direkt an der Haustür zum OG geht.
zusätzlich sollte im EG noch ein kleines Büro platz finden.
Anhand der vorgaben des Baufenster wollten wir einen größeren Hauptgarten vorne aber auch einen kleinen Gemütlichen Rückzug Ort hinter dem Haus, beide erreichbar aus dem Wohn / Esszimmer.
zusätzlich war definit ein 2. Eingang durch den Hauswirtschaftsraum gesetzt als Schmutzschleuse.
Das Grundstück im Westen ist zudem das meiner Eltern, dadurch ist die EInfahrt auch in die RIchtung geplant.
Was ist die wichtigste/grundlegende Frage zum Grundriss in 130 Zeichen zusammengefasst?
Bitte um Kritik zu unserem Entwurf.
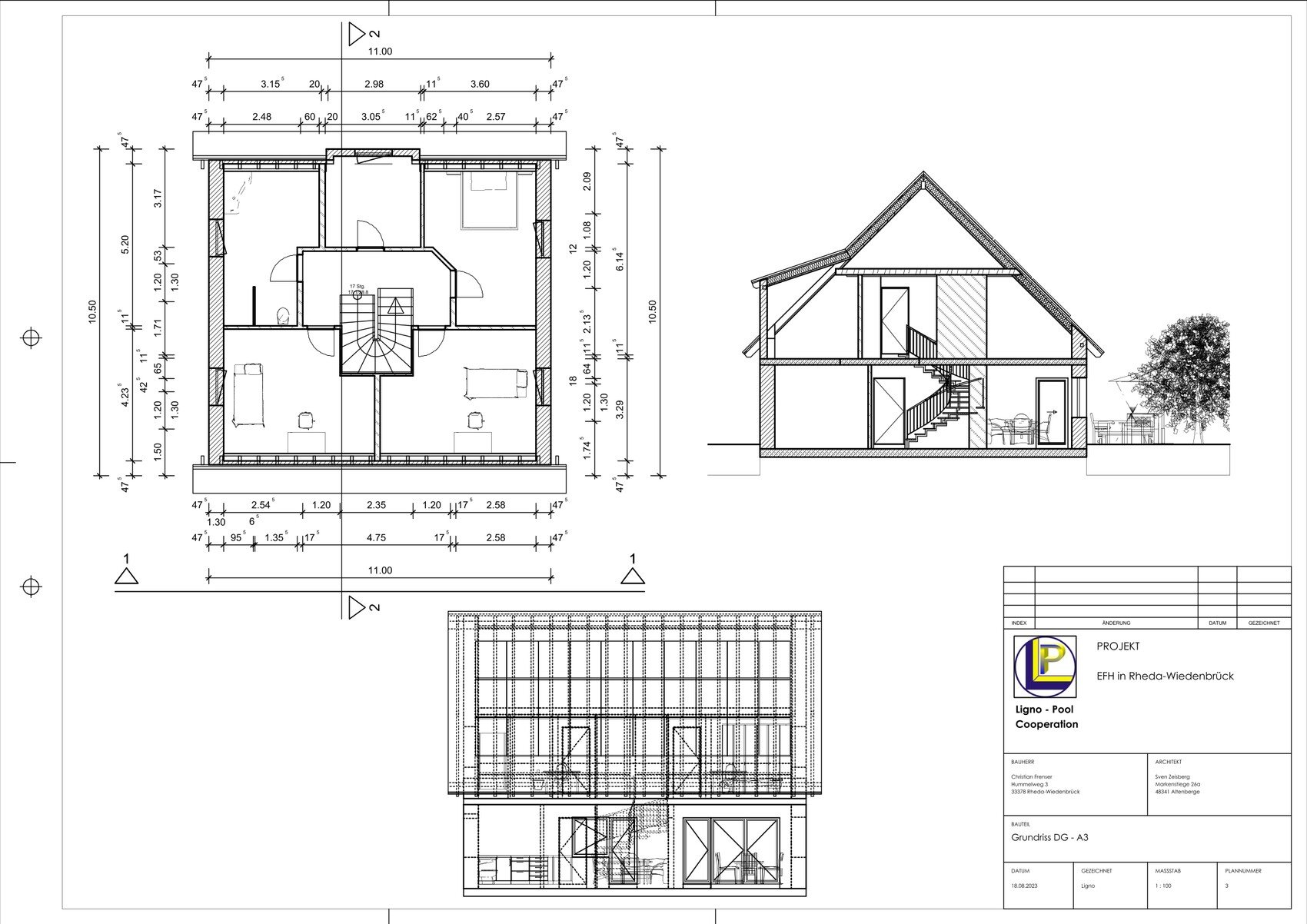
Weshalb ein Bauzeichner- statt Architektenentwurf ?
Mir fallen natürlich als erstes die Phantasiemaße* (einschließlich der Außenwandstärke) auf, und daß ich das Schlafzimmerfenster anders herum anschlagen würde. Sämtliche Fenster sind Dreh ohne Kipp, soll es eine Kontrollierte-Wohnraumlüftung geben ?
Das Bad würde ich konkreter ("möbliert") planen. Was bedeuten die etwa quadratischen kästen im Grundriss, die in etwa um die Treppe und "gegenüber" eingezeichnet sind ? - den "Durchgang" an der Treppe vorbei finde ich "auf Kante genäht".
Ansonsten sehe ich zwar offenbar ein Haus für Leute mit einem anderen Geschmack als ich, aber nichts "Falsches" (aber vielleicht wären das manche Details, die nicht eingezeichnet sind). Für einen Bauzeichner ist das eine recht unordentliche Bemaßung, hat der schon ausgelernt ?
*) erster 11antischer Lehrsatz: Phantasiemaße sind die Keime der Pfuschertaschen !
https://www.instagram.com/11antgmxde/
https://www.linkedin.com/company/bauen-jetzt/
Mir fallen natürlich als erstes die Phantasiemaße* (einschließlich der Außenwandstärke) auf, und daß ich das Schlafzimmerfenster anders herum anschlagen würde. Sämtliche Fenster sind Dreh ohne Kipp, soll es eine Kontrollierte-Wohnraumlüftung geben ?
Das Bad würde ich konkreter ("möbliert") planen. Was bedeuten die etwa quadratischen kästen im Grundriss, die in etwa um die Treppe und "gegenüber" eingezeichnet sind ? - den "Durchgang" an der Treppe vorbei finde ich "auf Kante genäht".
Ansonsten sehe ich zwar offenbar ein Haus für Leute mit einem anderen Geschmack als ich, aber nichts "Falsches" (aber vielleicht wären das manche Details, die nicht eingezeichnet sind). Für einen Bauzeichner ist das eine recht unordentliche Bemaßung, hat der schon ausgelernt ?
*) erster 11antischer Lehrsatz: Phantasiemaße sind die Keime der Pfuschertaschen !
https://www.instagram.com/11antgmxde/
https://www.linkedin.com/company/bauen-jetzt/
H
hanghaus202331.08.23 18:5711ant schrieb:
Weshalb ein Bauzeichner- statt Architektenentwurf ?Weil der Bauzeichner ausreicht um DIY Planung umzusetzen. :phanghaus2023 schrieb:
Weil der Bauzeichner ausreicht um DIY Planung umzusetzen.Wenn eine Reinzeichnung schon eine Umsetzung wäre ...https://www.instagram.com/11antgmxde/
https://www.linkedin.com/company/bauen-jetzt/
Danke schonmal für die Rückmeldungen,
Dies ist erstmal nur ein grober Entwurf,
Wir wollten mit dem Entwurf dann zu den Umliegenden Holzbau Unternehmen gehen und uns Angebote einholen.
Außenwände sind noch nicht genau gezeichnet. Da Holzrahmenbau mit Klinkerfassade wird es bei ca. 450mm Sein.
Kontrollierte-Wohnraumlüftung ist geplant, Fester werden Dreh mit Kipp.
Im Bad bin ich selber noch am gucken wir das mit der Dachschräge und Waschtisch dann auskommt.
Die Kästen haben nichts zu bedeuten, da hat die Software laut Kollegen etwas rumgesponnen beim PDF erstellen.
Mir ging es hierbei darum ob grobe Fehler im Plan sind.
Wenn wir dann mal final alles durchgeplant haben werde ich den Detaillierteren Stand dann gerne hier nochmal posten.
Dies ist erstmal nur ein grober Entwurf,
Wir wollten mit dem Entwurf dann zu den Umliegenden Holzbau Unternehmen gehen und uns Angebote einholen.
Außenwände sind noch nicht genau gezeichnet. Da Holzrahmenbau mit Klinkerfassade wird es bei ca. 450mm Sein.
Kontrollierte-Wohnraumlüftung ist geplant, Fester werden Dreh mit Kipp.
Im Bad bin ich selber noch am gucken wir das mit der Dachschräge und Waschtisch dann auskommt.
Die Kästen haben nichts zu bedeuten, da hat die Software laut Kollegen etwas rumgesponnen beim PDF erstellen.
Mir ging es hierbei darum ob grobe Fehler im Plan sind.
Wenn wir dann mal final alles durchgeplant haben werde ich den Detaillierteren Stand dann gerne hier nochmal posten.
P
Pinkiponk01.09.23 07:41Mein Thema sind, regelmäßig wiederkehrend, Fenster. Meiner Meinung nach hat das Haus zu wenige und zu kleine Fenster. Mir gefällt es, und ich empfinde es als außerordentlich wohltuend, wenn ein Raum von mindestens zwei Seiten Tageslicht erhält.
Selbstverständlich kenne ich das Argument, dass man auch geschlossene Wände braucht, aber ich würde immer andersherum vorgehen: Wieviele Schränke (ziehen oft nur "Geraffelsammelei" nach sich ;-) ), Regale, TV, Bilder brauche ich wirklich und ziehe ich sie dem Blick in den Garten, auf meine Umwelt etc. vor?
Selbstverständlich kenne ich das Argument, dass man auch geschlossene Wände braucht, aber ich würde immer andersherum vorgehen: Wieviele Schränke (ziehen oft nur "Geraffelsammelei" nach sich ;-) ), Regale, TV, Bilder brauche ich wirklich und ziehe ich sie dem Blick in den Garten, auf meine Umwelt etc. vor?
Ähnliche Themen