ᐅ Grundrissdiskussion und Verbesserungsvorschläge
Erstellt am: 25.01.2022 21:09
SoL 25.01.2022 21:09
Moin zusammen,
Wir beginnen mit der Planung einer Alternative zur kostenintensiven Sanierung unseres Hauses. Daher haben wir nun erstmals mit einem GU unserer Wahl gesprochen / gearbeitet.
Ich bitte um offene Kritik, damit uns die nicht beachten Dinge jetzt auffallen und nicht erst beim Bau.
Steckbrief:
Bebauungsplan vorhanden, wenige Einschränkungen, einzug max. Traufhöhe 8m könnte uns Probleme bereiten
Größe des Grundstücks: 710m²
Hang: Nö
Anzahl Stellplatz: 2
Geschossigkeit: 2
Dachform: Walmdach
Stilrichtung: Stadthaus / Stadtvilla
Ausrichtung: Grundstück mit Nordwestlicher Ausrichtung, siehe Anhang
Maximale Höhen/Begrenzungen: 8m Traufhöhe, 5 Meter Abstand zur nördlichen und westlichen Grundstücksgrenze für Gebäude, da Pflanzungen gewünscht
Anforderungen der Bauherren
Stilrichtung, Dachform, Gebäudetyp: Da sind wir flexibel, das Gesamtpaket muss gefallen
Kein Keller, zwei Vollgeschosse
Anzahl der Personen: 6 Personen, 38, 37, 8, 6, 2, 2
Raumbedarf: 5 Schlafzimmer im OG, Wohnzimmer, Esszimmer, Küche, 2 Büros im EG, mind. 2 Duschen
Büro: Beide Büros notwendig, 1 x 100% HomeOffice, pandemieunabhängig, 1 x Lehrerarbeitszimmer
Schlafgäste pro Jahr: 6, können auch woanders schlafen oder in einem der Büros
offene oder geschlossene Architektur: Flexibel
konservativ oder moderne Bauweise: Flexibel
Küche: Gerne offen mit Insel (zum Vorbereiten, nicht zum daran Kochen)
Anzahl Essplätze: 6
Kamin: Vorbereitung für Bollerofen, also Schornstein
2 Carports, keine Garage
Besonderheiten: Drecksschleuse in Hauswirtschaftsraum gewünscht, weil unsere Kinder Dreckspatzen sind. Kinderzimmer möglichst gleich groß (+/-)
Hausentwurf
Von wem stammt die Planung:
-Planer eines Bauunternehmens
Besonders gefällt:
- Einfacher Grundriss
- 2 Büros
- 5 Schlafzimmer auf einer Ebene
- Schlafzimmer etwa gleich groß
- Küche gut möblierbar
- Nicht größer als 200m² (Putzen, Baukosten)
- Passt sehr gut zum Grundstück
- Kurzer Weg für Einkäufe (direkt in Küche)
Gefällt nicht:
- Weg zum Wohnzimmer führt durch Küche
- Rel. viel Verkehrsfläche
- Speisekammer nicht vorhanden
Preisschätzung lt Architekt/Planer: ~440.000€ ohne Malerarbeiten und Bodenbeläge (außer Fliesen, die sind drin für Küche, Diele, Flur EG und Bäder)
Persönliches Preislimit fürs Haus, inkl Ausstattung: 540.000€ inkl. Ausstattung und Baunebenkosten, Grundstück zusätzlich. Kann noch erhöht werden bei Bedarf auf 640.000€
favorisierte Heiztechnik: Wärmepumpe oder Gas
Wenn Ihr verzichten müsst, auf welche Details/Ausbauten
-könnt Ihr verzichten: 1 Büro, falls Schlafzimmer 3 m² größer (Schreibtischecke)
Warum ist der Entwurf so geworden, wie er jetzt ist?
Standardentwurf gefunden, den wir mit rel. wenigen Änderungen unseren Ansprüchen Rechnung tragen lassen konnten.
Was ist die wichtigste/grundlegende Frage zum Grundriss in 130 Zeichen zusammengefasst?
Welche Stolpersteine sehr Ihr im Alltag mit 4 Kindern, die wir nicht betrachtet haben? Was haben wir nicht bedacht?
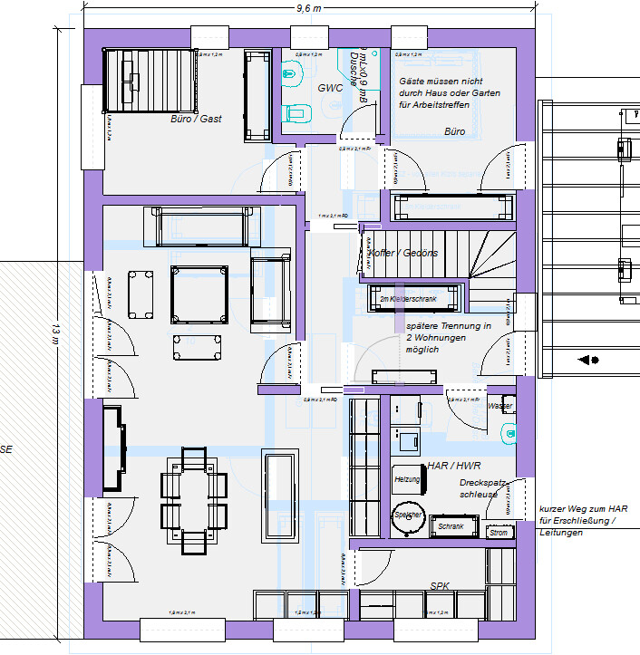
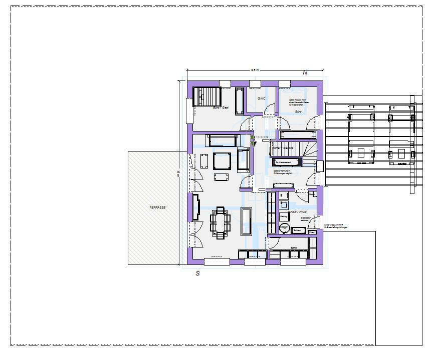
Das Haus soll auf dem Eckgrundstück oben links (eingekreist) geplant werden.
Die Grundrisse sind leider noch händisch geändert, daher die Überarbeitungen meinerseits bzgl. Zimmernamen. Das Gästezimmer ist eigentlich Büro 2... Die Größen der überarbeiteten Räume sind etwaig.
Vielen Dank und viele Grüße
SoL


Wir beginnen mit der Planung einer Alternative zur kostenintensiven Sanierung unseres Hauses. Daher haben wir nun erstmals mit einem GU unserer Wahl gesprochen / gearbeitet.
Ich bitte um offene Kritik, damit uns die nicht beachten Dinge jetzt auffallen und nicht erst beim Bau.
Steckbrief:
Bebauungsplan vorhanden, wenige Einschränkungen, einzug max. Traufhöhe 8m könnte uns Probleme bereiten
Größe des Grundstücks: 710m²
Hang: Nö
Anzahl Stellplatz: 2
Geschossigkeit: 2
Dachform: Walmdach
Stilrichtung: Stadthaus / Stadtvilla
Ausrichtung: Grundstück mit Nordwestlicher Ausrichtung, siehe Anhang
Maximale Höhen/Begrenzungen: 8m Traufhöhe, 5 Meter Abstand zur nördlichen und westlichen Grundstücksgrenze für Gebäude, da Pflanzungen gewünscht
Anforderungen der Bauherren
Stilrichtung, Dachform, Gebäudetyp: Da sind wir flexibel, das Gesamtpaket muss gefallen
Kein Keller, zwei Vollgeschosse
Anzahl der Personen: 6 Personen, 38, 37, 8, 6, 2, 2
Raumbedarf: 5 Schlafzimmer im OG, Wohnzimmer, Esszimmer, Küche, 2 Büros im EG, mind. 2 Duschen
Büro: Beide Büros notwendig, 1 x 100% HomeOffice, pandemieunabhängig, 1 x Lehrerarbeitszimmer
Schlafgäste pro Jahr: 6, können auch woanders schlafen oder in einem der Büros
offene oder geschlossene Architektur: Flexibel
konservativ oder moderne Bauweise: Flexibel
Küche: Gerne offen mit Insel (zum Vorbereiten, nicht zum daran Kochen)
Anzahl Essplätze: 6
Kamin: Vorbereitung für Bollerofen, also Schornstein
2 Carports, keine Garage
Besonderheiten: Drecksschleuse in Hauswirtschaftsraum gewünscht, weil unsere Kinder Dreckspatzen sind. Kinderzimmer möglichst gleich groß (+/-)
Hausentwurf
Von wem stammt die Planung:
-Planer eines Bauunternehmens
Besonders gefällt:
- Einfacher Grundriss
- 2 Büros
- 5 Schlafzimmer auf einer Ebene
- Schlafzimmer etwa gleich groß
- Küche gut möblierbar
- Nicht größer als 200m² (Putzen, Baukosten)
- Passt sehr gut zum Grundstück
- Kurzer Weg für Einkäufe (direkt in Küche)
Gefällt nicht:
- Weg zum Wohnzimmer führt durch Küche
- Rel. viel Verkehrsfläche
- Speisekammer nicht vorhanden
Preisschätzung lt Architekt/Planer: ~440.000€ ohne Malerarbeiten und Bodenbeläge (außer Fliesen, die sind drin für Küche, Diele, Flur EG und Bäder)
Persönliches Preislimit fürs Haus, inkl Ausstattung: 540.000€ inkl. Ausstattung und Baunebenkosten, Grundstück zusätzlich. Kann noch erhöht werden bei Bedarf auf 640.000€
favorisierte Heiztechnik: Wärmepumpe oder Gas
Wenn Ihr verzichten müsst, auf welche Details/Ausbauten
-könnt Ihr verzichten: 1 Büro, falls Schlafzimmer 3 m² größer (Schreibtischecke)
Warum ist der Entwurf so geworden, wie er jetzt ist?
Standardentwurf gefunden, den wir mit rel. wenigen Änderungen unseren Ansprüchen Rechnung tragen lassen konnten.
Was ist die wichtigste/grundlegende Frage zum Grundriss in 130 Zeichen zusammengefasst?
Welche Stolpersteine sehr Ihr im Alltag mit 4 Kindern, die wir nicht betrachtet haben? Was haben wir nicht bedacht?
Das Haus soll auf dem Eckgrundstück oben links (eingekreist) geplant werden.
Die Grundrisse sind leider noch händisch geändert, daher die Überarbeitungen meinerseits bzgl. Zimmernamen. Das Gästezimmer ist eigentlich Büro 2... Die Größen der überarbeiteten Räume sind etwaig.
Vielen Dank und viele Grüße
SoL
Ramona13 25.01.2022 21:21
Ich finde den Grundriss grundsätzlich schön, evtl könnte mit einem Erker bei der Küche Platz gewonnen werden für einen schöneren Durchgang zum Wohnbereich und eine Speisekammer.
Das käme auch der Fläche im OG zu gute, da finde ich persönlich nur 9m2 Badezimmer für 6 Personen kritisch, besonders wenn die Kinder älter werden 😉
Das käme auch der Fläche im OG zu gute, da finde ich persönlich nur 9m2 Badezimmer für 6 Personen kritisch, besonders wenn die Kinder älter werden 😉
matte 25.01.2022 21:34
Hallo,
wo ist denn Norden im Lageplan?
Ich finde die Badgröße problematisch bei 6 Personen.
Ich würde die Galerie streichen, großes Bad für die Kinder mit Badewanne machen dazu dann ein kleines Ensuite Bad im Schlafzimmer der Eltern.
Was auch überlegenswert ist, wäre den Hauswirtschaftsraum (Vorlauf sogar inkl Technik?) ins OG zu legen. Dann wird die Wäsche dort gewaschen, wo sie - zumindest zum Großteil - auch anfällt. Das spart Laufwege.
Das wird aber vom Platz her schon knifflig.
Gut finde ich den großen Eingangsbereich, den Paltz werdet ihr brauchen, aber das wisst ihr vermutlich selbst... 😉
So wirklich gefallen wills mir leider nicht. Ich hab so das Gefühl, dass mit einer anderen Treppenform ne Menge Verkehrsweg im OG eingespart werden könnte...
Den unerwünschten Zugang zum Wohnzimmer über die Küche habt ihr auch.
Die fehlende Speisekammer finde ich nicht tragisch,
Lieber nen Großen Kühlschrank in die Küche integriert und nen Vorratsschrank, da geht genug rein. Selten benötigte Dinge kommen in den Hauswirtschaftsraum.
Ich bin immer wieder verblüfft, wie viel Vorräte wir in unserem Vorratsschrank unter bekommen.
Ich hab Mal ein Bild angehängt, unserer ist nicht mal kopfhoch.
€: Und ein Dachfenster über der Treppe wäre fürs EG vermutlich auch nicht verkehrt. Könnte mir vorstellen, dass das eher dunkel wird im Flur.

wo ist denn Norden im Lageplan?
Ich finde die Badgröße problematisch bei 6 Personen.
Ich würde die Galerie streichen, großes Bad für die Kinder mit Badewanne machen dazu dann ein kleines Ensuite Bad im Schlafzimmer der Eltern.
Was auch überlegenswert ist, wäre den Hauswirtschaftsraum (Vorlauf sogar inkl Technik?) ins OG zu legen. Dann wird die Wäsche dort gewaschen, wo sie - zumindest zum Großteil - auch anfällt. Das spart Laufwege.
Das wird aber vom Platz her schon knifflig.
Gut finde ich den großen Eingangsbereich, den Paltz werdet ihr brauchen, aber das wisst ihr vermutlich selbst... 😉
So wirklich gefallen wills mir leider nicht. Ich hab so das Gefühl, dass mit einer anderen Treppenform ne Menge Verkehrsweg im OG eingespart werden könnte...
Den unerwünschten Zugang zum Wohnzimmer über die Küche habt ihr auch.
Die fehlende Speisekammer finde ich nicht tragisch,
Lieber nen Großen Kühlschrank in die Küche integriert und nen Vorratsschrank, da geht genug rein. Selten benötigte Dinge kommen in den Hauswirtschaftsraum.
Ich bin immer wieder verblüfft, wie viel Vorräte wir in unserem Vorratsschrank unter bekommen.
Ich hab Mal ein Bild angehängt, unserer ist nicht mal kopfhoch.
€: Und ein Dachfenster über der Treppe wäre fürs EG vermutlich auch nicht verkehrt. Könnte mir vorstellen, dass das eher dunkel wird im Flur.
SoL 25.01.2022 21:41
Erstmal danke für Eure Einschätzungen.
Die Bedenken bzgl. Badgröße teile ich, ggf. kann man da das Kind 3 umplanen und den unnötigen Luftraum nutzen, sodass das Bad davon gewinnt.
Danke auch für das Bild, das hemmt meine Bedenken bzgl. Speisekammer und die Kücheninsel haben wir auch noch für Vorräte.
Bzgl. Nordausrichtung: Im oberen Teil des Plans findet man die Flurnummer des angrenzenden Feldes (132/4), das ist genordet. Also ist Norden oben rechts.
Die Bedenken bzgl. Badgröße teile ich, ggf. kann man da das Kind 3 umplanen und den unnötigen Luftraum nutzen, sodass das Bad davon gewinnt.
Danke auch für das Bild, das hemmt meine Bedenken bzgl. Speisekammer und die Kücheninsel haben wir auch noch für Vorräte.
Bzgl. Nordausrichtung: Im oberen Teil des Plans findet man die Flurnummer des angrenzenden Feldes (132/4), das ist genordet. Also ist Norden oben rechts.
NoSchnitzers 25.01.2022 21:50
Ein paar Anregungen von mir, da wir selber zu 6. waren:
- Ich verstehe deine Bedenken bzgl. weg zum Wohnzimmer durch die Küche, würde mir auch so gehen. Wir hatten einen Eingang in die Küche (eher Essbereich) und einen ins Wohnzimmer. Wie der nächste Punkt glaube ich, dass das ruhe in unser Haus gebracht, wenn der der ins oder aus dem Wohnzimmer will nicht durch essen und Küche muss
- Wir konnten damals Küche/-Esszimmer mit einer Schiebetür vom Wohnzimmer trenne. Das war wirklich etwas, dass wir sehr genossen haben. Bei uns war immer viel Trubel, so konnte man das ein bisschen auflösen
- Wir hatten bei uns 2 Duschen, die im EG wurde nie benutzt, von dem her denke ich, dass es ein Bad für 6 Leute reichen kann, allerdings sind wir alles Mädchen, da ist man in der Pubertät vlt. toleranter wie bei "gemischten Geschlechter". Wie schon erwähnt wäre etwas größer wahrscheinlich nicht schlecht.
- Was mir sehr gut gefällt ist, dass alle Schlafzimmer auf einer Ebene sind (da spricht ein Kindheitstraume 😀)
- Ich verstehe deine Bedenken bzgl. weg zum Wohnzimmer durch die Küche, würde mir auch so gehen. Wir hatten einen Eingang in die Küche (eher Essbereich) und einen ins Wohnzimmer. Wie der nächste Punkt glaube ich, dass das ruhe in unser Haus gebracht, wenn der der ins oder aus dem Wohnzimmer will nicht durch essen und Küche muss
- Wir konnten damals Küche/-Esszimmer mit einer Schiebetür vom Wohnzimmer trenne. Das war wirklich etwas, dass wir sehr genossen haben. Bei uns war immer viel Trubel, so konnte man das ein bisschen auflösen
- Wir hatten bei uns 2 Duschen, die im EG wurde nie benutzt, von dem her denke ich, dass es ein Bad für 6 Leute reichen kann, allerdings sind wir alles Mädchen, da ist man in der Pubertät vlt. toleranter wie bei "gemischten Geschlechter". Wie schon erwähnt wäre etwas größer wahrscheinlich nicht schlecht.
- Was mir sehr gut gefällt ist, dass alle Schlafzimmer auf einer Ebene sind (da spricht ein Kindheitstraume 😀)
kbt09 25.01.2022 22:06
Ich sehe da noch keine praktische Küche ... das was da zu sehen ist, ist nicht passend möbliert, auch nicht bemaßt, wenn ich aber von 10,66 m Außenmaß ausgehe, hat die Küche dort gerade mal 3 m Breite und ist auch Durchgangsbereich.
Grundsätzlich sinnvoll wäre es, den Lageplan mal zu vermaßen, echten Nordpfeil rein und auf die Grundrisse dann auch einen Nordpfeil.
Der Vorteil der Treppe mitten im Haus liegt halt darin, dass man im OG wirklich rundum die Räume legen kann. Denn 5 Schlafzimmer und mind. 1 Bad sollten ja alle irgendwie eine Außenwand haben und über den Flur auch erreichbar sein. Auf den Luftraum würde ich aber auch verzichten.
Grundsätzlich sinnvoll wäre es, den Lageplan mal zu vermaßen, echten Nordpfeil rein und auf die Grundrisse dann auch einen Nordpfeil.
Der Vorteil der Treppe mitten im Haus liegt halt darin, dass man im OG wirklich rundum die Räume legen kann. Denn 5 Schlafzimmer und mind. 1 Bad sollten ja alle irgendwie eine Außenwand haben und über den Flur auch erreichbar sein. Auf den Luftraum würde ich aber auch verzichten.
Ähnliche Themen