P
Pacman041129.04.24 13:42Liebe Community,
wir planen zur Zeit die Sanierung eines Einfamilienhaus aus dem Jahr 1974. In diesem Zuge möchten wir ebenfalls die Aufteilung der Räume im EG anpassen. Aktuell ist die Küche in einem Seitenteil des Gebäudes, also längerer Laufweg zum Wohnzimmer / Elternzimmer.
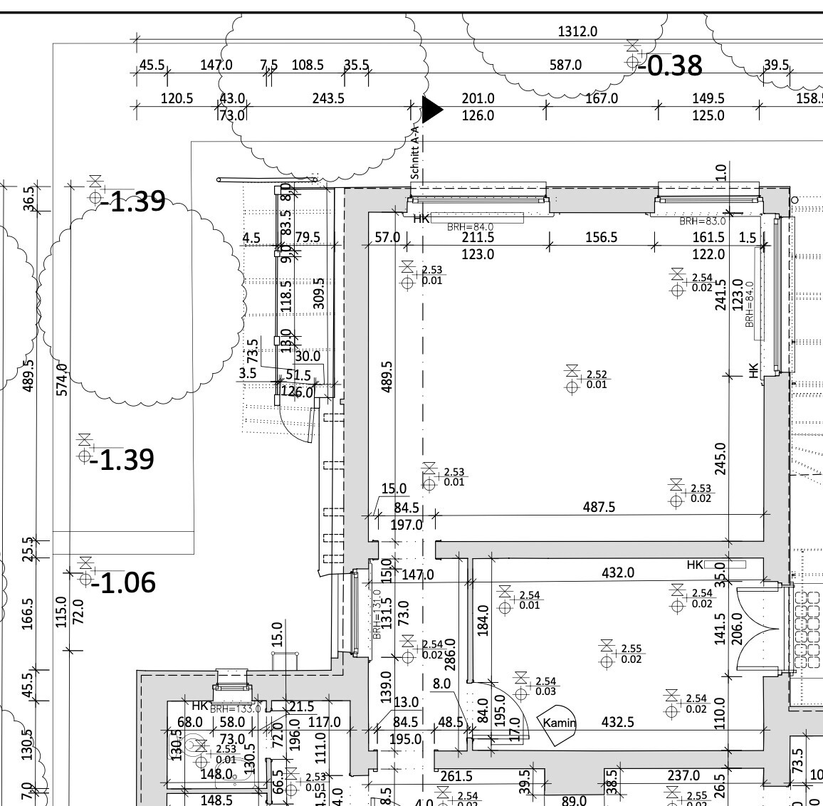
In dem beigefügten Grundriss der Bestandsaufnahme sieht man das aktuelle "Kaminzimmer" und das Wohnzimmer, getrennt durch einen kleinen Flur. Im Kaminzimmer ist die einzige Terrassentür im EG verbaut, daher sollte diese gut zugänglich sein
Wir warten noch die Aufnahme des Statikers ab, ob man evtl die dicke Zwischenwand komplett entfernen könnte bzw inwiefern diese rausgenommen werden kann. Unabhängig davon legen wir uns verschiede Planungsalternativen zugrunde.
Alt. 1.: Die Zwischenwand kann entfernt werden und es kann somit ein großer, offenere Raum erstellt werden (8,10m x 5,87m = 47,5qm). Ich finde diese Größe für einen offenen Wohn-/Esszimmer/ Küche ehrlicherweise nicht sonderlich groß und wüsste nicht, wie ich die 3 Räume drin anordnen sollte. Hättet Ihr da Ideen?
Alt. 2.: Die mittlere Wand kann nicht entfernt werden. Dann würden wir ggfl die Durchgänge versetzen (also die Wand nach links schliessen und rechts an der Terrassentür entlang den Durchgang zum WZ errichten). Der Zugang zu den neuen Räumen würden wir dann auch von links nach recht setzen. Der neue, kleine Raum wäre dann die Küche - allerdings wüssten auch wir hier nicht, wie man die Zimmer und Möbel anordnen könnte, damit Küche, EZ und WZ genug Platz finden.
Hättet Ihr hier auch eine Idee?
Bei Alt. 2 hätten wir Sorge, dass man den Kamin entfernen müsste - das würden wir sehr ungerne, aber wenn es nicht anders geht... (auf der "anderen" Seite des Kaminschacht ist die Eingangsdiele, da fände ich den Kamin weniger praktisch..
Ich freue mich sehr über die Schwarmintelligenz und Eure kreativen Vorschläge.

wir planen zur Zeit die Sanierung eines Einfamilienhaus aus dem Jahr 1974. In diesem Zuge möchten wir ebenfalls die Aufteilung der Räume im EG anpassen. Aktuell ist die Küche in einem Seitenteil des Gebäudes, also längerer Laufweg zum Wohnzimmer / Elternzimmer.
In dem beigefügten Grundriss der Bestandsaufnahme sieht man das aktuelle "Kaminzimmer" und das Wohnzimmer, getrennt durch einen kleinen Flur. Im Kaminzimmer ist die einzige Terrassentür im EG verbaut, daher sollte diese gut zugänglich sein
Wir warten noch die Aufnahme des Statikers ab, ob man evtl die dicke Zwischenwand komplett entfernen könnte bzw inwiefern diese rausgenommen werden kann. Unabhängig davon legen wir uns verschiede Planungsalternativen zugrunde.
Alt. 1.: Die Zwischenwand kann entfernt werden und es kann somit ein großer, offenere Raum erstellt werden (8,10m x 5,87m = 47,5qm). Ich finde diese Größe für einen offenen Wohn-/Esszimmer/ Küche ehrlicherweise nicht sonderlich groß und wüsste nicht, wie ich die 3 Räume drin anordnen sollte. Hättet Ihr da Ideen?
Alt. 2.: Die mittlere Wand kann nicht entfernt werden. Dann würden wir ggfl die Durchgänge versetzen (also die Wand nach links schliessen und rechts an der Terrassentür entlang den Durchgang zum WZ errichten). Der Zugang zu den neuen Räumen würden wir dann auch von links nach recht setzen. Der neue, kleine Raum wäre dann die Küche - allerdings wüssten auch wir hier nicht, wie man die Zimmer und Möbel anordnen könnte, damit Küche, EZ und WZ genug Platz finden.
Hättet Ihr hier auch eine Idee?
Bei Alt. 2 hätten wir Sorge, dass man den Kamin entfernen müsste - das würden wir sehr ungerne, aber wenn es nicht anders geht... (auf der "anderen" Seite des Kaminschacht ist die Eingangsdiele, da fände ich den Kamin weniger praktisch..
Ich freue mich sehr über die Schwarmintelligenz und Eure kreativen Vorschläge.
P
Pacman041129.04.24 16:21kbt09 schrieb:
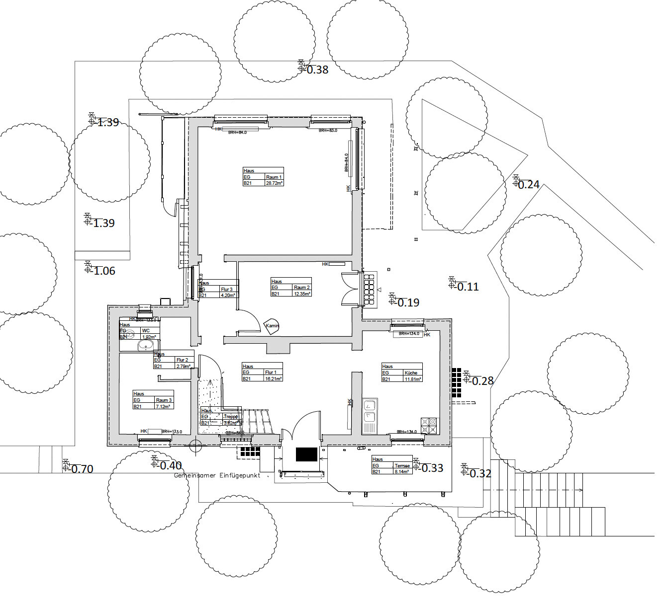
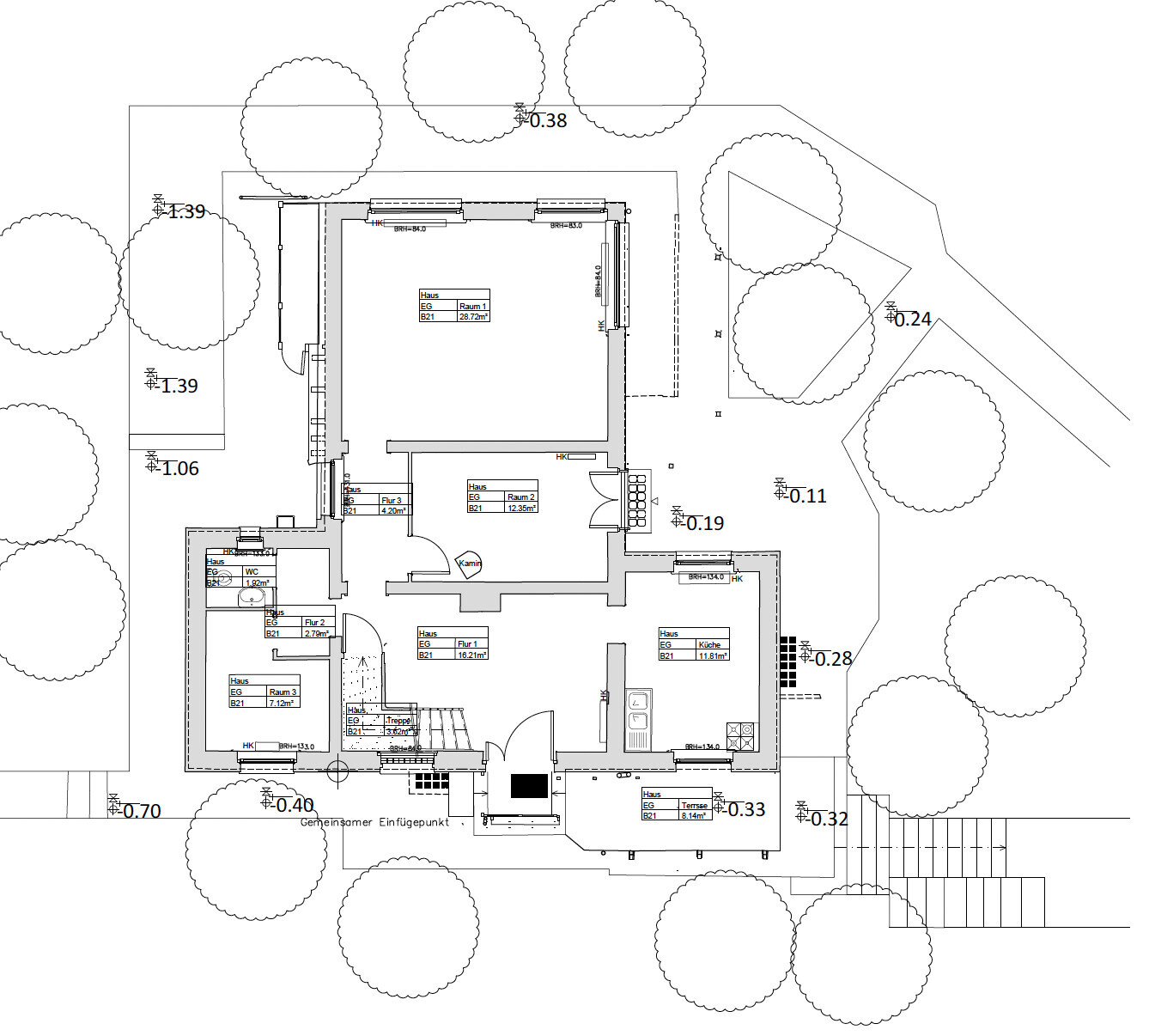
Es wäre vielleicht sinnvoll auch den kompletten EG-Grundriss zu zeigen und den Nordpfeil zu integrieren sowie die Gartenlage.
Und dann die Frage .. werden die Fenster auch saniert? Da wäre es ja evtl. auch möglich aus einem bisherigem Fenster eine Terrassentür zu machen.Anbei habe ich den kompletten Grundriss angehängt. Der Nordpfeil zeigt nach "links", die Terrassentür demnach in den Süden, da wo auch dann die Terrasse sein wird. Ja, die Fenster werden ebenfalls saniert, allerdings hat das Haus eine leichte Hanglage, d.h. unter allen Fenster zum Osten im jetzigen Wohnzimmer ist der Hang, so dass man leider keine Terrassentür machen kann, nur das weitere Fenster zum Süden hin würde theoretisch gehen
Ähnliche Themen