ᐅ Umbau geschlossene in Offene Küche
Erstellt am: 12.02.24 09:05
Hallo Zusammen,
Wir haben vor, unsere geschlossene Küche umzubauen, eine Wand zu entfernen und eine offene Küche zu bauen.
Nun habe ich mir den Kopf zerbrochen, wie wir die Einteilung machen wollen, und finde keine gute Lösung.
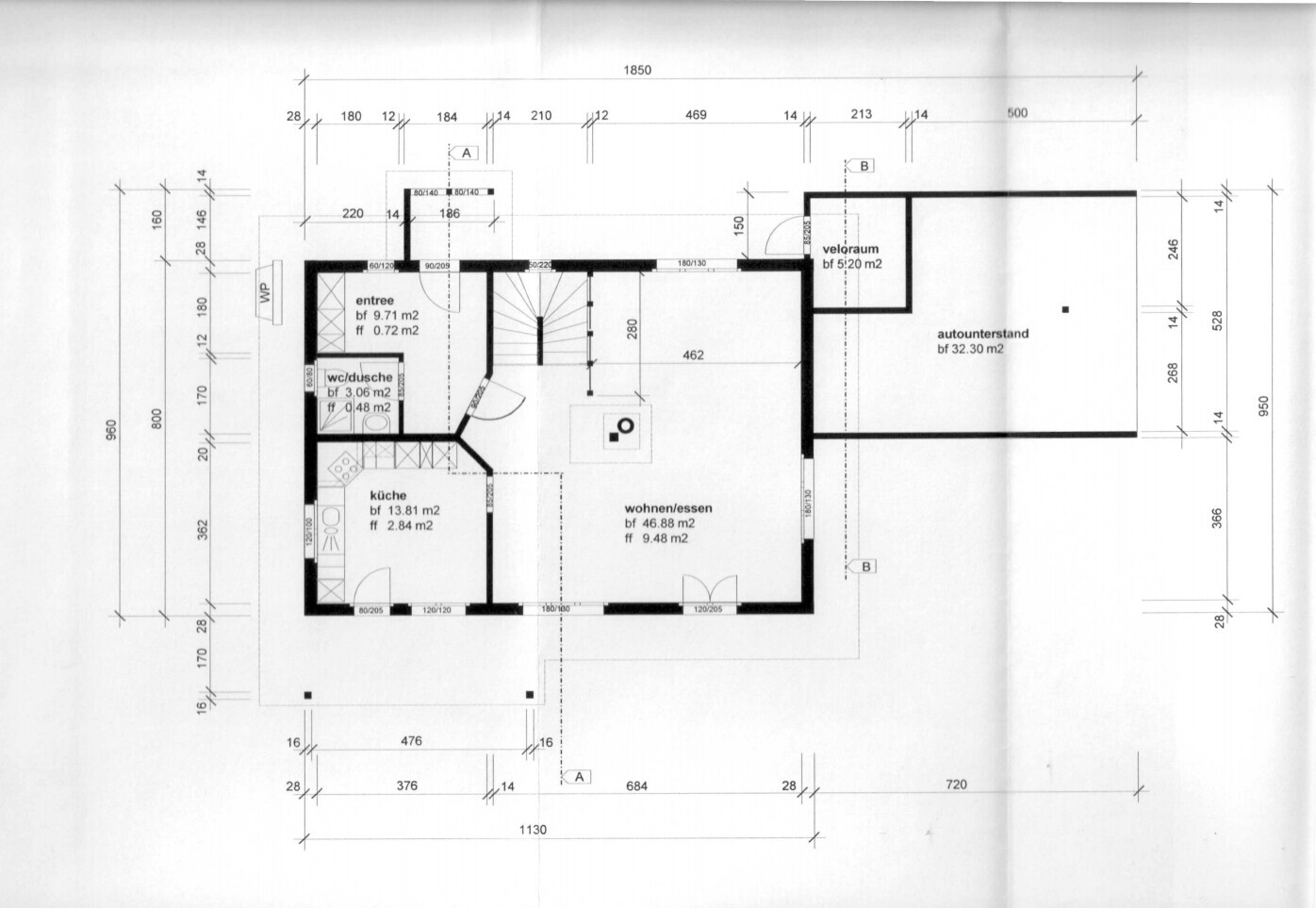
Das wäre der Grundriss.

Heute Kocht man in der "Ecke" oben Links mit dem Rücken gegen den Raum, und wir haben zwei esstische, einen in der Küche mit Eckbank, und einen vor der Küche, dort wo er auch in Zukunft stehen sollte. Die Bodenplatten entsprechen dem "alten" Raum. Wir werden neue Platten legen, d.h. die Elektrik kann gut in die Mitte des Raumes. Theoretisch könnten wir auch andere Leitungen in die Mitte des Raumes ziehen, unter dem Raum ist der Keller, da kann man gut durchbohren.
Ein paar Voraussetzungen gibt es:
- Die Spüle soll dort bleiben so wie heute ist (links am Fenster), u.a. auch wegen den Anschlüssen und der Aussicht beim Spülen.
- Die große Schiebetür unten wird neu gemacht, da kann man noch Änderungen machen, heute besteht der Teil aus einem Fenster und einer Tür. Dort ist auch der Zugang zur Terrasse & Garten. Wir möchten dort eine große Glasfront, damit die Terrasse etwas mehr zum Haus gehört. Davor befindet sich eine Überdachte Terrasse. Ob es eine Schiebetür wird oder eine große Glasfront mit Tür bin ich mir nicht so sicher, optisch wäre ich für eine Schiebetür, aber ich finde die nicht wirklich praktisch - das ist aber ein anderes Thema. Wichtig aber halt für die Küche: Dort ist ein Durchgang nach draußen.
Das ist bisher meine beste Variante:


Die schränke und Geräte müssen nicht genau so (auch nicht die Farbe), es geht erstmal um einen ersten Ansatz für den Grundriss.
Was mir daran nicht gefällt ist vor allem der Mangel an Arbeitsflächen.
Der Durchgang neben dem Kachelofen ist etwas eng, das ist aber schon heute so und lässt sich vermutlich kaum ändern, ausser man stellt den Esstisch viel weiter ins Wohnzimmer - dann werden aber die Wege zu weit.
Habt ihr andere kreative Ideen?
Wir haben vor, unsere geschlossene Küche umzubauen, eine Wand zu entfernen und eine offene Küche zu bauen.
Nun habe ich mir den Kopf zerbrochen, wie wir die Einteilung machen wollen, und finde keine gute Lösung.
Das wäre der Grundriss.
Heute Kocht man in der "Ecke" oben Links mit dem Rücken gegen den Raum, und wir haben zwei esstische, einen in der Küche mit Eckbank, und einen vor der Küche, dort wo er auch in Zukunft stehen sollte. Die Bodenplatten entsprechen dem "alten" Raum. Wir werden neue Platten legen, d.h. die Elektrik kann gut in die Mitte des Raumes. Theoretisch könnten wir auch andere Leitungen in die Mitte des Raumes ziehen, unter dem Raum ist der Keller, da kann man gut durchbohren.
Ein paar Voraussetzungen gibt es:
- Die Spüle soll dort bleiben so wie heute ist (links am Fenster), u.a. auch wegen den Anschlüssen und der Aussicht beim Spülen.
- Die große Schiebetür unten wird neu gemacht, da kann man noch Änderungen machen, heute besteht der Teil aus einem Fenster und einer Tür. Dort ist auch der Zugang zur Terrasse & Garten. Wir möchten dort eine große Glasfront, damit die Terrasse etwas mehr zum Haus gehört. Davor befindet sich eine Überdachte Terrasse. Ob es eine Schiebetür wird oder eine große Glasfront mit Tür bin ich mir nicht so sicher, optisch wäre ich für eine Schiebetür, aber ich finde die nicht wirklich praktisch - das ist aber ein anderes Thema. Wichtig aber halt für die Küche: Dort ist ein Durchgang nach draußen.
Das ist bisher meine beste Variante:
Die schränke und Geräte müssen nicht genau so (auch nicht die Farbe), es geht erstmal um einen ersten Ansatz für den Grundriss.
Was mir daran nicht gefällt ist vor allem der Mangel an Arbeitsflächen.
Der Durchgang neben dem Kachelofen ist etwas eng, das ist aber schon heute so und lässt sich vermutlich kaum ändern, ausser man stellt den Esstisch viel weiter ins Wohnzimmer - dann werden aber die Wege zu weit.
Habt ihr andere kreative Ideen?
H
hanghaus202312.02.24 11:21Die Wand entfernen ist mit einem Fachmann abgesegnet?
Ein Grundriss vom Bestand mit Fenster ist auch hilfreich.
Ein Grundriss vom Bestand mit Fenster ist auch hilfreich.
J
jens.knoedel12.02.24 11:39Bin kein Raumplaner, aber die Idee mit der Kochinsel finde ich quatsch. Die wird einfach zu klein.
schrankwand 60cm + Durchgang jeweils zur Schrankwand und zur Terrassentür jeweils 100cm. Dann bleibt eine Breite von 160cm für die Kochinsel - beim 90er Kochfeld also rechts und links davon jeweils 35cm.
Warum keine U-Form - geöffnet zur Terrassentür und "Eingang" an der Terrassentürseite. Zum Verständnis:

Wo hier links die Schrankwand ist, wäre bei Dir die Terrassentür. Schrankfläche durch auf den Boden gestellte Wandschränke.
schrankwand 60cm + Durchgang jeweils zur Schrankwand und zur Terrassentür jeweils 100cm. Dann bleibt eine Breite von 160cm für die Kochinsel - beim 90er Kochfeld also rechts und links davon jeweils 35cm.
Warum keine U-Form - geöffnet zur Terrassentür und "Eingang" an der Terrassentürseite. Zum Verständnis:
Wo hier links die Schrankwand ist, wäre bei Dir die Terrassentür. Schrankfläche durch auf den Boden gestellte Wandschränke.
Das wäre auch eine Variante, meine Frau meinte aber, dass ihr dann der Laufweg nicht gefällt, da sie mit allem zwischen Tisch und Küche durchlaufen muss und der Weg immer um die Insel herum führt. Die andere Variante wäre gewesen, die Insel an die Außenwand zu machen, aber dann können wir das mit dem großen Fenster vergessen.
J
jens.knoedel12.02.24 13:01NickCH83 schrieb:
Die andere Variante wäre gewesen, die Insel an die Außenwand zu machen, aber dann können wir das mit dem großen Fenster vergessen.Worin unterscheiden sich die Varianten bei den Laufwegen? Klar, rechts statt links herum.Und dann noch ordentlich Kosten, um das Fenster zu verschließen.
jens.knoedel schrieb:
Worin unterscheiden sich die Varianten bei den Laufwegen? Klar, rechts statt links herum.
Und dann noch ordentlich Kosten, um das Fenster zu verschließen.Rechts rum ist da wo man "her" kommt.Im Anhang noch der Plan vom aktuellen Grundriss. Die Wand ist nicht tragend, aber das wird natürlich noch genau abgeklärt.
Ähnliche Themen