ᐅ Grundriss - was sagt Ihr?
Erstellt am: 06.01.15 14:45
Hallo zusammen,
nachdem ich hier einige Zeit still mitgelesen habe ist es bei unserem Hausprojekt soweit, dass wir eigentlich von einem finalem Grundriss sprechen. Da wird es natürlich spannend, ob Ihr Verbesserungsmöglichkeiten seht. Bitte lasst uns Eure Bedenken aber natürlich auch die Dinge, welche Ihr gelungen findet, wissen.
Das Haus wird massiv gebaut und erfüllt KfW70. In Summe kommen wir auf ca. 130m² Wohnfläche. Das Haus soll für uns als kleine Familie mit 2 Erwachsenen und 2 Kindern dienen. Mehr Nachwuchs gibt es nicht
Wir bauen mit Keller und bevorzugen als Heizungssystem eine innen aufgestellte Luft-Wasser-Wärme-Pumpe. Es scheint ein neues Modell von Eco mit einem CoP von 4,0 zu geben. Dazu 300l Wasserspeicher und gut ist. Photovoltaik oder Solar ist vorbereitet, wird aber zum Neubau nicht eingebaut.
Eine Be- und Entlüftung ist nicht geplant - Meinungen dazu?
Die Küche soll über eine Glas-Schiebetüre mit dem Wohn-/Essbereich trennbar sein. So bleiben unerwünschte Gerüche bei Bedarf draußen und es sollte trotzdem hell und groß erscheinen.
Das große Kellerzimmer soll als Partyraum dienen, in dem ein Billardtisch und eine kleine Bar Platz findet. Ebenso soll im Keller der Raum links oben später als Sauna genützt werden können. Deshalb ist dort ein Starkstromanschluss berücksichtigt.
Die Garage ist als große Einzelgarage geplant.
Interessant wäre zu wissen, wie Ihr die Gehwege im Bereich Treppenabgang sowie im Bereich der Türe der Kinderzimmer seht. Kann man mit diesem Raumangebot bzw. Wänden auch sperrige Gegenstände hinein- und hinaus befördern?
Bei Fragen - fragen!
Danke schon einmal im Voraus!
Da der Bildname nicht angezeigt wird:
1. Bild = Untergeschoss, 2. Bild = Erdgeschoss, 3. Bild = Obergeschoss

nachdem ich hier einige Zeit still mitgelesen habe ist es bei unserem Hausprojekt soweit, dass wir eigentlich von einem finalem Grundriss sprechen. Da wird es natürlich spannend, ob Ihr Verbesserungsmöglichkeiten seht. Bitte lasst uns Eure Bedenken aber natürlich auch die Dinge, welche Ihr gelungen findet, wissen.
Das Haus wird massiv gebaut und erfüllt KfW70. In Summe kommen wir auf ca. 130m² Wohnfläche. Das Haus soll für uns als kleine Familie mit 2 Erwachsenen und 2 Kindern dienen. Mehr Nachwuchs gibt es nicht
Wir bauen mit Keller und bevorzugen als Heizungssystem eine innen aufgestellte Luft-Wasser-Wärme-Pumpe. Es scheint ein neues Modell von Eco mit einem CoP von 4,0 zu geben. Dazu 300l Wasserspeicher und gut ist. Photovoltaik oder Solar ist vorbereitet, wird aber zum Neubau nicht eingebaut.
Eine Be- und Entlüftung ist nicht geplant - Meinungen dazu?
Die Küche soll über eine Glas-Schiebetüre mit dem Wohn-/Essbereich trennbar sein. So bleiben unerwünschte Gerüche bei Bedarf draußen und es sollte trotzdem hell und groß erscheinen.
Das große Kellerzimmer soll als Partyraum dienen, in dem ein Billardtisch und eine kleine Bar Platz findet. Ebenso soll im Keller der Raum links oben später als Sauna genützt werden können. Deshalb ist dort ein Starkstromanschluss berücksichtigt.
Die Garage ist als große Einzelgarage geplant.
Interessant wäre zu wissen, wie Ihr die Gehwege im Bereich Treppenabgang sowie im Bereich der Türe der Kinderzimmer seht. Kann man mit diesem Raumangebot bzw. Wänden auch sperrige Gegenstände hinein- und hinaus befördern?
Bei Fragen - fragen!
Danke schon einmal im Voraus!
Da der Bildname nicht angezeigt wird:
1. Bild = Untergeschoss, 2. Bild = Erdgeschoss, 3. Bild = Obergeschoss
Der Hersteller der Luft-Wasser-Wärmepumpe ist Elco...
Eine Frage hätte ich noch zur eingeplanten Treppe.
Favorisieren würde ich eigentlich eine 1/4 gewendelte Treppe von EG ins OG und eine 1/2 gewendelte Treppe von EG ins UG. Die 1/2 gewendelte Treppe bevorzuge ich aufgrund des geringeren Platzbedarfes, so dass damit der gesamte Dielenbereich um ca. 40cm kleiner ausfallen würde. Mein Häuslesbauer meint das gehe aufgrund der Statik nicht. Irgendwie sind seine Ausführungen aber sehr allgemein.
Deshalb die Frage - ist eine Kombination aus 1/4 und 1/2 gewendelte Treppe sinnvoll und wirtschaftlich möglich?
Eine Frage hätte ich noch zur eingeplanten Treppe.
Favorisieren würde ich eigentlich eine 1/4 gewendelte Treppe von EG ins OG und eine 1/2 gewendelte Treppe von EG ins UG. Die 1/2 gewendelte Treppe bevorzuge ich aufgrund des geringeren Platzbedarfes, so dass damit der gesamte Dielenbereich um ca. 40cm kleiner ausfallen würde. Mein Häuslesbauer meint das gehe aufgrund der Statik nicht. Irgendwie sind seine Ausführungen aber sehr allgemein.
Deshalb die Frage - ist eine Kombination aus 1/4 und 1/2 gewendelte Treppe sinnvoll und wirtschaftlich möglich?
J
Jochen10406.01.15 15:53Hallo,
ein paar Anmerkungen beim ersten Drüberschauen:
Deine Treppe sieht sehr kurz und somit steil aus. Das solltest du dir noch mal genauer anschauen.
Die Fenster sehen sehr unterschiedlich im EG und OG aus. Hast du dir mal Ansichten angeschaut bzw. kannst du diese hier noch einstellen?
Wie ist die Ausrichtung des Hauses? Wo ist Norden?
Technik und Wäsche kommt in den Keller? Wo wird die Wäsche getrocknet? Beachte Lüftungsmöglichkeiten und Anschlüsse im Keller.
Garderobe im Flur könnte auch schon fast etwas eng werden.
Ansonsten das übliche... Treppe im Schmutzbereich, kein Stellplatz hinter den Türen.
Die Fenster direkt neben bzw. hinter der Couch finde ich auch nicht gerade praktisch. Fenster über der Kochinsel auch nicht. Um auf die Terrasse zu kommen, musst du immer die Stühle weg rücken.
Warum die doppelte Wand an Haus und Garage?
ein paar Anmerkungen beim ersten Drüberschauen:
Deine Treppe sieht sehr kurz und somit steil aus. Das solltest du dir noch mal genauer anschauen.
Die Fenster sehen sehr unterschiedlich im EG und OG aus. Hast du dir mal Ansichten angeschaut bzw. kannst du diese hier noch einstellen?
Wie ist die Ausrichtung des Hauses? Wo ist Norden?
Technik und Wäsche kommt in den Keller? Wo wird die Wäsche getrocknet? Beachte Lüftungsmöglichkeiten und Anschlüsse im Keller.
Garderobe im Flur könnte auch schon fast etwas eng werden.
Ansonsten das übliche... Treppe im Schmutzbereich, kein Stellplatz hinter den Türen.
Die Fenster direkt neben bzw. hinter der Couch finde ich auch nicht gerade praktisch. Fenster über der Kochinsel auch nicht. Um auf die Terrasse zu kommen, musst du immer die Stühle weg rücken.
Warum die doppelte Wand an Haus und Garage?
Bemaße die 1/4 gewendelte Treppe mal und sage an, welche Stufenhöhe und welche Auftrittstiefe du gerechnet hast. Rein von der Aufsicht her sieht es aktuell so aus, als wenn das Max. eine recht steile Treppe wird.
Dann fehlen Angaben zum Dach und zur Lage (wo ist Norden?), Kniestockhöhe, 2m-Linie im Dachgeschoss. Wenn nämlich Satteldach quer und z. B. Kniestockhöhe nur ca. 100 cm, dann wird man wohl aus der Dusche nur im Kriechgang rauskommen.
Beschriftung der Räume wäre auch gut. Z. B. OG links ... Elternschlafzimmer? Dann paßt da kaum ein Kleiderschrank hin. Er würde ins Fenster reichen und könnte Max. 300 cm lang sein.
Dann fehlen Angaben zum Dach und zur Lage (wo ist Norden?), Kniestockhöhe, 2m-Linie im Dachgeschoss. Wenn nämlich Satteldach quer und z. B. Kniestockhöhe nur ca. 100 cm, dann wird man wohl aus der Dusche nur im Kriechgang rauskommen.
Beschriftung der Räume wäre auch gut. Z. B. OG links ... Elternschlafzimmer? Dann paßt da kaum ein Kleiderschrank hin. Er würde ins Fenster reichen und könnte Max. 300 cm lang sein.
Super, dass sowas hier so schnell geht. Danke schon einmal!
Erst einmal noch die Standarddaten:
Kniestock: 1,80m
Dach: 38 Grad Satteldach
Dachfirst: parallel zur durchgehenden Wand im OG
Ausrichtung:
- Südlage EG: Esszimmer und Küche
- Südlage OG: Kinderzimmer
- Ostlage EG: Garage
Bezüglich der gestellten Fragen:
Treppe: Diese ist in der Zeichnung tatsächlich zu kurz. Da ich die Standardtreppe aus dem Programm verwendet habe, bin ich davon ausgegangen, dass das passt. Wird noch mal geändert. Treppenbreite soll 1,2m sein. Hhhm, ich sehe schon dass ich da wahrscheinlich noch mal Rechtsanwältin muss.
Technik und Wäsche: Wird im Keller berücksichtigt
Türe zur Terrasse: Ist eine Hebe-Schiebe-Türe und der Essbereich kann auch noch etwas nach oben gezogen werden. Platzbedarf wäre aus meiner Sicht ok?
Fenster: Das Programm gibt hier keine andere Möglichkeiten her. Deshalb wäre es gut nur die Position zu bewerten.
Fenster: Warum kein Fenster direkt über der Couch und über der Kochstelle?
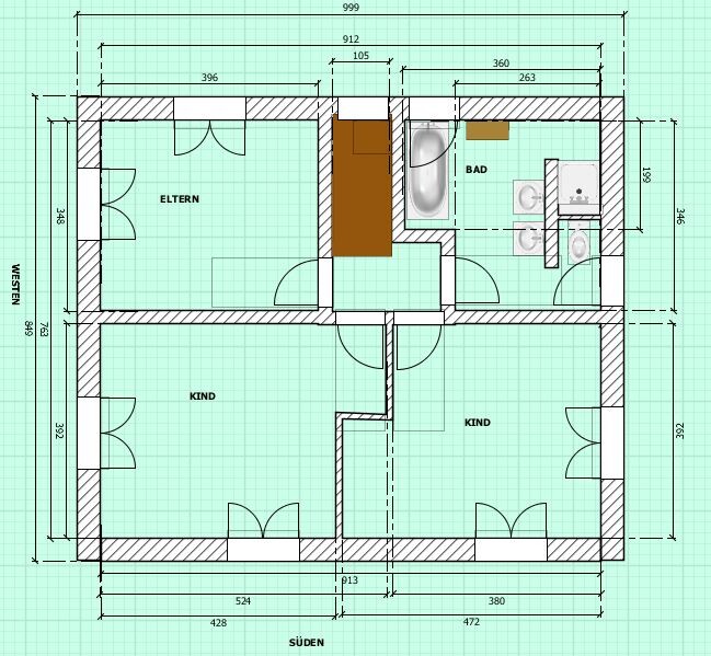
Elternschlafzimmer: oben links ist tatsächlich das Elternschlafzimmer. Da wir ein sehr hoch bauendes Bett haben haben wir unter diesem relativ viel Staufläche für Saisonklamotten. Deshalb reicht uns momentan ein 3m schrank(*) eigentlich gut aus. Sollte hier mehr für´s älter werden berücksichtigt werden?
Türen: Stellplatz dahinter --> ist das praktisch? für was?
Hier noch die Grundriss mit Beschriftung


Erst einmal noch die Standarddaten:
Kniestock: 1,80m
Dach: 38 Grad Satteldach
Dachfirst: parallel zur durchgehenden Wand im OG
Ausrichtung:
- Südlage EG: Esszimmer und Küche
- Südlage OG: Kinderzimmer
- Ostlage EG: Garage
Bezüglich der gestellten Fragen:
Treppe: Diese ist in der Zeichnung tatsächlich zu kurz. Da ich die Standardtreppe aus dem Programm verwendet habe, bin ich davon ausgegangen, dass das passt. Wird noch mal geändert. Treppenbreite soll 1,2m sein. Hhhm, ich sehe schon dass ich da wahrscheinlich noch mal Rechtsanwältin muss.
Technik und Wäsche: Wird im Keller berücksichtigt
Türe zur Terrasse: Ist eine Hebe-Schiebe-Türe und der Essbereich kann auch noch etwas nach oben gezogen werden. Platzbedarf wäre aus meiner Sicht ok?
Fenster: Das Programm gibt hier keine andere Möglichkeiten her. Deshalb wäre es gut nur die Position zu bewerten.
Fenster: Warum kein Fenster direkt über der Couch und über der Kochstelle?
Elternschlafzimmer: oben links ist tatsächlich das Elternschlafzimmer. Da wir ein sehr hoch bauendes Bett haben haben wir unter diesem relativ viel Staufläche für Saisonklamotten. Deshalb reicht uns momentan ein 3m schrank(*) eigentlich gut aus. Sollte hier mehr für´s älter werden berücksichtigt werden?
Türen: Stellplatz dahinter --> ist das praktisch? für was?
Hier noch die Grundriss mit Beschriftung
Ja, Stellplatz hinter der Tür ist praktisch: z.B. für einen Schrank. Dann kann nämlich die gesamte Breite für nen Schrank genutzt werden.
Fenster und Kochplatz: stell dir mal die Dunstabzugshaube über dem Herd vor und dann fragst du dich, wie es aussieht, wenn da noch ein Fenster dahinter ist und wie du das Fenster überhaupt öffnest
Wo ist denn im Schlafi das Bett geplant? Unter dem Fenster?
Fenster und Kochplatz: stell dir mal die Dunstabzugshaube über dem Herd vor und dann fragst du dich, wie es aussieht, wenn da noch ein Fenster dahinter ist und wie du das Fenster überhaupt öffnest
Wo ist denn im Schlafi das Bett geplant? Unter dem Fenster?
Ähnliche Themen