Grundriss und Ausrichtung des Hauses - Eure Meinung dazu?

4,30 Stern(e) 6 Votes
Zuletzt aktualisiert 10.10.2025
Sie befinden sich auf der Seite 2 der Diskussion zum Thema: Grundriss und Ausrichtung des Hauses - Eure Meinung dazu?
>> Zum 1. Beitrag <<

Y

ypg

ypg, jetzt hast du doch glatt vergessen zu kritisieren, dass es vom Flur keinen direkten Zugang zur Küche gibt?
Damit ist das Haus jetzt nahezu unbewohnbar... oder so...
Nein!

Nein, weil a) ich bin hier nicht angestellt, um Euch mit Antworten vorzugreifen oder überhaupt etwas zum Thema zu posten.

Nein, weil b) ich habe nichts vergessen!

Nein, weil c) es geht nicht grundsätzlich um ein Muss eines direkten Zugangs von Flur zur Küche

Nein, weil d) es ist ein kurzer Weg von Flur/Hauswirtschaftsraum/Küche vorhanden

Für Dich noch mal: e) Man muss einen Entwurf immer im Ganzen betrachten. Man kann nicht mit einer Auflistung oder Tabelle abhaken, dass etwas im Haus geplant wird oder nicht. Das gilt auch für Planungen, die auf Vergleiche mit anderen Wohnungen (dort muss der Schrank hin/ da braucht es nichts, das haben wir jetzt auch nicht) basieren.
Leider haben wir schon zu oft von Dir gelesen und es Dir auch zu verstehen gegeben - nur fruchtet es bei Dir nicht. So werden auch Deine Versuche sehr wahrscheinlich immer der berechtigten Kritik ausgesetzt sein, als wie hier zu sehen: ein gelungener Entwurf, der freundlich wirkt und nach mehreren Wochen gewachsen ist.
 
G

Grym

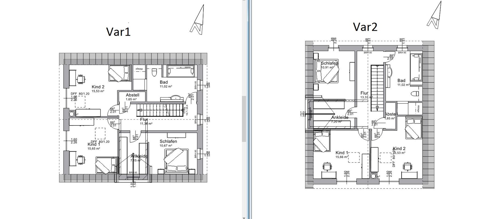
Ich sehe gerade noch: Spitzboden ausbauen? Da nur ein Vollgeschoss erlaubt ist, dürft ihr vermutlich nicht zu viel Drempel bauen, oder? Je nach Dachneigung entsteht dann auch kein großer Spitzboden mehr. Habt ihr das schon mal genauer rechnen lassen?

Die Ankleide ist tendenziell ein paar cm zu klein in der Breite.
 
Salomea

Salomea

Also den Drempel haben wir mit 1m geplant (Dachneigung 45°)...mehr ist dann aufgrund der einzuhaltenden Eingeschossigkeit nicht drin.
Wir wollten den Spitzboden aufteilen in ein kleines Arbeitszimmer (PC+evtl. kleine Gästecouch) und den Rest als Abstellraum.
Den Zugang zum Schlafzimmer haben wir nun über die Ankleide geändert.

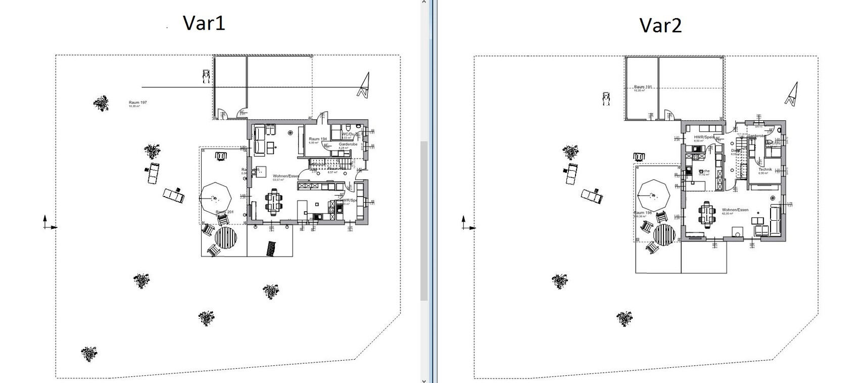
Wir schwanken jetzt zwischen 2 Varianten wie wir das Haus auf dem Grundstück stellen könnten (Anmerkung: Straße im Süden nur ein Rad/Fußweg)

Vor-und Nachteile die wir sehen:

Var1 (Giebel in Ost-West-Richtung):
- Dachfläche gen Süden für später mögliche Photovoltaikanlage
- separat gestaltbarer Eingangsbereich/Zufahrt Garage
- überdachter Nebeneingang über Carport
- Wohn-Essbereich in Richtung Feldrandlage (Westen)

Var2 (Giebel ind Nord-Süd-Richtung):
- Ausrichtung lange Hausfront an Straße (Ost) wirkt harmonischer
- Gartengestaltung --> "größere Schutzecke" durch Haus-Carport-Position
- kurzer Weg Carport in Speis bzw. Küche --> Einkauf
- Kinderzimmer gen Süden (Helligkeit)

Habt ihr noch Hinweise die wir noch nicht beachtet haben?
Wo seht ihr Vor-/Nachteile und welche Variante würdet ihr wählen?

Danke schon mal vorab.


Zwei Ansichten eines roten Backsteinhauses mit blauem Dach, Garten, Zaun und Carport.

Zwei 3D-Hausmodelle mit Garten, Terrasse und Hecken – Var1 und Var2.

Zwei Ansichten eines Hausgrundstücks von oben: Var1 und Var2 mit Garten und Zufahrt.

Beide Grundrisse Var1 und Var2 eines Hauses mit Wohnzimmer, Küche, Schlafzimmern und Garten.

Grundriss eines Hauses: Schlafzimmer, zwei Kinderzimmer, Bad, Flur, Ankleide (Var1/Var2).
 
Y

ypg

Variante 1 erscheint mir gefälliger. Ich mag Eingangstüren, die den Ankommenden, Besuchern oder Vorbeigehenden anlachen
Nebenbei profitieren auch die anderen Räume davon.
 
Zuletzt aktualisiert 10.10.2025
Im Forum Grundrissplanung / Grundstücksplanung gibt es 2513 Themen mit insgesamt 87222 Beiträgen


Ähnliche Themen zu Grundriss und Ausrichtung des Hauses - Eure Meinung dazu?
Nr.ErgebnisBeiträge
11. Entwurf Grundriss Einfamilienhaus 150 qm 50
2Einfamilienhaus, ~160m², Bauhausstil; Erster Entwurf nach unseren Wünschen - Seite 3420
3Grundriss-Entwurf für Einfamilienhaus 135 qm - Ideen und Ratschläge gesucht - Seite 529
4Fliesen oder Vinyl in Küche und Flur 19
5Grundriss Einfamilienhaus OWL ca. 150qm mit Ostgarten - Seite 14175
6Wohnen/Essen/Küche: Wie wohnt ihr oder werdet ihr wohnen? - Seite 852
7Entwurf Einfamilienhaus mit Garage/Carport - bitte um Bewertung 22
8Grundrissplanung 4-Giebel Haus Herrengiebel Doppelgarage - Seite 212
9Planung unseres Einfamilienhaus - Was meint ihr zum Entwurf? - Seite 656
10Erster Entwurf Einfamilienhaus 150m² mit Keller 38
11Haus-Entwurf Einfamilienhaus - Zukünftig als Zweifamilienhaus trennbar - Seite 572
12Erster Entwurf Grundriss Einfamilienhaus (ca. 200qm) - Bitte um Feedback 46
13Grundrissplanung / Entwurf Einfamilienhaus Flachdach mit Doppelgarage 87
14Grundrissplanung: Flur im EG breit genug? - Seite 357
15Entwurf Einfamilienhaus mit ca. 168m² Feedback - Seite 537
16Einfamilienhaus Entwurf mit Satteldach am Rand vom Baugebiet - Seite 540
17Neubau Einfamilienhaus ca.220qm, 2. Entwurf Stadtvilla - Seite 259
18Entwurf Grundriss Einfamilienhaus (als Zweifamilienhaus im Alter möglich) in Hanglage - Seite 753
19Hausbau 2.0 - erster Grundriss-Entwurf 155
20Grundriss 120 m², Einfamilienhaus 1,5, Carport. Meinungen, Ideen, Vorschläge 42

Oben