Sehr geehrte Forummitglieder,
lese schon recht lange mit und finde die tollen Ratschläge super. Diese haben uns auch immens bei unserem neuem Grundriss geholfen.
Wir bauen in Österreich unser zweites Haus, da das erste etwas zu klein ist und würden uns über jeder konstruktive Kritik sehr freuen.
Bebauungsplan/Einschränkungen
Größe des Grundstücks: 590m²
Hang: nein
Grundflächenzahl: max. 206m² bebaubar
Geschossflächenzahl: gibt es in AT nicht, 6,5m Höhe
Baufenster, Baulinie und -grenze
Randbebauung: gekuppelte Bauweise an rechten Nachbar
Anzahl Stellplatz: 2
Geschossigkeit: 2 Vollgeschosse
Dachform: Flachdach
Stilrichtung: Modern
Ausrichtung: Süden
Maximale Höhen/Begrenzungen: 6,5m, 206m² Bebaubar, 100m2 für Carport, Abstellräume, Fahrräder etc. zusätzlich
weitere Vorgaben
Anforderungen der Bauherren
Stilrichtung, Dachform, Gebäudetyp: modern, Flachdach
Keller, Geschosse: EG, OG ohne Keller
Anzahl der Personen, Alter: 2 Erwachsene, 3 Kinder (5, 2, am Weg)
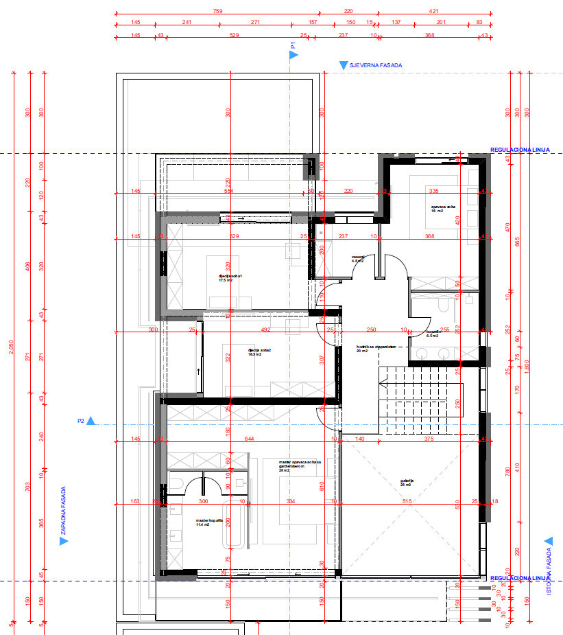
Raumbedarf im EG, OG: ca. 120m²
Büro: Familiennutzung oder Homeoffice? ein Zimmer im EG für Arbeitsplatz und Gäste
Schlafgäste pro Jahr: sehr oft (Familie meiner Frau kommt zu Besuch relativ oft aus dem Ausland)
offene oder geschlossene Architektur: offene
konservativ oder moderne Bauweise: modern
offene Küche, Kochinsel: ja
Anzahl Essplätze: 8-10
Kamin: ja
Musik/Stereowand: nein
Balkon, Dachterrasse: ja
Garage, Carport: Carport
Nutzgarten, Treibhaus
weitere Wünsche/Besonderheiten/Tagesablauf, gern auch Begründungen, warum dieses oder das nicht sein soll
Hausentwurf
Von wem stammt die Planung: -Architekt
Was gefällt besonders? Warum? offenes Wohnzimmer mit Galerie, Esszimmer und große Küche nach Süden, viel Licht, großer Carport, Außenküche als Verlängerung zum Essbereich für den Sommer
Was gefällt nicht? Warum? Wir sind mit der Belichtung der Kinderzimmer unsicher da West und Nord Fenster
Preisschätzung laut Architekt/Planer: 1000k ohne Baunebenkosten
Persönliches Preislimit fürs Haus, inkl. Ausstattung: 1000k
favorisierte Heiztechnik: Luftwärmepumpe im Technikraum
Wenn Ihr verzichten müsst, auf welche Details/Ausbauten
-könnt Ihr verzichten: Spa-Bereich mit Sauna und Jacuzzi, eventuell Galerie im Wohnzimmer
-könnt Ihr nicht verzichten: Wohnzimmer, Esszimmer, Schlafzimmer mit Ankleideraum
Warum ist der Entwurf so geworden, wie er jetzt ist? ZB
Entsprechende/Welche Wünsche wurden vom Architekten umgesetzt







lese schon recht lange mit und finde die tollen Ratschläge super. Diese haben uns auch immens bei unserem neuem Grundriss geholfen.
Wir bauen in Österreich unser zweites Haus, da das erste etwas zu klein ist und würden uns über jeder konstruktive Kritik sehr freuen.
Bebauungsplan/Einschränkungen
Größe des Grundstücks: 590m²
Hang: nein
Grundflächenzahl: max. 206m² bebaubar
Geschossflächenzahl: gibt es in AT nicht, 6,5m Höhe
Baufenster, Baulinie und -grenze
Randbebauung: gekuppelte Bauweise an rechten Nachbar
Anzahl Stellplatz: 2
Geschossigkeit: 2 Vollgeschosse
Dachform: Flachdach
Stilrichtung: Modern
Ausrichtung: Süden
Maximale Höhen/Begrenzungen: 6,5m, 206m² Bebaubar, 100m2 für Carport, Abstellräume, Fahrräder etc. zusätzlich
weitere Vorgaben
Anforderungen der Bauherren
Stilrichtung, Dachform, Gebäudetyp: modern, Flachdach
Keller, Geschosse: EG, OG ohne Keller
Anzahl der Personen, Alter: 2 Erwachsene, 3 Kinder (5, 2, am Weg)
Raumbedarf im EG, OG: ca. 120m²
Büro: Familiennutzung oder Homeoffice? ein Zimmer im EG für Arbeitsplatz und Gäste
Schlafgäste pro Jahr: sehr oft (Familie meiner Frau kommt zu Besuch relativ oft aus dem Ausland)
offene oder geschlossene Architektur: offene
konservativ oder moderne Bauweise: modern
offene Küche, Kochinsel: ja
Anzahl Essplätze: 8-10
Kamin: ja
Musik/Stereowand: nein
Balkon, Dachterrasse: ja
Garage, Carport: Carport
Nutzgarten, Treibhaus
weitere Wünsche/Besonderheiten/Tagesablauf, gern auch Begründungen, warum dieses oder das nicht sein soll
Hausentwurf
Von wem stammt die Planung: -Architekt
Was gefällt besonders? Warum? offenes Wohnzimmer mit Galerie, Esszimmer und große Küche nach Süden, viel Licht, großer Carport, Außenküche als Verlängerung zum Essbereich für den Sommer
Was gefällt nicht? Warum? Wir sind mit der Belichtung der Kinderzimmer unsicher da West und Nord Fenster
Preisschätzung laut Architekt/Planer: 1000k ohne Baunebenkosten
Persönliches Preislimit fürs Haus, inkl. Ausstattung: 1000k
favorisierte Heiztechnik: Luftwärmepumpe im Technikraum
Wenn Ihr verzichten müsst, auf welche Details/Ausbauten
-könnt Ihr verzichten: Spa-Bereich mit Sauna und Jacuzzi, eventuell Galerie im Wohnzimmer
-könnt Ihr nicht verzichten: Wohnzimmer, Esszimmer, Schlafzimmer mit Ankleideraum
Warum ist der Entwurf so geworden, wie er jetzt ist? ZB
Entsprechende/Welche Wünsche wurden vom Architekten umgesetzt
S
Sunshine38707.11.23 09:42Sehr schickes Haus. Ich würde bei dem Budget aber wenigstens eine Garage einplanen…
C
Costruttrice07.11.23 10:13Ich kann die Grundrisse leider nicht richtig erkennen, daher kann ich dazu nichts sagen. Die Ansichten sind toll, ganz nach meinem Geschmack.
Bei uns war jetzt auch beim 2. Haus wieder Satteldach vom Bebauungsplan vorgegeben, daher bin ich immer ein bisschen neidisch, wenn ich so eine Planung sehe 😉
Budget soll inkl Pool und Spa-Bereich sein? Das könnte meiner aktuellen Erfahrung nach knapp werden.
Bei uns war jetzt auch beim 2. Haus wieder Satteldach vom Bebauungsplan vorgegeben, daher bin ich immer ein bisschen neidisch, wenn ich so eine Planung sehe 😉
Budget soll inkl Pool und Spa-Bereich sein? Das könnte meiner aktuellen Erfahrung nach knapp werden.
Ähnliche Themen