Grundriss Stadtvilla 164 qm2 Massiv auf Hinterliegergrundstück

5,00 Stern(e) 4 Votes
Zuletzt aktualisiert 18.11.2025
Sie befinden sich auf der Seite 2 der Diskussion zum Thema: Grundriss Stadtvilla 164 qm2 Massiv auf Hinterliegergrundstück
>> Zum 1. Beitrag <<

Y

ypg

Ich fände die Laufrichtung der Treppe zu drehen geschickter.
Ich wohl auch, würde es aber eher so sehen, dass durch das Hin- und Hergemurkse im Flur noch mal recht intensiv an die Planung gegangen werden sollte.
Ohne Möblierung vollziehe ich vieles nicht nach,
Ich auch nicht. Aber auch die Ausrichtung des Hauses will sich mir gar nicht erklären. Gefühlt würde ich das Haus um 90 Grad gdU drehen und den Eingang versetzen.
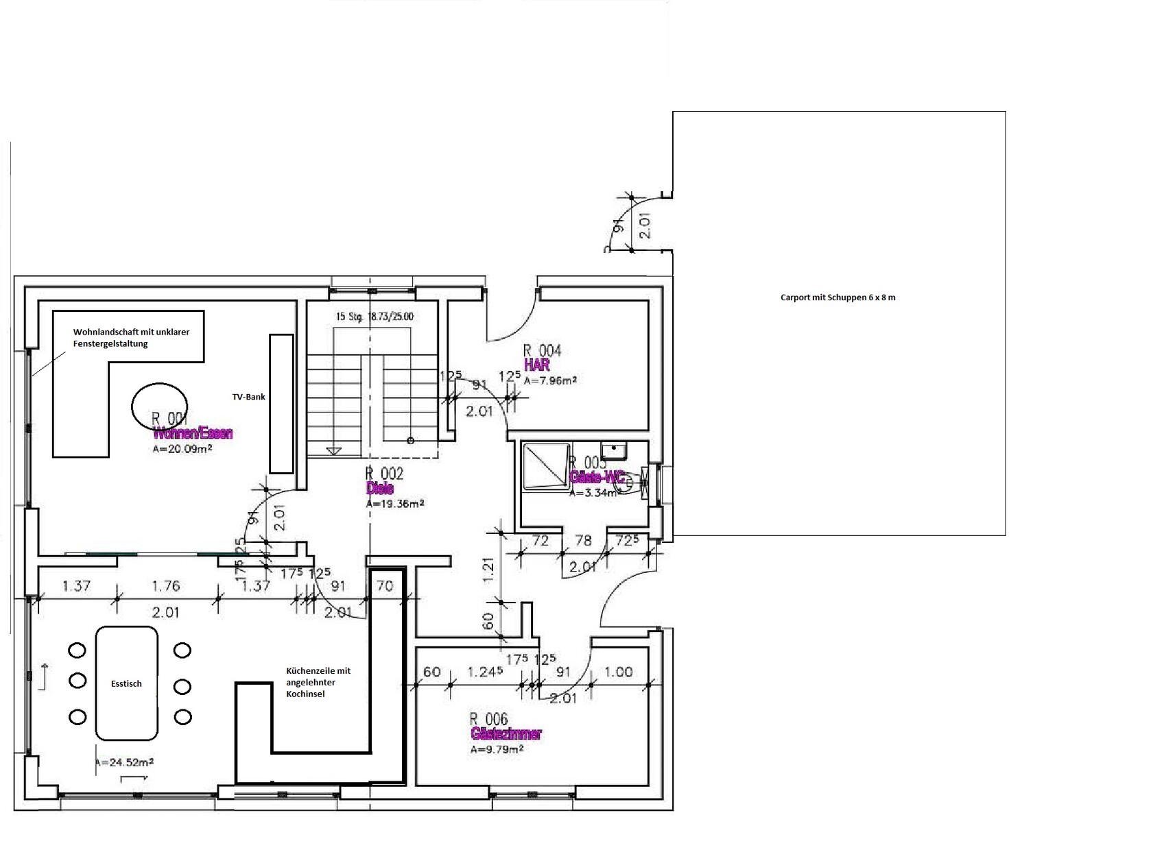
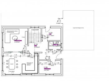
Es war ursprünglich genauso angedacht, dass der Eingangsbereich mit dem Gäste-WC getauscht war. Jedoch ist durch das geplante Carport, was an diese Seite irgendwann angrenzen soll, die Planung erstmal so.
…. also, der Flur ist so völlig irritierend... der muss weg! ;)
 
11ant

11ant

Es war ursprünglich genauso angedacht, dass der Eingangsbereich mit dem Gäste-WC getauscht war. Jedoch ist durch das geplante Carport, was an diese Seite irgendwann angrenzen soll, die Planung erstmal so.
Daß Küche und Wohnzimmer möblierungsmäßig Black Boxes sind, sehe ich mit dem Carport jetzt irgendwie nicht zusammenhängend (?)
Am besten zeigst Du (nach der Einordnung der Grundrisse ins Grundstück samt Nordung) mal den Plan vor dem Tausch.
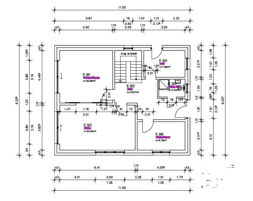
Die Laufrichtung der Treppe drehen? So, wie geplant, hätte ich unter der Podesttreppe einen schönen nahen Vorratsraum neben der Küche.
Gerade deswegen will ich sie ja drehen: oben stört es nicht, und unten würde es nützen. Aktuell hättest Du einen Vorratsraum neben dem Wohnzimmer (?)
 
R

Richard-MD

Gibt es einen Plan wo das Haus sich im Grundstück befindet? Wo ist die Garage? Stellplatz?
Hallo liebes Hausbau-Forum,

vielen lieben Dank für das Feedback bis hierher.
Anbei der Lageplan, vor dem Carport wird die Zufahrt zu unserem Hinterliegergrundstück entstehen.

Dabei ist auch die geplante Möblierung. Der Wandaufbau ist 240 mm Poroton + 180 WDVS WLG 032.
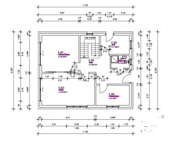
Der Grundstück vor der Anpassung der Garderobe bzw. Eingangsbereich liegt ebenfalls anbei. Die Ursache für die Bearbeitung zum jetzigen Stand war die Schaffung von Stauraum. Das mit dem Tausch habe ich wohl verwechselt. Es gab keine anderen Pläne für den Eingangsbereich.

@ ypg Das Haus drehen und den Eingang versetzen? Hätte der Vorschlag unter dem Gesichtspunkt des Lageplans bestand?

Ich freue mich sehr auf weitere Anregungen und Ideen

Viel Glück

R.
Lageplan eines Baugrundstücks mit Hausschnitt, Nordpfeil und Pool am Grundstücksrand.

Grundriss eines Hauses: Wohnzimmer links, Küche/Esszimmer unten, Gästezimmer rechts, Carport rechts.

Grundriss eines Hauses mit mehreren Zimmern, Türen, Treppe und Maßen.
 
11ant

11ant

Anbei der Lageplan, vor dem Carport wird die Zufahrt zu unserem Hinterliegergrundstück entstehen.
Da geht viel Geld und Grundflächenzahl für die Einfahrtspflasterung drauf :-(
Der Wandaufbau ist 240 mm Poroton + 180 WDVS WLG 032.
24 und 18 sind bei mir ZWEIundvierzig (?) und Du darfst gerne mal selber üben, die Pfuschertaschen* im Plan zu finden ;-)

*) diese Schlampereien baut wohlgemerkt nicht der Maurer, sondern der Planer ein !
 
R

Richard-MD

Da geht viel Geld und Grundflächenzahl für die Einfahrtspflasterung drauf :-(

24 und 18 sind bei mir ZWEIundvierzig (?) und Du darfst gerne mal selber üben, die Pfuschertaschen* im Plan zu finden ;-)

*) diese Schlampereien baut wohlgemerkt nicht der Maurer, sondern der Planer ein !
Leider ja, anders ist es leider nicht zu machen gemäß Bauvorbescheid. Ich hab zwar schon die Idee, die Zufahrt nur zum Schluss bei einfahrt Carport auf die volle Breite von 6 Meter zu planen und in der Mitte ""trichterförmig" auf ca. 3 Meter zu gehen, nur muss ich da noch genauer schauen. Andere Ideen hatte ich bisher nicht.

Ich konnte nicht ergoogeln, was Pfuschertaschen sind. Hast du da einen Link? Ist das nicht ein üblicher Wandaufbau?
Ich muss dazusagen, es ist ein EH 40-Haus.
 
Zuletzt aktualisiert 18.11.2025
Im Forum Grundrissplanung / Grundstücksplanung gibt es 2536 Themen mit insgesamt 87965 Beiträgen


Ähnliche Themen zu Grundriss Stadtvilla 164 qm2 Massiv auf Hinterliegergrundstück
Nr.ErgebnisBeiträge
1Haus, Garage / Carport auf dem Grundstück platzieren - Seite 493
2Hang-Grundstück, Carport abfangen 22
3Zufahrt zum Carport wird durch Laterne behindert 17
4Stellplatz / Zufahrt Problem bei Hanglage (v. Straße ansteigend) 12
5Platzierung Stellplätze / Carport auf dem Grundstück - Seite 342
6Grundriss Bungalow 125qm konisches Grundstück - Seite 739
7Optimierung 150m² Einfamilienhaus @ 470m² & 19m schmalem Grundstück 20
8Grundstück am Nordhang – nächste Schritte? 25
9Grundriss, KfW55EE Doppelhaushälfte 150m², 380m² Grundstück 2. Reihe - Seite 217
10Grundstück Einfamilienhaus C630 Heinz von Heiden am Standort Sachsen - Seite 764
11Erster Grundrissentwurf Wohnküche - Diskussion, Feedback - Seite 253
12Welche Fliesen im Eingangsbereich wählen? Was habt ihr gewählt? - Seite 529
13Welcher Bodenbelag im Eingang/Flur? Wer hat Erfahrungen? Bilder? 14
14200m2 Einfamilienhaus für 4-5 Personen ohne Keller auf schmalem Grundstück 67
15Flur und Wohn-/Essbereich selben Bodenbelag? 50
16Süd Hang Grundstück 700qm Einfamilienhaus ca. 150qm, Ideen Input? - Seite 443
17Kosteneinschätzung: Fertighaus, Keller, Carport, Einzelgarage 10
18Wieviel Grundstück und Haus können wir uns leisten? 25
19Carport bauen. Statt Holzpfosten, Flacheisen möglich? 12
20Grundriss Haus / Grundstück 28

Oben