Welche Fliesen im Eingangsbereich wählen? Was habt ihr gewählt?

4,50 Stern(e) 6 Votes
Zuletzt aktualisiert 18.11.2025
Sie befinden sich auf der Seite 5 der Diskussion zum Thema: Welche Fliesen im Eingangsbereich wählen? Was habt ihr gewählt?
>> Zum 1. Beitrag <<

S

sco0ter

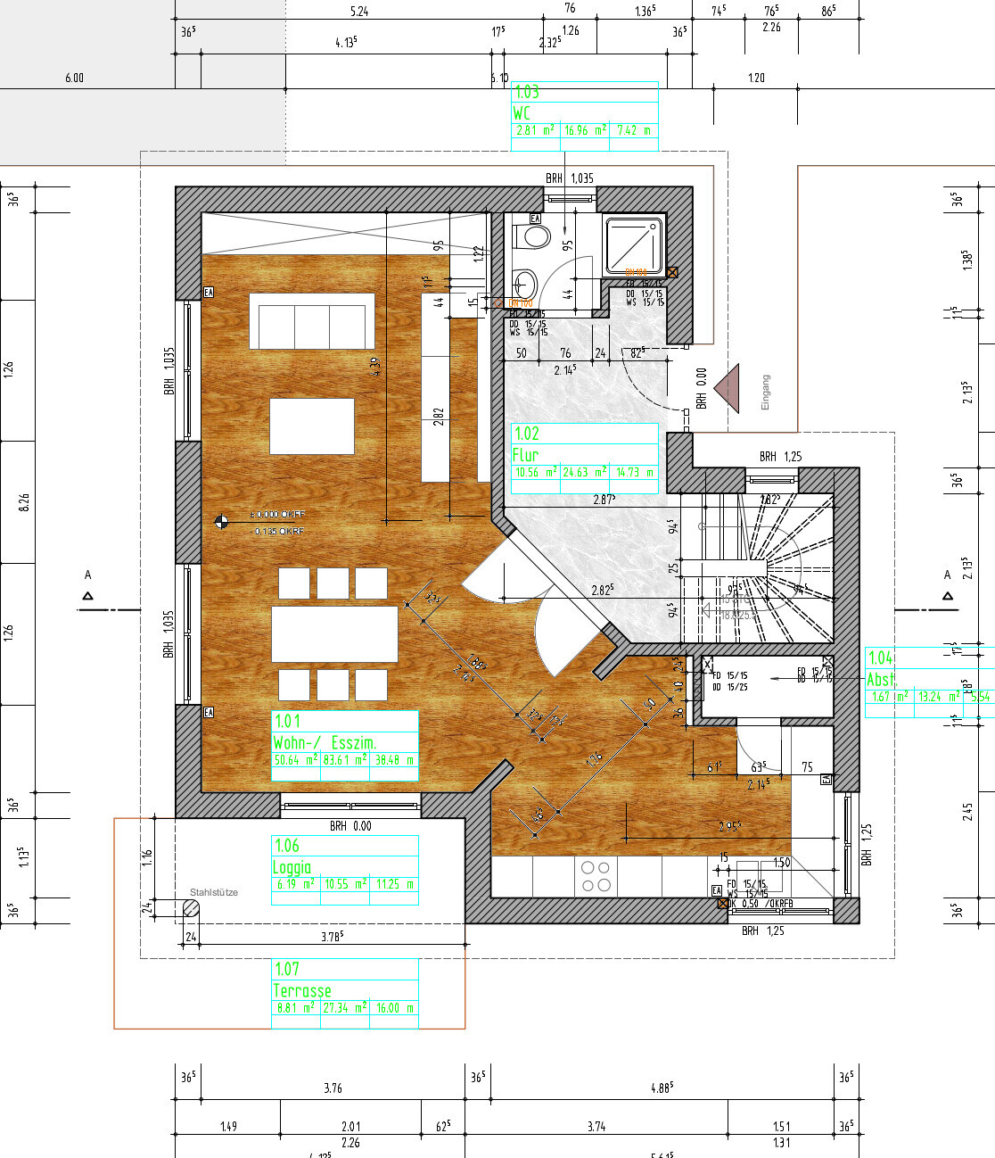
Einheitlich schön und gut, aber wir können uns irgendwie nicht damit anfreunden im Wohnzimmer den gleichen Belag zu haben wie im Gäste-WC/Flur. ersteres soll wohnlich sein, daher Holzoptik, letzteres schlicht. Und im Flur auch noch Holzoptik ist zu viel des Guten.

Ich hänge euch mal unseren Grundriss an und wie wir das geplant hatten (im Gäste-WC auch die gleichen Fliesen wie im Flur)


Grundriss eines Wohnhauses: offener Wohn-/Essbereich, Holzboden, Küche, Flur, WC, Loggia, Terrasse.
 
Zuletzt bearbeitet:
W

Witch

Warum dann nicht im Flur auch die Holzoptik, der darf doch auch wohnlich sein. Wir haben im gesamten Haus die gleiche Fliese in Holzoptik und die Treppe farblich darauf abgestimmt. Es ist total gemütlich und man sieht im Eingangsbereich keinen Dreck durch die Maserung der Fliesen.
 
C

Curly

also bei einer doppelflügligen Tür würde ich erst recht alles gleich machen, sieht doch einfach edler und größer aus. Aber das ist allein eure Entscheidung, euch muss es gefallen und nicht uns.

LG
Sabine
 
K

Kekse

Wir überlegen, in Eingangsbereich und WC gemusterte Zementfliesen zu legen. Muss man halt mögen (und die vielen furchtbaren Muster und schlechten Drucke aussortieren)
 
K

Kekse

Man kann die klassischen (echten) imprägnieren, aber wenn ich es richtig verstanden habe, sind die aktuell angebotenen oft gar nicht wirklich aus Zement. Das müsste man ggf.. noch eruieren, bislang ist es wie gesagt nur eine Überlegung. Eben ein ganz anderer Ansatz in der Optik als „möglichst großformatig“
 
Zuletzt aktualisiert 18.11.2025
Im Forum Fliesen / Platten / Naturstein gibt es 343 Themen mit insgesamt 3894 Beiträgen


Ähnliche Themen zu Welche Fliesen im Eingangsbereich wählen? Was habt ihr gewählt?
Nr.ErgebnisBeiträge
1Lage Gäste-WC - Eingangsbereich? 28
2Entwürfe Gestaltung Fliesen Bad / Gäste-WC - Seite 319
3Lichtanschluss falsche Stelle Gäste-WC 29
4Planung Gäste-WC im Neubau - Wie groß muss es sein? (DIN?) - Seite 14107
5Übergang Fliesen Holzoptik - Holzboden 22
6WC-Fenster Gäste-WC neben der Eingangstür - inzwischen nogo? 44
7Gäste-WC: Decke abhängen oder Rohr verkleiden? - Seite 216
8Beispiel Kaltwasserhahn für Gäste-WC 12
9Gäste-WC (1,65qm) und Bad (4,88qm) Sanierung 21
10Gäste-WC Anordnung - Tipps? 19
11Fenster im Gäste-WC/Gästezimmer trotz Garage möglich? - Seite 333
12Rollladen im Gäste-WC ja oder nein? 35
13Planung Gäste-WC, brauche eure Tipps 17
14Fliesen oder Vinyl in Küche und Flur 19
15Holzoptikfliesen - Was haltet ihr von diesen Fliesen? - Seite 17168
16Zwei Bäder: Wo sollen Fliesen hin? 49
17Badezimmer raumhoch oder halbhoch Fliesen? - Seite 532
18Fliesen - überall die gleichen? - Seite 314
19Welcher Bodenbelag im Eingang/Flur? Wer hat Erfahrungen? Bilder? 14
20Flur und Wohn-/Essbereich selben Bodenbelag? 50

Oben