Hausbau - Ratgeber
Bauherrenhilfe
- Bauherrenhilfe vor Vertragsabschluss
-- Warum einen unabhängigen Baubetreuer?
-- Vertragsgrundlagen
-- Bausumme
-- Zahlungsplan zur Kostenkontrolle
-- Pflichten des Bauherren vor Vertragsabschluss
-- Unterlagen beim Hausbau vor Vertragsabschluss
- Bauherrenhilfe nach Vertragsabschluss
-- Bauantrag bei Behörden
-- Bau-Genehmigungsverfahren bei Baubehörden
-- Bauspezifische Versicherungen
-- Bauzeitenplan
-- Baubeginn - die Letzten Pflichten der Bauherrschaft
- Bauherrenhilfe während der Bauzeit
- Gewährleistungsansprüche
- Bauabnahme
Baufinanzierung
- Baufinanzierung - Allgemeine Fragen
- Kreditarten
- Kredit-Konditionen
- Bausparen
- Staatliche Förderungen
- Verkehrswert
- Haushaltsrechnung und Bonität
Hausbau Planung
- Haustypen
- Hausbau Vorbereitungsarbeiten
- Das Baugrundstück
- Baugrund beim Hausbau
- Baurecht
- Gebäudeschutz
- Erdarbeiten und Wasserhaltung
- Stützmauern
- Einfriedung
- Untergeschoss
- Kanalisation
- Tragende Elemente
- Nichttragende Innenwände
- Fundation / Fundament
- Deckenkonstruktionen
- Dächer
- Kaminanlagen
- Treppen Rampen Leitern
- Dachbeläge und Spengler
- Fenster
- Sonnen und Wetterschutz
- Aussenputze
- Einbauten, Küchen, Türen
- Bodenbeläge und Unterlagsböden
- Parkett
- Gips, Wand, Decke
Haustechnik und Energie
- Heiztechnik
- Lüftung und Klimatechnik
- Sanitärtechnik
- Elektrotechnik
- Erneuerbare Energie
Whirlpools / Jacuzzi
Hausbau Magazin
- Baufinanzierung trotz Krise?
- Das Blockhaus
- Moderne Dämmstoffe im Vergleich
- Erker Vor- und Nachteile
- Glasflächen beim Hausbau
- Günstig ein Haus Bauen
- Mediterraner Hausbaustil
- Mehrgenerationenhaus
- Moderne Architektur
- Gartengestaltung leicht gemacht
- Traditioneller Ziegelbau
- Villa als höchster Traum
- Im Eigenheim Ruhestand geniessen
- Altbau sanieren
- Kauf einer Holzgarage
- Immobilienmakler
- Arbeitshandschuhe für den Winter
- Zuhause verschönern
- Outdoor-Plissees
- Schlafzimmer planen
- Terrassenüberdachung
- Wohngebäudeversicherung
- Zaunarten und Eigenschaften
- Hauseingang gestalten
- Der perfekte Grundriss
- Sparsamer heizen im Altbau
- Einfamilienhaus smart finanzieren
- Planung einer PV-Anlage
- Neues Haus
- Immobilienfinanzierung
- Installation einer Photovoltaikanlage
- Asbest erkennen und entfernen
- Gartenpflege im Frühling – worauf achten
- Sauna im Fokus - Wellness zuhause
- Erfolgreich vermieten
- Die perfekte Winterbekleidung
- Das Niedrigenergiehaus
- Der April und seine Stürme
- Architektonische Vielfalt
- Ökologisch und nachhaltig bauen
- Das perfekte Schlafzimmer
- Nachhaltige Energieversorgung
- Zukunftsorientiert bauen
- Nachhaltigkeit beim Hausbau
- Tiny Houses
- Wärmepumpen als nachhaltige Heizvariante
- Maßgeschneiderten Kleiderschrank
- Der richtige Baukredit
- Ratgeber für erfolgreichen Hausbau
- Haus als Altersvorsorge
Do-it-yourself Anleitungen
- Verlegeanleitung für Bodenbeläge und Parkett
- Bodenbeläge und Parkett reinigen und pflegen
- Malerarbeiten am Haus
- Garten Tipps
- Umzug und Reinigung

ᐅ Grundriss Stadtvilla 160qm - Bitte um Tipps!

Erstellt am: 28.01.19 09:23
B
Bauherrin92
kaho67401.02.19 21:58
Update :
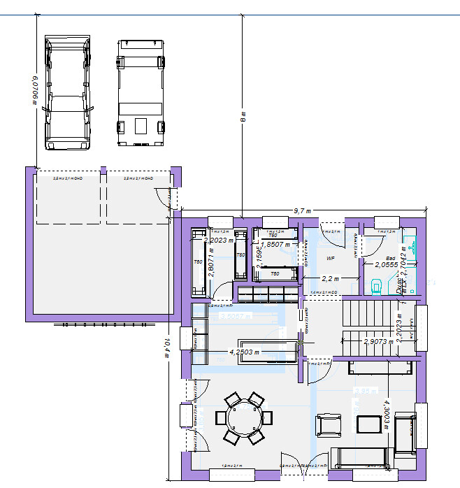
Ich würde die 8m bis zur Straße Abstand wählen. Dazu Hauseingangsüberdachung bis zu Garage. Fenster der Küche so gerade noch frei.
Im OG jetzt Tür- / Wandabstände maximal ausgereizt, damit genug Platz für's Bett ist.


Grundriss eines Hauses: Wohn-/Essbereich, Küche, Schlafzimmer, Bad, Treppen, Außenparkplätze.


Grundriss eines Hauses: mehrere Zimmer, Türen, Möbel und Maßangaben.


Zweistöckiges graues Haus mit Flachdach-Anbau, vielen Fensterfronten; blauer PKW steht auf Gras.


Kamin wäre noch ein Problem.
kbt0901.02.19 23:13
... @kaho674 ... Katja ... echt klasse, wie du dich immer wieder einbringst.

Was ich als TE mal überlegen würde ... Keller ja, aber, was soll da untergebracht werden? Gartenmöbel? Rasenmäher usw? .. Außenzugang?

Was ist mit Fahrrädern? Die Garage bietet dafür keinen Platz.
kaho67402.02.19 09:20
Is Quark. Ich sehe kaum einen Vorteil von #145, gegenüber dem Ausgangsentwurf. Ich würde bei #1 in Garderobe, Speisekammer und Ankleide die Fenster korrigieren, damit man ordentliche Schränke stellen kann und dann ist der vermutlich das, was Ihr wollt.
B
Bauherrin92
02.02.19 15:34
kaho674 schrieb:
Dazu Hauseingangsüberdachung bis zu Garage

Die Garagentüre würde ich nach hinten zum Garten setzen, hat so keinen Mehrwert wenn direkt daneben das Garagentor ist wo ich rausgehen kann.

Die Kinderzimmer sind ja richtig klein, hmm...muss ich zeichnen sobald ich dazu komme.
kbt09 schrieb:
Keller ja, aber, was soll da untergebracht werden? Gartenmöbel? Rasenmäher usw? .. Außenzugang?


Was ist mit Fahrrädern? Die Garage bietet dafür keinen Platz.

Gartenhäuschen, Keller, ....
Außenzugang ist ja eher Luxus, nicht zwingend notwendig.
kaho674 schrieb:
Is Quark. Ich sehe kaum einen Vorteil von #145, gegenüber dem Ausgangsentwurf.

Wieso Quark? Was würdest du denn anders/besser machen? (Ohne den Stil zu verändern wie beim letzten Entwurf)
B
Bauherrin92
02.02.19 15:38
kaho674 schrieb:
Die Geschosshöhe ist die Höhe, die die Treppe überwinden muss. Da ist neben der Raumhöhe auch sowas wie Decke und Fußbodenaufbau dabei. Letztere liegen meist bei roundabout 30cm Höhe + lichte Raumhöhe = irgendwas um die 2,90m Geschosshöhe. Ansonsten müsstest Du die von den 2,63 abziehen und die Raumhöhe wäre nur 2,30m.

Bei uns steht: 2,63 m Rohbau-Raumhöhe
kaho674 schrieb:
Ich würde ja eher die Küche im Osten lassen.

Die Küche ist Wurst mir gehts um das Esszimmer das im Westen sein soll.
kbt0902.02.19 15:40
kbt09 schrieb:
Keller ja, aber, was soll da untergebracht werden? Gartenmöbel? Rasenmäher usw? .. Außenzugang?

Was ist mit Fahrrädern? Die Garage bietet dafür keinen Platz.
Und du antwortest:
Bauherrin92 schrieb:
Gartenhäuschen, Keller, ....
Außenzugang ist ja eher Luxus, nicht zwingend notwendig.
Ja, was soll denn nun in den Keller ... und, ist dir der Transportweg klar? Und was soll in ein wostehendes Gartenhäuschen?
kellergaragefensterkücheaußenzugang