Hausbau - Ratgeber
Bauherrenhilfe
- Bauherrenhilfe vor Vertragsabschluss
-- Warum einen unabhängigen Baubetreuer?
-- Vertragsgrundlagen
-- Bausumme
-- Zahlungsplan zur Kostenkontrolle
-- Pflichten des Bauherren vor Vertragsabschluss
-- Unterlagen beim Hausbau vor Vertragsabschluss
- Bauherrenhilfe nach Vertragsabschluss
-- Bauantrag bei Behörden
-- Bau-Genehmigungsverfahren bei Baubehörden
-- Bauspezifische Versicherungen
-- Bauzeitenplan
-- Baubeginn - die Letzten Pflichten der Bauherrschaft
- Bauherrenhilfe während der Bauzeit
- Gewährleistungsansprüche
- Bauabnahme
Baufinanzierung
- Baufinanzierung - Allgemeine Fragen
- Kreditarten
- Kredit-Konditionen
- Bausparen
- Staatliche Förderungen
- Verkehrswert
- Haushaltsrechnung und Bonität
Hausbau Planung
- Haustypen
- Hausbau Vorbereitungsarbeiten
- Das Baugrundstück
- Baugrund beim Hausbau
- Baurecht
- Gebäudeschutz
- Erdarbeiten und Wasserhaltung
- Stützmauern
- Einfriedung
- Untergeschoss
- Kanalisation
- Tragende Elemente
- Nichttragende Innenwände
- Fundation / Fundament
- Deckenkonstruktionen
- Dächer
- Kaminanlagen
- Treppen Rampen Leitern
- Dachbeläge und Spengler
- Fenster
- Sonnen und Wetterschutz
- Aussenputze
- Einbauten, Küchen, Türen
- Bodenbeläge und Unterlagsböden
- Parkett
- Gips, Wand, Decke
Haustechnik und Energie
- Heiztechnik
- Lüftung und Klimatechnik
- Sanitärtechnik
- Elektrotechnik
- Erneuerbare Energie
Whirlpools / Jacuzzi
Hausbau Magazin
- Baufinanzierung trotz Krise?
- Das Blockhaus
- Moderne Dämmstoffe im Vergleich
- Erker Vor- und Nachteile
- Glasflächen beim Hausbau
- Günstig ein Haus Bauen
- Mediterraner Hausbaustil
- Mehrgenerationenhaus
- Moderne Architektur
- Gartengestaltung leicht gemacht
- Traditioneller Ziegelbau
- Villa als höchster Traum
- Im Eigenheim Ruhestand geniessen
- Altbau sanieren
- Kauf einer Holzgarage
- Immobilienmakler
- Arbeitshandschuhe für den Winter
- Zuhause verschönern
- Outdoor-Plissees
- Schlafzimmer planen
- Terrassenüberdachung
- Wohngebäudeversicherung
- Zaunarten und Eigenschaften
- Hauseingang gestalten
- Der perfekte Grundriss
- Sparsamer heizen im Altbau
- Einfamilienhaus smart finanzieren
- Planung einer PV-Anlage
- Neues Haus
- Immobilienfinanzierung
- Installation einer Photovoltaikanlage
- Asbest erkennen und entfernen
- Gartenpflege im Frühling – worauf achten
- Sauna im Fokus - Wellness zuhause
- Erfolgreich vermieten
- Die perfekte Winterbekleidung
- Das Niedrigenergiehaus
- Der April und seine Stürme
- Architektonische Vielfalt
- Ökologisch und nachhaltig bauen
- Das perfekte Schlafzimmer
- Nachhaltige Energieversorgung
- Zukunftsorientiert bauen
- Nachhaltigkeit beim Hausbau
- Tiny Houses
- Wärmepumpen als nachhaltige Heizvariante
- Maßgeschneiderten Kleiderschrank
- Der richtige Baukredit
- Ratgeber für erfolgreichen Hausbau
- Haus als Altersvorsorge
Do-it-yourself Anleitungen
- Verlegeanleitung für Bodenbeläge und Parkett
- Bodenbeläge und Parkett reinigen und pflegen
- Malerarbeiten am Haus
- Garten Tipps
- Umzug und Reinigung

ᐅ Grundriss Stadtvilla 160qm - Bitte um Tipps!

Erstellt am: 28.01.19 09:23
B
Bauherrin92
kaho67401.02.19 16:23
Bauherrin92 schrieb:
Und nein, 800 Euro sind kein Problem.
Das ist gut.
Bauherrin92 schrieb:

Geschosshöhe 2,63 m wenn ich mich recht erinnere. Versteh aber nicht inwiefern das den Grundriss beeinflussen könnte.
Vor allem die Länge der Treppe hängt davon ab.
Bauherrin92 schrieb:

Das entspricht in keinster Weise unseren Wünschen wie in #1 genannt.
Das wissen wir doch. Wir haben nur bissl rumgesponnen - oder besser ich.
Bauherrin92 schrieb:

Diese Spielereien sind ja ganz hübsch, aber so kommen wir ja nicht voran.
Du war'st so lange weg, da haben wir uns die Zeit vertrieben.
Bauherrin92 schrieb:

Dann doch lieber daran weiter arbeiten:
Mh. *gähn* Der ist so langweilig.
kaho67401.02.19 19:01
Bauherrin92 schrieb:

Geschosshöhe 2,63 m wenn ich mich recht erinnere.
Ich hoffe mal für Euch, das ist die lichte Raumhöhe und nicht die Geschosshöhe.
ypg schrieb:
Gute Wahl
Jetzt lügst Du aber. Die Satteldachkiste ist viel schöner.
ypg schrieb:

Ich würde die Speis noch etwas einrücken zugunsten der Küche (in der Mitte die Ecke), die Insel würde ich an der anderen Seite andocken...
Hatte ich tatsächlich auch schon so umgeplant.
ypg schrieb:

Wenn Du mehr Platz brauchst in der Küche (oder warst Du es, die nicht so viel kocht?), und die Speis doch eher mehr Reinigungssachen und Müll beherbergen soll, dann würde ich den Zugang von der Garderobe aus machen.
Ich glaub, die TE meinte, sie hält sich wenig in der Küche auf. Tür zur Rumpelkammer find ich cool - kostet allerdings wertvolle Stellfläche.
ypg schrieb:

Wenn nicht, dann könnte man den Garderobenschrankraum auch schliessen.
Dazu müsste ich die optimierten Fenster zerschießen, wozu ich nicht bereit bin.
Außerdem muss dort der Spiegel hin, so!
ypg schrieb:

Leider gibts ja keine Maße bei Katja ....
Für Dich immer, Schatzi. Was brauchst'n?


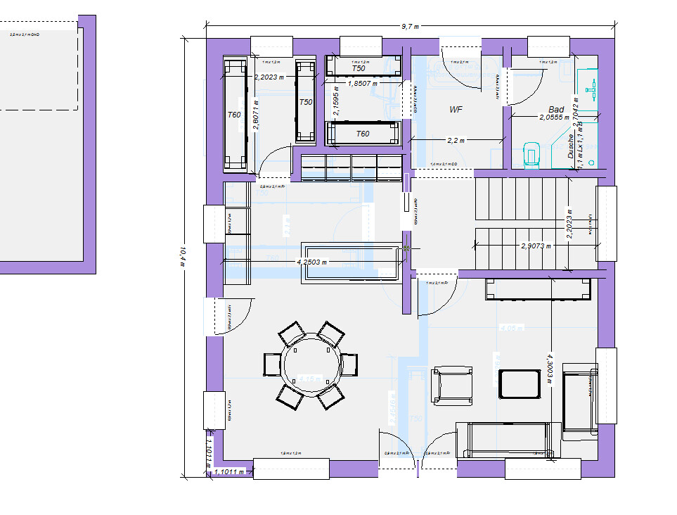
Grundriss eines Hauses: Wohnzimmer mit rundem Esstisch, Küche, Bad, Treppe, Maßangaben.



Grundriss eines Hauses: mehrere Räume (Wohnzimmer, Essbereich, Küche, Bad, Schlafzimmer)

ypg schrieb:

Im OG würde ich die Ankleide etwas einziehen, dass die Kinderzimmer noch etwas provitieren.
Den hab ich nicht ganz verstanden. Aber ich hab sowieso noch mal an der Größe etwas gezerrt und das OG umgestaltet. Das WZ war mir mit 4m gegenüber Ausgangsentwurf zu schmal. Jetzt bei 4,30m etwas besser - dafür sind die Garderobenschränke unten jetzt nur 1,80m statt 2m breit, was man aber sicher gut verkraften kann.
ypg schrieb:

Ansonsten wäre es wohl besser, wenn Du mal angibst, was Dir gefällt und was nicht.
Ja, das wäre hilfreich. Aber die TE hat entweder schlechten Empfang oder der Notfall ist noch nicht überwunden.

Noch ein paar Ansichten:


Zweistöckiges Haus mit grauer Fassade, Holzfenstern und angrenzender Holz-Garage auf Gras.

Zweistöckiges graues Haus mit großen Fenstern, Innenräume sichtbar, auf grünem Rasen.

Graues, zweistöckiges Haus im Bau mit offenen Holzfenstern auf grasigem Grundstück
B
Bauherrin92
01.02.19 19:34
kaho674 schrieb:
Ich hoffe mal für Euch, das ist die lichte Raumhöhe und nicht die Geschosshöhe

Wieso?
kaho674 schrieb:



Gefällt mir sehr gut, aber hat trotzdem noch einige Macken, die wie in unserem Entwurf sind, z.b. Küchenfenster schaut zur Garage, Schlafzimmer wohl zu klein...ich muss das mal ausprobieren und möblieren.

Vielen Dank @kaho674 @ypg
face2601.02.19 19:48
Bauherrin92 schrieb:
Wieso?


Gefällt mir sehr gut, aber hat trotzdem noch einige Macken, die wie in unserem Entwurf sind, z.b. Küchenfenster schaut zur Garage, Schlafzimmer wohl zu klein...ich muss das mal ausprobieren und möblieren.

Vielen Dank @kaho674 @ypg


Ich hab den Überblick verloren, sry, war denn die Positionierung der Garage fix? Wir hatten so weit ich mich erinnere mal kurz über eine andere Positionierung gesprochen aber ist glaube ich im Sand verlaufen...
kaho67401.02.19 20:17
Bauherrin92 schrieb:
Wieso?
Die Geschosshöhe ist die Höhe, die die Treppe überwinden muss. Da ist neben der Raumhöhe auch sowas wie Decke und Fußbodenaufbau dabei. Letztere liegen meist bei roundabout 30cm Höhe + lichte Raumhöhe = irgendwas um die 2,90m Geschosshöhe. Ansonsten müsstest Du die von den 2,63 abziehen und die Raumhöhe wäre nur 2,30m. Weiß gar nicht, ob das überhaupt noch erlaubt ist.
Bauherrin92 schrieb:


Gefällt mir sehr gut, aber hat trotzdem noch einige Macken, die wie in unserem Entwurf sind, z.b. Küchenfenster schaut zur Garage, Schlafzimmer wohl zu klein...ich muss das mal ausprobieren und möblieren.
Ja, Du wolltest unbedingt spiegeln. Also hab ich es für Dich rumgedreht. So guckt man aber zwangsläufig wieder auf die Garage. Es sei denn, das Ding kriegt noch nen anderen Platz. Ich würde ja eher die Küche im Osten lassen.

Das Bett im Schlafzimmer ist 2mx2m.
Etwas tiefer wäre schöner, da hast Du recht. So hier:


Grundriss einer Wohnung: mehrere Räume, Bad, Küche, Esstisch, Schlafzimmer und Wohnzimmer.


Die Fenster müssen noch neu.
kaho67401.02.19 20:20
face26 schrieb:
Ich hab den Überblick verloren, sry, war denn die Positionierung der Garage fix? Wir hatten so weit ich mich erinnere mal kurz über eine andere Positionierung gesprochen aber ist glaube ich im Sand verlaufen...
So wie ich das verfolgt habe, ist die dort schon so gut wie gebaut und festgenagelt.
raumhöhegeschosshöhegaragetreppeküchefensterschlafzimmerpositionierung